ASTM D8254-19
(Test Method)Standard Test Method for Flash and Fire Points of Asphalt by Cleveland Open Cup Tester
Standard Test Method for Flash and Fire Points of Asphalt by Cleveland Open Cup Tester
SIGNIFICANCE AND USE
5.1 The flash point is one measure of the tendency of the test specimen to form a flammable mixture with air under controlled laboratory conditions. It is only one of a number of properties that should be considered in assessing the overall flammability hazard of a material.
5.2 Flash point is used in shipping and safety regulations to define flammable and combustible materials. Consult the particular regulation involved for precise definitions of these classifications.
5.3 Flash point can indicate the possible presence of highly volatile and flammable materials in a relatively nonvolatile or nonflammable material.
5.4 Skin prevention technique involves assembling a restraining ring over a centrally-holed qualitative filter paper that is laid at the bottom of the COC (Cleveland open cup) test cup, prior to introduction of the sample specimen into the cup. This allows a column of the hot sample specimen to move up constantly, through the hole, to the surface of the test specimen so that the surface is maintained in the hot condition to prevent skin formation. (See 9.6).
5.5 Skin-forming asphalts may not be limited to those which are air blown/oxidized, polymerized or non-homogeneous materials that, although infrequently, exhibit some unique behavior and characteristics, as far as manifestation of flash point is concerned. At the flash point stage, this behavior may involve flame propagation across the surface or just a flame appearing at one or more points on the surface.
5.6 This test method shall be used to measure and describe the properties of materials, products, or assemblies in response to heat and a test flame under controlled laboratory conditions and shall not be used to describe or appraise the fire hazard or fire risk of materials, products, or assemblies under actual fire conditions. However, results of this test method may be used as elements of a fire risk assessment that takes into account all of the factors that are pertinent to an ass...
SCOPE
1.1 This test method describes the determination of the flash point and fire point of asphalt by a manual Cleveland open cup apparatus or an automated Cleveland open cup apparatus.
Note 1: Apparatus is the same as described in Test Method D92 with the addition of the materials for the skin prevention technique.
1.2 This test method is applicable to asphalts that can form a skin, and those that do not form a skin during heat treatment.
1.3 This test method is applicable to products with flash points above 79 °C (174 °F) and below 400 °C (752 °F), except fuel oils.
1.4 The precision has been determined over the temperature range of 300 °C to 370 °C (572 °F to 698 °F).
1.5 The values stated in SI units are to be regarded as the standard. The values given in parentheses are mathematical conversions to SI units that are provided for information only and are not considered standard.
1.6 This standard does not purport to address all of the safety concerns, if any, associated with its use. It is the responsibility of the user of this standard to establish appropriate safety, health, and environmental practices and determine the applicability of regulatory limitations prior to use. For specific warning statements, see 6.4, 7.1, 11.1, 11.2.3, and 11.3.4.
1.7 This international standard was developed in accordance with internationally recognized principles on standardization established in the Decision on Principles for the Development of International Standards, Guides and Recommendations issued by the World Trade Organization Technical Barriers to Trade (TBT) Committee.
General Information
- Status
- Published
- Publication Date
- 30-Apr-2019
- Technical Committee
- D04 - Road and Paving Materials
- Drafting Committee
- D04.47 - Miscellaneous Asphalt Tests
Relations
- Effective Date
- 01-Jun-2018
- Effective Date
- 01-Jun-2013
- Effective Date
- 01-May-2013
- Effective Date
- 01-Nov-2012
- Refers
ASTM D4057-06(2011) - Standard Practice for Manual Sampling of Petroleum and Petroleum Products - Effective Date
- 01-Jun-2011
- Effective Date
- 01-Nov-2007
- Effective Date
- 01-Jun-2007
- Effective Date
- 01-Feb-2007
- Effective Date
- 01-Nov-2005
- Effective Date
- 01-Jul-2005
- Effective Date
- 01-Jun-2005
- Effective Date
- 01-Nov-2003
- Effective Date
- 10-May-2003
- Effective Date
- 10-Dec-2002
- Effective Date
- 10-Sep-2002
Overview
ASTM D8254-19 is the internationally recognized standard test method for determining the flash and fire points of asphalt using the Cleveland Open Cup (COC) tester. Developed by ASTM International, this standard provides precise procedures for both manual and automated COC apparatus, ensuring accurate and repeatable measurements of the temperature at which asphalt samples produce flammable vapors (flash point) and sustain combustion (fire point). The method is applicable to asphalts with flash points above 79 °C (174 °F) and below 400 °C (752 °F), and is essential for classifying materials based on flammability, regulatory compliance, and risk assessment.
Key Topics
- Flash Point and Fire Point Concepts
- Flash point: The lowest temperature at which asphalt vapors ignite in the presence of an ignition source under controlled laboratory conditions.
- Fire point: The lowest temperature at which asphalt vapors will sustain burning for at least 5 seconds.
- Test Apparatus and Procedure
- Uses the Cleveland Open Cup tester (manual or automated).
- Includes special techniques for asphalts that may form a skin during heating, ensuring more reliable surface conditions.
- Safety and Regulatory Significance
- Flash point is used by shipping and safety regulations to define flammable and combustible materials, supporting transportation safety and material handling.
- Results support fire risk assessment as part of a broader safety evaluation.
- Applicability
- Suitable for a wide range of asphalts, including those that form a surface skin and those that do not.
- Not applicable for fuel oils and for products with flash points outside the specified range.
Applications
ASTM D8254-19 is essential for various industries that handle, produce, or transport asphalt products, including:
- Quality Control in Asphalt Production
- Ensures asphalt meets required safety and performance specifications.
- Detects the possible presence of volatile or flammable contaminants in asphalt materials.
- Regulatory Compliance
- Supports conformance with local, national, and international transport and safety regulations.
- Provides data required for proper material classification regarding flammability and combustibility.
- Risk Management and Safety Assessment
- Used as part of comprehensive fire risk assessments, especially when dealing with bulk storage, processing, or application of asphalt products.
- Informs proper storage, handling, and operational protocols to minimize fire hazards.
- Research and Development
- Assists in the testing and formulation of new asphalt materials, especially those with modified or enhanced properties.
Related Standards
- ASTM D92 - Test Method for Flash and Fire Points by Cleveland Open Cup Tester (predecessor and related to equipment and methodology).
- ASTM D140 - Standard Practice for Sampling Asphalt Materials.
- ASTM D4057 - Practice for Manual Sampling of Petroleum and Petroleum Products.
- ASTM D4177 - Practice for Automatic Sampling of Petroleum and Petroleum Products.
- ASTM D4206 - Test Method for Sustained Burning of Liquid Mixtures Using the Small Scale Open-Cup Apparatus.
- ISO 17034 - General requirements for the competence of reference material producers.
- ISO Guide 35 - Guidance for characterization and assessment of homogeneity and stability of reference materials.
Practical Value
Implementing ASTM D8254-19 helps organizations:
- Identify and mitigate fire and handling hazards associated with asphalt materials.
- Safeguard compliance with transportation and safety regulations.
- Maintain consistent product quality through standardized testing.
- Improve workplace safety by understanding and controlling flammability risks.
- Rely on internationally accepted methods for accurate and comparable results across laboratories and industries.
Keywords: ASTM D8254-19, asphalt flash point, fire point testing, Cleveland Open Cup, asphalt flammability, laboratory safety, asphalt testing standard, regulatory compliance, fire risk assessment, asphalt quality control.
Buy Documents
ASTM D8254-19 - Standard Test Method for Flash and Fire Points of Asphalt by Cleveland Open Cup Tester
Get Certified
Connect with accredited certification bodies for this standard

ABS Quality Evaluations Inc.
American Bureau of Shipping quality certification.

Element Materials Technology
Materials testing and product certification.

NSF International
Global independent organization facilitating standards development and certification.
Sponsored listings
Frequently Asked Questions
ASTM D8254-19 is a standard published by ASTM International. Its full title is "Standard Test Method for Flash and Fire Points of Asphalt by Cleveland Open Cup Tester". This standard covers: SIGNIFICANCE AND USE 5.1 The flash point is one measure of the tendency of the test specimen to form a flammable mixture with air under controlled laboratory conditions. It is only one of a number of properties that should be considered in assessing the overall flammability hazard of a material. 5.2 Flash point is used in shipping and safety regulations to define flammable and combustible materials. Consult the particular regulation involved for precise definitions of these classifications. 5.3 Flash point can indicate the possible presence of highly volatile and flammable materials in a relatively nonvolatile or nonflammable material. 5.4 Skin prevention technique involves assembling a restraining ring over a centrally-holed qualitative filter paper that is laid at the bottom of the COC (Cleveland open cup) test cup, prior to introduction of the sample specimen into the cup. This allows a column of the hot sample specimen to move up constantly, through the hole, to the surface of the test specimen so that the surface is maintained in the hot condition to prevent skin formation. (See 9.6). 5.5 Skin-forming asphalts may not be limited to those which are air blown/oxidized, polymerized or non-homogeneous materials that, although infrequently, exhibit some unique behavior and characteristics, as far as manifestation of flash point is concerned. At the flash point stage, this behavior may involve flame propagation across the surface or just a flame appearing at one or more points on the surface. 5.6 This test method shall be used to measure and describe the properties of materials, products, or assemblies in response to heat and a test flame under controlled laboratory conditions and shall not be used to describe or appraise the fire hazard or fire risk of materials, products, or assemblies under actual fire conditions. However, results of this test method may be used as elements of a fire risk assessment that takes into account all of the factors that are pertinent to an ass... SCOPE 1.1 This test method describes the determination of the flash point and fire point of asphalt by a manual Cleveland open cup apparatus or an automated Cleveland open cup apparatus. Note 1: Apparatus is the same as described in Test Method D92 with the addition of the materials for the skin prevention technique. 1.2 This test method is applicable to asphalts that can form a skin, and those that do not form a skin during heat treatment. 1.3 This test method is applicable to products with flash points above 79 °C (174 °F) and below 400 °C (752 °F), except fuel oils. 1.4 The precision has been determined over the temperature range of 300 °C to 370 °C (572 °F to 698 °F). 1.5 The values stated in SI units are to be regarded as the standard. The values given in parentheses are mathematical conversions to SI units that are provided for information only and are not considered standard. 1.6 This standard does not purport to address all of the safety concerns, if any, associated with its use. It is the responsibility of the user of this standard to establish appropriate safety, health, and environmental practices and determine the applicability of regulatory limitations prior to use. For specific warning statements, see 6.4, 7.1, 11.1, 11.2.3, and 11.3.4. 1.7 This international standard was developed in accordance with internationally recognized principles on standardization established in the Decision on Principles for the Development of International Standards, Guides and Recommendations issued by the World Trade Organization Technical Barriers to Trade (TBT) Committee.
SIGNIFICANCE AND USE 5.1 The flash point is one measure of the tendency of the test specimen to form a flammable mixture with air under controlled laboratory conditions. It is only one of a number of properties that should be considered in assessing the overall flammability hazard of a material. 5.2 Flash point is used in shipping and safety regulations to define flammable and combustible materials. Consult the particular regulation involved for precise definitions of these classifications. 5.3 Flash point can indicate the possible presence of highly volatile and flammable materials in a relatively nonvolatile or nonflammable material. 5.4 Skin prevention technique involves assembling a restraining ring over a centrally-holed qualitative filter paper that is laid at the bottom of the COC (Cleveland open cup) test cup, prior to introduction of the sample specimen into the cup. This allows a column of the hot sample specimen to move up constantly, through the hole, to the surface of the test specimen so that the surface is maintained in the hot condition to prevent skin formation. (See 9.6). 5.5 Skin-forming asphalts may not be limited to those which are air blown/oxidized, polymerized or non-homogeneous materials that, although infrequently, exhibit some unique behavior and characteristics, as far as manifestation of flash point is concerned. At the flash point stage, this behavior may involve flame propagation across the surface or just a flame appearing at one or more points on the surface. 5.6 This test method shall be used to measure and describe the properties of materials, products, or assemblies in response to heat and a test flame under controlled laboratory conditions and shall not be used to describe or appraise the fire hazard or fire risk of materials, products, or assemblies under actual fire conditions. However, results of this test method may be used as elements of a fire risk assessment that takes into account all of the factors that are pertinent to an ass... SCOPE 1.1 This test method describes the determination of the flash point and fire point of asphalt by a manual Cleveland open cup apparatus or an automated Cleveland open cup apparatus. Note 1: Apparatus is the same as described in Test Method D92 with the addition of the materials for the skin prevention technique. 1.2 This test method is applicable to asphalts that can form a skin, and those that do not form a skin during heat treatment. 1.3 This test method is applicable to products with flash points above 79 °C (174 °F) and below 400 °C (752 °F), except fuel oils. 1.4 The precision has been determined over the temperature range of 300 °C to 370 °C (572 °F to 698 °F). 1.5 The values stated in SI units are to be regarded as the standard. The values given in parentheses are mathematical conversions to SI units that are provided for information only and are not considered standard. 1.6 This standard does not purport to address all of the safety concerns, if any, associated with its use. It is the responsibility of the user of this standard to establish appropriate safety, health, and environmental practices and determine the applicability of regulatory limitations prior to use. For specific warning statements, see 6.4, 7.1, 11.1, 11.2.3, and 11.3.4. 1.7 This international standard was developed in accordance with internationally recognized principles on standardization established in the Decision on Principles for the Development of International Standards, Guides and Recommendations issued by the World Trade Organization Technical Barriers to Trade (TBT) Committee.
ASTM D8254-19 is classified under the following ICS (International Classification for Standards) categories: 13.220.40 - Ignitability and burning behaviour of materials and products; 75.080 - Petroleum products in general. The ICS classification helps identify the subject area and facilitates finding related standards.
ASTM D8254-19 has the following relationships with other standards: It is inter standard links to ASTM D4206-96(2018), ASTM D4206-96(2013), ASTM E1-13, ASTM D92-12a, ASTM D4057-06(2011), ASTM E1-07, ASTM D4206-96(2007), ASTM D140-01(2007), ASTM E1-05, ASTM D92-05a, ASTM D92-05, ASTM E1-03a, ASTM E1-03, ASTM D92-02b, ASTM D92-02a. Understanding these relationships helps ensure you are using the most current and applicable version of the standard.
ASTM D8254-19 is available in PDF format for immediate download after purchase. The document can be added to your cart and obtained through the secure checkout process. Digital delivery ensures instant access to the complete standard document.
Standards Content (Sample)
This international standard was developed in accordance with internationally recognized principles on standardization established in the Decision on Principles for the
Development of International Standards, Guides and Recommendations issued by the World Trade Organization Technical Barriers to Trade (TBT) Committee.
Designation: D8254 − 19
Standard Test Method for
Flash and Fire Points of Asphalt by Cleveland Open Cup
Tester
This standard is issued under the fixed designation D8254; the number immediately following the designation indicates the year of
original adoption or, in the case of revision, the year of last revision. A number in parentheses indicates the year of last reapproval. A
superscript epsilon (´) indicates an editorial change since the last revision or reapproval.
INTRODUCTION
This flash point and fire point test method is a dynamic method and depends on definite rates of
temperature increases to control the precision of the test method. Its primary use is for viscous
materials having flash point of 79 °C (174 °F) and above. It is also used to determine fire point, which
is a temperature above the flash point, at which the test specimen will support combustion for a
minimum of 5 s. Do not confuse this test method with Test Method D4206, which is a sustained
burning test, open cup type, at a specific temperature of 49 °C (120 °F).
Flash point values are a function of the apparatus design, the condition of the apparatus used, and
the operational procedure carried out. Flash point can therefore only be defined in terms of a standard
test method, and no general valid correlation can be guaranteed between results obtained by different
test methods, or with test apparatus different from that specified.
1. Scope mine the applicability of regulatory limitations prior to use.
For specific warning statements, see 6.4, 7.1, 11.1, 11.2.3, and
1.1 Thistestmethoddescribesthedeterminationoftheflash
11.3.4.
point and fire point of asphalt by a manual Cleveland open cup
1.7 This international standard was developed in accor-
apparatus or an automated Cleveland open cup apparatus.
dance with internationally recognized principles on standard-
NOTE 1—Apparatus is the same as described in Test Method D92 with
the addition of the materials for the skin prevention technique. ization established in the Decision on Principles for the
Development of International Standards, Guides and Recom-
1.2 This test method is applicable to asphalts that can form
mendations issued by the World Trade Organization Technical
a skin, and those that do not form a skin during heat treatment.
Barriers to Trade (TBT) Committee.
1.3 This test method is applicable to products with flash
points above 79 °C (174 °F) and below 400 °C (752 °F),
2. Referenced Documents
except fuel oils.
2.1 ASTM Standards:
1.4 The precision has been determined over the temperature
D92 Test Method for Flash and Fire Points by Cleveland
range of 300 °C to 370 °C (572 °F to 698 °F).
Open Cup Tester
D140 Practice for Sampling Asphalt Materials
1.5 The values stated in SI units are to be regarded as the
standard. The values given in parentheses are mathematical D4057 Practice for Manual Sampling of Petroleum and
conversions to SI units that are provided for information only Petroleum Products
and are not considered standard.
D4177 Practice for Automatic Sampling of Petroleum and
Petroleum Products
1.6 This standard does not purport to address all of the
D4206 Test Method for Sustained Burning of Liquid Mix-
safety concerns, if any, associated with its use. It is the
tures Using the Small Scale Open-Cup Apparatus
responsibility of the user of this standard to establish appro-
E1 Specification for ASTM Liquid-in-Glass Thermometers
priate safety, health, and environmental practices and deter-
E300 Practice for Sampling Industrial Chemicals
This test method is under the jurisdiction of ASTM Committee D04 on Road
and Paving Materials and is the direct responsibility of Subcommittee D04.47 on For referenced ASTM standards, visit the ASTM website, www.astm.org, or
Miscellaneous Asphalt Tests. contact ASTM Customer Service at service@astm.org. For Annual Book of ASTM
Current edition approved May 1, 2019. Published June 2019. DOI: 10.1520/ Standards volume information, refer to the standard’s Document Summary page on
D8254-19. the ASTM website.
Copyright ©ASTM International, 100 Barr Harbor Drive, PO Box C700, West Conshohocken, PA19428-2959. United States
D8254 − 19
2.2 Energy Institute Standard: 5.2 Flash point is used in shipping and safety regulations to
Specifications for IP Standard Thermometers define flammable and combustible materials. Consult the
4 particular regulation involved for precise definitions of these
2.3 ISO Standards:
classifications.
ISO 17034 General requirements for the competence of
reference material producers 5.3 Flash point can indicate the possible presence of highly
volatile and flammable materials in a relatively nonvolatile or
ISO Guide 35 Reference materials—Guidance for charac-
terization and assessment of homogeneity and stability nonflammable material.
5.4 Skin prevention technique involves assembling a re-
3. Terminology
straining ring over a centrally-holed qualitative filter paper that
is laid at the bottom of the COC (Cleveland open cup) test cup,
3.1 Definitions:
prior to introduction of the sample specimen into the cup. This
3.1.1 dynamic, adj—in petroleum products—in petroleum
allows a column of the hot sample specimen to move up
product flash point test methods, the condition where the vapor
constantly, through the hole, to the surface of the test specimen
above the test specimen and the test specimen are not in
so that the surface is maintained in the hot condition to prevent
temperature equilibrium at the time that the ignition source is
skin formation. (See 9.6).
applied.
5.5 Skin-formingasphaltsmaynotbelimitedtothosewhich
3.1.1.1 Discussion—This is primarily caused by the heating
are air blown/oxidized, polymerized or non-homogeneous
of the test specimen at the constant prescribed rate with the
materials that, although infrequently, exhibit some unique
vapor temperature lagging behind the test specimen tempera-
behavior and characteristics, as far as manifestation of flash
ture.
point is concerned. At the flash point stage, this behavior may
3.1.2 fire point, n—in flash point test methods, the lowest
involve flame propagation across the surface or just a flame
temperature of the test specimen, adjusted to account for
appearing at one or more points on the surface.
variations in atmospheric pressure from 101.3 kPa, at which
5.6 This test method shall be used to measure and describe
application of an ignition source causes the vapors of the test
the properties of materials, products, or assemblies in response
specimen to ignite and sustain burning for a minimum of 5 s
to heat and a test flame under controlled laboratory conditions
under specified conditions of test.
and shall not be used to describe or appraise the fire hazard or
3.1.3 flash point, n—in flash point test methods, the lowest
fire risk of materials, products, or assemblies under actual fire
temperature of the test specimen, adjusted to account for
conditions.However,resultsofthistestmethodmaybeusedas
variations in atmospheric pressure from 101.3 kPa, at which
elements of a fire risk assessment that takes into account all of
application of an ignition source causes the vapors of the test
the factors that are pertinent to an assessment of the fire hazard
specimen to ignite under specified conditions of test.
for a particular end use.
5.7 The fire point is one measure of the tendency of the test
4. Summary of Test Method
specimen to support combustion.
4.1 Approximately 50 mL of test specimen is filled into a
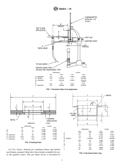
6. Apparatus
test cup which has been previously prepared for running the
6.1 Cleveland Open Cup Apparatus (manual)—This appa-
skin-prevention procedure. The temperature of the test speci-
ratus consists of the test cup, heating plate, test flame
men is increased rapidly at first and then at a slower constant
applicator,heater,andsupportsdescribedindetailintheAnnex
rate as the flash point is approached. At specified intervals, a
A1. The assembled manual apparatus, heating plate, and cup
testflameispassedacrossthecup.Theflashpointisthelowest
are illustrated in Figs. 1-3, respectively. Dimensions are listed
liquid temperature at which application of the test flame causes
with the figures.
the vapors of the test specimen of the sample to ignite. To
determine the fire point, the test is continued until the appli-
6.2 Cleveland Open Cup Apparatus (automated)—This ap-
cation of the test flame causes the test specimen to ignite and
paratus is an automated flash point instrument that shall
sustain burning for a minimum of 5 s.
perform the test in accordance with the procedure, 11.3. The
apparatus shall use the test cup with the dimensions as
5. Significance and Use
described in Annex A1 and the application of the test flame
shall be as described in Annex A1.
5.1 Theflashpointisonemeasureofthetendencyofthetest
6.3 Temperature Measuring Device—Athermometer having
specimen to form a flammable mixture with air under con-
the range as shown below and conforming to the requirements
trolled laboratory conditions. It is only one of a number of
prescribed in Specification E1 or in the Specifications for IP
properties that should be considered in assessing the overall
Standard Thermometers, or an electronic temperature measur-
flammability hazard of a material.
ing device, such as a resistance thermometer or thermocouple.
The device shall exhibit the same temperature response as the
liquid in glass thermometers.
Available from Energy Institute, 61 New Cavendish St., London, W1G 7AR,
Thermometer Number
U.K., http://www.energyinst.org.
Temperature Range ASTM IP
Available fromAmerican National Standards Institute (ANSI), 25 W. 43rd St.,
–6 °C to +400 °C 11C 28C
4th Floor, New York, NY 10036, http://www.ansi.org.
D8254 − 19
millimetres inches
min max min max
A—Diameter 3.2 4.8 0.126 0.189
B—Radius 152 nominal 6 nominal
C—Diameter 1.6 nominal 0.063 nominal
D 2 0.078
E 5.9 6.9 0.23 0.27
F—Diameter 0.8 nominal 0.031 nominal
FIG. 1 Cleveland Open Cup Apparatus
millimetres inches
min max min max
millimetres inches
A 6 7 0.236 0.276
min max min max
B 0.5 1.0 0.020 0.039
A 67.5 69 2.658 2.717
C 6 7 0.236 0.276
B 63 64 2.480 2.520
D—Diameter 55 56 2.165 2.205
C 2.8 3.5 0.110 0.138
E—Diameter 69.5 70.5 2.736 2.776
D—Radius 4 nominal 0.157 nominal
F—Diameter 146 159 5.748 6.260
E 32.5 34 1.280 1.339
F 9 10 0.354 0.394
FIG. 2 Heating Plate
G 31 32.5 1.221 1.280
H 2.8 3.5 0.110 0.138
I 67 70 2.638 2.756
J 97 100 3.819 3.937
6.4 Test Flame—Natural gas (methane) flame and bottled
gas(butane,propane)flamehavebeenfoundacceptableforuse
FIG. 3 Cleveland Open Cup
as the ignition source. The gas flame device is described in
D8254 − 19
detail in Annex A1.(Warning—Gas pressure supplied to the heated above this temperature, allow the sample to cool until it
apparatusmustnotbeallowedtoexceed3kPa(12in.)ofwater is at least 56 °C (101 °F) below the expected flash point before
pressure.) transferring.
NOTE 3—Typically, the sample containers for these types of samples
6.5 Hotplate or Oven, capable of/suitable for liquefying
will remain closed during the warming process.
asphalt samples.
NOTE4—Ifthesampleissuspectedofcontainingvolatilecontaminants,
the treatment described in 8.6 should be omitted.
7. Reagents and Materials
9. Preparation of Apparatus
7.1 Cleaning Solvents—Use suitable technical grade solvent
capable of cleaning out the test specimen from the test cup and 9.1 Support the manual or automated apparatus on a level,
drying the test cup. Some commonly used solvents are toluene steady surface, such as a table.
and acetone. (Warning—Toluene, acetone, and many solvents
9.2 Tests are to be performed in a draft-free room or
are flammable. Health hazard. Dispose of solvents and waste
compartment.
material in accordance with local regulations.)
NOTE 5—A draft shield is recommended to prevent drafts from
disturbing the vapors above the test cup. This shield should cover at least
7.2 Materials Required for Application of Skin-prevention
three sides of the test cup vicinity. Some apparatus may already include a
Technique:
built-in draft shield.
7.2.1 Filter paper, qualitative, No. 417 or equivalent,
9.3 Wash the test cup with the cleaning solvent to remove
75 mm 6 1.01 mm (3.0 in. 6 0.04 in.) in diameter.
any test specimen or traces of gum or residue remaining from
7.2.2 Restraining Ring, made from metal wire, nominal
a previous test. If any deposits of carbon are present, they
dimensions: 210 mm (8.3 in.) long by 2.0 mm (0.08 in.) thick,
should be removed with a material such as a very fine grade of
with the following configuration: circular, 62 mm to 63 mm
steel wool. Ensure that the test cup is completely clean and dry
(2.4 in. to 2.5 in.) outside diameter, with its 15 mm (0.6 in.)
before using again. If necessary, flush the test cup with cold
straight, open ends folded inwards such that they are 15 mm
water and dry for a few minutes over an open flame or a hot
(0.6 in.) apart and parallel to each other.
plate to remove the last traces of solvent and water. Cool the
7.2.3 Single-hole punch or equivalent, capable of making a
test cup to at least 56 °C (101 °F) below the expected flash
6.0 mm 6 1.0 mm (0.24 in. 6 0.04 in.) diameter hole in the
point before using.
center of the filter paper.
9.4 Support the temperature measuring device in a vertical
8. Sampling position with the bottom of the device located
1 1
6.4 mm 6 0.5 mm ( ⁄4 in. 6 ⁄50 in.) up from the bottom of the
8.1 Obtain a sample in accordance with the instructions
inside of the test cup and located at a point halfway between
given in Practices D140, D4057, D4177,or E300.
the center and the side of the test cup on a diameter perpen-
8.2 At least 50 mLof sample is required for each test. Refer
dicular to the arc (or line) of the sweep of the test flame and on
to Practice D4057.
thesideoppositetothetestflameapplicatormountingposition.
8.3 Erroneously high flash points may be obtained if pre- It is permissible for electronic temperature measuring devices
to be mounted in a non-vertical position provided that perfor-
cautions are not taken to avoid the loss of volatile material. Do
not open containers unnecessarily; this will prevent loss of mance is in accordance with the requirements given in 6.3.
NOTE6—TheimmersionlineengravedontheASTMorIPthermometer
volatile material and possible introduction of moisture. Do not
5 1
will be 2 mm 6 0.5 mm ( ⁄64 in. 6 ⁄50 in.) below the level of the rim of
make a transfer of the sample unless the sample temperature is
the cup when the thermometer is properly positioned.
at least 56 °C (101 °F) below the expected flash point. When
NOTE 7—Some automated apparatus are capable of positioning the
possible, flash point should be the first test performed on a
temperature measuring device automatically. Refer to the manufacturer’s
sample and the sample should be stored at low temperature.
instructions for proper installation and adjustment.
NOTE 2—Typical sample storage temperature is 18 °C to 25 °C (64 °F
9.5 Prepare the manual apparatus or the automated appara-
to 77 °F).
tus for operation according to the manufacturer’s instructions
8.4 Do not store samples in gas-permeable containers since
for calibrating, checking, and operating the equipment.
volatile material may diffuse through the walls of the enclo-
9.6 Skin Prevention Technique—Punch a 6.0 mm (0.24 in.)
sure. Samples in leaky containers are suspect and are not a
diameter hole in the center of the 7.5 cm (3.0 in.) diameter
source of valid results.
qualitative filter paper. Curl up the sides of the filter paper
8.5 Lighthydrocarbonsmaybepresentintheformofgases,
6.0 mm (0.24 in.) all around, and place it in the base of the test
such as propane or butane, and may not be detected by testing
cup, with the skirt facing upwards. Place the restraining ring
because of losses during sampling and filling of the test cup.
snugly over the curved portion of the filter paper in the base of
This is especially evident on heavy residuums or asphalts from
the cup.
solvent extraction processes.
NOTE 8—Restraining ring prevents the filter paper from rising upwards
during the test.
8.6 Samples of very viscous materials can be warmed until
they are reasonably fluid before they are tested. However, no
10. Calibration and Standardization
sample shall be heated more than is absolutely necessary. It
shall never be heated above a temperature of 56 °C (101 °F) 10.1 Adjust the automated flash point detection system,
below its expected flash point. When the sample has been when used, according to the manufacturer’s instructions.
D8254 − 19
NOTE 10—Some form of a level-gauge placed inside the test cup from
10.2 Calibrate the temperature measuring device according
over-the-top will help in meeting the sample sizing requirement.
to the manufacturer’s instructions.
11.2.2 Solidmaterialshallnotbeaddedtothetestcup.Solid
10.3 Verify the performance of the manual apparatus or the
or viscous samples shall be heated until they are fluid before
automated apparatus at least once per year by determining the
being poured into the test cup; however, the temperature of the
flash point of a certified reference material (CRM), such as
sample during heating shall not exceed 56 °C (101 °F) below
those listed in Annex A2, which is reasonably close to the
the expected flash point.
expected temperature range of the samples to be tested. The
11.2.3 Light the test flame and adjust it to a diameter of
material shall be tested according to the procedure of this test
1 3
3.2 mm to 4.8 mm ( ⁄8 in. to ⁄16 in.) or to the size of the
method, except that the test specimen shall be filled up to the
comparison bead, if one is mounted on the apparatus (see
filling-mark of the test cup, and filter paper shall not be used.
AnnexA1).(Warning—Gaspressuresuppliedtotheapparatus
The detected flash point obtained in 11.2.9 or 11.3.5 shall be
mustnotbeallowedtoexceed3kPa(12in.)ofwaterpressure.)
reported after correction for barometric pressure (see Section
(Warning—Exercise care when using a gas test flame. If it
12).The flash point obtained shall be within the limits stated in
should be extinguished, it will not ignite the vapors in the test
Table A2.1 for the identified CRM or within the limits
cup, and the gas for the test flame that then enters the vapor
calculated for an unlisted CRM (see Annex A2).
space can influence the result.) (Warning—The operator shall
10.4 Once the performance of the apparatus has been
exercisecareandtakeappropriatesafetyprecautionsduringthe
verified, the flash point of secondary working standards
initial application of the test flame since test specimens
(SWSs) can be determined along with their control limits.
containing low-flash material can give an abnormally strong
These secondary materials can then be utilized for more
flash when the test flame is first applied.) (Warning—As a
frequent performance checks (see Annex A2).
safety practice, it is strongly advised, when using automated or
NOTE 9—The SWS is a material with a predetermined, interlaboratory
manual apparatus, before heating the test cup and specimen, to
tested,flashpointtemperaturethatisusedtoverifyproperoperationofthe
pass the test flame across the specimen in the test cup to check
apparatus.
for the presence of unexpected volatile material.) (Warning—
10.5 When the flash point obtained is not within the limits
The operator shall exercise care and take appropriate safety
stated in 10.3 or 10.4, check the condition and operation of the
precautions during the performance of this test method. The
apparatus to ensure conformity with the details listed in Annex
temperatures attained during this test, up to 400 °C (752 °F),
A1, especially in regard to the position of the temperature
are considered hazardous.)
measuring device, the application of the test flame, and the
NOTE 11—Some further preliminary test flame applications during the
heating rate. After adjustment of the apparatus, repeat the test
in
...




Questions, Comments and Discussion
Ask us and Technical Secretary will try to provide an answer. You can facilitate discussion about the standard in here.
Loading comments...