ASTM D6356/D6356M-98(2024)
(Test Method)Standard Test Method for Hydrogen Gas Generation of Aluminum Emulsified Asphalt Used as a Protective Coating for Roofing
Standard Test Method for Hydrogen Gas Generation of Aluminum Emulsified Asphalt Used as a Protective Coating for Roofing
SIGNIFICANCE AND USE
4.1 This procedure measures the amount of hydrogen gas generation potential of aluminized emulsion roof coating. There is the possibility of water reacting with aluminum pigment to generate hydrogen gas. This situation is to be avoided, so this test was designed to evaluate coating formulations and assess the propensity to gassing.
SCOPE
1.1 This test method covers a hydrogen gas and stability test for aluminum emulsified asphalt coatings.
1.2 The values stated in either SI units or inch-pound units are to be regarded separately as standard. The values stated in each system may not be exact equivalents; therefore, each system shall be used independently of the other. Combining values from the two systems may result in nonconformance with the standard.
1.3 This standard does not purport to address all of the safety concerns, if any, associated with its use. It is the responsibility of the user of this standard to establish appropriate safety, health, and environmental practices and determine the applicability of regulatory limitations prior to use.
1.4 This international standard was developed in accordance with internationally recognized principles on standardization established in the Decision on Principles for the Development of International Standards, Guides and Recommendations issued by the World Trade Organization Technical Barriers to Trade (TBT) Committee.
General Information
- Status
- Published
- Publication Date
- 30-Apr-2024
- Technical Committee
- D08 - Roofing and Waterproofing
Overview
ASTM D6356/D6356M-98(2024) is the internationally recognized standard test method for evaluating the hydrogen gas generation potential of aluminum emulsified asphalt coatings used as protective roofing materials. Developed by ASTM International, this standard ensures the safe and effective use of aluminized emulsion roof coatings by providing a consistent methodology to assess their stability, particularly the tendency to produce hydrogen gas when exposed to water. This is vital in roofing applications, where uncontrolled gas evolution could compromise both safety and product performance.
Key Topics
- Hydrogen Gas Generation Testing: The core of ASTM D6356/D6356M-98(2024) is the measurement of hydrogen gas evolution from aluminum emulsified asphalt coatings over a period of one week (168 hours), with results reported in milliliters.
- Stability of Coatings: The test identifies the potential for water in the coating to react with aluminum pigment, leading to hydrogen gas formation. Materials prone to excessive gassing are flagged for reformulation or alternative use.
- Laboratory Procedures: The standard outlines the precise sampling, test conditions (such as temperature control), apparatus, and measurement techniques for reliable and repeatable results.
- Safety and Compliance: Users are cautioned to implement appropriate health, safety, and environmental practices, as this method does not cover all potential safety concerns.
- International Alignment: The procedure was developed in line with global standardization guidelines, ensuring broader acceptance in trade and regulatory contexts.
Applications
ASTM D6356/D6356M-98(2024) is essential across multiple stages of the roofing industry:
- Formulation Development: Manufacturers use this test method to screen and optimize emulsified aluminum roof coatings, ensuring formulations minimize hydrogen gas production and maximize safety.
- Quality Control: Production batches can be routinely tested to verify they meet stability and safety criteria, supporting product consistency and regulatory compliance.
- Safety Assessment: By identifying coatings with higher gas evolution potential, specifiers and contractors can avoid materials that might pose fire or structural risks due to trapped hydrogen gas.
- Regulatory Documentation: Results from this test method help document product safety for building code compliance and for submission in international markets.
Related Standards
For comprehensive quality assurance and compatibility in roofing systems, consider these related ASTM standards:
- ASTM D1079: Terminology Relating to Roofing and Waterproofing – provides terminology relevant to this and other roofing standards.
- ASTM D2939 (Withdrawn 2012): Test Methods for Emulsified Bitumens Used as Protective Coatings – referenced for sampling procedures.
- ASTM E1: Specification for ASTM Liquid-in-Glass Thermometers – specifies thermometers suitable for temperature control in the test method.
Practical Value
By following ASTM D6356/D6356M-98(2024), industry professionals can:
- Enhance the reliability and safety of aluminum emulsified asphalt coatings in roofing applications
- Reduce risk of unexpected hydrogen gas build-up, which can affect roof integrity and workplace safety
- Demonstrate consistent product performance for customers and regulatory authorities
- Facilitate international marketing by adhering to a globally recognized testing protocol
For manufacturers, specifiers, and roofing contractors, conformance to ASTM D6356/D6356M-98(2024) is integral to ensuring product quality, performance, and regulatory acceptance in modern roofing systems utilizing aluminum emulsified asphalts.
Buy Documents
ASTM D6356/D6356M-98(2024) - Standard Test Method for Hydrogen Gas Generation of Aluminum Emulsified Asphalt Used as a Protective Coating for Roofing
Get Certified
Connect with accredited certification bodies for this standard

ICC Evaluation Service
Building products evaluation and certification.

QAI Laboratories
Building and construction product testing and certification.

Aboma Certification B.V.
Specialized in construction, metal, and transport sectors.
Sponsored listings
Frequently Asked Questions
ASTM D6356/D6356M-98(2024) is a standard published by ASTM International. Its full title is "Standard Test Method for Hydrogen Gas Generation of Aluminum Emulsified Asphalt Used as a Protective Coating for Roofing". This standard covers: SIGNIFICANCE AND USE 4.1 This procedure measures the amount of hydrogen gas generation potential of aluminized emulsion roof coating. There is the possibility of water reacting with aluminum pigment to generate hydrogen gas. This situation is to be avoided, so this test was designed to evaluate coating formulations and assess the propensity to gassing. SCOPE 1.1 This test method covers a hydrogen gas and stability test for aluminum emulsified asphalt coatings. 1.2 The values stated in either SI units or inch-pound units are to be regarded separately as standard. The values stated in each system may not be exact equivalents; therefore, each system shall be used independently of the other. Combining values from the two systems may result in nonconformance with the standard. 1.3 This standard does not purport to address all of the safety concerns, if any, associated with its use. It is the responsibility of the user of this standard to establish appropriate safety, health, and environmental practices and determine the applicability of regulatory limitations prior to use. 1.4 This international standard was developed in accordance with internationally recognized principles on standardization established in the Decision on Principles for the Development of International Standards, Guides and Recommendations issued by the World Trade Organization Technical Barriers to Trade (TBT) Committee.
SIGNIFICANCE AND USE 4.1 This procedure measures the amount of hydrogen gas generation potential of aluminized emulsion roof coating. There is the possibility of water reacting with aluminum pigment to generate hydrogen gas. This situation is to be avoided, so this test was designed to evaluate coating formulations and assess the propensity to gassing. SCOPE 1.1 This test method covers a hydrogen gas and stability test for aluminum emulsified asphalt coatings. 1.2 The values stated in either SI units or inch-pound units are to be regarded separately as standard. The values stated in each system may not be exact equivalents; therefore, each system shall be used independently of the other. Combining values from the two systems may result in nonconformance with the standard. 1.3 This standard does not purport to address all of the safety concerns, if any, associated with its use. It is the responsibility of the user of this standard to establish appropriate safety, health, and environmental practices and determine the applicability of regulatory limitations prior to use. 1.4 This international standard was developed in accordance with internationally recognized principles on standardization established in the Decision on Principles for the Development of International Standards, Guides and Recommendations issued by the World Trade Organization Technical Barriers to Trade (TBT) Committee.
ASTM D6356/D6356M-98(2024) is classified under the following ICS (International Classification for Standards) categories: 91.100.50 - Binders. Sealing materials. The ICS classification helps identify the subject area and facilitates finding related standards.
ASTM D6356/D6356M-98(2024) is available in PDF format for immediate download after purchase. The document can be added to your cart and obtained through the secure checkout process. Digital delivery ensures instant access to the complete standard document.
Standards Content (Sample)
This international standard was developed in accordance with internationally recognized principles on standardization established in the Decision on Principles for the
Development of International Standards, Guides and Recommendations issued by the World Trade Organization Technical Barriers to Trade (TBT) Committee.
Designation: D6356/D6356M − 98 (Reapproved 2024)
Standard Test Method for
Hydrogen Gas Generation of Aluminum Emulsified Asphalt
Used as a Protective Coating for Roofing
This standard is issued under the fixed designation D6356/D6356M; the number immediately following the designation indicates the
year of original adoption or, in the case of revision, the year of last revision. A number in parentheses indicates the year of last
reapproval. A superscript epsilon (´) indicates an editorial change since the last revision or reapproval.
1. Scope the volume in millilitres of hydrogen gas evolved is measured.
The test is conducted for one week (168 h) with a reading taken
1.1 This test method covers a hydrogen gas and stability test
every 24 h. The test room is to be maintained at 73.4 6 3.6 °F
for aluminum emulsified asphalt coatings.
in order to standardize gas collection temperature in the burette
1.2 The values stated in either SI units or inch-pound units
recepticle.
are to be regarded separately as standard. The values stated in
each system may not be exact equivalents; therefore, each
4. Significance and Use
system shall be used independently of the other. Combining
4.1 This procedure measures the amount of hydrogen gas
values from the two systems may result in nonconformance
generation potential of aluminized emulsion roof coating.
with the standard.
There is the possibility of water reacting with aluminum
1.3 This standard does not purport to address all of the
pigment to generate hydrogen gas. This situation is to be
safety concerns, if any, associated with its use. It is the
avoided, so this test was designed to evaluate coating formu-
responsibility of the user of this standard to establish appro-
lations and assess the propensity to gassing.
priate safety, health, and environmental practices and deter-
mine the applicability of regulatory limitations prior to use.
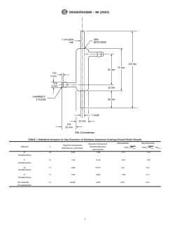
5. Apparatus and Materials
1.4 This international standard was developed in accor-
dance with internationally recognized principles on standard- 5.1 The assembly of the hydrogen gas generation test
ization established in the Decision on Principles for the apparatus is illustrated in Fig. 1. Details of the component part
Development of International Standards, Guides and Recom- are as follows:
mendations issued by the World Trade Organization Technical
5.1.1 Wide-Mouth Glass Erlenmeyer Flask, 250 mL capac-
Barriers to Trade (TBT) Committee.
ity.
5.1.2 Beaker, glass, 250 mL.
2. Referenced Documents
5.1.3 Burette, standard glass 100 mL graduated with glass
2.1 ASTM Standards:
stopcock and 0.2 mL divisions.
D1079 Terminology Relating to Roofing and Waterproofing
5.1.4 Condenser, glass jacketed, having the dimensions
D2939 Test Methods for Emulsified Bitumens Used as
shown in Fig. 2.
Protective Coatings (Withdrawn 2012)
5.1.5 Glass Tubing, standard glass 6.35 mm [ ⁄4 in.] inside
E1 Specification for ASTM Liquid-in-Glass Thermometers
diameter 7.94 mm [ ⁄16 in.] outside diameter and 127 mm
[5 in.] length for forming the J-tube.
3. Summary of Test Method
5.1.6 Tubing, pure latex amber rubber tubing, 6.35 mm
3.1 A 200 g sample of water-based aluminized coating is
[ ⁄4 in.].
heated to 51.7 6 1 °C [125 6 2 °F] in an Erlenmeyer flask and
5.1.7 Neoprene Rubber Stopper, No. 8 with one hole (pre-
ferred connection for glass condenser to 250 mL Erlenmeyer
This test method is under the jurisdiction of ASTM Committee D08 on Roofing
flask).
and Waterproofing and is the direct responsibility of Subcommittee D08.09 on
5.1.8 Oil or Water Bath—Constant temperature immersion
Liquid Applied Coatings for Roofing and Asphaltic Concrete Pavement.
Current edition approved May 1, 2024. Published May 2024. Originally
circulating bath capable of temperature control.
approved in 1998. Last previous edition approved in 2018 as D6356/D6356M – 98
5.1.9 Oil—Commercially available mineral oil or suitable
(2018). DOI: 10.1520/D6356_D6356M-98R24.
2 heat transfer fluid.
For referenced ASTM standards, visit the ASTM website, www.astm.org, or
contact ASTM Customer Service at service@astm.org. For Annual Book of ASTM
5.1.10 Thermometer—ASTM thermometer having a range
Standards volume information, refer to the standard’s Document Summary page on
from –2 to + 80 °C [30 to 180 °F] and
...




Questions, Comments and Discussion
Ask us and Technical Secretary will try to provide an answer. You can facilitate discussion about the standard in here.
Loading comments...