ASTM C717-19
(Terminology)Standard Terminology of Building Seals and Sealants
Standard Terminology of Building Seals and Sealants
SCOPE
1.1 This standard describes terms and definitions and descriptions of terms used in test methods, specifications, guides, and practices (related to building seals and sealants) consistent with the scope and areas of interest of ASTM Committee C24.
1.2 Definitions and descriptions of terms are written to ensure that building seals and sealants standards are properly understood and interpreted.
1.3 This international standard was developed in accordance with internationally recognized principles on standardization established in the Decision on Principles for the Development of International Standards, Guides and Recommendations issued by the World Trade Organization Technical Barriers to Trade (TBT) Committee.
General Information
- Status
- Published
- Publication Date
- 28-Feb-2019
- Technical Committee
- C24 - Building Seals and Sealants
- Drafting Committee
- C24.01 - Terminology of Building Seals and Sealants
Relations
- Effective Date
- 01-Mar-2019
- Effective Date
- 01-Feb-2024
- Effective Date
- 01-Jan-2024
- Effective Date
- 01-Nov-2023
- Effective Date
- 01-May-2020
- Effective Date
- 01-Jan-2020
- Effective Date
- 01-Aug-2019
- Effective Date
- 01-Aug-2019
- Effective Date
- 15-Apr-2019
- Effective Date
- 01-Feb-2019
- Effective Date
- 15-Dec-2018
- Effective Date
- 15-Dec-2018
- Effective Date
- 01-Dec-2018
- Effective Date
- 01-Nov-2018
- Effective Date
- 01-Jul-2018
Overview
ASTM C717-19: Standard Terminology of Building Seals and Sealants is an international standard developed by ASTM International to provide uniform terms and definitions for use in test methods, specifications, guides, and practices related to building seals and sealants. Developed under the guidance of ASTM Committee C24, this terminology standard ensures clarity and consistency across industry documents, enabling professionals to accurately interpret and apply other standards and technical literature referencing building sealing materials and techniques.
This standard supports the global building and construction industry by using internationally recognized standardization principles, aligning with guidelines like the World Trade Organization’s TBT Committee recommendations.
Key Topics
ASTM C717-19 covers a comprehensive range of terminology specific to building seals and sealants, including:
- Definitions and Terms: Precise descriptions for terms commonly encountered in building sealant-related documents. Examples include “adhesive failure,” “sealant,” “joint,” “cure,” “durability,” “modulus,” “gasket,” and “weatherability.”
- Consistency in Usage: Ensures that terms are used uniformly across various technical papers and standards, improving communication among architects, engineers, manufacturers, builders, and quality assurance professionals.
- Field-Specific Limitations: Where terms have broader use in multiple areas of construction or materials science, ASTM C717 specifies scope by prefacing definitions accordingly (e.g., “in building construction”).
- Term Descriptions: For some terms, the standard provides special-purpose definitions, offering deeper clarity for their use in other ASTM standards relevant to building seals and sealants.
Applications
Proper terminology is crucial in the construction and building materials sectors for:
- Design and Specification: Architects and designers rely on standardized language to specify sealant and joint types, ensuring that project requirements are accurately communicated.
- Product Selection and Testing: Manufacturers and testing laboratories use these definitions for quality control purposes, test method development, and product performance evaluations.
- Construction and Installation: Contractors and installers reference these terms in project documentation and during application processes to minimize confusion and avoid potential errors on the job site.
- Code Compliance and Inspection: Inspectors and regulatory agencies reference standard terminology to assess compliance with industry regulations and ensure best practices.
- Education and Training: Industry trainers, technical writers, and educators use this standard to build curriculum materials for professionals working with building envelope systems.
By ensuring everyone is "speaking the same language," ASTM C717-19 reduces ambiguity and streamlines international collaboration, procurement, and product comparison in the global construction market.
Related Standards
ASTM C717-19 is foundational to a suite of related standards in the area of building seals and sealants, including:
- ASTM C509 - Specification for Elastomeric Cellular Preformed Gasket and Sealing Material
- ASTM C542 - Specification for Lock-Strip Gaskets
- ASTM C961 - Test Method for Lap Shear Strength of Sealants
- ASTM C1021 - Practice for Laboratories Engaged in Testing of Building Sealants
- ASTM C1193 - Guide for Use of Joint Sealants
- ASTM E631 - Terminology of Building Constructions
Additionally, terminology from ASTM standards relating to plastics, rubber, roofing, and waterproofing is referenced for cross-disciplinary consistency.
Keywords: ASTM C717-19, building seals, sealants terminology, construction standards, ASTM Committee C24, building envelope, joint sealants, building materials standards, sealant applications, standard definitions, quality assurance, building industry compliance.
Buy Documents
ASTM C717-19 - Standard Terminology of Building Seals and Sealants
REDLINE ASTM C717-19 - Standard Terminology of Building Seals and Sealants
Get Certified
Connect with accredited certification bodies for this standard

ICC Evaluation Service
Building products evaluation and certification.

QAI Laboratories
Building and construction product testing and certification.

Aboma Certification B.V.
Specialized in construction, metal, and transport sectors.
Sponsored listings
Frequently Asked Questions
ASTM C717-19 is a standard published by ASTM International. Its full title is "Standard Terminology of Building Seals and Sealants". This standard covers: SCOPE 1.1 This standard describes terms and definitions and descriptions of terms used in test methods, specifications, guides, and practices (related to building seals and sealants) consistent with the scope and areas of interest of ASTM Committee C24. 1.2 Definitions and descriptions of terms are written to ensure that building seals and sealants standards are properly understood and interpreted. 1.3 This international standard was developed in accordance with internationally recognized principles on standardization established in the Decision on Principles for the Development of International Standards, Guides and Recommendations issued by the World Trade Organization Technical Barriers to Trade (TBT) Committee.
SCOPE 1.1 This standard describes terms and definitions and descriptions of terms used in test methods, specifications, guides, and practices (related to building seals and sealants) consistent with the scope and areas of interest of ASTM Committee C24. 1.2 Definitions and descriptions of terms are written to ensure that building seals and sealants standards are properly understood and interpreted. 1.3 This international standard was developed in accordance with internationally recognized principles on standardization established in the Decision on Principles for the Development of International Standards, Guides and Recommendations issued by the World Trade Organization Technical Barriers to Trade (TBT) Committee.
ASTM C717-19 is classified under the following ICS (International Classification for Standards) categories: 01.040.91 - Construction materials and building (Vocabularies); 91.100.50 - Binders. Sealing materials. The ICS classification helps identify the subject area and facilitates finding related standards.
ASTM C717-19 has the following relationships with other standards: It is inter standard links to ASTM C717-18, ASTM D883-24, ASTM C961-15(2024), ASTM D883-23, ASTM D1079-20, ASTM D883-20, ASTM C964-19, ASTM D883-19c, ASTM D883-19a, ASTM D883-19, ASTM D1079-18, ASTM D1079-18e1, ASTM D883-18a, ASTM D883-18, ASTM D2102-02(2018). Understanding these relationships helps ensure you are using the most current and applicable version of the standard.
ASTM C717-19 is available in PDF format for immediate download after purchase. The document can be added to your cart and obtained through the secure checkout process. Digital delivery ensures instant access to the complete standard document.
Standards Content (Sample)
This international standard was developed in accordance with internationally recognized principles on standardization established in the Decision on Principles for the
Development of International Standards, Guides and Recommendations issued by the World Trade Organization Technical Barriers to Trade (TBT) Committee.
Designation:C717 −19
Standard Terminology of
Building Seals and Sealants
This standard is issued under the fixed designation C717; the number immediately following the designation indicates the year of
original adoption or, in the case of revision, the year of last revision. A number in parentheses indicates the year of last reapproval. A
superscript epsilon (´) indicates an editorial change since the last revision or reapproval.
1. Scope D883 Terminology Relating to Plastics
D1079 Terminology Relating to Roofing and Waterproofing
1.1 This standard describes terms and definitions and de-
D1565 Specification for Flexible Cellular Materials--Vinyl
scriptions of terms used in test methods, specifications, guides,
Chloride Polymers and Copolymers (Open-Cell Foam)
and practices (related to building seals and sealants) consistent
(Withdrawn 1998)
with the scope and areas of interest ofASTM Committee C24.
D1566 Terminology Relating to Rubber
1.2 Definitions and descriptions of terms are written to
D2102 Test Method for Shrinkage of Textile Fibers (Bundle
ensure that building seals and sealants standards are properly
Test)
understood and interpreted.
E631 Terminology of Building Constructions
1.3 This international standard was developed in accor-
dance with internationally recognized principles on standard-
3. Significance and Use
ization established in the Decision on Principles for the
3.1 Definitions:
Development of International Standards, Guides and Recom-
3.1.1 Terms and their related standard definitions in Section
mendations issued by the World Trade Organization Technical
4areintendedforuseuniformlyandconsistentlyinallbuilding
Barriers to Trade (TBT) Committee.
seals and sealants test methods, specifications, guides, and
practices. The purpose of such use is to promote a clear
2. Referenced Documents
understanding and interpretation of the standards in which they
2.1 ASTM Standards:
are used.
A644 Terminology Relating to Iron Castings
3.1.2 Definitions of terms are written in the broadest sense
C509 Specification for Elastomeric Cellular Preformed Gas-
possible, consistent with the intended meaning. Definitions
ket and Sealing Material
have not been limited to a specific technical field when they
C542 Specification for Lock-Strip Gaskets
can have a multi-field application.
C716 Specification for Installing Lock-Strip Gaskets and
3.1.3 The definition of a term that can have different
Infill Glazing Materials
meanings in different technical fields is preceded by a phrase
C797 Practices for Use of Oil- and Resin-Based Putty and
limiting it to the specific field intended, that is, “in building
Glazing Compounds (Withdrawn 2002)
construction.”
C961 Test Method for Lap Shear Strength of Sealants
C964 Guide for Lock-Strip Gasket Glazing
3.2 Description of Terms:
C1021 Practice for Laboratories Engaged in Testing of
3.2.1 Descriptions of Terms are special purpose definitions
Building Sealants
intended to provide a precise understanding and interpretation
C1193 Guide for Use of Joint Sealants
of the seals and sealants standards in which they are used.
3.2.2 A specific description of a term is applicable to the
standard or standards in which the term is described and used.
This terminology is under the jurisdiction of ASTM Committee C24 on
3.2.3 Each standard in which a term is used, in a specially
Building Seals and Sealants and is the direct responsibility of Subcommittee C24.01
on Terminology of Building Seals and Sealants.
defined manner, should list the term and its description under
The boldface designations refer to the original source of the definition and the
the subheading, descriptions of terms.
ASTM Technical Committee having jurisdiction.
Current edition approved March 1, 2019. Published March 2019. Originally
approved in 1972. Last previous edition approved in 2018 as C717 – 18. DOI:
4. Terminology
10.1520/C0717-19.
2 4.1 Terms and Definitions:
For referenced ASTM standards, visit the ASTM website, www.astm.org, or
contact ASTM Customer Service at service@astm.org. For Annual Book of ASTM
adhesive failure, n—in building construction, failure of the
Standards volume information, refer to the standard’s Document Summary page on
bond between a sealant and a substrate.
the ASTM website.
DISCUSSION—This definition pertains to interfacial adhesive failure, a
The last approved version of this historical standard is referenced on
www.astm.org. lack of bond at the interface between the materials. Interphasal
Copyright © ASTM International, 100 Barr Harbor Drive, PO Box C700, West Conshohocken, PA 19428-2959. United States
C717−19
adhesive failure, within the sealant or substrate near the interface, is
bed, n—See bedding.
less common and may appear to be interfacial without the use of
bedding, n—in building construction in glazing, a bead of
magnification.
sealant applied between a lite of glass or a panel and the
adhesion failure, n—use adhesive failure (preferred term).
stationary stop or sight bar of the sash or frame. It is usually
the first bead to be applied when setting glass or panels.
aerosol container, empty, n—in building construction,an
aerosol container is considered empty when the product flow
bite, n—in building construction in glazing, the effective
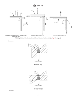
reaches 0.5 g per second or less.
structural contact dimension of a structural sealant. (See Fig.
1 and Fig. 2.)
back bedding, n—See bedding.
back putty, n—See bedding.
bloom, n—in building construction, a substance formed by
back-up material—See sealant backing.
blooming.
bead, n—in building construction, in sealants and glazing, a
strip of applied sealant, glazing compound, or putty.
blooming, v—in building construction, movement or diffusion
bed, v—in building construction in glazing, to apply a bead of of a component such as a plasticizer, monomer, unreacted
sealant between a lite of glass or a panel and the stationary polymer or other formulation ingredient to a seal or sealant
stops or sight bars of the sash or frame. surface.
FIG. 1Typical Structural Sealant Joint Configurations
C717−19
FIG. 2Applied Load Transfer at a Vertical Corner Structural Sealant Joint (see Fig. 1 for Legend)
bond breaker—in building construction, a material to prevent compound, n—an intimate mixture of all the ingredients
adhesion at a designated interface.Fig. 3.) necessary for a finished material or product.
crazed, adj—in building construction, having a random net-
caulk, v—in building construction, to install or apply a sealant
across or into a joint, crack, or crevice. work of cracks in a sealant surface which do not penetrate
through the body of the material.
caulk, n—See sealant.
crazed, adj—in building construction, exhibiting crazing.
caulking, n—See sealant.
caulking compound, n—See sealant.
crazing, n—in building construction, a network of fine cracks
cell, n—a single small cavity surrounded partially or com-
in the surface of a sealant.
pletely by walls. D1566;D11
DISCUSSION—Crazing may or may not affect product performance.
cellular material, n—a generic term for materials containing
crazing, v—in building construction, the formation of a
many cells (either open, closed, or both) dispersed through
network of random surface cracks in a sealant.
the mass. D1565, D1566;D11
creep, n—the time dependent part of a strain resulting from
chalk, n—in building construction, a powder formed by
stress. D1079; D08
chalking
cure, v—in building construction, to attain the intended per-
DISCUSSION—The powder is not necessarily white.
formance properties of a compound by means of
chalking, v—in building construction, formation of a powder
evaporation, chemical reaction, heat, radiation, or combina-
onthesurfaceofasealantthatiscausedbythedisintegration
tions thereof.
of the polymer or binding medium due to weathering.
cure, n—in building construction, the process by which a
DISCUSSION—Chalk on a light color sealant is often white, however a
compound attains its intended performance properties by
darker color can also exhibit chalking.
means of evaporation, chemical reaction, heat, radiation, or
closed cell, n—acelltotallyenclosedbyitswallsandhencenot
combinations thereof.
interconnecting with other cells. D883; D20
cure time, functional, n—in building construction, the period
closed cell material, n—a cellular material in which substan-
between application and the point in time that a sealant
tially all cells in the mass are closed cells.
attains properties necessary to perform a specific function or
in a given application.
cohesive failure, n—in building construction, failure charac-
DISCUSSION—Functional cure time does not imply complete devel-
terized by rupture within the sealant, adhesive, or coating.
opment of chemical, physical, or mechanical properties.
compatibility, n—in building construction, the capability of
cure time, laboratory, n—in building construction, the period
twoormorematerialstobeplacedincontact,ornearenough
between application and the point in time when laboratory
to interact, with no detrimental results.
testing of a sealant begins as set forth in the procedure of a
compatible materials, n—See compatibility. test method.
C717−19
DISCUSSION—A seal or sealant’s required functions may include
aesthetic,economic,andfunctionalperformanceconsiderations,among
others.
durability limit, n—see the preferred term, service life.
elastomer, n—for gaskets and couplings for plumbing and
sewer piping, a macromolecular material that returns rapidly
to approximately its original dimensions and shape after
substantial deformation by a weak force and release of the
force.
DISCUSSION—a) Elastomers are divided into two major polymer
systems-thermoset and theromplastic. b) In standards for rubber, the
word elastomer is not to be used interchangeably for the term “rubber”.
D1566;D11
elastomer, n—in building construction in glazing, a macromo-
lecular material, which deformed within its service tempera-
ture range, is capable of recovering substantially in size and
shape after removal of a deforming force.
elastomer, thermoplastic, n—a material having the general
properties of an elastomer and capable of being repeatedly
softened by heat and hardened to shape by cooling without
significant degradation of the polymer system.
DISCUSSION—Thermoplastic elastomers have some of the properties
of thermoset elastomers, but are typically more thermally and pressure
sensitive and more sensitive to solvents.
elastomer, thermoset, n—an elastomeric material that attains
its intended properties by an irreversible cross-linking reac-
tion caused by heat alone, heat with a cross-linking agent,
chemical interaction, or by radiation; whereby after cross-
linking, any reprocessing with heat and pressure will se-
verely degrade the material.
DISCUSSION—Cross-linking renders the material substantially in-
A—Sealant
B—Sealant backing soluble in organic solvents (can swell), less plastic, and with improved
C—Bond breaker
elastic and mechanical properties (compared to its uncured state) over
D—Joint
an extended temperature range.
E—Substrate face
F—Substrate edge
elastomeric, adj—having the characteristics of an elastomer.
FIG. 3 Butt Sealant Joint
elongation, n—extension produced by a tensile stress. D1566;
D11
cured, adj—in building construction, pertaining to the state of
extrudability, n—in building construction, the ability of a
a compound that has attained its intended performance
sealant under pressure to flow through an orifice.
properties by means of evaporation, chemical reaction, heat,
radiation, or combinations thereof.
flow, v—in building construction, the deformation of a tape
design life, n—in building construction, the period of time sealant under stress.
afterinstallationduringwhichasealorsealantisexpectedto
fluid migration, n—in building construction, accumulation of
perform its stated intended function(s) with proper mainte-
a fluid from a sealant on or in an adjacent material.
nance.
DISCUSSION—Migration of a non-fluid component can also occur.
DISCUSSION—Proper maintenance includes, among others, replace-
ment of discrete localized failures.
gasket, n—any preformed, deformable device designed to be
dirt pick-up, n—in building construction, soiling caused by a placed between two adjoining parts to provide a seal.
foreign material other than micro-organism growth that is
gasket, compression, n—a gasket designed to be used under
deposited on, adhered to, or embedded into a sealant.
compression.
DISCUSSION—Micro-organism growth can produce a similar appear-
ance.
gasket, lock-strip, n—in building construction, a gasket in
durability—in building construction, the ability of a seal or which sealing pressure is attained by inserting a keyed
sealant to perform its required functions over a period of locking strip into a mating keyed groove in one face of the
time within the environment to which it is exposed. gasket.
C717−19
glazing, v—in building construction,the installation of glass or glazing, structural sealant, n—in building construction,a
other materials in prepared openings. glazingsystemwhereinastructuralsealantisusedtotransfer
loads between a lite or panel and a supporting framework,
glazing, butt, n—in building construction, a glazing system
without mechanical fasteners or other methods of attach-
wherein butt joints are formed between lites and filled with
ment.
a glazing sealant.
glazing, two-side structural sealant, n—in building
glazing, compression, n—see glazing system, compression.
construction, a glazing system wherein two sides of a
rectangular-shaped lite or panel, usually opposing, are struc-
glazing, compression, v—in building construction, the act of
tural sealant glazed.
installing components into a compression glazing system.
glazing compound, n—in building construction in glazing, a
glazing, construction site, n—in building construction, the
putty material composed primarily of oil- or resin-based
installation of glass or panels into a metal framing system, at
ingredients used for sealing window glass in frames.
a construction site, under generally uncontrolled environ-
DISCUSSION—Historically these compounds cure primarily through
mental conditions.
solvent evaporation, oxidation or both. Compounds other than oil- or
resin-based can be used for glazing, though they may not have a
glazing, face, n—the method of glazing in which a rabbeted
putty-like consistency.
glazing recess, with no removable stop, is used and a
triangular bead of compound is applied to the face of the lite
glazing system, compression, n—in building construction,
and extended onto the recess.
gasket(s)oracombinationofsealant(s)andgasket(s)usedto
provide weather-tightness by way of continuous pressure on
glazing, factory, n—See glazing, shop.
the components in the joint.
glazing, field, n—See glazing, construction site.
glazing system, non-compression, n—in building
glazing, four-side structural sealant, n—in building
construction, a sealant or combination of sealant(s) used to
construction, a glazing system wherein all sides of a
rectangular-shaped lite or panel are structural sealant glazed. provide weather-tightness by way of the adhesive/cohesive
characteristics of the components in the joint.
glazing, needle—in building construction, the application of a
gun-grade, n—in building construction, a material of a suit-
small bead of a sealant at the sight line adhering to the sash
able viscosity to extrude through the nozzle of a hand- or
and glass or panel by means of a nozzle with an orifice not
power-operated device.
exceeding 3.18 mm [ ⁄8 in.] in diameter.
hardness, n—in building construction, the resistance to inden-
glazing, non-compression, n—see glazing system, non-
tation as measured under specified conditions. A644; A04
compression.
hydrostatic pressure, n—a state of stress in which all the
glazing, non-compression, v—in building construction, the
principal stresses are equal (and there is no shear stress), as
act of installing components into a non-compression glazing
in a liquid at rest; the product of the unit weight of the liquid
system.
and the difference in elevation between the given point and
glazing, protective, n—in building construction, systems with
the free liquid elevation.
glazed openings that are designed to mitigate the effects of
joint, n—in building construction, the space or opening be-
bomb blasts, projectiles, natural disasters, or forced entry.
tween two or more adjoining surfaces.
DISCUSSION—Protective glazing systems assist in the mitigation of
the potential for hazardous debris dispersal from natural disasters,
joint, butt, n—See sealant joint, butt (See Fig. 3).
withstand projectile impact and resist unauthorized human entry
through glazed openings. Protective glazing systems include the
joint, construction, n—in building construction, a formed or
selection of an appropriate glazing material, the design of metal
assembled joint at a predetermined location where two
framing members and their anchorages, and the retention of the glazing
successive placements (“lifts”) of concrete meet.
material within the framing all to resist a specified threat.
DISCUSSION—Frequently a keyway or reinforcement is placed across
glazing, shop, n—in building construction, the installation of
the joint. With proper design, this joint may also function as a control
glass or panels into a metal framing system under controlled
or an isolation joint.
environmental conditions.
joint, control, n—in building construction, a formed, sawed,
DISCUSSION—Shop glazing typically occurs at a location remote to a
tooled, or assembled joint acting to regulate the location and
construction site. However, shop glazing can be performed at the
degree of cracking and separation resulting from the dimen-
construction site if acceptable to the code authority and provided
appropriate management controls and environmental conditions are sional change of different elements of a structure.
maintained.
DISCUSSION—The joint is usually installed in concrete and concrete
masonry construction to induce controlled cracking at preselected
glazing, stopless—See glazing, structural sealant, the pre-
locations or where a concentration of stresses is expected.
ferred term.
joint, expansion, n—in building construction, a formed or
DISCUSSION—Inappropriately used to describe structural sealant glaz-
ing. assembled joint at a predetermined location, which prevent
C717−19
the transfer of forces across the joint as a result of movement joint filler, n—a compressible material used in a partial or
or dimensional change of different elements of a structure or totally filled expansion, control, or isolation joint by its
building. permanent placement in or between building materials such
as concrete or masonry during construction; sometimes used
joint, fillet bead, n—Use sealant joint, fillet (preferred term)
as a sealant backing in a partially filled joint.
(See Fig. 4).
joint seal, expansion, n—in building construction, a seal or
joint, isolation, n—in building construction, a formed or
sealant system that provides an elastic, compressible, or
assembled joint specifically intended to separate and prevent
flexible barrier to the passage of gases, liquids, or solids.
the bonding of one element of a structure to another and
having little or no transference of movement or vibration
knife-grade, n—in building construction, a compound of such
across the joint. consistencythatitisgenerallyappliedwithaknifeorspatula
hand tool.
joint backing—See sealant backing.
laitance, n—in building construction, a weak layer of cement
and aggregate fines on a concrete surface that is usually
caused by an overwet mixture, overworking the mixture,
improper or excessive finishing, or combinations thereof.
light, n—Use lite (preferred term).
lite, n—one piece of glazing (also spelled light), synonym:
pane. E631
modulus, n—as related to sealants used in building
construction, the stress (force/unit area) at a corresponding
strain (elongation) expressed as a percent of the original
dimension.
DISCUSSION—Whenthestresstostrainvaluesareexpressedasaratio,
this describes the slope of a line tangent to the given point on the
stress-strain curve. This is the tangent modulus.
modulus, secant—slope of the line connecting the origin and
a given point of the stress-strain curve.
modulus, tangent, n—the slope of the line touching (tangent
to) the stress-strain curve at a given point on the curve.
muntin, n—a secondary intermediate member subdividing a
glazed area.
necking, n—in building construction, the localized reduction
in cross section that may occur in a material under stress.
D883; D20
open cell, n—a cell not totally enclosed by its walls and hence
interconnecting with other cells. D1566;D11
open cell material, n—a cellular material in which substan-
tially all cells in the mass are open cells.
outgassing, n—the emission of occluded gasses from a mate-
rial by vacuum, heat, or pressure.
DISCUSSION—As applied to sealant backing materials contained
within a filled joint, outgassing may occur when it is compressed or
punctured causing gas bubbles to form in the overlying sealant.
pane, n—See lite.
pot life—See working life.
A—Sealant
post dispensing contraction, n—in building construction, the
B—Sealant backing
C—Bond breaker volumetric decrease of a sealant that occurs between dis-
D—Joint
pensing and cure.
E—Substrate face
F—Substrate edge
post dispensing expansion, n—in building construction, the
volumetricincreaseofasealantthatoccursbetweendispens-
FIG. 4 Fillet Sealant Joints ing and cure.
C717−19
premature failure, n—in building construction, service life seal, building—See seal.
shorter than design life. seal, compression, n—a seal which is attained by a compres-
sive force on the sealing material.
primer—in building construction, a compatible coating de-
signed to enhance adhesion. sealant—in building construction, a material that has the
adhesive and cohesive properties to form a seal.
putty, n—in building construction, a knife-grade compound
generally used as a glazing compound or to fill cracks or sealant, aerosol foam, n—in building construction, a sealant
holes. that expands in volume as it is dispensed from a container,
using propellant under pressure, to form a rigid or semi-rigid
rabbet, n—a two-sided, L-shaped, recess in a sash or frame
cellular mass.
designed to receive glazing.
DISCUSSION—Provides a fixed stop in the sash or frame. sealant, aerosol foam, straw-type, n—in building
construction, an aerosol foam sealant that is extruded
reversion, n—in building construction in joint sealing, a loss
through a narrow tube.
of elastomeric properties and a decrease in durometer
DISCUSSION—A straw-type dispenser is attached to the valve of the
hardness of a seal or cured sealant following environmental
container and is controlled by a lever actuator-connector.
exposure.
sealant, chemically curing, n—in building construction,a
DISCUSSION—Softening and the ability to permanently reshape a seal
compound that cures primarily through chemical reaction.
or sealant usually characterizes reversion. Depending on a specific seal
or sealant formulation, high heat, ultraviolet radiation, or moisture (as
sealant, emulsion —See sealant, latex.
a liquid or vapor) may cause reversion acting either alone or in
sealant, hot-applied, n—in building construction,acompound
combination. The seal and sealant industry is not in agreement on
reversion causes.
that is applied in a molten state and cures primarily by
cooling to ambient temperatures.
rubber, dense, n—in building construction, a solid rubber
DISC
...
This document is not an ASTM standard and is intended only to provide the user of an ASTM standard an indication of what changes have been made to the previous version. Because
it may not be technically possible to adequately depict all changes accurately, ASTM recommends that users consult prior editions as appropriate. In all cases only the current version
of the standard as published by ASTM is to be considered the official document.
Designation: C717 − 18 C717 − 19
Standard Terminology of
Building Seals and Sealants
This standard is issued under the fixed designation C717; the number immediately following the designation indicates the year of
original adoption or, in the case of revision, the year of last revision. A number in parentheses indicates the year of last reapproval. A
superscript epsilon (´) indicates an editorial change since the last revision or reapproval.
1. Scope
1.1 This standard describes terms and definitions and descriptions of terms used in test methods, specifications, guides, and
practices (related to building seals and sealants) consistent with the scope and areas of interest of ASTM Committee C24.
1.2 Definitions and descriptions of terms are written to ensure that building seals and sealants standards are properly understood
and interpreted.
1.3 This international standard was developed in accordance with internationally recognized principles on standardization
established in the Decision on Principles for the Development of International Standards, Guides and Recommendations issued
by the World Trade Organization Technical Barriers to Trade (TBT) Committee.
2. Referenced Documents
2.1 ASTM Standards:
A644 Terminology Relating to Iron Castings
C509 Specification for Elastomeric Cellular Preformed Gasket and Sealing Material
C542 Specification for Lock-Strip Gaskets
C716 Specification for Installing Lock-Strip Gaskets and Infill Glazing Materials
C797 Practices for Use of Oil- and Resin-Based Putty and Glazing Compounds (Withdrawn 2002)
C961 Test Method for Lap Shear Strength of Sealants
C964 Guide for Lock-Strip Gasket Glazing
C1021 Practice for Laboratories Engaged in Testing of Building Sealants
C1193 Guide for Use of Joint Sealants
D883 Terminology Relating to Plastics
D1079 Terminology Relating to Roofing and Waterproofing
D1565 Specification for Flexible Cellular Materials--Vinyl Chloride Polymers and Copolymers (Open-Cell Foam) (Withdrawn
1998)
D1566 Terminology Relating to Rubber
D2102 Test Method for Shrinkage of Textile Fibers (Bundle Test)
E631 Terminology of Building Constructions
3. Significance and Use
3.1 Definitions:
3.1.1 Terms and their related standard definitions in Section 4 are intended for use uniformly and consistently in all building
seals and sealants test methods, specifications, guides, and practices. The purpose of such use is to promote a clear understanding
and interpretation of the standards in which they are used.
3.1.2 Definitions of terms are written in the broadest sense possible, consistent with the intended meaning. Definitions have not
been limited to a specific technical field when they can have a multi-field application.
This terminology is under the jurisdiction of ASTM Committee C24 on Building Seals and Sealants and is the direct responsibility of Subcommittee C24.01 on
Terminology of Building Seals and Sealants.
The boldface designations refer to the original source of the definition and the ASTM Technical Committee having jurisdiction.
Current edition approved March 1, 2018March 1, 2019. Published April 2018March 2019. Originally approved in 1972. Last previous edition approved in 20172018 as
C717 – 17a.C717 – 18. DOI: 10.1520/C0717-18.10.1520/C0717-19.
For referenced ASTM standards, visit the ASTM website, www.astm.org, or contact ASTM Customer Service at service@astm.org. For Annual Book of ASTM Standards
volume information, refer to the standard’s Document Summary page on the ASTM website.
The last approved version of this historical standard is referenced on www.astm.org.
Copyright © ASTM International, 100 Barr Harbor Drive, PO Box C700, West Conshohocken, PA 19428-2959. United States
C717 − 19
3.1.3 The definition of a term that can have different meanings in different technical fields is preceded by a phrase limiting it
to the specific field intended, that is, “in building construction.”
3.2 Description of Terms:
3.2.1 Descriptions of Terms are special purpose definitions intended to provide a precise understanding and interpretation of the
seals and sealants standards in which they are used.
3.2.2 A specific description of a term is applicable to the standard or standards in which the term is described and used.
3.2.3 Each standard in which a term is used, in a specially defined manner, should list the term and its description under the
subheading, descriptions of terms.
4. Terminology
4.1 Terms and Definitions:
adhesive failure, n—in building construction, failure of the bond between a sealant and a substrate.
DISCUSSION—
This definition pertains to interfacial adhesive failure, a lack of bond at the interface between the materials. Interphasal adhesive failure, within the
sealant or substrate near the interface, is less common and may appear to be interfacial without the use of magnification.
adhesion failure, n—use adhesive failure (preferred term).
aerosol container, empty, n—in building construction, an aerosol container is considered empty when the product flow reaches
0.5 g per second or less.
back bedding,n—See bedding.
back putty,n—See bedding.
back-up material—See sealant backing.
bead, n—in building construction, in sealants and glazing, a strip of applied sealant, glazing compound, or putty.
bed, v—in building construction in glazing, to apply a bead of sealant between a lite of glass or a panel and the stationary stops
or sight bars of the sash or frame.
bed,n—See bedding.
bedding, n—in building construction in glazing, a bead of sealant applied between a lite of glass or a panel and the stationary stop
or sight bar of the sash or frame. It is usually the first bead to be applied when setting glass or panels.
bite, n—in building construction in glazing, the effective structural contact dimension of a structural sealant. (See Fig. 1 and Fig.
2.)
bloom, n—in building construction, a substance formed by blooming.
blooming, v—in building construction, movement or diffusion of a component such as a plasticizer, monomer, unreacted polymer
or other formulation ingredient to a seal or sealant surface.
bond breaker—in building construction, a material to prevent adhesion at a designated interface.Fig. 3.)
caulk, v—in building construction, to install or apply a sealant across or into a joint, crack, or crevice.
caulk,n—See sealant.
caulking,n—See sealant.
caulking compound,n—See sealant.
cell, n—a single small cavity surrounded partially or completely by walls. D1566; D11
cellular material, n—a generic term for materials containing many cells (either open, closed, or both) dispersed through the mass.
D1565, D1566; D11
chalk, n—in building construction, a powder formed by chalking
DISCUSSION—
The powder is not necessarily white.
chalking, v—in building construction, formation of a powder on the surface of a sealant that is caused by the disintegration of the
polymer or binding medium due to weathering.
DISCUSSION—
C717 − 19
FIG. 1 Typical Structural Sealant Joint Configurations
Chalk on a light color sealant is often white, however a darker color can also exhibit chalking.
closed cell, n—a cell totally enclosed by its walls and hence not interconnecting with other cells. D883; D20
closed cell material, n—a cellular material in which substantially all cells in the mass are closed cells.
cohesive failure, n—in building construction, failure characterized by rupture within the sealant, adhesive, or coating.
compatibility, n—in building construction, the capability of two or more materials to be placed in contact, or near enough to
interact, with no detrimental results.
compatible materials, n—See compatibility.
compound, n—an intimate mixture of all the ingredients necessary for a finished material or product.
crazed, adj—in building construction, having a random network of cracks in a sealant surface which do not penetrate through the
body of the material.
crazed, adj—in building construction, exhibiting crazing.
crazing, n—in building construction, a network of fine cracks in the surface of a sealant.
C717 − 19
FIG. 2 Applied Load Transfer at a Vertical Corner Structural Sealant Joint (see Fig. 1 for Legend)
DISCUSSION—
A—Sealant
C717 − 19
B—Sealant backing
C—Bond breaker
D—Joint
E—Substrate face
F—Substrate edge
FIG. 3 Butt Sealant Joint
Crazing may or may not affect product performance.
crazing, v—in building construction, the formation of a network of random surface cracks in a sealant.
creep, n—the time dependent part of a strain resulting from stress. D1079; D08
cure, v—in building construction, to attain the intended performance properties of a compound by means of evaporation, chemical
reaction, heat, radiation, or combinations thereof.
cure, n—in building construction, the process by which a compound attains its intended performance properties by means of
evaporation, chemical reaction, heat, radiation, or combinations thereof.
cure time, functional, n—in building construction, the period between application and the point in time that a sealant attains
properties necessary to perform a specific function or in a given application.
DISCUSSION—
Functional cure time does not imply complete development of chemical, physical, or mechanical properties.
cure time, laboratory, n—in building construction, the period between application and the point in time when laboratory testing
of a sealant begins as set forth in the procedure of a test method.
cured, adj—in building construction, pertaining to the state of a compound that has attained its intended performance properties
by means of evaporation, chemical reaction, heat, radiation, or combinations thereof.
design life, n—in building construction, the period of time after installation during which a seal or sealant is expected to perform
its stated intended function(s) with proper maintenance.
DISCUSSION—
Proper maintenance includes, among others, replacement of discrete localized failures.
dirt pick-up, n—in building construction, soiling caused by a foreign material other than micro-organism growth that is deposited
on, adhered to, or embedded into a sealant.
DISCUSSION—
Micro-organism growth can produce a similar appearance.
durability—in building construction, the ability of a seal or sealant to perform its required functions over a period of time within
the environment to which it is exposed.
DISCUSSION—
A seal or sealant’s required functions may include aesthetic, economic, and functional performance considerations, among others.
durability limit, n—see the preferred term, service life.
elastomer, n—for gaskets and couplings for plumbing and sewer piping, a macromolecular material that returns rapidly to
approximately its original dimensions and shape after substantial deformation by a weak force and release of the force.
DISCUSSION—
a) Elastomers are divided into two major polymer systems-thermoset and theromplastic. b) In standards for rubber, the word elastomer is not to be
used interchangeably for the term “rubber”. D1566; D11
elastomer, n—in building construction in glazing, a macromolecular material, which deformed within its service temperature
range, is capable of recovering substantially in size and shape after removal of a deforming force.
C717 − 19
elastomer, thermoplastic, n—a material having the general properties of an elastomer and capable of being repeatedly softened
by heat and hardened to shape by cooling without significant degradation of the polymer system.
DISCUSSION—
Thermoplastic elastomers have some of the properties of thermoset elastomers, but are typically more thermally and pressure sensitive and more
sensitive to solvents.
elastomer, thermoset, n—an elastomeric material that attains its intended properties by an irreversible cross-linking reaction
caused by heat alone, heat with a cross-linking agent, chemical interaction, or by radiation; whereby after cross-linking, any
reprocessing with heat and pressure will severely degrade the material.
DISCUSSION—
Cross-linking renders the material substantially insoluble in organic solvents (can swell), less plastic, and with improved elastic and mechanical
properties (compared to its uncured state) over an extended temperature range.
elastomeric, adj—having the characteristics of an elastomer.
elongation, n—extension produced by a tensile stress. D1566; D11
extrudability, n—in building construction, the ability of a sealant under pressure to flow through an orifice.
flow, v—in building construction, the deformation of a tape sealant under stress.
fluid migration, n—in building construction, accumulation of a fluid from a sealant on or in an adjacent material.
DISCUSSION—
Migration of a non-fluid component can also occur.
gasket, n—any preformed, deformable device designed to be placed between two adjoining parts to provide a seal.
gasket, compression, n—a gasket designed to be used under compression.
gasket, lock-strip, n—in building construction, a gasket in which sealing pressure is attained by inserting a keyed locking strip
into a mating keyed groove in one face of the gasket.
glazing, v—in building construction, the installation of glass or other materials in prepared openings.
glazing, butt, n—in building construction, a glazing system wherein butt joints are formed between lites and filled with a glazing
sealant.
glazing, compression,n—see glazing system, compression.
glazing, compression, v—in building construction, the act of installing components into a compression glazing system.
glazing, construction site, n—in building construction, the installation of glass or panels into a metal framing system, at a
construction site, under generally uncontrolled environmental conditions.
glazing, face, n—the method of glazing in which a rabbeted glazing recess, with no removable stop, is used and a triangular bead
of compound is applied to the face of the lite and extended onto the recess.
glazing, factory,n—See glazing, shop.
glazing, field,n—See glazing, construction site.
glazing, four-side structural sealant, n—in building construction, a glazing system wherein all sides of a rectangular-shaped lite
or panel are structural sealant glazed.
glazing, needle—in building construction, the application of a small bead of a sealant at the sight line adhering to the sash and
glass or panel by means of a nozzle with an orifice not exceeding 3.18 mm [ ⁄8 in.] in diameter.
glazing, non-compression,n—see glazing system, non-compression.
glazing, non-compression, v—in building construction, the act of installing components into a non-compression glazing system.
glazing, protective, n—in building construction, systems with glazed openings that are designed to mitigate the effects of bomb
blasts, projectiles, natural disasters, or forced entry.
C717 − 19
DISCUSSION—
Protective glazing systems assist in the mitigation of the potential for hazardous debris dispersal from natural disasters, withstand projectile impact
and resist unauthorized human entry through glazed openings. Protective glazing systems include the selection of an appropriate glazing material, the
design of metal framing members and their anchorages, and the retention of the glazing material within the framing all to resist a specified threat.
glazing, shop, n—in building construction, the installation of glass or panels into a metal framing system under controlled
environmental conditions.
DISCUSSION—
Shop glazing typically occurs at a location remote to a construction site. However, shop glazing can be performed at the construction site if acceptable
to the code authority and provided appropriate management controls and environmental conditions are maintained.
glazing, stopless—See glazing, structural sealant, the preferred term.
DISCUSSION—
Inappropriately used to describe structural sealant glazing.
glazing, structural sealant, n—in building construction, a glazing system wherein a structural sealant is used to transfer loads
between a lite or panel and a supporting framework, without mechanical fasteners or other methods of attachment.
glazing, two-side structural sealant, n—in building construction, a glazing system wherein two sides of a rectangular-shaped lite
or panel, usually opposing, are structural sealant glazed.
glazing compound, n—in building construction in glazing, a putty material composed primarily of oil- or resin-based ingredients
used for sealing window glass in frames.
DISCUSSION—
Historically these compounds cure primarily through solvent evaporation, oxidation or both. Compounds other than oil- or resin-based can be used
for glazing, though they may not have a putty-like consistency.
glazing system, compression, n—in building construction, gasket(s) or a combination of sealant(s) and gasket(s) used to provide
weather-tightness by way of continuous pressure on the components in the joint.
glazing system, non-compression, n—in building construction, a sealant or combination of sealant(s) used to provide
weather-tightness by way of the adhesive/cohesive characteristics of the components in the joint.
gun-grade, n—in building construction, a material of a suitable viscosity to extrude through the nozzle of a hand- or
power-operated device.
hardness, n—in building construction, the resistance to indentation as measured under specified conditions. A644; A04
hydrostatic pressure, n—a state of stress in which all the principal stresses are equal (and there is no shear stress), as in a liquid
at rest; the product of the unit weight of the liquid and the difference in elevation between the given point and the free liquid
elevation.
joint, n—in building construction, the space or opening between two or more adjoining surfaces.
joint, butt,n—See sealant joint, butt (See Fig. 3).
joint, construction, n—in building construction, a formed or assembled joint at a predetermined location where two successive
placements (“lifts”) of concrete meet.
DISCUSSION—
Frequently a keyway or reinforcement is placed across the joint. With proper design, this joint may also function as a control or an isolation joint.
joint, control, n—in building construction, a formed, sawed, tooled, or assembled joint acting to regulate the location and degree
of cracking and separation resulting from the dimensional change of different elements of a structure.
DISCUSSION—
C717 − 19
The joint is usually installed in concrete and concrete masonry construction to induce controlled cracking at preselected locations or where a
concentration of stresses is expected.
joint, expansion, n—in building construction, a formed or assembled joint at a predetermined location, which prevent the transfer
of forces across the joint as a result of movement or dimensional change of different elements of a structure or building.
joint, fillet bead,n—Use sealant joint, fillet (preferred term) (See Fig. 4).
joint, isolation, n—in building construction, a formed or assembled joint specifically intended to separate and prevent the bonding
of one element of a structure to another and having little or no transference of movement or vibration across the joint.
joint backing—See sealant backing.
joint filler, n—a compressible material used in a partial or totally filled expansion, control, or isolation joint by its permanent
placement in or between building materials such as concrete or masonry during construction; sometimes used as a sealant
backing in a partially filled joint.
A—Sealant
B—Sealant backing
C—Bond breaker
D—Joint
E—Substrate face
F—Substrate edge
FIG. 4 Fillet Sealant Joints
C717 − 19
joint seal, expansion, n—in building construction, a seal or sealant system that provides an elastic, compressible, or flexible barrier
to the passage of gases, liquids, or solids.
knife-grade, n—in building construction, a compound of such consistency that it is generally applied with a knife or spatula hand
tool.
laitance, n—in building construction, a weak layer of cement and aggregate fines on a concrete surface that is usually caused by
an overwet mixture, overworking the mixture, improper or excessive finishing, or combinations thereof.
light,n—Use lite (preferred term).
lite, n—one piece of glazing (also spelled light), synonym: pane. E631
modulus, n—as related to sealants used in building construction, the stress (force/unit area) at a corresponding strain (elongation)
expressed as a percent of the original dimension.
DISCUSSION—
When the stress to strain values are expressed as a ratio, this describes the slope of a line tangent to the given point on the stress-strain curve. This
is the tangent modulus.
modulus, secant—slope of the line connecting the origin and a given point of the stress-strain curve.
modulus, tangent, n—the slope of the line touching (tangent to) the stress-strain curve at a given point on the curve.
muntin, n—a secondary intermediate member subdividing a glazed area.
necking, n—in building construction, the localized reduction in cross section that may occur in a material under stress. D883; D20
open cell, n—a cell not totally enclosed by its walls and hence interconnecting with other cells. D1566; D11
open cell material, n—a cellular material in which substantially all cells in the mass are open cells.
outgassing, n—the emission of occluded gasses from a material by vacuum, heat, or pressure.
DISCUSSION—
As applied to sealant backing materials contained within a filled joint, outgassing may occur when it is compressed or punctured causing gas bubbles
to form in the overlying sealant.
pane,n—See lite.
pot life—See working life.
post dispensing contraction, n—in building construction, the volumetric decrease of a sealant that occurs between dispensing and
cure.
post dispensing expansion, n—in building construction, the volumetric increase of a sealant that occurs between dispensing and
cure.
premature failure, n—in building construction,service life shorter than design life.
primer—in building construction, a compatible coating designed to enhance adhesion.
putty, n—in building construction, a knife-grade compound generally used as a glazing compound or to fill cracks or holes.
rabbet, n—a two-sided, L-shaped, recess in a sash or frame designed to receive glazing.
DISCUSSION—
Provides a fixed stop in the sash or frame.
reversion, n—in building construction in joint sealing, a loss of elastomeric properties and a decrease in durometer hardness of
a seal or cured sealant following environmental exposure.
DISCUSSION—
Softening and the ability to permanently reshape a seal or sealant usually characterizes reversion. Depending on a specific seal or sealant formulation,
high heat, ultraviolet radiation, or moisture (as a liquid or vapor) may cause reversion acting either alone or in combination. The seal and sealant
industry is not in agreement on reversion causes.
C717 − 19
rubber, dense, n—in building construction, a solid rubber material substantially free of cells or porosity.
rubber, expanded, n—in building construction, an elastomeric closed-cell material made by incorporating a gas-producing
ingredient into a rubber compound that decomposes during vulcanization, producing gas bubbles that expand the compound; the
bubbles are predominately non-interconnecting.
rubber, latex foam, n—in building construction, an elastomeric open-cell material made by whipping or stirring air or some other
gas into rubber latex compound as it is gelled and before it is subsequently cured.
DISCUSSION—
The word latex must be in front of foam rubber so this material will not be confused with a number of chemically blown, fine cell, elastomeric products,
which sometimes are incorrectly called foam rubber.
rubber, sponge, n—in building construction, an elastomeric open-cell material made by incorporating a gas-producing ingredient
into a rubber compoun
...








Questions, Comments and Discussion
Ask us and Technical Secretary will try to provide an answer. You can facilitate discussion about the standard in here.
Loading comments...