ASTM F3277-19
(Specification)Standard Specification for Cantilevered Steel Bunks Used in Detention and Correctional Facilities
Standard Specification for Cantilevered Steel Bunks Used in Detention and Correctional Facilities
SCOPE
1.1 This specification provides five test methods suitable for assessing the safety and performance characteristics of cantilevered steel bunks for detention and correctional facilities.
1.2 These test methods address impact from the top of the bunk, the application of a static force from the top, sides, in various directions, and a force applied from the bottom of the bunk.
1.3 The forces applied simulate those that are foreseeable from abuse by up to two individuals.
1.4 The tests are intended to be used to aid in identifying the appropriate level of physical security associated with various configurations of cantilevered bunk design.
1.5 Units—The values stated in inch-pound units are to be regarded as the standard. The values given in parentheses are mathematical conversions to SI units that are provided for information only and are not considered standard.
1.6 This standard does not purport to address all of the safety concerns, if any, associated with its use. It is the responsibility of the user of this standard to establish appropriate safety, health, and environmental practices and determine the applicability of regulatory limitations prior to use.
1.7 This international standard was developed in accordance with internationally recognized principles on standardization established in the Decision on Principles for the Development of International Standards, Guides and Recommendations issued by the World Trade Organization Technical Barriers to Trade (TBT) Committee.
General Information
- Status
- Published
- Publication Date
- 31-Mar-2019
- Technical Committee
- F33 - Detention and Correctional Facilities
- Drafting Committee
- F33.05 - Furnishings and Equipment
Relations
- Effective Date
- 01-Apr-2019
- Effective Date
- 01-May-2013
- Effective Date
- 15-Mar-2013
- Effective Date
- 01-Jun-2012
- Effective Date
- 01-Jan-2012
- Effective Date
- 01-Nov-2010
- Effective Date
- 01-Mar-2010
- Effective Date
- 01-Nov-2008
- Effective Date
- 15-Jul-2007
- Effective Date
- 01-Mar-2006
- Effective Date
- 01-Apr-2005
- Effective Date
- 01-Nov-2004
- Effective Date
- 01-Nov-2004
- Effective Date
- 01-Oct-2004
- Effective Date
- 01-Oct-2004
Overview
ASTM F3277-19 is a standard specification that outlines test methods and criteria for cantilevered steel bunks used in detention and correctional facilities. Developed by ASTM International, this standard is designed to assess the safety, performance, and physical security of wall-mounted steel bunks exposed to potential abuse and routine use in secure environments. The five test methods specified serve to simulate realistic conditions such as force, impact, and misuse, ensuring that products deliver the required durability and safety.
Organizations responsible for facility design, maintenance, and procurement reference ASTM F3277-19 to promote reliable selection, installation, and ongoing safety standards for cantilevered bunks.
Key Topics
Performance Testing:
Five test methods simulate realistic scenarios, including:- Top impact (simulating two individuals jumping on the bunk)
- Downward static force
- Cantilever stress (assessing support and deformation)
- Uplift force (from below)
- End force (sideways pressure at the end of the bunk)
Physical Security:
Test results help determine the appropriate level of physical security and robustness associated with different bunk designs.Acceptance Criteria:
Bunks are evaluated for damage, deformation, or failure. Acceptable performance is measured by:- Lack of loose or damaged parts
- Integrity and secure attachment to the wall
- Absence of excessive permanent deflection or distortion
Reporting and Certification:
Detailed reporting is required, including product identification, diagrams, construction details, and test data. Manufacturers may certify compliance via internal or third-party laboratory testing.Health and Safety:
Users of this standard are responsible for ensuring safe practices and considering all applicable safety, health, and environmental regulations.
Applications
ASTM F3277-19 is essential in environments where physical security and durability are priorities, including:
Detention and Correctional Facilities
- Ensures furniture withstands foreseeable abuse or misuse by occupants.
- Reduces maintenance and replacement costs by favoring durable, compliant products.
- Enhances safety for inmates, staff, and the public through reliable installation standards.
Facility Management and Procurement
- Informs purchasing guidelines, helping facilities select products meeting stringent physical security and performance benchmarks.
- Assists in standardizing procurement documents and compliance inspections.
Manufacturers and Designers
- Provides a validated framework for research, development, and quality control.
- Ensures products meet industry expectations for robustness, minimizing liability risks.
Related Standards
Several related ASTM and industry standards help provide a comprehensive approach to secure furnishing in detention environments:
- ASTM F1244: Specification for Berths, Marine
- ASTM F1427: Consumer Safety Specification for Bunk Beds
- ASTM F1450: Test Methods for Hollow Metal Swinging Door Assemblies for Detention and Correctional Facilities
- AWS B2.1-1-003: Light Gage Welding Specification
These standards, when used alongside ASTM F3277-19, support a full-spectrum safety and performance program within secure facilities.
By adhering to ASTM F3277-19 for cantilevered steel bunks, correctional and detention facility planners and operators ensure a higher standard of safety, security, and product reliability. The standard addresses abuse resistance, static and dynamic strength, and secure attachment - meeting the unique challenges of high-security environments.
Buy Documents
ASTM F3277-19 - Standard Specification for Cantilevered Steel Bunks Used in Detention and Correctional Facilities
Get Certified
Connect with accredited certification bodies for this standard

Element Materials Technology
Materials testing and product certification.
Inštitut za kovinske materiale in tehnologije
Institute of Metals and Technology. Materials testing, metallurgical analysis, NDT.
Sponsored listings
Frequently Asked Questions
ASTM F3277-19 is a technical specification published by ASTM International. Its full title is "Standard Specification for Cantilevered Steel Bunks Used in Detention and Correctional Facilities". This standard covers: SCOPE 1.1 This specification provides five test methods suitable for assessing the safety and performance characteristics of cantilevered steel bunks for detention and correctional facilities. 1.2 These test methods address impact from the top of the bunk, the application of a static force from the top, sides, in various directions, and a force applied from the bottom of the bunk. 1.3 The forces applied simulate those that are foreseeable from abuse by up to two individuals. 1.4 The tests are intended to be used to aid in identifying the appropriate level of physical security associated with various configurations of cantilevered bunk design. 1.5 Units—The values stated in inch-pound units are to be regarded as the standard. The values given in parentheses are mathematical conversions to SI units that are provided for information only and are not considered standard. 1.6 This standard does not purport to address all of the safety concerns, if any, associated with its use. It is the responsibility of the user of this standard to establish appropriate safety, health, and environmental practices and determine the applicability of regulatory limitations prior to use. 1.7 This international standard was developed in accordance with internationally recognized principles on standardization established in the Decision on Principles for the Development of International Standards, Guides and Recommendations issued by the World Trade Organization Technical Barriers to Trade (TBT) Committee.
SCOPE 1.1 This specification provides five test methods suitable for assessing the safety and performance characteristics of cantilevered steel bunks for detention and correctional facilities. 1.2 These test methods address impact from the top of the bunk, the application of a static force from the top, sides, in various directions, and a force applied from the bottom of the bunk. 1.3 The forces applied simulate those that are foreseeable from abuse by up to two individuals. 1.4 The tests are intended to be used to aid in identifying the appropriate level of physical security associated with various configurations of cantilevered bunk design. 1.5 Units—The values stated in inch-pound units are to be regarded as the standard. The values given in parentheses are mathematical conversions to SI units that are provided for information only and are not considered standard. 1.6 This standard does not purport to address all of the safety concerns, if any, associated with its use. It is the responsibility of the user of this standard to establish appropriate safety, health, and environmental practices and determine the applicability of regulatory limitations prior to use. 1.7 This international standard was developed in accordance with internationally recognized principles on standardization established in the Decision on Principles for the Development of International Standards, Guides and Recommendations issued by the World Trade Organization Technical Barriers to Trade (TBT) Committee.
ASTM F3277-19 is classified under the following ICS (International Classification for Standards) categories: 77.140.01 - Iron and steel products in general. The ICS classification helps identify the subject area and facilitates finding related standards.
ASTM F3277-19 has the following relationships with other standards: It is inter standard links to ASTM F1450-12a(2019), ASTM F1244-08(2013), ASTM F1427-13, ASTM F1450-12a, ASTM F1450-12, ASTM F1450-10, ASTM F825-93(2010), ASTM F1244-08, ASTM F1427-07, ASTM F1427-06, ASTM F1450-05, ASTM F1244-89(2004), ASTM F825-93(2004), ASTM F1427-04, ASTM F1427-04e1. Understanding these relationships helps ensure you are using the most current and applicable version of the standard.
ASTM F3277-19 is available in PDF format for immediate download after purchase. The document can be added to your cart and obtained through the secure checkout process. Digital delivery ensures instant access to the complete standard document.
Standards Content (Sample)
This international standard was developed in accordance with internationally recognized principles on standardization established in the Decision on Principles for the
Development of International Standards, Guides and Recommendations issued by the World Trade Organization Technical Barriers to Trade (TBT) Committee.
Designation: F3277 −19
Standard Specification for
Cantilevered Steel Bunks Used in Detention and
Correctional Facilities
This standard is issued under the fixed designation F3277; the number immediately following the designation indicates the year of
original adoption or, in the case of revision, the year of last revision. A number in parentheses indicates the year of last reapproval. A
superscript epsilon (´) indicates an editorial change since the last revision or reapproval.
1. Scope F1244 Specification for Berths, Marine
F1427 Consumer Safety Specification for Bunk Beds
1.1 This specification provides five test methods suitable for
F1450 Test Methods for Hollow Metal Swinging Door
assessing the safety and performance characteristics of canti-
Assemblies for Detention and Correctional Facilities
levered steel bunks for detention and correctional facilities.
2.2 AWS Standards:
1.2 These test methods address impact from the top of the
AWS B2.1-1-003-90 Light Gage Welding Specification
bunk, the application of a static force from the top, sides, in
(Carbon Steel Sheet Metal 10 thru 18 gauge-Gas Metal
various directions, and a force applied from the bottom of the
Arc Welding)
bunk.
3. Terminology
1.3 The forces applied simulate those that are foreseeable
from abuse by up to two individuals.
3.1 Definitions of Terms Specific to This Standard:
3.1.1 bracket, n—as applied to steel bunks, end piece,
1.4 Thetestsareintendedtobeusedtoaidinidentifyingthe
appropriate level of physical security associated with various welded to wall-mounted bunk pans, for attachment to a wall,
either by using mechanical fasteners or by field welding to
configurations of cantilevered bunk design.
embeds or metal wall.
1.5 Units—The values stated in inch-pound units are to be
3.1.2 cantilever, n—as applied to steel bunks, projecting
regarded as the standard. The values given in parentheses are
from the wall, with no support from the front of the bunk down
mathematical conversions to SI units that are provided for
to the floor and no support from walls at either end. The bunk
information only and are not considered standard.
to be fastened to the wall utilizing brackets only.
1.6 This standard does not purport to address all of the
3.1.3 embed, v—as applied to steel bunks, steel plate fixed
safety concerns, if any, associated with its use. It is the
firmly into a concrete or masonry wall.
responsibility of the user of this standard to establish appro-
priate safety, health, and environmental practices and deter-
3.1.4 pan, n—as applied to steel bunks, formed or flat steel
mine the applicability of regulatory limitations prior to use.
sheet with reinforced edges used to form the sleeping platform.
1.7 This international standard was developed in accor-
3.1.5 storage shelf, n—as applied to steel bunks, compart-
dance with internationally recognized principles on standard-
ment with, or without ends, that is attached to the underneath
ization established in the Decision on Principles for the
side of the bunk pan.
Development of International Standards, Guides and Recom-
mendations issued by the World Trade Organization Technical
4. Summary of Test Methods
Barriers to Trade (TBT) Committee.
4.1 There are five test methods: top impact, static force,
cantilever, uplift, and end force.
2. Referenced Documents
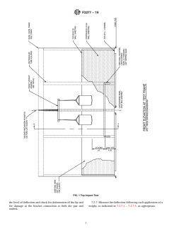
4.2 Top Impact Test—This test method simulates the effect
2.1 ASTM Standards:
of two inmates, each weighing 200 lb (90.7 kg), jumping from
F825 Specification for Drawers, Furniture, Marine, Steel
a height of 18 in. (457.2 mm) onto the bunk pan. In the test, a
pair of weighted shot bags are used to simulate the two
This specification is under the jurisdiction of ASTM Committee F33 on
inmates.
Detention and Correctional Facilities and is the direct responsibility of Subcommit-
tee F33.05 on Furnishings and Equipment.
4.3 Downward Static Force Test—This test method simu-
Current edition approved April 1, 2019. Published April 2019. DOI: 10.1520/
lates the effect of several inmates standing or sitting on the
F3277-19.
For referenced ASTM standards, visit the ASTM website, www.astm.org, or
contact ASTM Customer Service at service@astm.org. For Annual Book of ASTM
Standards volume information, refer to the standard’s Document Summary page on Available from American Welding Society (AWS), 8669 NW 36 St., #130,
the ASTM website. Miami, FL 33166-6672, http://www.aws.org.
Copyright © ASTM International, 100 Barr Harbor Drive, PO Box C700, West Conshohocken, PA 19428-2959. United States
F3277 − 19
bunk. It measures the rigidity and strength of the bunk pan. In other options installed by the manufacturer) to resist a large
the test, a static load is applied to the center of the bunk pan. impact force from the top at a critical designated area.
Deflection of the bunk pan is measured.
7.1.2 This test method is intended to simulate two inmates
jumping on the bunk and to evaluate the resulting damage on
4.4 Cantilever Test—Thistestmethodsimulatestheeffectof
theassembly.Followingthetest,thebunkshallnotberemoved
several inmates standing or sitting on the bunk and measures
from its original location nor shall parts of the bunk be allowed
the deflection of the bunk pan and end brackets. This test is
to dislodge from it.
conducted applying static loads to various areas of the bunk.
7.1.3 Weight—To simulate the weight of inmates, a pair of
4.5 Uplift Test—This test method simulates the effect of two
200 6 5 lb (90.7 6 2.2 kg) weighted shot bags shall be used.
inmates standing on the floor or lying on the lower bunk and
Each shot bag shall be approximately 12 6 1 in. (305 6 25
applying upward pressure on either of the two bunks.
mm) in diameter, constructed of heavy-duty reinforced canvas
4.6 End Force Test—Thistestmethodsimulatestheeffectof
covering with a strap and handle rated for the load, and filled
aninmatepushingagainsttheendofthebunkandmeasuresthe
with steel shot or slugs.
lateral deflection.
7.1.4 Fixture the weights to be 36 6 1 in. (914 6 25 mm)
apart, centered as depicted in Fig. 1, Fig. 2, and Fig. 3,
5. Significance and Use
suspended at a height of 18 6 1 in. (457 6 25 mm) above the
pan surface, and dropped simultaneously onto the center of the
5.1 The predictable and reliable performance of detention
bunk pan (see Fig. 2 and Fig. 3).
cantilevered steel bunks used for detention and correctional
7.1.5 After dropping the weight, remove the shot bags and
facilities is a major concern. These test methods aid in
measure the amount of deflection at the center of both the
checking the physical integrity and attachment security of one
outside and the inside lip of the pan.
or more levels of cantilevered steel bunks installed in detention
cells, based upon objective tests. 7.1.6 Measure also the level of deformation of the lip and
the damage at the bracket connection at both the pan and
5.2 The primary purpose of these test methods is to approxi-
embed. Continue process until bunk pan shows no further
mate both the normal operating conditions found in detention
deflection.
and correctional facilities and the levels of abuse to which
detention steel bunks are potentially subject.
7.2 Static Force, Cantilever, and Uplift Tests:
7.2.1 These three test methods are intended to evaluate the
5.3 The desired result from the use of these test methods is
capability of a complete bunk assembly (including frame, wall
to provide a measure of reassurance to facility managers and
anchoring, and other options installed by the manufacturer) to
protection for correctional personnel, the public, and inmates
resist a large static force from three directions (top, side, and
themselves.
bottom) onto three critical designated areas.
7.2.2 These three methods are intended to simulate the
6. Specimen
effect of having two inmates either standing on the bunk or
6.1 Two identical full-size bunks are to be submitted for
applying force to the bunk, and to evaluate the resulting
testing. One bunk shall be used for impact testing; the other
damage to the assembly. Following the test, the bunk shall not
bunk shall be used for the remaining static load tests. The
be removed from its original location nor shall parts of the
nominal pan size of each bunk shall be 30 in. (762 mm) wide
bunk be allowed to dislodge from it.
by 76 in. (1930 mm) long.The room edge of the tested pan and
7.2.3 Weight—A hydraulic ram and pump able to produce
end brackets shall cantilever not less than 32 in. (813 mm)
loads in excess of 1000 lb (454 kg) shall be used.
from the wall. The back length tested shall be 76 in. (1930
7.2.4 Test Procedure:
mm). It is acceptable to use test results for a large size to
7.2.5 Apply the weight as indicated in 7.2.5.1 – 7.2.5.3,as
qualify sizes up to 10 % greater in width or length. Test
appropriate.
specimens with smaller dimensional variation in width or
7.2.5.1 Static Force Test—Place the weight at the center of
length shall be acceptable without further testing.
the bunk pan, pushing down onto a steel plate, 24 in. (610 mm)
6.2 Cantilevered—Two b
...




Questions, Comments and Discussion
Ask us and Technical Secretary will try to provide an answer. You can facilitate discussion about the standard in here.
Loading comments...