ASTM C857-19
(Practice)Standard Practice for Minimum Structural Design Loading for Underground Precast Concrete Utility Structures
Standard Practice for Minimum Structural Design Loading for Underground Precast Concrete Utility Structures
SIGNIFICANCE AND USE
5.1 This practice is intended to standardize the minimum structural design loading for underground precast concrete utility structures.
5.2 The user shall verify the anticipated field conditions and requirements with design loads greater than those specified in this standard.
SCOPE
1.1 This practice describes the minimum live loads and dead loads to be applied when designing monolithic or sectional precast concrete utility structures. Concrete pipe, box culverts, and material covered in Specification C478 are excluded from this practice.
Note 1: For additional information see AASHTO Standard Specification for Highway Bridges, Seventeenth Edition.
Note 2: The purchaser is cautioned that he must properly correlate the anticipated loading conditions and the field requirements with the design loads used.
1.2 The values stated in inch-pound units are to be regarded as standard. The values given in parentheses are mathematical conversions to SI units that are provided for information only and are not considered standard.
1.3 This standard does not purport to address all of the safety concerns, if any, associated with its use. It is the responsibility of the user of this standard to establish appropriate safety, health, and environmental practices and determine the applicability of regulatory limitations prior to use.
1.4 This international standard was developed in accordance with internationally recognized principles on standardization established in the Decision on Principles for the Development of International Standards, Guides and Recommendations issued by the World Trade Organization Technical Barriers to Trade (TBT) Committee.
General Information
- Status
- Published
- Publication Date
- 30-Jun-2019
- Technical Committee
- C27 - Precast Concrete Products
- Drafting Committee
- C27.10 - Utility Structures
Relations
- Effective Date
- 01-Jul-2019
- Refers
ASTM C478-18 - Standard Specification for Circular Precast Reinforced Concrete Manhole Sections - Effective Date
- 01-Jan-2018
- Refers
ASTM C478-15a - Standard Specification for Circular Precast Reinforced Concrete Manhole Sections - Effective Date
- 15-Oct-2015
- Refers
ASTM C478-15 - Standard Specification for Circular Precast Reinforced Concrete Manhole Sections - Effective Date
- 01-Jan-2015
- Effective Date
- 15-Sep-2014
- Effective Date
- 01-Apr-2013
- Effective Date
- 01-Oct-2012
- Effective Date
- 01-Apr-2012
- Effective Date
- 01-Nov-2011
- Effective Date
- 01-Feb-2009
- Effective Date
- 15-Mar-2008
- Effective Date
- 01-Mar-2007
- Effective Date
- 01-Jun-2006
- Effective Date
- 15-Feb-2006
- Effective Date
- 01-Feb-2006
Overview
ASTM C857-19 sets forth the minimum structural design loading requirements for underground precast concrete utility structures. Issued by ASTM International, this standard is intended to ensure uniformity and safety in the structural performance of monolithic or sectional precast concrete utility structures installed below ground. The scope of ASTM C857-19 excludes concrete pipe, box culverts, and material covered by ASTM Specification C478. The practice is a vital reference for engineers, manufacturers, and project stakeholders involved in designing and installing underground enclosures for utilities such as electricity, gas, and communications.
This standard provides clear criteria for both live and dead loads, while emphasizing the responsibility of the user to verify and correlate the actual site conditions, which may require design loads above the minimums specified by the standard.
Key Topics
- Minimum Design Loads: Specification of the minimum dead and live loads that must be considered in the structural design of underground precast concrete utility structures.
- Live Loads: Includes moving vehicle and pedestrian loads with impact and surcharge factors based on depth below ground level. Load values are referenced in Table 1 of ASTM C857-19.
- Dead Loads: Considers the static weight of the structure, earth fill, roadway materials, access covers, and additional permanent features.
- Load Distribution: Requirements for how loads, particularly wheel loads, are distributed through earth cover and how overlapping load areas are calculated for structural design.
- Lateral Earth and Hydrostatic Pressures: Guidelines for assessing earth pressure and hydrostatic pressure on the structure walls both above and below groundwater level, including use of Rankine’s Theory.
- Accessories Loading: Guidance for loads associated with cable pulling devices, lifting inserts, and equipment mounting devices.
- Buoyancy and Bearing Pressure: Requirements for accounting for buoyancy effects in design and for determining allowable soil bearing pressures under combined service loads.
- Unit Systems: Standard specifies inch-pound units as primary, with SI units offered as conversions for informational purposes only.
Applications
The ASTM C857-19 standard is essential for:
- Structural Engineers: Provides a baseline for safe and reliable design of underground precast concrete utility structures, ensuring they can withstand anticipated loads from earth, water, vehicles, and equipment.
- Utility Network Installations: Used in the construction of underground vaults, utility boxes, and enclosures for electric, gas, and telecommunication systems.
- Manufacturers of Precast Concrete Components: Guides the manufacturing process to ensure compliance with minimum loading standards and interoperability with project requirements.
- Project Owners and Specifiers: Assists in preparing technical specifications, procurement documents, and quality assurance processes by referencing accepted industry standards.
- Regulatory Authorities: Supports consistent building code enforcement and infrastructure development for underground utilities.
Adherence to ASTM C857-19 helps ensure long-term performance, public safety, and maintainability of critical underground infrastructure.
Related Standards
- ASTM C478: Specification for circular precast reinforced concrete manhole sections, excluded from ASTM C857-19 but relevant to underground infrastructure.
- AASHTO Standard Specification for Highway Bridges, Seventeenth Edition: Cited for further information related to live loads and structural design, widely used in transportation and civil engineering applications.
- Other ASTM C27 Committee Standards: Encompass a variety of precast concrete products and practices applicable to underground construction.
Keywords: ASTM C857-19, minimum structural design criteria, precast concrete, underground utility structures, live load, dead load, structural engineering, utility enclosures, lateral earth pressure, hydrostatic pressure, standard loading requirements.
Buy Documents
ASTM C857-19 - Standard Practice for Minimum Structural Design Loading for Underground Precast Concrete Utility Structures
REDLINE ASTM C857-19 - Standard Practice for Minimum Structural Design Loading for Underground Precast Concrete Utility Structures
Get Certified
Connect with accredited certification bodies for this standard

ICC Evaluation Service
Building products evaluation and certification.

QAI Laboratories
Building and construction product testing and certification.

Aboma Certification B.V.
Specialized in construction, metal, and transport sectors.
Sponsored listings
Frequently Asked Questions
ASTM C857-19 is a standard published by ASTM International. Its full title is "Standard Practice for Minimum Structural Design Loading for Underground Precast Concrete Utility Structures". This standard covers: SIGNIFICANCE AND USE 5.1 This practice is intended to standardize the minimum structural design loading for underground precast concrete utility structures. 5.2 The user shall verify the anticipated field conditions and requirements with design loads greater than those specified in this standard. SCOPE 1.1 This practice describes the minimum live loads and dead loads to be applied when designing monolithic or sectional precast concrete utility structures. Concrete pipe, box culverts, and material covered in Specification C478 are excluded from this practice. Note 1: For additional information see AASHTO Standard Specification for Highway Bridges, Seventeenth Edition. Note 2: The purchaser is cautioned that he must properly correlate the anticipated loading conditions and the field requirements with the design loads used. 1.2 The values stated in inch-pound units are to be regarded as standard. The values given in parentheses are mathematical conversions to SI units that are provided for information only and are not considered standard. 1.3 This standard does not purport to address all of the safety concerns, if any, associated with its use. It is the responsibility of the user of this standard to establish appropriate safety, health, and environmental practices and determine the applicability of regulatory limitations prior to use. 1.4 This international standard was developed in accordance with internationally recognized principles on standardization established in the Decision on Principles for the Development of International Standards, Guides and Recommendations issued by the World Trade Organization Technical Barriers to Trade (TBT) Committee.
SIGNIFICANCE AND USE 5.1 This practice is intended to standardize the minimum structural design loading for underground precast concrete utility structures. 5.2 The user shall verify the anticipated field conditions and requirements with design loads greater than those specified in this standard. SCOPE 1.1 This practice describes the minimum live loads and dead loads to be applied when designing monolithic or sectional precast concrete utility structures. Concrete pipe, box culverts, and material covered in Specification C478 are excluded from this practice. Note 1: For additional information see AASHTO Standard Specification for Highway Bridges, Seventeenth Edition. Note 2: The purchaser is cautioned that he must properly correlate the anticipated loading conditions and the field requirements with the design loads used. 1.2 The values stated in inch-pound units are to be regarded as standard. The values given in parentheses are mathematical conversions to SI units that are provided for information only and are not considered standard. 1.3 This standard does not purport to address all of the safety concerns, if any, associated with its use. It is the responsibility of the user of this standard to establish appropriate safety, health, and environmental practices and determine the applicability of regulatory limitations prior to use. 1.4 This international standard was developed in accordance with internationally recognized principles on standardization established in the Decision on Principles for the Development of International Standards, Guides and Recommendations issued by the World Trade Organization Technical Barriers to Trade (TBT) Committee.
ASTM C857-19 is classified under the following ICS (International Classification for Standards) categories: 91.100.30 - Concrete and concrete products. The ICS classification helps identify the subject area and facilitates finding related standards.
ASTM C857-19 has the following relationships with other standards: It is inter standard links to ASTM C857-16, ASTM C478-18, ASTM C478-15a, ASTM C478-15, ASTM C478-14, ASTM C478-13, ASTM C478-12a, ASTM C478-12, ASTM C478-11, ASTM C478-09, ASTM C478-08, ASTM C478-07, ASTM C478-06b, ASTM C478-06a, ASTM C478-06. Understanding these relationships helps ensure you are using the most current and applicable version of the standard.
ASTM C857-19 is available in PDF format for immediate download after purchase. The document can be added to your cart and obtained through the secure checkout process. Digital delivery ensures instant access to the complete standard document.
Standards Content (Sample)
This international standard was developed in accordance with internationally recognized principles on standardization established in the Decision on Principles for the
Development of International Standards, Guides and Recommendations issued by the World Trade Organization Technical Barriers to Trade (TBT) Committee.
Designation: C857 − 19
Standard Practice for
Minimum Structural Design Loading for Underground
Precast Concrete Utility Structures
This standard is issued under the fixed designation C857; the number immediately following the designation indicates the year of
original adoption or, in the case of revision, the year of last revision.Anumber in parentheses indicates the year of last reapproval.A
superscript epsilon (´) indicates an editorial change since the last revision or reapproval.
1. Scope 2.2 AASHTO Standard:
Specification for Highway Bridges, Seventeenth Edition
1.1 Thispracticedescribestheminimumliveloadsanddead
loads to be applied when designing monolithic or sectional
3. Terminology
precast concrete utility structures. Concrete pipe, box culverts,
3.1 Definitions of Terms Specific to This Standard:
and material covered in Specification C478 are excluded from
3.1.1 dead loads—will consist of any other load that can
this practice.
affect the design of the structure.
NOTE 1—For additional information seeAASHTO Standard Specifica-
3.1.2 lateral earth loads—the lateral pressure due to the
tion for Highway Bridges, Seventeenth Edition.
effective weight of adjacent earth backfill.
NOTE2—Thepurchaseriscautionedthathemustproperlycorrelatethe
anticipated loading conditions and the field requirements with the design 3.1.3 lifting insert—device embedded or otherwise attached
loads used.
to the structure, designed and manufactured to support a
measured, sustained, concentrated load.
1.2 The values stated in inch-pound units are to be regarded
as standard. The values given in parentheses are mathematical
3.1.4 live loads—will consist of any moving loads that can
conversions to SI units that are provided for information only
affect the design of the structure and their associated impact
and are not considered standard.
and surcharge loads.
1.3 This standard does not purport to address all of the
3.1.5 utility structure—a structure that is used by electric,
safety concerns, if any, associated with its use. It is the
gas, communication, or similar industries.
responsibility of the user of this standard to establish appro-
4. Design Loads
priate safety, health, and environmental practices and deter-
mine the applicability of regulatory limitations prior to use.
4.1 Roof—The design loads for the roof of any structure at
1.4 This international standard was developed in accor-
or below ground level consists of the live loads including
dance with internationally recognized principles on standard- impact and dead loads that can develop as a result of earth
ization established in the Decision on Principles for the
pressure, hydrostatic pressure, and construction materials such
Development of International Standards, Guides and Recom- as used for roadways and walkways.
mendations issued by the World Trade Organization Technical
4.1.1 Live Loads—The vehicle and pedestrian load designa-
Barriers to Trade (TBT) Committee. tionsaregiveninTable1.Liveloadwheelspacingisshownin
Fig. 1.
2. Referenced Documents 4.1.2 Impact:
2 4.1.2.1 The live loads A-16, A-12, and A-8 shall be in-
2.1 ASTM Standards:
creased as follows to sustain the effect of impact:
C478SpecificationforCircularPrecastReinforcedConcrete
4.1.2.2 Live Load Increase:
Manhole Sections
0 to 12 in. (0 to 305 mm) below ground level, 30%
13 to 24 in. (330 to 610 mm) below ground level, 20%
25 to 35 in. (635 to 889 mm) below ground level, 10%
This practice is under the jurisdiction of ASTM Committee C27 on Precast
36 in. (914 mm) or more below ground level, 0%
Concrete Products and is the direct responsibility of Subcommittee C27.10 on
4.1.3 Dead Loads—Dead loads will consist of the weight of
Utility Structures.
the roof, roadbed, walkways, earth fill, access opening covers,
CurrenteditionapprovedJuly1,2019.PublishedJuly2019.Originallyapproved
in 1978. Last previous edition approved in 2016 as C857–16. DOI: 10.1520/
and any other material that produces a static load.
C0857-19.
For referenced ASTM standards, visit the ASTM website, www.astm.org, or
contact ASTM Customer Service at service@astm.org. For Annual Book of ASTM Available from American Association of State Highway and Transportation
Standards volume information, refer to the standard’s Document Summary page on Officials (AASHTO), 444 N. Capitol St., NW, Suite 249, Washington, DC 20001,
the ASTM website. http://www.transportation.org.
Copyright © ASTM International, 100 Barr Harbor Drive, PO Box C700, West Conshohocken, PA 19428-2959. United States
C857 − 19
TABLE 1 Vehicle and Pedestrian Load Designations 2
A-16 16 000 lbf wheel load × 0.005 = 80 lbf/ft (3830 Pa)
A-12 12 000 lbf wheel load × 0.005 = 60 lbf/ft (2873 Pa)
Designations Maximum Loads Uses
A-8 8000 lbf wheel load × 0.005 = 40 lbf/ft (1915 Pa)
A
A-16 (HS20-44) 16 000 lbf (71 172 N)/wheel heavy traffic
A-0.3 Refer to 4.2.2.1
A
A-12 (HS15-44) 12 000 lbf (53 376 N)/wheel medium traffic
A
A-8 (H10-44) 8000 lbf (35 586 N)/wheel light traffic
4.2.1.3 Surcharge pressures resulting from live loads are
2 B
A-0.3 300 lbf/ft (14.4 kPa) walkways
neglected when the distance from ground level exceeds 8 ft
A
The designations in parentheses are the corresponding AASHTO designations.
(2.5 m).
B
Anticipated designs other than those listed should be designated by purchaser.
4.2.2 Lateral Earth Loads:
4.2.2.1 The lateral earth loads will consist of an earth
pressure above ground water level and hydrostatic pressure
4.1.3.1 Recommended unit weights of materials for design
plus a modified earth pressure below ground water level. The
calculations are as follows:
earthpressureabovegroundwaterlevelandthemodifiedearth
3 3
Concrete, plain, and reinforced 150 lb/ft (2043 kg/m )
3 3 pressure below ground water level will be converted to a
Cast iron 450 lb/ft (7208 kg/m )
3 3
Steel 490 lb/ft (7850 kg/m ) horizontal pressure using Rankine’s Theory on active earth
3 3
Aluminum 175 lb/ft (2804 kg/m )
pressure. No structure will be designed for less than a 30 lb/ft
3 3
Earth fill (dry) 110 lb/ft (1762 kg/m )
3 3 (1436 Pa) horizontal pressure.
Macadam 140 lb/ft (2243 kg/m )
4.2.2.2 For the general case when structures are placed in
4.1.4 Distribution of Wheel Loads Through Earth Fills:
areas where the soil surface does not slope the horizontal
4.1.4.1 Wheel loads at ground level shall be considered
pressure acting at a point on the wall of the structure above
applied to a wheel load area as indicated in Fig. 2.
ground water level will be:
4.1.4.2 Wheel loads shall be distributed below ground level
P 5 K 3W 3H (2)
as a truncated pyramid, as shown in Fig. 3, in which the top
a
surface is the wheel load area and the distributed load area is
where:
equal to the following:
P = horizontal pressure, lbf/ft (Pa)
DLA 5 ~W11.75H!~L11.75H! (1)
K = coefficient of active earth pressure = (1 − sin φ)/(1 +
a
sinφ )
where:
φ = angle of internal friction of the soil, deg (rad),
2 2
DLA = distributed load area, ft (m )
3 3
W = unit weight of soil, lb/ft (kg/m ) and
W = wheel load width, ft (m),
H = distance from grou
...
This document is not an ASTM standard and is intended only to provide the user of an ASTM standard an indication of what changes have been made to the previous version. Because
it may not be technically possible to adequately depict all changes accurately, ASTM recommends that users consult prior editions as appropriate. In all cases only the current version
of the standard as published by ASTM is to be considered the official document.
Designation: C857 − 16 C857 − 19
Standard Practice for
Minimum Structural Design Loading for Underground
Precast Concrete Utility Structures
This standard is issued under the fixed designation C857; the number immediately following the designation indicates the year of
original adoption or, in the case of revision, the year of last revision. A number in parentheses indicates the year of last reapproval. A
superscript epsilon (´) indicates an editorial change since the last revision or reapproval.
1. Scope
1.1 This practice describes the minimum live loads and dead loads to be applied when designing monolithic or sectional precast
concrete utility structures. Concrete pipe, box culverts, and material covered in Specification C478 are excluded from this practice.
NOTE 1—For additional information see AASHTO Standard Specification for Highway Bridges, Seventeenth Edition.
NOTE 2—The purchaser is cautioned that he must properly correlate the anticipated loading conditions and the field requirements with the design loads
used.
1.2 The values stated in inch-pound units are to be regarded as standard. The values given in parentheses are mathematical
conversions to SI units that are provided for information only and are not considered standard.
1.3 This standard does not purport to address all of the safety concerns, if any, associated with its use. It is the responsibility
of the user of this standard to establish appropriate safety safety, health, and healthenvironmental practices and determine the
applicability of regulatory limitations prior to use.
1.4 This international standard was developed in accordance with internationally recognized principles on standardization
established in the Decision on Principles for the Development of International Standards, Guides and Recommendations issued
by the World Trade Organization Technical Barriers to Trade (TBT) Committee.
2. Referenced Documents
2.1 ASTM Standards:
C478 Specification for Circular Precast Reinforced Concrete Manhole Sections
2.2 AASHTO Standard:
Specification for Highway Bridges, Seventeenth Edition
3. Terminology
3.1 Definitions of Terms Specific to This Standard:
3.1.1 dead loads—will consist of any other load that can affect the design of the structure.
3.1.2 lateral earth loads—the lateral pressure due to the effective weight of adjacent earth backfill.
3.1.3 lifting insert—device embedded or otherwise attached to the structure, designed and manufactured to support a measured,
sustained, concentrated load.
3.1.4 live loads—will consist of any moving loads that can affect the design of the structure and their associated impact and
surcharge loads.
3.1.5 utility structure—a structure that is used by electric, gas, communication, or similar industries.
4. Design Loads
4.1 Roof—The design loads for the roof of any structure at or below ground level consists of the live loads including impact
and dead loads that can develop as a result of earth pressure, hydrostatic pressure, and construction materials such as used for
roadways and walkways.
This practice is under the jurisdiction of ASTM Committee C27 on Precast Concrete Products and is the direct responsibility of Subcommittee C27.10 on Utility
Structures.
Current edition approved Sept. 1, 2016July 1, 2019. Published September 2016July 2019. Originally approved in 1978. Last previous edition approved in 20142016 as
C857 – 14.C857 – 16. DOI: 10.1520/C0857-16.10.1520/C0857-19.
For referenced ASTM standards, visit the ASTM website, www.astm.org, or contact ASTM Customer Service at service@astm.org. For Annual Book of ASTM Standards
volume information, refer to the standard’s Document Summary page on the ASTM website.
Available from American Association of State Highway and Transportation Officials (AASHTO), 444 N. Capitol St., NW, Suite 249, Washington, DC 20001,
http://www.transportation.org.
Copyright © ASTM International, 100 Barr Harbor Drive, PO Box C700, West Conshohocken, PA 19428-2959. United States
C857 − 19
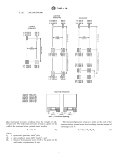
4.1.1 Live Loads—The vehicle and pedestrian load designations are given in Table 1. Live load wheel spacing is shown in Fig.
1.
4.1.2 Impact:
4.1.2.1 The live loads A-16, A-12, and A-8 shall be increased as follows to sustain the effect of impact:
4.1.2.2 Live Load Increase:
0 to 12 in. (0 to 305 mm) below ground level, 30 %
13 to 24 in. (330 to 610 mm) below ground level, 20 %
25 to 35 in. (635 to 889 mm) below ground level, 10 %
36 in. (914 mm) or more below ground level, 0 %
4.1.3 Dead Loads—Dead loads will consist of the weight of the roof, roadbed, walkways, earth fill, access opening covers, and
any other material that produces a static load.
4.1.3.1 Recommended unit weights of materials for design calculations are as follows:
3 3
Concrete, plain, and reinforced 150 lb/ft (2043 kg/m )
3 3
Cast iron 450 lb/ft (7208 kg/m )
3 3
Steel 490 lb/ft (7850 kg/m )
3 3
Aluminum 175 lb/ft (2804 kg/m )
3 3
Earth fill (dry) 110 lb/ft (1762 kg/m )
3 3
Macadam 140 lb/ft (2243 kg/m )
4.1.4 Distribution of Wheel Loads Through Earth Fills:
4.1.4.1 Wheel loads at ground level shall be considered applied to a wheel load area as indicated in Fig. 2.
4.1.4.2 Wheel loads shall be distributed below ground level as a truncated pyramid, as shown in Fig. 3, in which the top surface
is the wheel load area and the distributed load area is equal to the following:
DLA 5 W11.75 H L11.75 H (1)
~ ! ~ !
where:
2 2
DLA = distributed load area, ft (m )
W = wheel load width, ft (m),
L = wheel load length, ft (m), and
H = depth of fill, ft (m).
4.1.4.3 When several distributed load areas overlap, the total load shall be considered as uniformly distributed over the area
defined by the outside limits of the individual areas as indicated in Fig. 4. When the dimensions of the com-posite distributed load
area exceeds the roof area only that portion of the distributed load on the roof area shall be considered in the design.
4.1.4.4 The distribution of wheel loads through earth fill are neglected when the depth of fill exceeds 8 ft (2.5 m).
4.2 Walls—The design loads for the walls of any structure at or below ground level will consist of surcharge loads resulting from
live loads, lateral earth loads that can develop as a result of earth pressure, hydrostatic pressure, and construction materials such
as used for roadways and walkways. Load diagrams of live load surcharge and lateral earth loads are shown in Fig. 5.
4.2.1 Live Loads:
4.2.1.1 When traffic can come within a horizontal distance from the structure equal to one half the height of the structure, a live
load surcharge pressure of not less than 0.5 % of the wheel loading of the traffic involved shall be taken as the live load acting
upon the wall of the structure.
4.2.1.2 Surcharge pressures for various live loads transferred to equivalent horizontal fluid pressure are as follows:
A-16 16 000 lbf wheel load × 0.005 = 80 lbf/ft (3830 Pa)
A-12 12 000 lbf wheel load × 0.005 = 60 lbf/ft (2873 Pa)
A-8 8 000 lbf wheel load × 0.005 = 40 lbf/ft (1915 Pa)
A-8 8000 lbf wheel load × 0.005 = 40 lbf/ft (1915 Pa)
A-0.3 Refer to 4.2.2.1
4.2.1.3 Surcharge pressures resulting from live loads are neglected when the distance from ground level exceeds 8 ft (2.5 m)
...








Questions, Comments and Discussion
Ask us and Technical Secretary will try to provide an answer. You can facilitate discussion about the standard in here.
Loading comments...