ASTM E906/E906M-21
(Test Method)Standard Test Method for Heat and Visible Smoke Release Rates for Materials and Products Using a Thermopile Method
Standard Test Method for Heat and Visible Smoke Release Rates for Materials and Products Using a Thermopile Method
SIGNIFICANCE AND USE
5.1 This test method provides a description of the behavior of material specimens under a specified fire exposure in terms of the release rate of heat and visible smoke. It is possible to determine the change in behavior of materials and products with change in heat-flux exposure by testing specimens in a series of exposures that cover a range of heat fluxes.
5.2 The data obtained for a specific test describe the rate of heat and smoke release of the specimen when exposed to the specific environmental conditions and procedures used in performing that test.
5.3 The entire exposed surface of the specimen will not be burning during the progressive involvement phase when piloted, point ignition (impingement) procedures are used. During the period of progressive surface involvement, release rates of heat and smoke are “per square metre of original exposed surface area” not “per square metre of flame involved surface.”
5.4 The rates of both heat and smoke release are calculated per square metre of original surface area exposed. If a specimen swells, sags, delaminates, or otherwise deforms so that the exposed surface area changes, calculated release rates correspond to the original area, not to the new surface area.
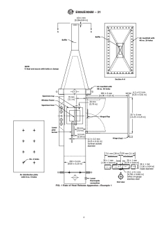
5.5 Heat-release values depend on mode of ignition. Gas phase ignition gives a more dimensionally consistent measure of release rate when very rapid or immediate flame involvement of the specimen surface occurs. However, piloted, point ignition allows release-rate information to be obtained at external heat flux from zero up to that required for satisfactory gas-phase ignition, usually over 20 kW/m2 external exposure. No correlation between the two modes of piloted ignition has been established.
5.6 Release rates depend on many factors, some of which cannot be controlled. It is possible that samples that produce a surface char, a layer of adherent ash, or those that are composites or laminates do not attain a steady-state release rate. Thermally ...
SCOPE
1.1 This test method provides for determining the release rates of heat and visible smoke (Note 1) from materials, products, or assemblies when exposed to different levels of radiant heat.
Note 1: Visible smoke is described in terms of the obscuration of transmitted light caused by combustion products released during the tests (see 14.2.1).
1.2 This fire-test-response method assesses heat release by a thermal method, thermopile, using a radiant heat source composed of an array of four electrical resistance elements.
1.3 This test method provides for radiant thermal exposure of a specimen both with and without a pilot. Piloted ignition results from direct flame impingement on the specimen (piloted, point ignition) or from use of the pilot to ignite gases evolved by pyrolysis of the specimen.
1.4 Heat and smoke release are measured from the moment the specimen is injected into a controlled exposure chamber. The measurements are continued during the period of ignition (and progressive flame involvement of the surface in the case of point ignition), and to such a time that the test is terminated.
1.5 The apparatus described in this test method is often referred to as the Ohio State University (OSU) rate of heat release apparatus. Configurations A and B are variations on the original design.
1.6 This test method is suitable for exposing essentially planar materials, products or assemblies to a constant, imposed external heat flux that ranges from 0 kW/m 2 to 80 kW/m 2.
1.7 The apparatus described in this test method has been used in two configurations. Configuration A is that which is used by the Federal Aviation Administration for assessing materials for aircraft use, at an external heat flux of 35 kW/m2 (DOT/FAA/AR-00/12), while configuration B is suitable, at various incident heat fluxes, for research and development purposes.
1.8 This test method does not provide information on the fire performanc...
General Information
- Status
- Published
- Publication Date
- 30-Nov-2021
- Technical Committee
- E05 - Fire Standards
- Drafting Committee
- E05.21 - Smoke and Combustion Products
Relations
- Effective Date
- 01-Jan-2024
- Effective Date
- 15-Dec-2018
- Effective Date
- 01-Mar-2018
- Effective Date
- 01-May-2016
- Effective Date
- 01-Feb-2016
- Effective Date
- 01-Aug-2015
- Effective Date
- 01-Aug-2015
- Effective Date
- 01-Aug-2015
- Effective Date
- 15-May-2015
- Effective Date
- 01-Feb-2015
- Effective Date
- 01-Oct-2014
- Effective Date
- 15-Aug-2014
- Effective Date
- 01-Aug-2014
- Effective Date
- 01-Jul-2014
- Effective Date
- 01-May-2014
Overview
ASTM E906/E906M-21 is the Standard Test Method for Heat and Visible Smoke Release Rates for Materials and Products Using a Thermopile Method. Developed by ASTM International, this standard outlines procedures to determine the rates of heat and visible smoke release from materials, products, or assemblies exposed to various levels of radiant heat using a thermopile approach. The method is widely recognized as the Ohio State University (OSU) heat release rate test and is critical in fire testing, particularly in industries requiring a rigorous understanding of fire behavior, such as aerospace, construction, and manufacturing.
The method provides quantitative data on how materials behave when subjected to fire exposure, which assists manufacturers, regulatory bodies, and researchers in assessing product safety, meeting compliance requirements, and guiding material development.
Key Topics
Heat Release Rate Measurement
The standard specifies how to measure the amount of heat released per square meter from a tested specimen under controlled radiant heat flux.Visible Smoke Release
Smoke measurement is based on the obscuration of transmitted light, providing data on smoke generation during combustion.Thermopile Principle
The test uses a thermopile-a device composed of thermocouple junctions-to measure the temperature difference between incoming and outgoing air, translating this into heat release data.Exposure Configurations
Specimens can be tested in vertical or horizontal orientations and can be subjected to piloted (point ignition) or non-piloted ignition, reflecting different real-world fire scenarios.Test Apparatus
The standard describes equipment configurations (notably OSU configurations A and B) suited for both regulatory testing (such as aircraft interiors) and research/development uses.Data Interpretation and Limitations
Results are specific to the size and configuration of the tested specimen. The method does not assess all possible fire performances but provides valuable information for comparative and developmental purposes.
Applications
Aircraft Interiors
Frequently used by aviation authorities such as the FAA, the ASTM E906/E906M-21 standard is essential in certifying the fire performance of cabin materials, where the rate of heat and smoke release is critical for passenger safety.Building and Construction Materials
Applied to wall coverings, insulation, and flooring materials to evaluate fire safety characteristics and compliance with fire codes.Product Development and Research
Manufacturers and researchers use data from this test to compare materials, study effects of material modifications, and improve product fire performance.Regulatory Compliance
Helps manufacturers demonstrate compliance with local and international fire safety regulations by providing standardized, repeatable measurements.Material Comparisons
Enables direct comparison of materials or assemblies under identical fire exposure scenarios, supporting specification and selection decisions.
Related Standards
ASTM E1354
Test Method for Heat and Visible Smoke Release Rates by Oxygen Consumption Calorimeter (Cone Calorimeter), offering a complementary approach via oxygen depletion.ASTM E176
Terminology of Fire Standards, providing standard definitions for fire testing vocabulary.ASTM D618
Practice for Conditioning Plastics for Testing, referenced for specimen preparation requirements.ISO 13943
Fire Safety - Vocabulary, aligning global terminology for fire testing and safety.FAA DOT/FAA/AR-00/12
Aircraft Material Fire Test Handbook, which details federal requirements for aircraft materials, correlating with configuration A of this standard.
Keywords: ASTM E906, smoke release, heat release rate, thermopile method, OSU apparatus, fire testing standard, radiant heat exposure, material fire performance, visible smoke measurement, product safety compliance.
Buy Documents
ASTM E906/E906M-21 - Standard Test Method for Heat and Visible Smoke Release Rates for Materials and Products Using a Thermopile Method
REDLINE ASTM E906/E906M-21 - Standard Test Method for Heat and Visible Smoke Release Rates for Materials and Products Using a Thermopile Method
Get Certified
Connect with accredited certification bodies for this standard

NSF International
Global independent organization facilitating standards development and certification.
CIS Institut d.o.o.
Personal Protective Equipment (PPE) certification body. Notified Body NB-2890 for EU Regulation 2016/425 PPE.

Kiwa BDA Testing
Building and construction product certification.
Sponsored listings
Frequently Asked Questions
ASTM E906/E906M-21 is a standard published by ASTM International. Its full title is "Standard Test Method for Heat and Visible Smoke Release Rates for Materials and Products Using a Thermopile Method". This standard covers: SIGNIFICANCE AND USE 5.1 This test method provides a description of the behavior of material specimens under a specified fire exposure in terms of the release rate of heat and visible smoke. It is possible to determine the change in behavior of materials and products with change in heat-flux exposure by testing specimens in a series of exposures that cover a range of heat fluxes. 5.2 The data obtained for a specific test describe the rate of heat and smoke release of the specimen when exposed to the specific environmental conditions and procedures used in performing that test. 5.3 The entire exposed surface of the specimen will not be burning during the progressive involvement phase when piloted, point ignition (impingement) procedures are used. During the period of progressive surface involvement, release rates of heat and smoke are “per square metre of original exposed surface area” not “per square metre of flame involved surface.” 5.4 The rates of both heat and smoke release are calculated per square metre of original surface area exposed. If a specimen swells, sags, delaminates, or otherwise deforms so that the exposed surface area changes, calculated release rates correspond to the original area, not to the new surface area. 5.5 Heat-release values depend on mode of ignition. Gas phase ignition gives a more dimensionally consistent measure of release rate when very rapid or immediate flame involvement of the specimen surface occurs. However, piloted, point ignition allows release-rate information to be obtained at external heat flux from zero up to that required for satisfactory gas-phase ignition, usually over 20 kW/m2 external exposure. No correlation between the two modes of piloted ignition has been established. 5.6 Release rates depend on many factors, some of which cannot be controlled. It is possible that samples that produce a surface char, a layer of adherent ash, or those that are composites or laminates do not attain a steady-state release rate. Thermally ... SCOPE 1.1 This test method provides for determining the release rates of heat and visible smoke (Note 1) from materials, products, or assemblies when exposed to different levels of radiant heat. Note 1: Visible smoke is described in terms of the obscuration of transmitted light caused by combustion products released during the tests (see 14.2.1). 1.2 This fire-test-response method assesses heat release by a thermal method, thermopile, using a radiant heat source composed of an array of four electrical resistance elements. 1.3 This test method provides for radiant thermal exposure of a specimen both with and without a pilot. Piloted ignition results from direct flame impingement on the specimen (piloted, point ignition) or from use of the pilot to ignite gases evolved by pyrolysis of the specimen. 1.4 Heat and smoke release are measured from the moment the specimen is injected into a controlled exposure chamber. The measurements are continued during the period of ignition (and progressive flame involvement of the surface in the case of point ignition), and to such a time that the test is terminated. 1.5 The apparatus described in this test method is often referred to as the Ohio State University (OSU) rate of heat release apparatus. Configurations A and B are variations on the original design. 1.6 This test method is suitable for exposing essentially planar materials, products or assemblies to a constant, imposed external heat flux that ranges from 0 kW/m 2 to 80 kW/m 2. 1.7 The apparatus described in this test method has been used in two configurations. Configuration A is that which is used by the Federal Aviation Administration for assessing materials for aircraft use, at an external heat flux of 35 kW/m2 (DOT/FAA/AR-00/12), while configuration B is suitable, at various incident heat fluxes, for research and development purposes. 1.8 This test method does not provide information on the fire performanc...
SIGNIFICANCE AND USE 5.1 This test method provides a description of the behavior of material specimens under a specified fire exposure in terms of the release rate of heat and visible smoke. It is possible to determine the change in behavior of materials and products with change in heat-flux exposure by testing specimens in a series of exposures that cover a range of heat fluxes. 5.2 The data obtained for a specific test describe the rate of heat and smoke release of the specimen when exposed to the specific environmental conditions and procedures used in performing that test. 5.3 The entire exposed surface of the specimen will not be burning during the progressive involvement phase when piloted, point ignition (impingement) procedures are used. During the period of progressive surface involvement, release rates of heat and smoke are “per square metre of original exposed surface area” not “per square metre of flame involved surface.” 5.4 The rates of both heat and smoke release are calculated per square metre of original surface area exposed. If a specimen swells, sags, delaminates, or otherwise deforms so that the exposed surface area changes, calculated release rates correspond to the original area, not to the new surface area. 5.5 Heat-release values depend on mode of ignition. Gas phase ignition gives a more dimensionally consistent measure of release rate when very rapid or immediate flame involvement of the specimen surface occurs. However, piloted, point ignition allows release-rate information to be obtained at external heat flux from zero up to that required for satisfactory gas-phase ignition, usually over 20 kW/m2 external exposure. No correlation between the two modes of piloted ignition has been established. 5.6 Release rates depend on many factors, some of which cannot be controlled. It is possible that samples that produce a surface char, a layer of adherent ash, or those that are composites or laminates do not attain a steady-state release rate. Thermally ... SCOPE 1.1 This test method provides for determining the release rates of heat and visible smoke (Note 1) from materials, products, or assemblies when exposed to different levels of radiant heat. Note 1: Visible smoke is described in terms of the obscuration of transmitted light caused by combustion products released during the tests (see 14.2.1). 1.2 This fire-test-response method assesses heat release by a thermal method, thermopile, using a radiant heat source composed of an array of four electrical resistance elements. 1.3 This test method provides for radiant thermal exposure of a specimen both with and without a pilot. Piloted ignition results from direct flame impingement on the specimen (piloted, point ignition) or from use of the pilot to ignite gases evolved by pyrolysis of the specimen. 1.4 Heat and smoke release are measured from the moment the specimen is injected into a controlled exposure chamber. The measurements are continued during the period of ignition (and progressive flame involvement of the surface in the case of point ignition), and to such a time that the test is terminated. 1.5 The apparatus described in this test method is often referred to as the Ohio State University (OSU) rate of heat release apparatus. Configurations A and B are variations on the original design. 1.6 This test method is suitable for exposing essentially planar materials, products or assemblies to a constant, imposed external heat flux that ranges from 0 kW/m 2 to 80 kW/m 2. 1.7 The apparatus described in this test method has been used in two configurations. Configuration A is that which is used by the Federal Aviation Administration for assessing materials for aircraft use, at an external heat flux of 35 kW/m2 (DOT/FAA/AR-00/12), while configuration B is suitable, at various incident heat fluxes, for research and development purposes. 1.8 This test method does not provide information on the fire performanc...
ASTM E906/E906M-21 is classified under the following ICS (International Classification for Standards) categories: 13.220.50 - Fire-resistance of building materials and elements. The ICS classification helps identify the subject area and facilitates finding related standards.
ASTM E906/E906M-21 has the following relationships with other standards: It is inter standard links to ASTM E176-24, ASTM E176-18a, ASTM E176-18, ASTM E1354-16a, ASTM E1354-16, ASTM E176-15a, ASTM E1354-15a, ASTM E176-15ae1, ASTM E1354-15, ASTM E176-15, ASTM E176-14c, ASTM E176-14b, ASTM E176-14a, ASTM E176-14, ASTM E1354-14e1. Understanding these relationships helps ensure you are using the most current and applicable version of the standard.
ASTM E906/E906M-21 is available in PDF format for immediate download after purchase. The document can be added to your cart and obtained through the secure checkout process. Digital delivery ensures instant access to the complete standard document.
Standards Content (Sample)
This international standard was developed in accordance with internationally recognized principles on standardization established in the Decision on Principles for the
Development of International Standards, Guides and Recommendations issued by the World Trade Organization Technical Barriers to Trade (TBT) Committee.
Designation: E906/E906M − 21 An American National Standard
Standard Test Method for
Heat and Visible Smoke Release Rates for Materials and
Products Using a Thermopile Method
This standard is issued under the fixed designation E906/E906M; the number immediately following the designation indicates the year
of original adoption or, in the case of revision, the year of last revision.Anumber in parentheses indicates the year of last reapproval.
A superscript epsilon (´) indicates an editorial change since the last revision or reapproval.
1. Scope* (DOT/FAA/AR-00/12), while configuration B is suitable, at
various incident heat fluxes, for research and development
1.1 This test method provides for determining the release
purposes.
rates of heat and visible smoke (Note 1) from materials,
products, or assemblies when exposed to different levels of
1.8 This test method does not provide information on the
radiant heat. fire performance of the test specimens under fire conditions
other than those conditions specified in this test method.
NOTE 1—Visible smoke is described in terms of the obscuration of
Known limitations of this test method are described in 1.8.1 –
transmitted light caused by combustion products released during the tests
1.8.5.
(see 14.2.1).
1.8.1 Heat and smoke release rates depend on a number of
1.2 Thisfire-test-responsemethodassessesheatreleasebya
factors, including the formation of surface char, the formation
thermal method, thermopile, using a radiant heat source
of an adherent ash, sample thickness, and the method of
composed of an array of four electrical resistance elements.
mounting.
1.3 This test method provides for radiant thermal exposure
1.8.2 Heat release values are a function of the specific
of a specimen both with and without a pilot. Piloted ignition
specimen size (exposed area) tested. Results are not directly
results from direct flame impingement on the specimen
scaleable to different exposed surface areas for some products.
(piloted, point ignition) or from use of the pilot to ignite gases
1.8.3 The test method is limited to the specified specimen
evolved by pyrolysis of the specimen.
sizesofmaterials,products,orassemblies.Ifproductsaretobe
tested, the test specimen shall be representative of the product
1.4 Heat and smoke release are measured from the moment
inactualuse.Thetestislimitedtoexposureofonesurface;the
the specimen is injected into a controlled exposure chamber.
options for exposed surface are vertical and horizontal facing
The measurements are continued during the period of ignition
up.
(and progressive flame involvement of the surface in the case
ofpointignition),andtosuchatimethatthetestisterminated.
1.8.4 At very high specimen heat release rates, it is possible
that flaming is observed above the stack, which makes the test
1.5 The apparatus described in this test method is often
invalid.
referred to as the Ohio State University (OSU) rate of heat
1.8.5 No general relationship has been established between
releaseapparatus.ConfigurationsAandBarevariationsonthe
heat release rate values obtained from horizontally and verti-
original design.
cally oriented specimens. Specimens that melt and drip in the
1.6 This test method is suitable for exposing essentially
vertical orientation shall be tested horizontally.
planarmaterials,productsorassembliestoaconstant,imposed
2 2
1.9 The values stated in either SI units or inch-pound units
external heat flux that ranges from 0kW⁄m to 80 kW/m .
are to be regarded separately as standard. The values stated in
1.7 The apparatus described in this test method has been
each system may not be exact equivalents; therefore, each
used in two configurations. Configuration A is that which is
system shall be used independently of the other. Combining
used by the Federal Aviation Administration for assessing
values from the two systems may result in non-conformance
materials for aircraft use, at an external heat flux of 35 kW/m
with the standard.
1.10 Fire testing involves hazardous materials, operations,
and equipment. See Section 6.
This test method is under the jurisdiction of ASTM Committee E05 on Fire
Standards and is the direct responsibility of Subcommittee E05.21 on Smoke and
1.11 This standard is used to measure and describe the
Combustion Products.
response or materials, products, or assemblies to heat and
Current edition approved Dec. 1, 2021. Published January 2022. Originally
flame under controlled conditions, but does not by itself
approved in 1983. Last previous edition approved in 2017 as E906–17. DOI:
10.1520/E0906-21. incorporate all factors required for fire hazard or fire risk
*A Summary of Changes section appears at the end of this standard
Copyright © ASTM International, 100 Barr Harbor Drive, PO Box C700, West Conshohocken, PA 19428-2959. United States
E906/E906M − 21
assessment of the materials, products, or assemblies under 3.2.5 SMOKE unit, n—the concentration of smoke particu-
actual fire conditions. lates in a cubic metre of air that reduces the percent transmis-
sion of light through a 1m path to 10%. SMOKE = Standard
1.12 This standard does not purport to address all of the
Metric Optical Kinetic Emission.
safety concerns, if any, associated with its use. It is the
responsibility of the user of this standard to establish appro- 3.2.6 time to ignition, n—time between the start of the test
priate safety, health, and environmental practices and deter- and the presence of a flame on or over most of the specimen
mine the applicability of regulatory limitations prior to use. surface for a period of at least 4s.
1.13 Fire testing is inherently hazardous. Adequate safe-
4. Summary of Test Method
guards for personnel and property shall be employed in
4.1 The specimen to be tested is injected into an environ-
conducting these tests.
mental chamber through which a constant flow of air passes.
1.14 This international standard was developed in accor-
The specimen’s exposure is determined by a radiant heat
dance with internationally recognized principles on standard-
source adjusted to produce the desired total heat flux on the
ization established in the Decision on Principles for the
specimen. Exposure options include: horizontal or vertical
Development of International Standards, Guides and Recom-
orientations; nonpiloted ignition, piloted ignition of evolved
mendations issued by the World Trade Organization Technical
gases,orpointignitionofthesurface.Thechangesintempera-
Barriers to Trade (TBT) Committee.
ture and optical density of the gas leaving the chamber are
monitored, and from this data the release rates of heat and
2. Referenced Documents
visible smoke (see 14.2.1) are calculated.
2.1 ASTM Standards:
D618Practice for Conditioning Plastics for Testing
5. Significance and Use
E176Terminology of Fire Standards
5.1 This test method provides a description of the behavior
E1354Test Method for Heat and Visible Smoke Release
of material specimens under a specified fire exposure in terms
Rates for Materials and Products Using an Oxygen Con-
of the release rate of heat and visible smoke. It is possible to
sumption Calorimeter
determine the change in behavior of materials and products
2.2 ISO Standard:
with change in heat-flux exposure by testing specimens in a
ISO 13943Fire Safety-Vocabulary
series of exposures that cover a range of heat fluxes.
2.3 Federal Aviation Administration Standard:
5.2 The data obtained for a specific test describe the rate of
Aircraft Material Fire Test Handbook, DOT/FAA/AR-00/
heat and smoke release of the specimen when exposed to the
12, FAA Technical Center, April 2000
specific environmental conditions and procedures used in
performing that test.
3. Terminology
5.3 The entire exposed surface of the specimen will not be
3.1 Definitions—For definitions of terms used in this test
burning during the progressive involvement phase when
method refer to the terminology contained in Terminology
piloted, point ignition (impingement) procedures are used.
E176 and ISO 13943, Fire Safety-Vocabulary. In case of
During the period of progressive surface involvement, release
conflict, the definitions given in Terminology E176 shall
rates of heat and smoke are “per square metre of original
prevail.
exposed surface area” not “per square metre of flame involved
3.2 Definitions of Terms Specific to This Standard:
surface.”
3.2.1 continuous, as related to data acquisition, adj—
5.4 The rates of both heat and smoke release are calculated
conducted at data collection intervals of 5s or less.
per square metre of original surface area exposed. If a
3.2.2 exposed surface, n—that surface of the specimen
specimen swells, sags, delaminates, or otherwise deforms so
subjected to the incident heat.
that the exposed surface area changes, calculated release rates
3.2.3 gas phase ignition, n—ignition of pyrolysis products
correspond to the original area, not to the new surface area.
leaving a heated surface by a pilot flame or other ignition
5.5 Heat-release values depend on mode of ignition. Gas
source that does not impinge on, nor significantly affect, for
phase ignition gives a more dimensionally consistent measure
example, by reradiation, the heated surface.
of release rate when very rapid or immediate flame involve-
3.2.4 orientation, n—planeinwhichtheexposedfaceofthe
ment of the specimen surface occurs. However, piloted, point
specimen is located during testing, either vertical or horizon-
ignition allows release-rate information to be obtained at
tally face upwards.
external heat flux from zero up to that required for satisfactory
gas-phase ignition, usually over 20 kW/m external exposure.
No correlation between the two modes of piloted ignition has
For referenced ASTM standards, visit the ASTM website, www.astm.org, or
contact ASTM Customer Service at service@astm.org. For Annual Book of ASTM
been established.
Standards volume information, refer to the standard’s Document Summary page on
5.6 Release rates depend on many factors, some of which
the ASTM website.
Available from International Standardization Organization, P.O. Box 56,
cannot be controlled. It is possible that samples that produce a
CH-1211, Geneva 20, Switzerland.
surface char, a layer of adherent ash, or those that are
AvailablefromNationalTechnicalInformationService(NTIS),Springfield,VA
composites or laminates do not attain a steady-state release
22161.An electronic version of the handbook with the latest revisions can be found
at the FAA website: http://www.fire.tc.faa.gov/handbook.stm. rate. Thermally thin specimens, that is, specimens whose
E906/E906M − 21
unexposed surface changes temperature during period of test, by 5.94in. +0in., -0.06in.] exposed surface with thickness up
will not attain a steady-state release rate. Therefore, release to 100 mm [4.0in.]. The standard size for horizontally
ratesforagivenmaterialwilldepend,forexample,onhowthe mounted specimens is 150mm 6 2mm by 150mm 62mm
material is used, its thickness, and the method of mounting. [5.94in. +0in., -0.06in. by 5.94in. +0in., -0.06in.] exposed
surface, up to 45mm [1.75in.] thick. Mount thin specimens,
5.7 Heat-release values are for the specific specimen size
such as wall or floor coverings, in the same manner as used.
(exposed area) tested. Results are not directly scalable to
For example, test a wall covering to be glued to gypsum wall
different exposed surface areas for some products.
boardwhengluedtoasectionofgypsumboardusingthesame
5.8 The method is limited to specimen sizes of materials in
type of adhesive. The assembly shall be considered the
accordance with 7.1 and to products from which it is possible
specimen to be tested. Applications requiring thicknesses
toobtainatestspecimenrepresentativeoftheproductinactual
greater than 45mm [1.75in.] shall be tested at 45mm
use.Thetestislimitedtoexposureofonesurface;therearetwo
[1.75in.] thicknesses.
optionsforexposureorientation:eitherverticalorhorizontal.If
2 7.2 Conditioning—Condition the specimens at 23°C 6
a heat release rate of 8 kW, which is equivalent to 355 kW/m
3°C [70°F 6 5°F] and 50% 6 5% relative humidity for a
for 150mm [6-in.] by 150mm [6-in.] vertical specimens, or
2 minimum of 24h prior to test, or as described by ProcedureA
533kW⁄m for 100mm [4-in.] by 150mm [6-in.] horizontal
of Practice D618, if appropriate.
specimens is exceeded, there is danger of combustion occur-
ring above the stack. 7.3 Mounting—Expose only one surface of a specimen
duringatest.Insulate,onfivesides,specimensthathaveaslab
5.9 No general relationship between release rate values
geometry.Asinglelayerof0.03mm 60.01mm[0.0012-in. 6
obtained from horizontally and vertically oriented specimens
0.005-in.] aluminum foil shall be wrapped tightly on all
hasbeenestablished.Conducttestsonspecimensintheformin
unexposed sides with the dull side of the foil facing the
whichthematerialisorientedinenduseconditions.Toprovide
specimen surface. For products whose exposed surface is not a
additional information, conduct tests in the horizontal orienta-
plane, describe mounting and method of calculating surface
tion for those specimens that melt and drip in the vertical
area exposed when reporting results.
orientation.
7.4 Specimen Orientation—For specimens with anisotropic
5.10 Release rate measurements provide useful information
properties (meaning they have different properties in different
for product development by giving a quantitative measure of
directions such as machine and cross-machine directions for
specific changes in fire test performance caused by product
extrusions, wrap and fill for woven fabrics), the specimens
modifications.
shall be tested in the orientation giving the highest results. If
5.11 Thistestmethoddiffersinboththemethodofexposure
this orientation is not known prior to test, two sets of at least
and the calculation procedure from the techniques used inTest
threespecimenseachshallbepreparedandtested,withoneset
Method E1354, the cone calorimeter, which assesses heat
oriented in one direction and the second set oriented in the
release by oxygen consumption calorimetry, using a truncated
other direction.
cone as a radiant source.
8. Release Rate Apparatus—Configuration A
6. Operator Safety
8.1 The apparatus shown in Figs. 1 and 2 shall be used to
6.1 The test procedure involves high temperatures, and
determine heat release rates. All exterior surfaces of the
combustionprocesses.Therefore,itispossibleforeyeinjuries,
apparatus, except the holding chamber, shall be insulated with
burns,ignitionofextraneousobjectsorclothing,andinhalation
25mm 6 1mm [1in. 6 0.04in.] thick, low-density, high-
of smoke or combustion products to occur, unless proper
5,6
temperature, fiberglass board insulation. A gasketed door,
precautions are taken. To avoid accidental leakage of toxic
through which the sample injection rod slides, shall be pro-
combustion products into the surrounding atmosphere, it is
vided to form an airtight closure on the specimen hold
advisable to evacuate the chamber, at the end of a test, into an
chamber.
exhaust system with adequate capacity. The operator must use
8.2 Thermopile—The temperature difference between the
heavy gloves, safety tongs or other suitable protection for
air entering the environmental chamber and that leaving shall
removal of the specimen holder. The venting must be checked
bemonitoredbyathermopilehaving5hotand5cold24-gauge
periodically for proper operation. Care shall be taken not to
chromel-alumel junctions. The loop to be formed by the
touchthesparkigniterduringoperation,ifused,sinceitcarries
thermocouplejunctionshallbe1.3mm 60.3mm[0.050in. 6
a substantial potential. The exhaust system of the apparatus
0.010in.]indiameter.Thecoldjunctionsshallbelocatedinthe
shall be checked for proper operation before testing and shall
discharge into a building exhaust system with adequate capac-
ity. The possibility of the violent ejection of molten hot
3 3
Owens-Corning Flat Duct Board, Type 475-FR, density 65 kg/m [4 lb/ft ],
material or sharp fragments from some kinds of specimens
2 2
thermal conductivity 0.033 W/(m K) [10 Btu/(ft min)], 25 mm [1 in.] thick, or its
when irradiated must be taken into account.
equivalent.
The sole source of supply of the apparatus known to the committee at this time
7. Sample Preparation is Owens-Corning, Granville, OH. If you are aware of alternative suppliers, please
provide this information to ASTM Headquarters. Your comments will receive
7.1 The standard size for vertically mounted specimens is
careful consideration at a meeting of the responsible technical committee, which
150mm 62mmby150mm 62mm[5.94in.+0in.,-0.06in. you may attend.
E906/E906M − 21
FIG. 1 Rate of Heat Release Apparatus—Example 1
E906/E906M − 21
FIG. 2 Rate of Heat Release Apparatus—Example 2
E906/E906M − 21
panbelowtheairdistributionplate(see8.4).Thehotjunctions cross section, and 254mm 6 1 mm [10in. 6 0.04 in.] long,
shallbelocated10mm 61mm[0.38in. 60.04in.]belowthe fabricated from stainless steel, shall be mounted on the outlet
top of the chimney. One of the hot junctions shall be placed at ofthepyramidalsection(seeFigs.1and2).A25mm 61mm
the center of the chimney’s cross section, and the other four by 76mm 61mm[1in. 6 0.04in. by 3in. 6 0.04 in.] plate
shall be placed on the chimney diagonals 30mm 6 1mm of 0.46mm 6 0.05 mm [0.018in. 6 0.002 in.] stainless steel
[1.18in. 6 0.04in.] from the center thermocouple. shall be centered inside the stack, perpendicular to the airflow,
76mm 61mm[3in. 6 0.04 in.] above the base of the stack.
8.3 Radiant Heat Source—A radiant heat source for gener-
ating a heat flux of up to 80 kW/m , using four silicon carbide 8.6 Specimen Holders—Specimen holders shall be fabri-
cated of stainless steel sheet 0.46mm 6 0.05 mm [0.018in. 6
elements Type LL, 508mm 6 3 mm [20in. 6 0.1 in.] by
0.002 in.] thick as shown in Fig. 4. Specimen holders shall be
16mm 61mm[0.63in. 60.04in.],withanominalresistance
attached to the injection rod using the support shown in Fig. 4.
of 1.4Ω, as shown in Figs. 1-3, shall be used. The silicon
Each holder shall be provided with a “V”-shaped spring
carbide elements shall be mounted in the stainless steel panel
pressureplate.Thepositionofthespringpressureplateshallbe
box by inserting them through 16mm 6 1 mm [0.63in. 6
capable of being changed to accommodate different specimen
0.04in.] holes in 0.9mm 6 0.1mm [0.03-in. 6 0.004-in.]
thicknesses by inserting the retaining rod in different holes of
thick ceramic fiber or calcium-silicate millboard. Locations of
the specimen holder frame. Each holder shall also have two
the holes in the pads and stainless steel covered plates shall be
wiresattachedtothefrontoftheholdertosecurethefaceofthe
as shown in Fig. 3. A truncated diamond-shaped mask con-
specimen in the holder.
structed of 1.07mm 6 0.05 mm [0.042in. 6 0.002 in.]
stainless steel shall be added to provide uniform heat flux 8.6.1 Drip Pan—A drip pan shall be fabricated of stainless
density over the area occupied by the vertical specimen. An steel sheet 0.46mm 6 0.05 mm [0.018in. 6 0.002 in.] thick
adjustable power supply capable of producing 12.5kVA shall asshowninFig.4andbeattachedtothespecimenholderusing
be provided. The heat flux density over the specimen surface the flanges shown in Fig. 4. Line the drip pan with aluminum
when set at 35kW⁄m shall be uniform within 5%, and shall foil, to facilitate cleaning after a test.
becheckedperiodicallyandaftereachheatingelementchange.
NOTE 2—Drip pans are required to prevent melting specimens from
Uniformity of heat flux density shall be determined by calo-
dripping into the lower pilot burner.
rimeter measurements at the center and at the four corners of
8.7 Calorimeter—A water-cooled, total heat flux density,
the specimen surface.
foil-type Gardon gauge calorimeter shall be used to measure
8.4 Air Distribution System—The air entering the apparatus
the total heat flux density at a point where the center of the
shall be 21°C to 24°C [70°F to 75°F] in temperature and set
specimen surface is located at the start of the test. When
3 3 3 3
at approximately 0.04m /s 6 0.01m /s [85ft /min 6 20ft /
positioned to measure flux density, the sensing surface of the
min] using an orifice meter. The orifice meter shall be
meter shall be flush with the supporting device surface so that
comprised of a square-edged circular plate orifice, 0.5mm 6
air heated by such a support does not contact the sensing
0.1 mm [0.020in. 6 0.004 in.] thick, located in a circular pipe
surface of the meter.
with a diameter of 38mm 6 1 mm [1.50in. 6 0.04in.], with
8.8 Pilot Burners—Pilot burners shall be placed at the
two pressure measuring points located 38mm 6 1mm
bottom and top of the specimens. The burners shall be
[1.50in. 6 0.04 in.] above and 20mm 6 1 mm [0.75in. 6
constructed of stainless steel tubing with a 6mm 61mm
0.04 in.] below the orifice and connected to a mercury
[0.25in. 6 0.04 in.] outside diameter (OD) and 0.8mm 6
manometer. The inlet pipe shall remain 38mm 6 1mm
0.1mm [0.03in. 6 0.004 in.] wall thickness.
[1.50in. 6 0.04 in.] in diameter (Fig. 1).
8.8.1 Lower Pilot Burner—The lower pilot burner shall be
8.4.1 The air entering the environmental chamber shall be
locatedasshowninFig.1.Thelowerpilotburnershallhaveits
distributed by a 6.3mm 6 2 mm [0.25in. 6 0.04 in.] thick
centerline perpendicular to the surface of the specimen and
aluminum plate having eight 5.3mm 6 0.03mm [0.209-in. 6
5mm 6 1 mm [0.19in. 6 0.04 in.] above the specimen’s
0.001-in.]drillholes(ANSINo.4drillholes),51mm 61mm
lower exposed edge, and shall have its end 10mm 61mm
[2.0in. 6 0.04 in.] from the sides on 102mm 6 2 mm [4in.
[0.38in. 6 0.04 in.] from the specimen’s surface.Amethane-
6 0.08 in.] centers, mounted at the base of the environmental
3 3
air mixture shall be used consisting of 120cm /min 6 10cm /
chamber.Asecond plate having 120 evenly spaced, 3.6mm 6
3 3
min [0.0040ft /min 6 0.0003ft /min] (at standard tempera-
0.03mm [0.140-in. 6 0.001-in.] drill holes (ANSI No. 28 drill
ture and pressure) methane (99% minimum purity) and an air
holes) shall be mounted 152mm 62mm[6in. 6 0.08 in.]
supply, adjusted to produce a flame such that the inner cone is
above the aluminum plate (Fig. 2).
approximately the same length as the diameter of the flame.
8.4.2 The air supply manifold at the base of the pyramidal
8.8.2 Spark Igniter—A spark igniter shall be installed to
section shall have 48 evenly spaced, 3.7mm 6 0.03mm
ensure that the lower pilot burner remains burning. A test is
[0.147-in. 6 0.001-in.] drill holes (ANSI No. 26 drill holes)
invalidated if the lower pilot burner becomes extinguished for
10mm 61mm[0.38in. 60.04in.]fromtheinneredgeofthe
any period that exceeds 3 s.Acircuit for a satisfactory device
manifold,resultinginanairflowsplitofapproximatelythreeto
is sketched in Fig. 5.
one within the apparatus (Fig. 1).
8.8.3 Upper Pilot Burner—An upper pilot burner shall be
8.5 Exhaust Stack—An exhaust stack, 133mm 61mmby providedtoproduceflameletsabovethetestspecimentoignite
70mm 6 1 mm [5.25in. 6 0.04 in. by 2.75in. 6 0.04 in.] in flammable gases. If any of the flamelets on the upper pilot
E906/E906M − 21
FIG. 3 Side View—Globar Radiant Heat Panel
E906/E906M − 21
FIG. 4 Heat Release Specimen Holder, Mounting Bracket, and Drip Pan
E906/E906M − 21
6 0.04 in.] apart, with the first hole located 5mm 61mm
[0.19in. 60.04in.]fromtheclosedend,asisshowninFig.6.
The burner shall be positioned above the specimen holder so
that the middle hole lies in the plane perpendicular to the
exposedsurfaceofthespecimenandpassesthroughitsvertical
centerline.Theburnerfuelshallbemethaneof99%minimum
purity.Thefuelflowrateshallbeadjustedtoproduceflamelets
25 mm [1 in.] in length that bend upwards slightly above the
burner tube.
8.8.5 Optional Fourteen-Hole Burner—An optional burner
that has been found satisfactory is as follows; this burner has a
greater probability of reigniting flamelets which become ex-
tinguishedduringatest.Fourteen1.04mm 60.01mm[0.041-
in. 6 0.0005-in.] drill holes (ANSI No. 59 drill holes), each
radiating in the same direction, shall be drilled into a 381mm
6 10mm [15in. 6 0.4in.] length of nominally 7mm
FIG. 5 Lower Pilot Burner Igniter Schematic
[0.25in.] tubing. The holes shall be spaced 13mm 6 1mm
[0.5in. 6 0.04 in.] apart with the first hole located 13mm 6
1mm[0.5in. 60.04in.]fromtheclosedend,asshowninFig.
burnerextinguishesforaperiodlongerthan3sduringthetest,
7.Theburnershallbepositionedabovethespecimenholderso
the test is invalidated. The upper pilot burner shall be con-
that the holes are placed above the specimen holder as shown
structed from a piece of stainless steel tubing with an OD of
in Fig. 7. The fuel fed to this burner shall be methane of 99%
6mm 6 1 mm [0.25in. 6 0.04 in.] and a wall thickness of
minimum purity mixed with air in a ratio of approximately
0.8mm 6 0.1 mm [0.03in. 6 0.004 in.]. The diameter hole
50/50 by volume. The total fuel flow shall be adjusted to
drilled 10mm 6 1 mm [0.38in. 6 0.04 in.] above the upper
provide flamelets 25mm [1 in.] long. When the gas/air ratio
edgeofthewindowframe,andbesupportedandpositionedby
and its fuel flow rate are properly adjusted, approximately
an adjustable Z-shaped bracket mounted outside the environ-
6mm [0.25 in.] of the flame length appears yellow in color.
mental chamber above the viewing window. The tubing shall
be located 20mm 6 1 mm [0.79in. 6 0.04 in.] above and
9. Calibration of Equipment—Configuration A
20mm 6 1 mm [0.79in. 6 0.04 in.] behind the upper front
edge of the specimen holder, and installed such that the holes
9.1 Calibration Burner—A calibration burner as shown in
are directed horizontally toward the radiant heat source. One
Fig. 8 shall be provided that fits over the end of the pilot flame
end of the tubing shall be closed with a silver solder plug or
tubing with a gas-tight connection.
equivalent.
9.2 Calibration Gas—Methane of at least 99% purity shall
8.8.4 Standard Three-Hole Burner—The standard three-
be used for calibration purposes.
hole upper pilot burner shall be constructed from a piece of
6mm 6 1 mm [0.25in. 6 0.04 in.] OD tubing 360mm 6 9.3 Wet Test Meter—Awet test meter accurate to 0.2 L/min
10mm [14in. 6 0.4 in.] long. Three 2.5mm 6 0.1 mm [0.007 ft /min] shall be provided to measure the gas flow rate
[0.098in. 6 0.004 in.] diameter drill holes (ANSI No. 40 drill tothecalibrationburner.Priortousage,thewettestmetershall
holes),eachradiatinginthesamedirection,shallbedrilledinto be leveled and filled with distilled water to the tip of the
the tubing. The holes shall be spaced 60mm 6 1 mm [2.4in. internal pointer.
FIG. 6 Upper Pilot Tube-Outlet Hole Sizes and Configurations
E906/E906M − 21
FIG. 7 Modification of the Upper Pilot Tube for the OSU Chamber
sothatthecalibrationgasflowratetothecalibrationburnercan
be set at either 1L⁄min, 4L⁄min, 6L⁄min, or 8 L/min
3 3 3 3
[0.035ft /min, 0.140ft /min, 0.210ft /min, or 0.280 ft /min].
9.4.2 Theactualcorrectedvalue, F,ofeachoftheflowrates
shall be determined to an accuracy of 0.2L⁄min [0.007ft /
mm], and these corrected values used for calibration calcula-
tions of heat release rate.
9.5 Calibration Procedure:
9.5.1 Replace the lower pilot burner with the calibration
burner shown in Fig. 8.
9.5.2 Installthewettestmeter.Ensureitisleveledandfilled
with distilled water. Ambient temperature and pressure of the
water are based on the internal wet test meter temperature.
9.5.3 Turn on the air distribution system.
9.5.4 Turn on the radiant heat source and ensure that the
2 2
heat flux density is 35.0kW⁄m 6 0.5 kW/m .
9.5.5 Using the calibration gas manifold, set the baseline
flow rate of 1 L/min [0.035 ft /min] of methane to the
FIG. 8 Calibration Burner—Configuration A
calibrationburner,andlighttheburner.Measurethethermopile
baseline voltage.
9.4 Calibration Gas Manifold:
9.5.6 Immediately prior to recording the thermopile outputs
9.4.1 Amanifold shall be provided upstream of the wet test
in 9.5.7, precondition the chamber at a methane flow rate of
meter to control calibration gas flow. The manifold shall have
8L⁄min [0.280ft /min]. Do not record the thermopile output
four flow orifices controlled by needle valves that are preset to
for this step as part of calibration.
provide calibration gas at approximate (uncorrected for the
9.5.7 Increasethegasflowtotheburnertoahigherflowrate
presence of water vapor) flow rates of 1L⁄min, 4L⁄min,
3 3 3
and then decrease to the baseline flow rate. After 2 mm of
6L⁄min, and 8 L/min [0.035ft /min, 0.140ft /min, 0.210ft /
burningateachrate,monitorthethermopileoutput(millivolts)
min, and 0.280 ft /min] as indicated by revolution rate (mea-
sured by a stop watch accurate to 1 s) of the wet test meter. for a 10-s period, and record the average reading and decrease
Output from each of the four flow orifices shall be controlled flow rate to the baseline flow of 1 L/min [0.035 ft /min]. This
byatoggleon/offvalve,andbeplumbedintoasingleflowline sequenceofincreasinganddecreasingthemethaneflowrateis
E906/E906M − 21
asfollows:1-4-1-6-1-8-1-6-1-4L/min[0.035-0.140 or during which at least one of the upper pilot flamelets was
- 0.035 - 0.210 - 0.035 - 0.280 - 0.035 - 0.210 - 0.035 - 0.140 extinguished for any period of time exceeding 3 s.
ft /min].
10.9 Calculate the heat release rate for any point of time
9.6 Computethecalibrationfactorforeachupwardratestep from the reading of the thermopile output voltage, V, at that
(that is: 1-4, 1-6, 1-8, 1-6, 1-4 L/min) according to the time as heat release rate by the following formula:
following formula:
RHR 5 k · V 2 V (2)
~ !
h 0
273 P 2 P F 2 F
~ ! ~ !
y 0
where k and V arethecalibrationfactorandthethermopile
k 5 25.31· · · ·@kWmV/m # (1)
h 0
h
T 760 ~V 2 V !
a 1 0
millivolt reading at the baseline, respectively.
where:
10.10 Determine and record the maximum heat release rate
F = corrected upper flow rate of calibration gas, L/min
during the 5-min test.
(either 4, 6, or 8),
10.11 Compute and record the total heat released after the
F = corrected baseline flow rate of methane, L/min (ap-
first 2 min of testing by integrating the heat release rate versus
proximately 1 L/min),
time curve during the first 2 min.
P = ambient atmospheric pressure, mm Hg,
P = water vapor pressure of wet test meter water
10.12 Clean the thermopile hot junctions to remove soot
y
temperature, mm Hg, after testing each specimen. Do not disturb the position of the
T = ambient temperature, K,
thermocouples. Ensure that the thermocouples are in their
a
V = thermopile voltage at upper flow rate, mV, and
1 proper position before proceeding with the next specimen.
V = thermopile voltage at baseline flow rate, mV.
NOTE 4—A small soft-bristled brush has been found satisfactory for
NOTE3—Theconstantusedintheaboveequationisderivedasfollows:
cleaning the thermocouple junctions. A template facilitates checking
25.31 = (Heat content of methane at STP, 31.176 Btu/L) × (conversion
thermocouple positioning.
factor of 0.0176 kW-min/Btu) / (area of a specimen, 0.02323 m ).
9.7 Averagethefiveresultsandcomputethepercentrelative
11. Release Rate Apparatus—Configuration B
standard deviation. If the percent relative standard deviation is
11.1 Release Rate Apparatus (Fig. 9) is used to determine
greaterthan5%,repeatthedetermination.Ifitislessthan5%,
releaseratesofheatandsmokebythistestmethod.Allexterior
use the average as the calibration factor.
surfaces of the apparatus, except the holding chamber, shall be
insulated with 25mm thick, low density, high-temperature,
10. Test Procedure and Calculations—Configuration A
fiber glass board insulation. A gasketed door, through which
10.1 Set the airflow to the equipment by adjusting the
thesampleinjectionrodslides,formsanairtightclosureonthe
pressure differential across the orifice plate to 200 mm
specimen hold chamber.
[7.87in.] mercury.
11.2 Thermopile—The temperature difference between the
10.2 Set the power supply to the Globars to produce a
air entering the environmental chamber and that leaving is
2 2
radiant flux density of 35.0kW⁄m 6 0.5kW⁄m at the point
monitored by a thermopile having five hot and five cold,
which the center of the front surface of the specimen will
24-gauge Chromel-Alumel Type K thermocouple junctions.
occupy when positioned for test.
The loop to be formed by the thermocouple junction shall be
1.4mm 60.3mm[0.050in. 60.010in.]indiameter.Thecold
10.3 Lightthepilotflamesandcheckthattheirpositionsare
junctions shall be located in the pan below the air distribution
asdescribedin10.8.Activatethesparkigniterifasparkigniter
plate. The hot junctions shall be located 10 mm [0.38 in.]
is used.
belowthetopofthechimney.Oneofthehotjunctionsshallbe
10.4 Place the specimen in the hold chamber with the
placed at the center of the chimney’s cross section, and the
radiation shield doors closed. Secure the airtight outer door,
other four shall be placed on the chimney diagonals 30 mm
and start the recording devices. Hold the specimen in the hold
[1.18 in.] from the center of the thermopile (see 11.5).The use
chamber for 60s 6 10 s.
of a compensator tab, as described in 11.2.2 through 11.2.5,is
10.5 Record, at least once per s, the thermopile millivolt
not needed if this thermopile is used.
output during the final 20 s of the hold time before the
11.2.1 Thermopile for Research Configuration—
specimen is injected and report the average as the baseline
Alternatively, the temperature difference between the air enter-
thermopile reading (millivolts).
ing the environmental chamber and that leaving is monitored
by a thermopile having three hot and three cold, 24-gauge
10.6 After recording the baseline reading and within a time
Chromel-Alumel Type K junctions. The hot junctions are
frame not exceeding 3 s, open the radiation doors, inject the
spaced across the top of the exhaust stack. Two hot junctions
specimen into the burn chamber, and close the radiation doors.
are located 25 mm [1 in.] from each side on diagonally
Record thermopile millivolt outputs at least once per s for the
opposite corners and the third in the center of the chimney’s
duration for the test.
cross 14 mm [0.55 in.] below the top of the chimney.The cold
10.7 After the test has run for 5 min, terminate the test and
junctionsarelocatedinthepanbelowthelowerairdistribution
remove the sample.
plate (see 11.5). If this thermopile is used, the use of a thermal
10.8 Discarddatafromanytestduringwhichthelowerpilot inertia compensator, as described in 11.2.2 through 11.2.5,is
burner was extinguished for any period of time exceeding 3 s, recommended.
E906/E906M − 21
FIG. 9 Release Rate Apparatus—Configuration B
E906/E906M − 21
11.2.2 Thermal Inertia Compensator—Acompensatortabis
made from 0.55mm [0.022-in.] stainless steel sheet, 10 mm
[0.4 in.] by 20 mm [0.8 in.]. An 800mm [31.5-in.] length of
24-gauge Chromel-Alumel Type K, glass-insulated duplex
thermocouplewireshallbeweldedorsilversolderedtothetab
asshowninFig.10,andthewirebentbacksoitisflushagainst
the metal surface.
11.2.3 Thecompensatortabshallbemountedontheexhaust
stack as shown in Fig. 11 using a 6/32-round head machine
screw, 12 mm [0.47-in.] long. Add small (approximately
4.5mm [0.177-in.] inside diameter, 9mm [0.354-in.] outside
diameter) washers between the head of the machine screw and
the compensator tab to give the best response to a square wave
input. One or two washers are likely to be adequate. The
FIG. 11 Compensator Tab Mount
sharpnessofthesquarewavecanbeincreasedbychangingthe
ratio of the output from the thermopile and compensator
thermocouple that is fed to the recorder. The ratio is changed
by adjusting the 1-KΩ variable resistor (R ) of the thermopile
bleeder shown in Fig. 12. When adjusting compensation keep
R assmallaspossible.Adjustmentofthecompensatorshallbe
made during calibration at a heat release rate of 7.0kW 6
0.5kW (see 12.1).
11.2.4 Adjust washers and variable resistor (R ) so that
FIG. 12 Wiring Diagram
90% full scale response is obtained in 8s to 10 s. There shall
be no overshoot as shown in Fig. 13(a). If an insufficient
number of washers is added or if R is too small, the output
with square wave input will look like Fig. 13(b). If too many
washers are added and if R is too large, the output will look
like Fig. 13(a).
11.2.5 Subtract the output of the compensator from the
thermopile. The junctions enclosed in the dotted circle of Fig.
12 are kept at the same constant temperature by electrically
insulating the junctions and placing them on the pipe carrying
air to the manifold, then covering them and the pipe with
FIG. 13 Square Wave Response
thermal insulation.
11.3 Smoke Monitor—Aphotometer (Fig. 14) measures the
shall be No. 82 miniature incandescent lamp operated at its
percent of light transmitted through the gases leaving the
recommended current, 1.0A.
apparatus.Aphotocell and circuitry shown in Fig. 15 shall be
11.3.1 The smoke monitor apparatus shall be mounted with
used and calibrated in accordance with 12.2. The light source
the center line 25 mm [1 in.] above the exhaust stack and
centered parallel to the length of the opening.The two parts of
the optical system shall be 130 mm [5.12 in.] apart. A
continuous flow of constant temperature air, approximately
The sole source of supply of the apparatus known to the committee at this time
0.004m /min, shall be maintained to the air lines to prevent
is Clairex, Plano, TX. If you are aware of alternative suppliers, please provide this
information to ASTM Headquarters. Your comments will receive careful consider- smoke from entering the smoke monitor.
ation at a meeting of the responsible technical committee, which you may attend.
11.4 RadiationSource—Aradiantheatsourceforgenerating
2 8
a flux up to 100 kW/m , using four silicon carbide elements,
Type LL, 20 by 12 by ⁄8, nominal resistance 1.6Ω, is shown
in Fig. 16 and Fig. 17. The silicon carbide elements are
mounted in the stainless steel panel box by inserting them
through 15.9mm [0.626-in.] holes in 0.8mm [0.03-in.] thick
ceramic fiber or asbestos board. Locations of the holes in the
pads and stainless steel cover plates are shown in Fig. 17. The
The sole source of supply of the apparatus known to the committee at this time
is Carborundum Co., Globar Div., Nigara Falls, NY. If you are aware of alternative
suppliers, please provide this information to ASTM Headquarters. Your comments
will receive careful consideration at a meeting of the responsible technical
FIG. 10 Compensator Tab committee, which you may attend.
E906/E906M − 21
FIG. 14 Smoke Monitor
FIG. 15 Constant Current Lamp Supply and Photocell Bridge Circuit
diamond shaped mask of 24-gauge stainless steel is added to 11.5 Air Distribution System—The air entering the environ-
provide uniform heat flux over the area occupied by the mental chamber is distributed by a 6.3mm [0.24-in.] thick
150mm by 150mm [6in. by 6 in.] vertical sample. A power
aluminum plate having eight 5.3mm 6 0.03mm [0.209-in. 6
supplyof16.5kVA,adjustablefrom0Vto270V isrequired. 0.001-in.] drill holes (ANSI No. 4 drill holes), 51 mm [2 in.]
from sides on 102mm [4-in.] centers, mounted at the base of
9 2 the environmental chamber. A second plate of 18-gauge steel
If a heat flux of up to 100 kW/m is desired, a separate power supply for each
pair of elements can be used where maximum voltage is less than 270 V. having 120 evenly spaced 3.6mm 6 0.03mm [0.140-in. 6
E906/E906M − 21
FIG. 16 Globar Radiant Panel
0.001-in.] drill holes (ANSI No. 28 drill holes) is mounted
150mm [6in.] above the aluminum plate.Awell regulated air
supply is required.
11.5.1 The air supply manifold at the base of the pyramidal
section has 48 evenly spaced 3.7mm 6 0.03mm [0.147-in 6
0.001-in] drill holes (ANSI No. 26 drill holes) 10 mm [0.4 in.]
3 3
fromtheinneredgeofthemanifoldso0.03m /s[1ft /s]ofair
3 3
flowsbetweenthepyramidalsectionsand0.01m /s[0.35ft /s]
flows through the environmental chamber when total air flow
3 3
to apparatus is controlled at 0.04m /s [1.4ft /s ].
11.6 Exhaust Stack—An exhaust stack, 133mm by 70 mm
[5.2in. by 2.8 in.] in cross section and 254 mm [10 in.] long,
fabricated from 28-gauge stainless steel is mounted on the
outlet of the pyramidal section. A 25mm by 76mm [1-in. by
3-in.] plate of 31-gauge stainless steel is centered inside the
stack, perpendicular to the air flow, 75 mm [3 in.] above the
base of the stack.
11.7 Specimen Holders—Vertical specimen holders shall be
attachedtotheinjectionrodusingtheverticalsupportshownin
Fig. 18. Two different types of specimen holders shall be
provided, one for 150mm by 150mm [6-in. by 6-in.] speci-
mens to be tested in vertical orientation (Fig. 19) and the other
for 110mm by 150mm [4.3-in. by 6.0-in.] specimens in
horizontalorientation(Fig.20).Eachholderisprovidedwitha
V-shaped spring pressure plate and 12.7mm [0.5-in.] backing
10 3
plate of rigid insulation board having a density of 320kg⁄m
3 3 3
FIG. 17 Locations of Holes in Globar Radiant Panel
6 80 kg/m [20lb⁄ft 6 5 lb/ft ] and thermal conductivity of
2 2
0.08W⁄m·K 6 0.01W⁄m·K [24Btu/ft min 6 3 Btu/ft min].
It is acceptable to change the position of the spring pressure
11.7.1 The unexposed surfaces of the specimen shall be
platetoaccommodatedifferentspecimenthicknessbyinserting
covered with two thicknesses of 0.025mm [0.001-in.] alumi-
a retaining rod in different holes of the specimen holder frame.
num foil pressed tightly to sides and back. This foil shall be
carried out and over the lip on the horizontal holder to form a
Thesolesourceofsupplyoftheapparatusknowntothecommitteeatthistime
8mm 63mmhighshieldfromradiantheatimmediatelytothe
is Babcock/Wilcox Refractories, Augusta, GA. If you are aware of alternative
side (see Fig. 20).
suppliers, please provide this information to ASTM Headquarters. Your comments
11.7.2 Pans or plates for supporting specimens that cannot
will receive careful consideration at a meeting of the responsible technical
committee, which you may attend. be mounted in the holders (see 11.7) or are to be tested in an
E906/E906M − 21
FIG. 18 Vertical Holder Mount
unrestrainedconditionshallbeconstructedsotheweightofthe the radiation doors are in their open position and the specimen
holder is minimized to reduce heat capacity of the supporting
is inserted, is adjusted to position the front surface of the
structure.Forhorizontalspecimensthatmelt,andforthermally
specimen 100 mm from the entrance of the environmental
thinspecimens,thealuminumfoilboat(see11.7.1)shallbeset
chamber.
on or backed by the 12mm [0.47-in.] rigid insulation board
11.7.4 The frame for the horizontal radiation reflector is
described in 11.7.
shown in Fig. 21, and the horizontal assembly in the burn
11.7.3 The adjustable radiation shield (see Fig. 9)onthe
position is shown in Fig. 22.
verticalspecimenholder,whichcoverstheopeningmadewhen
E906/E906M − 21
FIG. 19 Vertical Specimen Holder
11.8 Radiation Reflector for Horizontally Mounted 11.11 Pilot-Flame Positions—In addition to piloted and
Specimens—A new 320mm by 225mm [12.6-in. by 8.9-in.] nonpilotedmodeofoperation,itispossibletoaccomplishpilot
sheet of 0.025mm [0.001-in.] aluminum foil shall be placed ignition of a specimen by locating the pilot flame at different
over the rod supports before each test with bright side toward positionsrelativetothesamplesurfacesothattheflamewillor
the panel. The foil shall be supported by crimping around all will not impinge on the specimen surface.The location chosen
edges with a 2mm [1-in.] overlap. dependsonthenatureofignitiontobesimulatedbythetest.In
all piloted ignitions, the lower pilot flame size shall be in
11.9 Radiometers—Total-flux meters (calorimeters) shall
accordance with 11.10. Pilot positions are described in 11.11.1
be used to measure the total heat flux
...
This document is not an ASTM standard and is intended only to provide the user of an ASTM standard an indication of what changes have been made to the previous version. Because
it may not be technically possible to adequately depict all changes accurately, ASTM recommends that users consult prior editions as appropriate. In all cases only the current version
of the standard as published by ASTM is to be considered the official document.
Designation: E906/E906M − 17 E906/E906M − 21 An American National Standard
Standard Test Method for
Heat and Visible Smoke Release Rates for Materials and
Products Using a Thermopile Method
This standard is issued under the fixed designation E906/E906M; the number immediately following the designation indicates the year
of original adoption or, in the case of revision, the year of last revision. A number in parentheses indicates the year of last reapproval.
A superscript epsilon (´) indicates an editorial change since the last revision or reapproval.
1. Scope*
1.1 This test method provides for determining the release rates of heat and visible smoke (Note 1) from materials, products, or
assemblies when exposed to different levels of radiant heat.
NOTE 1—Visible smoke is described in terms of the obscuration of transmitted light caused by combustion products released during the tests (see 14.2.1).
1.2 This fire-test-response method assesses heat release by a thermal method, thermopile, using a radiant heat source composed
of an array of four electrical resistance elements.
1.3 This test method provides for radiant thermal exposure of a specimen both with and without a pilot. Piloted ignition results
from direct flame impingement on the specimen (piloted, point ignition) or from use of the pilot to ignite gases evolved by
pyrolysis of the specimen.
1.4 Heat and smoke release are measured from the moment the specimen is injected into a controlled exposure chamber. The
measurements are continued during the period of ignition (and progressive flame involvement of the surface in the case of point
ignition), and to such a time that the test is terminated.
1.5 The apparatus described in this test method is often referred to as the Ohio State University (OSU) rate of heat release
apparatus. Configurations A and B are variations on the original design.
1.6 This test method is suitable for exposing essentially planar materials, products or assemblies to a constant, imposed external
2 2
heat flux that ranges from 00 kW ⁄m to 80 kW/m .
1.7 The apparatus described in this test method has been used in two configurations. Configuration A is that which is used by the
Federal Aviation Administration for assessing materials for aircraft use, at an external heat flux of 35 kW/m (DOT/FAA/AR-00/
12), while configuration B is suitable, at various incident heat fluxes, for research and development purposes.
1.8 This test method does not provide information on the fire performance of the test specimens under fire conditions other than
those conditions specified in this test method. Known limitations of this test method are described in 1.8.1 – 1.8.5.
This test method is under the jurisdiction of ASTM Committee E05 on Fire Standards and is the direct responsibility of Subcommittee E05.21 on Smoke and Combustion
Products.
Current edition approved Aug. 1, 2017Dec. 1, 2021. Published August 2017January 2022. Originally approved in 1983. Last previous edition approved in 20142017 as
E906 – 14.E906 – 17. DOI: 10.1520/E0906-17.10.1520/E0906-21.
*A Summary of Changes section appears at the end of this standard
Copyright © ASTM International, 100 Barr Harbor Drive, PO Box C700, West Conshohocken, PA 19428-2959. United States
E906/E906M − 21
1.8.1 Heat and smoke release rates depend on a number of factors, including the formation of surface char, the formation of an
adherent ash, sample thickness, and the method of mounting.
1.8.2 Heat release values are a function of the specific specimen size (exposed area) tested. Results are not directly scaleable to
different exposed surface areas for some products.
1.8.3 The test method is limited to the specified specimen sizes of materials, products, or assemblies. If products are to be tested,
the test specimen shall be representative of the product in actual use. The test is limited to exposure of one surface; the options
for exposed surface are vertical and horizontal facing up.
1.8.4 At very high specimen heat release rates, it is possible that flaming is observed above the stack, which makes the test invalid.
1.8.5 No general relationship has been established between heat release rate values obtained from horizontally and vertically
oriented specimens. Specimens that melt and drip in the vertical orientation shall be tested horizontally.
1.9 The values stated in either SI units or inch-pound units are to be regarded separately as standard. The values stated in each
system may not be exact equivalents; therefore, each system shall be used independently of the other. Combining values from the
two systems may result in non-conformance with the standard.
1.10 Fire testing involves hazardous materials, operations, and equipment. See Section 6.
1.11 This standard is used to measure and describe the response or materials, products, or assemblies to heat and flame under
controlled conditions, but does not by itself incorporate all factors required for fire hazard or fire risk assessment of the materials,
products, or assemblies under actual fire conditions.
1.12 This standard does not purport to address all of the safety concerns, if any, associated with its use. It is the responsibility
of the user of this standard to establish appropriate safety safety, health, and healthenvironmental practices and determine the
applicability of regulatory limitations prior to use.
1.13 Fire testing is inherently hazardous. Adequate safeguards for personnel and property shall be employed in conducting these
tests.
1.14 This international standard was developed in accordance with internationally recognized principles on standardization
established in the Decision on Principles for the Development of International Standards, Guides and Recommendations issued
by the World Trade Organization Technical Barriers to Trade (TBT) Committee.
2. Referenced Documents
2.1 ASTM Standards:
D618 Practice for Conditioning Plastics for Testing
E176 Terminology of Fire Standards
E1354 Test Method for Heat and Visible Smoke Release Rates for Materials and Products Using an Oxygen Consumption
Calorimeter
2.2 ISO Standard:
ISO 13943 Fire Safety-Vocabulary
2.3 Federal Aviation Administration Standard:
Aircraft Material Fire Test Handbook, DOT/FAA/AR-00/12, FAA Technical Center, April 2000
3. Terminology
3.1 Definitions—For definitions of terms used in this test method refer to the terminology contained in Terminology E176 and ISO
13943, Fire Safety-Vocabulary. In case of conflict, the definitions given in Terminology E176 shall prevail.
For referenced ASTM standards, visit the ASTM website, www.astm.org, or contact ASTM Customer Service at service@astm.org. For Annual Book of ASTM Standards
volume information, refer to the standard’s Document Summary page on the ASTM website.
Available from International Standardization Organization, P.O. Box 56, CH-1211, Geneva 20, Switzerland.
Available from National Technical Information Service (NTIS), Springfield, VA 22161. An electronic version of the handbook with the latest revisions can be found at
the FAA website: http://www.fire.tc.faa.gov/handbook.stm.
E906/E906M − 21
3.2 Definitions of Terms Specific to This Standard:
3.2.1 continuous, as related to data acquisition, adj—conducted at data collection intervals of 5 s 5 s or less.
3.2.2 exposed surface, n—that surface of the specimen subjected to the incident heat.
3.2.3 gas phase ignition, n—ignition of pyrolysis products leaving a heated surface by a pilot flame or other ignition source that
does not impinge on, nor significantly affect, for example, by reradiation, the heated surface.
3.2.4 orientation, n—plane in which the exposed face of the specimen is located during testing, either vertical or horizontally face
upwards.
3.2.5 SMOKE unit—unit, n—the concentration of smoke particulates in a cubic metre of air that reduces the percent transmission
of light through a 1-m1 m path to 10 %. SMOKE = Standard Metric Optical Kinetic Emission.
3.2.6 time to ignition, n—time between the start of the test and the presence of a flame on or over most of the specimen surface
for a period of at least 4 s.4 s.
4. Summary of Test Method
4.1 The specimen to be tested is injected into an environmental chamber through which a constant flow of air passes. The
specimen’s exposure is determined by a radiant heat source adjusted to produce the desired total heat flux on the specimen.
Exposure options include: horizontal or vertical orientations; nonpiloted ignition, piloted ignition of evolved gases, or point
ignition of the surface. The changes in temperature and optical density of the gas leaving the chamber are monitored, and from
this data the release rates of heat and visible smoke (see 14.2.1) are calculated.
5. Significance and Use
5.1 This test method provides a description of the behavior of material specimens under a specified fire exposure in terms of the
release rate of heat and visible smoke. It is possible to determine the change in behavior of materials and products with change
in heat-flux exposure by testing specimens in a series of exposures that cover a range of heat fluxes.
5.2 The data obtained for a specific test describe the rate of heat and smoke release of the specimen when exposed to the specific
environmental conditions and procedures used in performing that test.
5.3 The entire exposed surface of the specimen will not be burning during the progressive involvement phase when piloted, point
ignition (impingement) procedures are used. During the period of progressive surface involvement, release rates of heat and smoke
are “per square metre of original exposed surface area” not “per square metre of flame involved surface.”
5.4 The rates of both heat and smoke release are calculated per square metre of original surface area exposed. If a specimen swells,
sags, delaminates, or otherwise deforms so that the exposed surface area changes, calculated release rates correspond to the original
area, not to the new surface area.
5.5 Heat-release values depend on mode of ignition. Gas phase ignition gives a more dimensionally consistent measure of release
rate when very rapid or immediate flame involvement of the specimen surface occurs. However, piloted, point ignition allows
release-rate information to be obtained at external heat flux from zero up to that required for satisfactory gas-phase ignition, usually
over 20 kW/m external exposure. No correlation between the two modes of piloted ignition has been established.
5.6 Release rates depend on many factors, some of which cannot be controlled. It is possible that samples that produce a surface
char, a layer of adherent ash, or those that are composites or laminates do not attain a steady-state release rate. Thermally thin
specimens, that is, specimens whose unexposed surface changes temperature during period of test, will not attain a steady-state
release rate. Therefore, release rates for a given material will depend, for example, on how the material is used, its thickness, and
the method of mounting.
E906/E906M − 21
5.7 Heat-release values are for the specific specimen size (exposed area) tested. Results are not directly scalable to different
exposed surface areas for some products.
5.8 The method is limited to specimen sizes of materials in accordance with 7.1 and to products from which it is possible to obtain
a test specimen representative of the product in actual use. The test is limited to exposure of one surface; there are two options
for exposure orientation: either vertical or horizontal. If a heat release rate of 8 kW, which is equivalent to 355 kW/m for
150-mm150 mm [6-in.] by 150-mm [6 in.] 150 mm [6-in.] vertical specimens, or 533 533 kW kW/m⁄m for 100-mm100 mm
[4-in.] by 150-mm150 mm [6-in.] horizontal specimens is exceeded, there is danger of combustion occurring above the stack.
5.9 No general relationship between release rate values obtained from horizontally and vertically oriented specimens has been
established. Conduct tests on specimens in the form in which the material is oriented in end use conditions. To provide additional
information, conduct tests in the horizontal orientation for those specimens that melt and drip in the vertical orientation.
5.10 Release rate measurements provide useful information for product development by giving a quantitative measure of specific
changes in fire test performance caused by product modifications.
5.11 This test method differs in both the method of exposure and the calculation procedure from the techniques used in Test
Method E1354, the cone calorimeter, which assesses heat release by oxygen consumption calorimetry, using a truncated cone as
a radiant source.
6. Operator Safety
6.1 The test procedure involves high temperatures, and combustion processes. Therefore, it is possible for eye injuries, burns,
ignition of extraneous objects or clothing, and inhalation of smoke or combustion products to occur, unless proper precautions are
taken. To avoid accidental leakage of toxic combustion products into the surrounding atmosphere, it is advisable to evacuate the
chamber, at the end of a test, into an exhaust system with adequate capacity. The operator must use heavy gloves, safety tongs or
other suitable protection for removal of the specimen holder. The venting must be checked periodically for proper operation. Care
shall be taknetaken not to touch the spark igniter during operation, if used, since it carries a substantial potential. The exhaust
system of the apparatus shall be checked for proper operation before testing and shall discharge into a building exhaust system with
adequate capacity. The possibility of the violent ejection of molten hot material or sharp fragments from some kinds of specimens
when irradiated must be taken into account.
7. Sample Preparation
7.1 The standard size for vertically mounted specimens is 150150 mm 6 2 mm by 150150 mm 6 2 mm [5.94 + 0, −0.06 in. by
5.94 + 0, −0.06 in.] [5.94 in. +0 in., -0.06 in. by 5.94 in. +0 in., -0.06 in.] exposed surface with thickness up to 100 mm [4.0 in.].
[4.0 in.]. The standard size for horizontally mounted specimens is 150150 mm 6 2 mm 2 mm by 150150 mm 6 2 mm [5.94 +
0, −0.06 in. by 5.94 + 0, −0.06 in.] [5.94 in. +0 in., -0.06 in. by 5.94 in. +0 in., -0.06 in.] exposed surface, up to 45 mm [1.75 in.]
45 mm [1.75 in.] thick. Mount thin specimens, such as wall or floor coverings, in the same manner as used. For example, test a
wall covering to be glued to gypsum wall board when glued to a section of gypsum board using the same type of adhesive. The
assembly shall be considered the specimen to be tested. Applications requiring thicknesses greater than 45 mm [1.75 in.] 45 mm
[1.75 in.] shall be tested at 45 mm [1.75 in.] 45 mm [1.75 in.] thicknesses.
7.2 Conditioning—Condition the specimens at 2323 °C 6 3°C [703 °C [70 °F 6 5°F]5 °F] and 5050 % 6 5 % 5 % relative
humidity for a minimum of 24 h 24 h prior to test, or as described by Procedure A of Practice D618, if appropriate.
7.3 Mounting—Expose only one surface of a specimen during a test. Insulate, on five sides, specimens that have a slab geometry.
A single layer of 0.030.03 mm 6 0.01-mm [0.00120.01 mm [0.0012-in. 6 0.005-in.] aluminum foil shall be wrapped tightly on
all unexposed sides with the dull side of the foil facing the specimen surface. For products whose exposed surface is not a plane,
describe mounting and method of calculating surface area exposed when reporting results.
7.4 Specimen Orientation—For specimens with anisotropic properties (meaning they have different properties in different
directions such as machine and cross-machine directions for extrusions, wrap and fill for woven fabrics), the specimens shall be
tested in the orientation giving the highest results. If this orientation is not known prior to test, two sets of at least three specimens
each shall be prepared and tested, with one set oriented in one direction and the second set oriented in the other direction.
E906/E906M − 21
8. Release Rate Apparatus—Configuration A
8.1 The apparatus shown in Figs. 1 and 2 shall be used to determine heat release rates. All exterior surfaces of the apparatus, except
the holding chamber, shall be insulated with 25 6 1 mm [1 6 0.04 in.] 25 mm 6 1 mm [1 in. 6 0.04 in.] thick, low-density,
5,6
high-temperature, fiberglass board insulation. A gasketed door, through which the sample injection rod slides, shall be provided
to form an airtight closure on the specimen hold chamber.
8.2 Thermopile—The temperature difference between the air entering the environmental chamber and that leaving shall be
monitored by a thermopile having 5 hot and 5 cold 24-gage24-gauge chromel-alumel junctions. The loop to be formed by the
thermocouple junction shall be 1.31.3 mm 6 0.3 mm [0.050[0.050 in. 6 0.010 in.] 0.010 in.] in diameter. The cold junctions shall
be located in the pan below the air distribution plate (see 8.4). The hot junctions shall be located 10 6 1 mm [0.38 6 0.04 in.]
10 mm 6 1 mm [0.38 in. 6 0.04 in.] below the top of the chimney. One of the hot junctions shall be placed at the center of the
chimney’s cross section, and the other four shall be placed on the chimney diagonals 30 6 1 mm [1.18 6 0.04 in.] 30 mm 6 1 mm
[1.18 in. 6 0.04 in.] from the center thermocouple.
8.3 Radiant Heat Source—A radiant heat source for generating a heatingheat flux of up to 80 kW/m , using four silicon carbide
elements Type LL, 508508 mm 6 3 mm [20[20 in. 6 0.1 in.] by 1616 mm 6 1 mm [0.63[0.63 in. 6 0.04 in.], 0.04 in.], with a
nominal resistance of 1.4 Ω, 1.4 Ω, as shown in Figs. 1-3, shall be used. The silicon carbide elements shall be mounted in the
stainless steel panel box by inserting them through 1616 mm 6 1 mm [0.63[0.63 in. 6 0.04 in.] 0.04 in.] holes in 0.90.9 mm 6
0.1-mm [0.030.1 mm [0.03-in. 6 0.004-in.] thick ceramic fiber or calcium-silicate millboard. Locations of the holes in the pads
and stainless steel covered plates shall be as shown in Fig. 3. A truncated diamond-shaped mask constructed of 1.071.07 mm 6
0.05 mm [0.042[0.042 in. 6 0.002 in.] stainless steel shall be added to provide uniform heat flux density over the area occupied
by the vertical specimen. An adjustable power supply capable of producing 12.5 kVA 12.5 kVA shall be provided. The heat flux
density over the specimen surface when set at 35 35 kW kW/m⁄m shall be uniform within 5 %, and shall be checked periodically
and after each heating element change. Uniformity of heat flux density shall be determined by calorimeter measurements at the
center and at the four corners of the specimen surface.
8.4 Air Distribution System—The air entering the apparatus shall be 21 to 24°C [70–75°F] 21 °C to 24 °C [70 °F to 75 °F] in
3 3 3 3
temperature and set at approximately 0.040.04 m /s 6 0.01 m0.01 m /s [85[85 ft /min 6 20 ft20 ft /min] using an orifice meter.
The orifice meter shall be comprised of a square-edged circular plate orifice, 0.50.5 mm 6 0.1 mm [0.020 6 [0.020 in. 6 0.004
in.] thick, located in a circular pipe with a diameter of 3838 mm 6 1 mm [1.50[1.50 in. 6 0.04 in.], 0.04 in.], with two pressure
measuring points located 3838 mm 6 1 mm [1.50[1.50 in. 6 0.04 in.] above and 2020 mm 6 1 mm [0.75[0.75 in. 6 0.04 in.]
below the orifice and connected to a mercury manometer. The inlet pipe shall remain 3838 mm 6 1 mm [1.50[1.50 in. 6 0.04 in.]
in diameter (Fig. 1).
8.4.1 The air entering the environmental chamber shall be distributed by a 6.36.3 mm 6 2 mm [0.25[0.25 in. 6 0.04 in.] thick
aluminum plate having eight 5.35.3 mm 6 0.03-mm [0.2090.03 mm [0.209-in. 6 0.001-in.] drill holes (ANSI No. 4 drill holes),
5151 mm 6 1 mm [2.0[2.0 in. 6 0.04 in.] from the sides on 102102 mm 6 2 mm [4[4 in. 6 0.08 in.] centers, mounted at the base
of the environmental chamber. A second plate having 120 evenly spaced, 3.63.6 mm 6 0.03-mm [0.1400.03 mm [0.140-in. 6
0.001-in.] drill holes (ANSI No. 28 drill holes) shall be mounted 152152 mm 6 2 mm [6[6 in. 6 0.08 in.] above the aluminum
plate (Fig. 2).
8.4.2 The air supply manifold at the base of the pyramidal section shall have 48 evenly spaced, 3.73.7 mm 6 0.03-mm
[0.1470.03 mm [0.147-in. 6 0.001-in.] drill holes (ANSI No. 26 drill holes) 1010 mm 6 1 mm [0.38[0.38 in. 6 0.04 in.] from
the inner edge of the manifold, resulting in an airflow split of approximately three to one within the apparatus (Fig. 1).
8.5 Exhaust Stack—An exhaust stack, 133133 mm 6 1 mm by 7070 mm 6 1 mm [5.25[5.25 in. 6 0.04 in. by 2.752.75 in. 6 0.04
in.] in cross section, and 254254 mm 6 1 mm [10[10 in. 6 0.04 in.] long, fabricated from stainless steel, shall be mounted on the
outlet of the pyramidal section (see Figs. 1 and 2). A 2525 mm 6 1 mm by 7676 mm 6 1 mm [1[1 in. 6 0.040.04 in. by 33 in.
6 0.04 in.] plate of 0.460.46 mm 6 0.05 mm [0.018[0.018 in. 6 0.002 in.] stainless steel shall be centered inside the stack,
perpendicular to the airflow, 7676 mm 6 1 mm [3[3 in. 6 0.04 in.] above the base of the stack.
3 3 2 2
Owens-Corning Flat Duct Board, Type 475-FR, density 65 kg/m [4 lb/ft ], thermal conductivity 0.033 W/(m K) [10 Btu/(ft min)], 25 mm [1 in.] thick, or its equivalent.
The sole source of supply of the apparatus known to the committee at this time is Owens-Corning, Granville, OH. If you are aware of alternative suppliers, please provide
this information to ASTM Headquarters. Your comments will receive careful consideration at a meeting of the responsible technical committee, which you may attend.
E906/E906M − 21
FIG. 1 Rate of Heat Release Apparatus—Example 1
E906/E906M − 21
FIG. 2 Rate of Heat Release Apparatus—Example 2
E906/E906M − 21
FIG. 3 Side View—Globar Radiant Heat Panel
E906/E906M − 21
8.6 Specimen Holders—Specimen holders shall be fabricated of stainless steel sheet 0.460.46 mm 6 0.05 mm [0.018[0.018 in. 6
0.002 in.] thick as shown in Fig. 4. Specimen holders shall be attached to the injection rod using the support shown in Fig. 4. Each
holder shall be provided with a “V”-shaped spring pressure plate. The position of the spring pressure plate shall be capable of being
changed to accommodate different specimen thicknesses by inserting the retaining rod in different holes of the specimen holder
frame. Each holder shall also have two wires attached to the front of the holder to secure the face of the specimen in the holder.
8.6.1 Drip Pan—A drip pan shall be fabricated of stainless steel sheet 0.460.46 mm 6 0.05 mm [0.018[0.018 in. 6 0.002 in.] thick
as shown in Fig. 4 and be attached to the specimen holder using the flanges shown in Fig. 4. Line the drip pan with aluminum
foil, to facilitate cleaning after a test.
NOTE 2—Drip pans are required to prevent melting specimens from dripping into the lower pilot burner.
8.7 Calorimeter—A water-cooled, total heat flux density, foil-type Gardon gagegauge calorimeter shall be used to measure the
total heat flux density at a point where the center of the specimen surface is located at the start of the test. When positioned to
measure flux density, the sensing surface of the meter shall be flush with the supporting device surface so that air heated by such
a support does not contact the sensing surface of the meter.
8.8 Pilot Burners—Pilot burners shall be placed at the bottom and top of the specimens. The burners shall be constructed of
stainless steel tubing with a 66 mm 6 1 mm [0.25[0.25 in. 6 0.04 in.] outside diameter (OD) and 0.8 6 0.1 mm [0.03 0.8 mm
6 0.1 mm [0.03 in. 6 0.004 in.] wall thickness.
8.8.1 Lower Pilot Burner—The lower pilot burner shall be located as shown in Fig. 1. The lower pilot burner shall have its
centerline perpendicular to the surface of the specimen and 55 mm 6 1 mm [0.19[0.19 in. 6 0.04 in.] above the specimen’s lower
exposed edge, and shall have its end 1010 mm 6 1 mm [0.38[0.38 in. 6 0.04 in.] from the specimen’s surface. A methane-air
3 3 3 3
mixture shall be used consisting of 120120 cm /min 6 10 cm10 cm /min [0.0040[0.0040 ft /min 6 0.0003 ft0.0003 ft /min] (at
standard temperature and pressure) methane (99 % minimum purity) and an air supply, adjusted to produce a flame such that the
inner cone is approximately the same length as the diameter of the flame.
8.8.2 Spark Igniter—A spark igniter shall be installed to ensure that the lower pilot burner remains burning. A test is invalidated
iif the lower pilot burner becomes extinguished for any period that exceeds 3 s. A circuit for a satisfactory device is sketched in
Fig. 5.
8.8.3 Upper Pilot Burner—An upper pilot burner shall be provided to produce flamelets above the test specimen to ignite
flammable gases. If any of the flamelets on the upper pilot burner extinguishes for a period longer than 3 s during the test, the test
is invalidated. The upper pilot burner shall be constructed from a piece of stainless steel tubing with an OD of 66 mm 6 1 mm
[0.25[0.25 in. 6 0.04 in.] and a wall thickness of 0.80.8 mm 6 0.1 mm [0.03[0.03 in. 6 0.004 in.]. The diameter hole drilled
1010 mm 6 1 mm [0.38[0.38 in. 6 0.04 in.] above the upper edge of the window frame, and be supported and positioned by an
adjustable Z-shaped bracket mounted outside the environmental chamber above the viewing window. The tubing shall be located
2020 mm 6 1 mm [0.79[0.79 in. 6 0.04 in.] above and 2020 mm 6 1 mm [0.79[0.79 in. 6 0.04 in.] behind the upper front edge
of the specimen holder, and installed such that the holes are directed horizontally toward the radiant heat source. One end of the
tubing shall be closed with a silver solder plug or equivalent.
8.8.4 Standard Three-Hole Burner—The standard three-hole upper pilot burner shall be constructed from a piece of 66 mm 6 1
mm [0.25[0.25 in. 6 0.04 in.] OD tubing 360 6 10 mm [14 360 mm 6 10 mm [14 in. 6 0.4 in.] long. Three 2.52.5 mm 6 0.1
mm [0.098[0.098 in. 6 0.004 in.] diameter drill holes (ANSI No. 40 drill holes), each radiating in the same direction, shall be
drilled into the tubing. The holes shall be spaced 6060 mm 6 1 mm [2.4[2.4 in. 6 0.04 in.] apart, with the first hole located 55 mm
6 1 mm [0.19[0.19 in. 6 0.04 in.] from the closed end, as is shown in Fig. 6. The burner shall be positioned above the specimen
holder so that the middle hole lies in the plane perpendicular to the exposed surface of the specimen and passes through its vertical
centerline. The burner fuel shall be methane of 99 % minimum purity. The fuel flow rate shall be adjusted to produce flamelets
25 mm [1 in.] in length that bend upwards slightly above the burner tube.
8.8.5 Optional Fourteen-Hole Burner—An optional burner that has been found satisfactory is as follows; this burner has a greater
probability of reigniting flamelets which become extinguished during a test. Fourteen 1.041.04 mm 6 0.01-mm [0.0410.01 mm
[0.041-in. 6 0.0005-in.] drill holes (ANSI No. 59 drill holes), each radiating in the same direction, shall be drilled into a 381 6
10 mm [15 6 0.4 in.] 381 mm 6 10 mm [15 in. 6 0.4 in.] length of nominally 7 mm [0.25 in.] 7 mm [0.25 in.] tubing. The holes
shall be spaced 13 6 1 mm [0.5 13 mm 6 1 mm [0.5 in. 6 0.04 in.] apart with the first hole located 1313 mm 6 1 mm [0.5[0.5 in.
E906/E906M − 21
FIG. 4 Heat Release Specimen Holder, Mounting Bracket, and Drip Pan
E906/E906M − 21
FIG. 5 Lower Pilot Burner Igniter Schematic
6 0.04 in.] from the closed end, as shown in Fig. 7. The burner shall be positioned above the specimen holder so that the holes
are placed above the specimen holder as shown in Fig. 7. The fuel fed to this burner shall be methane of 99 % minimum purity
mixed with air in a ratio of approximately 50/50 by volume. The total fuel flow shall be adjusted to provide flamelets 25 mm 25 mm
[1 in.] long. When the gas/air ratio and its fuel flow rate are properly adjusted, approximately 6 mm 6 mm [0.25 in.] of the flame
length appears yellow in color.
9. Calibration of Equipment—Configuration A
9.1 Calibration Burner—A calibration burner as shown in Fig. 8 shall be provided that fits over the end of the pilot flame tubing
with a gas-tight connection.
9.2 Calibration Gas—Methane of at least 99 % purity shall be used for calibration purposes.
9.3 Wet Test Meter—A wet test meter accurate to 0.2 L/min [0.007 ft /min] shall be provided to measure the gas flow rate to the
calibration burner. Prior to usage, the wet test meter shall be leveled and filled with distilled water to the tip of the internal pointer.
9.4 Calibration Gas Manifold:
9.4.1 A manifold shall be provided upstream of the wet test meter to control calibration gas flow. The manifold shall have four
flow orifices controlled by needle valves that are preset to provide calibration gas at approximate (uncorrected for the presence of
3 3
water vapor) flow rates of 1,1 L 4,⁄min, 4 L 6⁄min, 6 L ⁄min, and 8 L/min [0.035,[0.035 ft 0.140,/min, 0.140 ft 0.210,/min,
3 3
0.210 ft /min, and 0.280 ft /min] as indicated by revolution rate (measured by a stop watch accurate to 1 s) of the wet test meter.
Output from each of the four flow orifices shall be controlled by a toggle on/off valve, and be plumbed into a single flow line so
that the calibration gas flow rate to the calibration burner can be set at either 1,1 L 4,⁄min, 4 L 6,⁄min, 6 L ⁄min, or 8 L/min
3 3 3 3
[0.035,[0.035 ft 0.140,/min, 0.140 ft 0.210,/min, 0.210 ft /min, or 0.280 ft /min].
9.4.2 The actual corrected value, F, of each of the flow rates shall be determined to an accuracy of 0.20.2 L L/min [0.007 ft⁄min
[0.007 ft /mm], and these corrected values used for calibration calculations of heat release rate.
9.5 Calibration Procedure:
9.5.1 Replace the lower pilot burner with the calibration burner shown in Fig. 8.
9.5.2 Install the wet test meter. Ensure it is leveled and filled with distilled water. Ambient temperature and pressure of the water
are based on the internal wet test meter temperature.
9.5.3 Turn on the air distribution system.
2 2
9.5.4 Turn on the radiant heat source and ensure that the heat flux density is 35.035.0 kW ⁄m 6 0.5 kW/m .
E906/E906M − 21
FIG. 6 Upper Pilot Tube-Outlet Hole Sizes and Configurations
FIG. 7 Modification of the Upper Pilot Tube for the OSU Chamber
9.5.5 Using the calibration gas manifold, set the baseline flow rate of 1 L/min [0.035 ft /min] of methane to the calibration burner,
and light the burner. Measure the thermopile baseline voltage.
9.5.6 Immediately prior to recording the thermopile outputs in 9.5.7, precondition the chamber at a methane flow rate of 88 L
L/min [0.280 ft⁄min [0.280 ft /min]. Do not record the thermopile output for this step as part of calibration.
9.5.7 Increase the gas flow to the burner to a higher flow rate and then decrease to the baseline flow rate. After 2 mm of burning
at each rate, monitor the thermopile output (millivolts) for a 10-s period, and record the average reading and decrease flow rate
to the baseline flow of 1 L/min [0.035 ft /min]. This sequence of increasing and decreasing the methane flow rate is as follows:
1 - 4 - 1 - 6 - 1 - 8 -1 - 6 -1 - 4 L/min [0.035 - 0.140 - 0.035 - 0.210 - 0.035 - 0.280 - 0.035 - 0.210 - 0.035 - 0.140 ft /min].
E906/E906M − 21
FIG. 8 Calibration Burner—Configuration A
9.6 Compute the calibration factor for each upward rate step (that is: 1-4, 1-6, 1-8, 1-6, 1-4 L/min) according to the following
formula:
273 ~P 2 P ! ~F 2 F !
y 0
k 5 25.31· · · ·@kW mV/m # (1)
h
T 760 V 2 V
~ !
a 1 0
where:
F = corrected upper flow rate of calibration gas, L/min (either 4, 6, or 8),
F = corrected baseline flow rate of methane, L/min (approximately 1 L/min),
P = ambient atmospheric pressure, mm Hg,
P = water vapor pressure of wet test meter water temperature, mm Hg,
y
T = ambient temperature, K,
a
V = thermopile voltage at upper flow rate, mV, and
V = thermopile voltage at baseline flow rate, mV.
NOTE 3—The constant used in the above equation is derived as follows: 25.31 = (Heat content of methane at STP, 31.176 Btu/L) × (conversion factor
of 0.0176 kW-min/Btu) / (area of a specimen, 0.02323 m ).
9.7 Average the five results and compute the percent relative standard deviation. If the percent relative standard deviation is greater
than 5 %, repeat the determination. If it is less than 5 %, use the average as the calibration factor.
10. Test Procedure and Calculations—Configuration A
10.1 Set the airflow to the equipment by adjusting the pressure differential across the orifice plate to 200 mm [7.87 in.] 200 mm
[7.87 in.] mercury.
2 2
10.2 Set the power supply to the Globars to produce a radiant flux density of 35.035.0 kW ⁄m 6 0.5 0.5 kW kW/m⁄m at the point
which the center of the front surface of the specimen will occupy when positioned for test.
10.3 Light the pilot flames and check that their positions are as described in 10.8. Activate the spark igniter if a spark igniter is
used.
10.4 Place the specimen in the hold chamber with the radiation shield doors closed. Secure the airtight outer door, and start the
recording devices. Hold the specimen in the hold chamber for 6060 s 6 10 s.
E906/E906M − 21
10.5 Record, at least once per s, the thermopile millivolt output during the final 20 s of the hold time before the specimen is
injected and report the average as the baseline thermopile reading (millivolts).
10.6 After recording the baseline reading and within a time frame not exceeding 3 s, open the radiation doors, inject the specimen
into the burn chamber, and close the radiation doors. Record thermopile millivolt outputs at least once per s for the duration for
the test.
10.7 After the test has run for 5 min, terminate the test and remove the sample.
10.8 Discard data from any test during which the lower pilot burner was extinguished for any period of time exceeding 3 s, or
during which at least one of the upper pilot flamelets was extinguished for any period of time exceeding 3 s.
10.9 Calculate the heat release rate for any point of time from the reading of the thermopile output voltage, V, at that time as heat
release rate by the following formula:
RHR 5 k · V 2 V (2)
~ !
h 0
where k and V are the calibration factor and the thermopile millivolt reading at the baseline, respectively.
h 0
10.10 Determine and record the maximum heat release rate during the 5-min test.
10.11 Compute and record the total heat released after the first 2 min of testing by integrating the heat release rate vs.versus time
curve during the first 2 min.
10.12 Clean the thermopile hot junctions to remove soot after testing each specimen. Do not disturb the position of the
thermocouples. Ensure that the thermocouples are in their proper position before proceeding with the next specimen.
NOTE 4—A small soft-bristled brush has been found satisfactory for cleaning the thermocouple junctions. A template facilitates checking thermocouple
positioning.
11. Release Rate Apparatus—Configuration B
11.1 Release Rate Apparatus (Fig. 9) is used to determine release rates of heat and smoke by this test method. All exterior surfaces
of the apparatus, except the holding chamber, shall be insulated with 25-mm25 mm thick, low density, high-temperature, fiber glass
board insulation. A gasketed door, through which the sample injection rod slides, forms an airtight closure on the specimen hold
chamber.
11.2 Thermopile—The temperature difference between the air entering the environmental chamber and that leaving is monitored
by a thermopile having five hot and five cold, 24-gage24-gauge Chromel-Alumel Type K thermocouple junctions. The loop to be
formed by the thermocouple junction shall be 1.41.4 mm 6 0.3 mm [0.050[0.050 in. 6 0.010 in.] in diameter. The cold junctions
shall be located in the pan below the air distribution plate. The hot junctions shall be located 10 mm [0.38 in.] below the top of
the chimney. One of the hot junctions shall be placed at the center of the chimney’s cross section, and the other four shall be placed
on the chimney diagonals 30 mm [1.18 in.] from the center of the thermopile (see 11.5). The use of a compensator tab, as described
in 11.2.2 through 11.2.5, is not needed if this thermopile is used.
11.2.1 Thermopile for Research Configuration—Alternatively, the temperature difference between the air entering the environ-
mental chamber and that leaving is monitored by a thermopile having three hot and three cold, 24-gage24-gauge Chromel-Alumel
Type K junctions. The hot junctions are spaced across the top of the exhaust stack. Two hot junctions are located 25 mm [1 in.]
from each side on diagonally opposite corners and the third in the center of the chimney’s cross 14 mm [0.55 in.] below the top
of the chimney. The cold junctions are located in the pan below the lower air distribution plate (see 11.5). If this thermopile is used,
the use of a thermal inertia compensator, as described in 11.2.2 through 11.2.5, is recommended.
11.2.2 Thermal Inertia Compensator—A compensator tab is made from 0.55-mm0.55 mm [0.022-in.] stainless steel sheet, 10 mm
[0.4 in.] by 20 mm [0.8 in.]. An 800-mm800 mm [31.5-in.] length of 24-gage24-gauge Chromel-Alumel Type K, glass-insulated
duplex thermocouple wire shall be welded or silver soldered to the tab as shown in Fig. 10, and the wire bent back so it is flush
against the metal surface.
E906/E906M − 21
FIG. 9 Release Rate Apparatus—Configuration B
E906/E906M − 21
FIG. 10 Compensator Tab
11.2.3 The compensator tab shall be mounted on the exhaust stack as shown in Fig. 11 using a 6/32-round head machine screw,
12 mm [0.47-in.] long. Add small (approximately 4.5-mm4.5 mm [0.177-in.] inside diameter, 9-mm9 mm [0.354-in.] outside
diameter) washers between the head of the machine screw and the compensator tab to give the best response to a square wave input.
One or two washers are likely to be adequate. The sharpness of the square wave can be increased by changing the ratio of the output
from the thermopile and compensator thermocouple that is fed to the recorder. The ratio is changed by adjusting the 1-K Ω variable
resistor (R ) of the thermopile bleeder shown in Fig. 12. When adjusting compensation keep R as small as possible. Adjustment
1 1
of the compensator shall be made during calibration at a heat release rate of 7.06 0.5 kW7.0 kW 6 0.5 kW (see 12.1).
11.2.4 Adjust washers and variable resistor (R ) so that 90 % full scale response is obtained in 88 s to 10 s. There shall be no
overshoot as shown in Fig. 13(a).(a). If an insufficient number of washers is added or if R is too small, the output with square
wave input will look like Fig. 13(b).(b). If too many washers are added and if R is too large, the output will look like Fig. 13(a).(a).
11.2.5 Subtract the output of the compensator from the thermopile. The junctions enclosed in the dotted circle of Fig. 12 are kept
at the same constant temperature by electrically insulating the junctions and placing them on the pipe carrying air to the manifold,
then covering them and the pipe with thermal insulation.
11.3 Smoke Monitor—A photometer (Fig. 14) measures the percent of light transmitted through the gases leaving the apparatus.
A photocell and circuitry shown in Fig. 15 shall be used and calibrated in accordance with 12.2. The light source shall be No.
82 miniature incandescent lamp operated at its recommended current, 1.0 A.1.0 A.
11.3.1 The smoke monitor apparatus shall be mounted with the center line 25 mm [1 in.] above the exhaust stack and centered
parallel to the length of the opening. The two parts of the optical system shall be 130 mm [5.12 in.] apart. A continuous flow of
constant temperature air, approximately 0.004 m0.004 m /min, shall be maintained to the air lines to prevent smoke from entering
the smoke monitor.
FIG. 11 Compensator Tab Mount
The sole source of supply of the apparatus known to the committee at this time is Clairex, Plano, TX. If you are aware of alternative suppliers, please provide this
information to ASTM Headquarters. Your comments will receive careful consideration at a meeting of the responsible technical committee, which you may attend.
E906/E906M − 21
FIG. 12 Wiring Diagram
FIG. 13 Square Wave Response
2 8
11.4 Radiation Source—A radiant heat source for generating a flux up to 100 kW/m , using four silicon carbide elements, Type
LL, 20 by 12 by ⁄8, nominal resistance 1.6 Ω, is shown in Fig. 16 and Fig. 17. The silicon carbide elements are mounted in the
stainless steel panel box by inserting them through 15.9-mm15.9 mm [0.626-in.] holes in 0.8-mm0.8 mm [0.03-in.] thick ceramic
fiber or asbestos board. Locations of the holes in the pads and stainless steel cover plates are shown in Fig. 17. The diamond shaped
mask of 24-gage24-gauge stainless steel is added to provide uniform heat flux over the area occupied by the 150150 mm by
150-mm [6150 mm [6 in. by 6 in.] vertical sample. A power supply of 16.5 kVA, adjustable from 00 V to 270 v270 V is required.
11.5 Air Distribution System—The air entering the environmental chamber is distributed by a 6.3-mm6.3 mm [0.24-in.] thick
aluminum plate having eight 5.35.3 mm 6 0.03-mm [0.2090.03 mm [0.209-in. 6 0.001-in.] drill holes (ANSI No. 4 drill holes),
51 mm [2 in.] from sides on 102-mm102 mm [4-in.] centers, mounted at the base of the environmental chamber. A second plate
of 18-gage18-gauge steel having 120 evenly spaced 3.63.6 mm 6 0.03-mm [0.1400.03 mm [0.140-in. 6 0.001-in.] drill holes
(ANSI No. 28 drill holes) is mounted 150 mm [6 in.] 150 mm [6 in.] above the aluminum plate. A well regulated air supply is
required.
11.5.1 The air supply manifold at the base of the pyramidal section has 48 evenly spaced 3.73.7 mm 6 0.03-mm [0.1470.03 mm
[0.147-in 6 0.001-in] drill holes (ANSI No. 26 drill holes) 10 mm [0.4 in.] from the inner edge of the manifold so 0.03 m0.03 m /s
3 3 3
[1 ft /s] of air flows between the pyramidal sections and 0.01 m0.01 m /s [0.35 ft[0.35 ft /s] flows through the environmental
3 3
chamber when total air flow to apparatus is controlled at 0.04 m0.04 m /s [1.4 ft[1.4 ft /s ].
11.6 Exhaust Stack—An exhaust stack, 133133 mm by 70 mm [5.2[5.2 in. by 2.8 in.] in cross section and 254 mm [10 in.] long,
fabricated from 28 gage 28-gauge stainless steel is mounted on the outlet of the pyramidal section. A 2525 mm by 76-mm [1 by
3 in.] 76 mm [1-in. by 3-in.] plate of 31 gage 31-gauge stainless steel is centered inside the stack, perpendicular to the air flow,
75 mm [3 in.] above the base of the stack.
11.7 Specimen Holders—Vertical specimen holders shall be attached to the injection rod using the vertical support shown in Fig.
18. Two different types of specimen holders shall be provided, one for 150150 mm by 150-mm [6 by 6 in.] 150 mm [6-in. by 6-in.]
specimens to be tested in vertical orientation (Fig. 19) and the other for 110110 mm by 150-mm [4.3150 mm [4.3-in. by
6.0-mm]6.0-in.] specimens in horizontal orientation (Fig. 20). Each holder is provided with a V shaped V-shaped spring pressure
10 3 3
plate and 12.7-mm12.7 mm [0.5-in.] backing plate of rigid insulation board having a density of 320320 kg ⁄m 6 80 kg/m
3 3 2 2
[20[20 lb ⁄ft 6 5 lb/ft ] and thermal conductivity of 0.080.08 W ⁄m·K 6 0.010.01 W W/m·K⁄m·K [24Btu/ft [24min 6 3 Btu/ft
The sole source of supply of the apparatus known to the committee at this time is Carborundum Co., Globar Div., Nigara Falls, NY. If you are aware of alternative
suppliers, please provide this information to ASTM Headquarters. Your comments will receive careful consideration at a meeting of the responsible technical committee,
which you may attend.
If a heat flux of up to 100 kW/m is desired, a separate power supply for each pair of elements can be used where maximum voltage is less than 270 V.
The sole source of supply of the apparatus known to the committee at this time is Babcoc
...








Questions, Comments and Discussion
Ask us and Technical Secretary will try to provide an answer. You can facilitate discussion about the standard in here.
Loading comments...