ISO 7222:1985
(Main)Shipbuilding — Shipborne barges, series 2 — Main dimensions
Shipbuilding — Shipborne barges, series 2 — Main dimensions
Specifies also the dimensions of the principal constructional elements and gives a definition.
Construction navale — Barges de la série 2 embarcables à bord des navires — Dimensions principales
General Information
- Status
- Published
- Publication Date
- 20-Mar-1985
- Technical Committee
- ISO/TC 8/SC 7 - Inland navigation vessels
- Drafting Committee
- ISO/TC 8/SC 7 - Inland navigation vessels
- Current Stage
- 9093 - International Standard confirmed
- Start Date
- 08-Dec-2025
- Completion Date
- 12-Feb-2026
Relations
- Effective Date
- 06-Jun-2022
Overview
ISO 7222:1985 - "Shipbuilding - Shipborne barges, series 2 - Main dimensions" defines the principal dimensions, constructional element sizes and mounting/fixture arrangements to ensure interchangeability of series‑2 barges when embarked aboard barge‑carrying ships (by elevator or floating‑dock type systems). The standard was developed by ISO/TC 8 (Shipbuilding and maritime structures) and includes dimensional tables, tolerances and layouts for positioning and securing equipment.
Key topics and requirements
- Main dimensional data: overall length, breadth, depth and other principal sizes for series‑2 shipborne barges are specified in tabular form to ensure consistent geometry for embarkation and stowage.
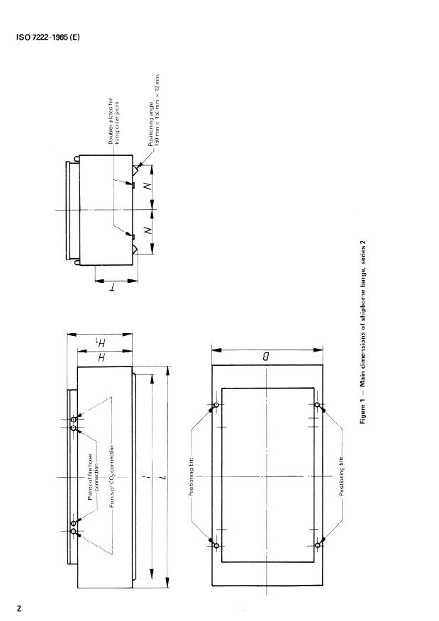
- Constructional elements: defined sizes and profiles for common fittings - for example, a positioning angle (cornière) of 150 mm × 150 mm × 12 mm is shown for positioning arrangements.
- Fixing point layout: mandatory locations and types of securing devices (locking devices, positioning bittes, doublantes, jack support points) are given graphically (figure references) so barges fit and lock reliably in the ship’s hold or on deck.
- Load capacities for supports: the standard specifies design loads at securing and jack support points (illustrated values include 21 t at each upper jack support point and 46 t at each locking device).
- Tolerances: dimensional tolerances are provided (Table 2) in millimetres to ensure interchangeability; examples in the text include positive tolerances up to +25 mm and negative tolerances down to −25 mm, and smaller tolerances such as ±6 mm for specific features.
- Service connections: locations and arrangements for firefighting and CO2 transfer pipe connections are required to match existing series‑2 practice; adaptors are allowed where necessary.
Applications and who uses it
- Shipbuilders and barge manufacturers: to design and build series‑2 barges that will correctly interface with barge‑carriers.
- Naval architects and marine engineers: to verify geometry, load points and tolerances during design, structural analysis and sea trials.
- Shipowners and port operators: to ensure compatibility of barges and handling systems (elevators, floating docks, transporters) and safe stowage aboard carrier vessels.
- Classification societies and regulatory bodies: to reference a harmonized set of dimensions and fixture layouts for approval and inspection.
- Equipment suppliers: to size and locate locking devices, jacks and pipe connections to match barge standards.
Related standards
- Produced by ISO/TC 8 (Shipbuilding and maritime structures); users typically apply ISO 7222 alongside national shipbuilding standards and other ISO maritime construction norms to achieve full regulatory and operational compliance.
Keywords: ISO 7222, shipborne barges, series 2, main dimensions, barge dimensions, fixing points, tolerances, shipbuilding standard, interchangeability.
ISO 7222:1985 - Shipbuilding -- Shipborne barges, series 2 -- Main dimensions
ISO 7222:1985 - Construction navale -- Barges de la série 2 embarcables a bord des navires -- Dimensions principales
ISO 7222:1985 - Construction navale -- Barges de la série 2 embarcables a bord des navires -- Dimensions principales
Get Certified
Connect with accredited certification bodies for this standard

DNV
DNV is an independent assurance and risk management provider.

Lloyd's Register
Lloyd's Register is a global professional services organisation specialising in engineering and technology.

ABS Quality Evaluations Inc.
American Bureau of Shipping quality certification.
Sponsored listings
Frequently Asked Questions
ISO 7222:1985 is a standard published by the International Organization for Standardization (ISO). Its full title is "Shipbuilding — Shipborne barges, series 2 — Main dimensions". This standard covers: Specifies also the dimensions of the principal constructional elements and gives a definition.
Specifies also the dimensions of the principal constructional elements and gives a definition.
ISO 7222:1985 is classified under the following ICS (International Classification for Standards) categories: 47.060 - Inland navigation vessels. The ICS classification helps identify the subject area and facilitates finding related standards.
ISO 7222:1985 has the following relationships with other standards: It is inter standard links to ISO/TS 11133-1:2000. Understanding these relationships helps ensure you are using the most current and applicable version of the standard.
ISO 7222:1985 is available in PDF format for immediate download after purchase. The document can be added to your cart and obtained through the secure checkout process. Digital delivery ensures instant access to the complete standard document.
Standards Content (Sample)
International Standard
INTERNATIONAL ORGANIZATION FOR STANDARDIZATION.MEX,4YHAPOflHAR OPrAHM3ALWR fl0 CTAHAAPTM3Al&lM@ORGANISATlON INTERNATIONALE DE NORMALISATION
Shipbuilding -
Shipborne barges, series 2 -
Main dimensions
Construction navale - Barges de Ia Wie 2 embarcables 5 bord des navires - Dimensions principales
First edition - 1985-03-15
UDC 629322.3 : 629.123.5
w
Ref. No. ISO 7222-1985 (E)
-
Descriptors
: shipbuilding, ships, barges, dimensions.
Price based on 4 pages
Foreword
ISO (the International Organization for Standardization) is a worldwide federation of
national Standards bodies (ISO member bodies). The work of -preparing International
Standards is normally carried out through ISO technical committees. Every member
body interested in a subject for which a technical committee has been established has
the right to be represented on that committee. International organizations, govern-
mental and non-governmental, in liaison with ISO, also take part in the work.
Draft International Standards adopted by the technical committees are circulated to
the member bodies for approval before their acceptance as International Standards by
the ISO Council. They are approved in accordance with ISO procedures requiring at
least 75 % approval by the member bodies voting.
International Standard ISO 7222 was prepared by Technical Committee ISO/TC 8,
Shipbuilding and marine structures.
0 International Organkation for Standardkation, 1985 l
Printed in Switzerland
INTERNATIONAL STANDARD
ISO 7222-1985 (E)
Shipbuilding - Shipborne barges, series 2 -
Main dimensions
1 Scope and field of application based on the floating-dock principle, the dimensions of the
principal constructional elements shall be as specified in
This International Standard specifies the main dimensions of
table 1. Stationary equipment installed on the deck shall not
shipborne barges, series 2 and the dimensions of the principal
project beyond the Overall height.
constructional elements.
Tie-down fittings, shown in figure 2, shall be similar in design
2 Definition
to such fittings on existing series 2 bat-ges.
shipborne barge, series 2 : Barge handled aboard a barge
carrier by an elevator or by a System based on the floating-dock
principle.
Series 2 barges shall have CO, and fire hose connection devices
installed and located similar to those on existing series 2
barges.
3 Dimensions of principal constructional
elements
To ensure interchang
...
Norme internationale
INTERNATIONAL ORGANIZATION FOR STANDARDIZATIONoME~YHAPO~HAR OPrAHM3ALU’lR Il0 CTAH~APTM3AL&lM~ORGANISATION INTERNATIONALE DE NORMALISATION
Construction navale - Barges de la série 2 embarcables à
Dimensions principales
bord des navires -
Shipborne barges, series 2 - Main dimensions
Shipbuilding -
Première édition - 19850345
G- CDU 629.122.3 : 629.123.5 Réf. no : 607222~1985 (FI
Y
B
: construction navale, navire, péniche, dimension.
Descripteurs
v)
Prix basé sur 4 pages
Avant-propos
L’ISO (Organisation internationale de normalisation) est une fédération mondiale
d’organismes nationaux de normalisation (comités membres de I’ISO). L’élaboration
des Normes internationales est confiée aux comités techniques de I’ISO. Chaque
comité membre intéressé par une étude a le droit de faire partie du comité technique
créé à cet effet. Les organisations internationales, gouvernementales et non gouverne-
mentales, en liaison avec I’ISO, participent également aux travaux.
Les projets de Normes internationales adoptés par les comités techniques sont soumis
aux comités membres pour approbation, avant leur acceptation comme Normes inter-
nationales par le Conseil de I’ISO. Les Normes internationales sont approuvées confor-
mément aux procédures de I’ISO qui requièrent l’approbation de 75 % au moins des
comités membres votants.
La Norme internationale ISO 7222 a été élaborée par le comité technique ISO/TC 8,
Construction navale et structures maritimes.
0 Organisation internationale de normalisation, 1985 l
Imprimé en Suisse
ISO 72224985 (F)
NORME INTERNATIONALE
Construction navale - Barges de la série 2 embarcables à
bord des navires - Dimensions principales
1 Objet et domaine d’application assurer I’interchangeabilité lors de l’embarquement des barges
à bord du navire porte-barges au moyen d’un élévateur ou par
La présente Norme internationale fixe les dimensions principa-
un système basé sur le principe du dock flottant. L’équipement
les et les dimensions des éléments principaux de construction
stationnaire installé sur le pont ne doit pas ressortir au-delà de
des barges de la série 2 embarcables à bord des navires
la hauteur d’encombrement.
Les dispositifs de blocage, tels que représentés à la figure 2,
2 Définition
doivent être construits de la même facon que les dispositifs sur
les barges existantes de la série 2. ’
barge embarcable de la série 2: Barge qui est embarquée à
bord d’un navire porte-barges au moyen d’un élévateur ou par
Les barges de la série 2 doivent avoir des dispositifs de raccor-
un système basé sur le principe du dock flottant.
dement pour les tuyaux destinés à la lutte contre l’incendie et
au transfert du dioxyde de carbone, installés et situés de
manière analogue aux dispositifs sur les barges existantes de la
3 Dimensions des principaux éléments de
série 2.
construction
Lorsque cela est n
...
Norme internationale
INTERNATIONAL ORGANIZATION FOR STANDARDIZATIONoME~YHAPO~HAR OPrAHM3ALU’lR Il0 CTAH~APTM3AL&lM~ORGANISATION INTERNATIONALE DE NORMALISATION
Construction navale - Barges de la série 2 embarcables à
Dimensions principales
bord des navires -
Shipborne barges, series 2 - Main dimensions
Shipbuilding -
Première édition - 19850345
G- CDU 629.122.3 : 629.123.5 Réf. no : 607222~1985 (FI
Y
B
: construction navale, navire, péniche, dimension.
Descripteurs
v)
Prix basé sur 4 pages
Avant-propos
L’ISO (Organisation internationale de normalisation) est une fédération mondiale
d’organismes nationaux de normalisation (comités membres de I’ISO). L’élaboration
des Normes internationales est confiée aux comités techniques de I’ISO. Chaque
comité membre intéressé par une étude a le droit de faire partie du comité technique
créé à cet effet. Les organisations internationales, gouvernementales et non gouverne-
mentales, en liaison avec I’ISO, participent également aux travaux.
Les projets de Normes internationales adoptés par les comités techniques sont soumis
aux comités membres pour approbation, avant leur acceptation comme Normes inter-
nationales par le Conseil de I’ISO. Les Normes internationales sont approuvées confor-
mément aux procédures de I’ISO qui requièrent l’approbation de 75 % au moins des
comités membres votants.
La Norme internationale ISO 7222 a été élaborée par le comité technique ISO/TC 8,
Construction navale et structures maritimes.
0 Organisation internationale de normalisation, 1985 l
Imprimé en Suisse
ISO 72224985 (F)
NORME INTERNATIONALE
Construction navale - Barges de la série 2 embarcables à
bord des navires - Dimensions principales
1 Objet et domaine d’application assurer I’interchangeabilité lors de l’embarquement des barges
à bord du navire porte-barges au moyen d’un élévateur ou par
La présente Norme internationale fixe les dimensions principa-
un système basé sur le principe du dock flottant. L’équipement
les et les dimensions des éléments principaux de construction
stationnaire installé sur le pont ne doit pas ressortir au-delà de
des barges de la série 2 embarcables à bord des navires
la hauteur d’encombrement.
Les dispositifs de blocage, tels que représentés à la figure 2,
2 Définition
doivent être construits de la même facon que les dispositifs sur
les barges existantes de la série 2. ’
barge embarcable de la série 2: Barge qui est embarquée à
bord d’un navire porte-barges au moyen d’un élévateur ou par
Les barges de la série 2 doivent avoir des dispositifs de raccor-
un système basé sur le principe du dock flottant.
dement pour les tuyaux destinés à la lutte contre l’incendie et
au transfert du dioxyde de carbone, installés et situés de
manière analogue aux dispositifs sur les barges existantes de la
3 Dimensions des principaux éléments de
série 2.
construction
Lorsque cela est n
...












Questions, Comments and Discussion
Ask us and Technical Secretary will try to provide an answer. You can facilitate discussion about the standard in here.
Loading comments...