ASTM C1433M-22
(Specification)Standard Specification for Precast Reinforced Concrete Monolithic Box Sections for Culverts, Storm Drains, and Sewers (Metric)
Standard Specification for Precast Reinforced Concrete Monolithic Box Sections for Culverts, Storm Drains, and Sewers (Metric)
ABSTRACT
This specification deals with the standards for single-cell precast reinforced concrete box sections cast monolithically and proposed for use in the construction of culverts and for the conveyance of storm water industrial sewage. The reinforced concrete shall be composed of cementitious materials, mineral aggregates and water, in which steel has been embedded. The aggregates shall be sized, graded, and mixed to the proportion that will produce a homogeneous mixture. The box sections shall also undergo steam curing, water curing, and membrane curing.
SCOPE
1.1 This specification covers single-cell precast reinforced concrete box sections cast monolithically and intended to be used for the construction of culverts and for the conveyance of storm water industrial wastes and sewage.
1.2 This specification is the SI companion to Specification C1433.
Note 1: This specification is primarily a manufacturing and purchasing specification. However, standard designs are included and the criteria used to develop these designs are given in Appendix X1. The successful performance of this product depends upon the proper selection of the box section, bedding, backfill, and care that the installation conforms to the construction specifications. The purchaser of the precast reinforced concrete box sections specified herein is cautioned that he must properly correlate the loading conditions and the field requirements with the box section specified and provide for inspection at the construction site.
1.3 This international standard was developed in accordance with internationally recognized principles on standardization established in the Decision on Principles for the Development of International Standards, Guides and Recommendations issued by the World Trade Organization Technical Barriers to Trade (TBT) Committee.
General Information
- Status
- Published
- Publication Date
- 31-Aug-2022
- Technical Committee
- C13 - Concrete Pipe
- Drafting Committee
- C13.07 - Acceptance Specifications and Precast Concrete Box Sections
Relations
- Effective Date
- 15-Apr-2024
- Refers
ASTM C31/C31M-24a - Standard Practice for Making and Curing Concrete Test Specimens in the Field - Effective Date
- 01-Apr-2024
- Effective Date
- 01-Feb-2024
- Refers
ASTM C31/C31M-24 - Standard Practice for Making and Curing Concrete Test Specimens in the Field - Effective Date
- 01-Jan-2024
- Refers
ASTM C1677-11a(2024) - Standard Specification for Joints for Concrete Box, Using Rubber Gaskets - Effective Date
- 01-Jan-2024
- Refers
ASTM C39/C39M-23 - Standard Test Method for Compressive Strength of Cylindrical Concrete Specimens - Effective Date
- 01-Dec-2023
- Effective Date
- 01-Oct-2023
- Effective Date
- 01-May-2020
- Effective Date
- 15-Feb-2020
- Effective Date
- 01-Oct-2019
- Effective Date
- 01-Sep-2019
- Refers
ASTM C309-19 - Standard Specification for Liquid Membrane-Forming Compounds for Curing Concrete - Effective Date
- 15-Jun-2019
- Effective Date
- 01-Apr-2019
- Effective Date
- 01-Jan-2019
- Effective Date
- 01-Nov-2018
Overview
ASTM C1433M-22 is the internationally recognized standard specification for the manufacturing and use of single-cell precast reinforced concrete monolithic box sections, specifically designed for culverts, storm drains, and sewers measured in metric units. Developed by ASTM International, this standard ensures uniformity, safety, and reliability for precast concrete products used in the transportation, municipal, and utility sectors. The document outlines manufacturing requirements, quality control measures, material specifications, and testing procedures to ensure that precast concrete box sections meet performance and durability criteria for infrastructure conveying storm water, industrial waste, and sewage.
Key Topics
Scope & Purpose
- Covers single-cell, precast reinforced concrete box sections cast monolithically for culverts and conveyance systems.
- Metric units are used throughout, serving as the SI companion to ASTM C1433.
Material Specifications
- Requires the use of reinforced concrete made from cementitious materials, mineral aggregates, water, and embedded steel reinforcement.
- Details on acceptable cementitious materials, including options for portland cement, blended cements, slag cement, and pozzolan combinations.
- Specifies standards for aggregates, admixtures, synthetic and non-synthetic fibers, and water quality.
Design & Manufacturing Requirements
- Incorporates design tables, standard box section dimensions, and reinforcement details suitable for various load conditions.
- Highlights reinforcement requirements, cover, placement, lap, and weld provisions.
- Permits steam, water, or membrane curing methods to achieve specified concrete strength.
Acceptance & Quality Control
- Prescribes testing for compressive strength (standard cylinders or cores).
- Inspections, dimensional tolerances, and repair criteria are provided to ensure on-site performance and long-term asset reliability.
- Includes detailed marking provisions for traceability and identification.
Applications
ASTM C1433M-22 applies to a range of civil infrastructure and utility projects where efficient underground conveyance of water and waste is critical. Practical applications include:
- Culverts: Precast box culverts constructed under roads, railways, and embankments to enable drainage and prevent flooding.
- Storm Drains: Large-diameter box sections installed to manage surface water runoff and mitigate storm water impact in urban areas.
- Sewers: Robust precast sections for industrial and municipal sewage systems, providing durability and corrosion resistance.
- Industrial Conveyance: Customizable for unique load or installation requirements involving heavy vehicles or specific site constraints.
The standard assists engineers, contractors, and manufacturers in selecting the appropriate box section based on loading, installation, and environmental considerations, ensuring the longevity and structural integrity of critical infrastructure.
Related Standards
ASTM C1433M-22 references several related industry standards that complement its requirements, including:
- ASTM C1433: The inch-pound (imperial unit) companion specification.
- ASTM C33/C33M: Specification for concrete aggregates.
- ASTM C150/C150M, C595/C595M: Specifications for portland and blended hydraulic cements.
- ASTM A615/A615M, A706/A706M: Specifications for reinforcing steel bars.
- ASTM C497M: Test methods for concrete box sections.
- ASTM C260/C260M, C494/C494M: Specifications for concrete admixtures.
- ASTM C309: Specification for membrane-forming curing compounds.
- ASTM C1675: Practice for installation of precast box sections.
- AASHTO Standard Specifications for Highway Bridges: Basis for structural design criteria.
By adhering to ASTM C1433M-22 and its related references, stakeholders ensure compliance with globally recognized best practices for precast concrete box sections in civil and utility engineering projects. This standard is essential for quality assurance, risk mitigation, and successful infrastructure project delivery.
Buy Documents
ASTM C1433M-22 - Standard Specification for Precast Reinforced Concrete Monolithic Box Sections for Culverts, Storm Drains, and Sewers (Metric)
REDLINE ASTM C1433M-22 - Standard Specification for Precast Reinforced Concrete Monolithic Box Sections for Culverts, Storm Drains, and Sewers (Metric)
Get Certified
Connect with accredited certification bodies for this standard
Institut za varilstvo d.o.o. (Welding Institute)
Slovenia's leading welding institute since 1952. ISO 3834, EN 1090, pressure equipment certification, NDT personnel, welder qualification. Only IIW Au
Sponsored listings
Frequently Asked Questions
ASTM C1433M-22 is a technical specification published by ASTM International. Its full title is "Standard Specification for Precast Reinforced Concrete Monolithic Box Sections for Culverts, Storm Drains, and Sewers (Metric)". This standard covers: ABSTRACT This specification deals with the standards for single-cell precast reinforced concrete box sections cast monolithically and proposed for use in the construction of culverts and for the conveyance of storm water industrial sewage. The reinforced concrete shall be composed of cementitious materials, mineral aggregates and water, in which steel has been embedded. The aggregates shall be sized, graded, and mixed to the proportion that will produce a homogeneous mixture. The box sections shall also undergo steam curing, water curing, and membrane curing. SCOPE 1.1 This specification covers single-cell precast reinforced concrete box sections cast monolithically and intended to be used for the construction of culverts and for the conveyance of storm water industrial wastes and sewage. 1.2 This specification is the SI companion to Specification C1433. Note 1: This specification is primarily a manufacturing and purchasing specification. However, standard designs are included and the criteria used to develop these designs are given in Appendix X1. The successful performance of this product depends upon the proper selection of the box section, bedding, backfill, and care that the installation conforms to the construction specifications. The purchaser of the precast reinforced concrete box sections specified herein is cautioned that he must properly correlate the loading conditions and the field requirements with the box section specified and provide for inspection at the construction site. 1.3 This international standard was developed in accordance with internationally recognized principles on standardization established in the Decision on Principles for the Development of International Standards, Guides and Recommendations issued by the World Trade Organization Technical Barriers to Trade (TBT) Committee.
ABSTRACT This specification deals with the standards for single-cell precast reinforced concrete box sections cast monolithically and proposed for use in the construction of culverts and for the conveyance of storm water industrial sewage. The reinforced concrete shall be composed of cementitious materials, mineral aggregates and water, in which steel has been embedded. The aggregates shall be sized, graded, and mixed to the proportion that will produce a homogeneous mixture. The box sections shall also undergo steam curing, water curing, and membrane curing. SCOPE 1.1 This specification covers single-cell precast reinforced concrete box sections cast monolithically and intended to be used for the construction of culverts and for the conveyance of storm water industrial wastes and sewage. 1.2 This specification is the SI companion to Specification C1433. Note 1: This specification is primarily a manufacturing and purchasing specification. However, standard designs are included and the criteria used to develop these designs are given in Appendix X1. The successful performance of this product depends upon the proper selection of the box section, bedding, backfill, and care that the installation conforms to the construction specifications. The purchaser of the precast reinforced concrete box sections specified herein is cautioned that he must properly correlate the loading conditions and the field requirements with the box section specified and provide for inspection at the construction site. 1.3 This international standard was developed in accordance with internationally recognized principles on standardization established in the Decision on Principles for the Development of International Standards, Guides and Recommendations issued by the World Trade Organization Technical Barriers to Trade (TBT) Committee.
ASTM C1433M-22 is classified under the following ICS (International Classification for Standards) categories: 23.040.50 - Pipes and fittings of other materials. The ICS classification helps identify the subject area and facilitates finding related standards.
ASTM C1433M-22 has the following relationships with other standards: It is inter standard links to ASTM A1064/A1064M-24, ASTM C31/C31M-24a, ASTM C989/C989M-24, ASTM C31/C31M-24, ASTM C1677-11a(2024), ASTM C39/C39M-23, ASTM C1619-23, ASTM C497M-20a, ASTM C497M-20, ASTM C497M-19a, ASTM C990-09(2019), ASTM C309-19, ASTM C150/C150M-19, ASTM C497M-19, ASTM A1064/A1064M-18. Understanding these relationships helps ensure you are using the most current and applicable version of the standard.
ASTM C1433M-22 is available in PDF format for immediate download after purchase. The document can be added to your cart and obtained through the secure checkout process. Digital delivery ensures instant access to the complete standard document.
Standards Content (Sample)
This international standard was developed in accordance with internationally recognized principles on standardization established in the Decision on Principles for the
Development of International Standards, Guides and Recommendations issued by the World Trade Organization Technical Barriers to Trade (TBT) Committee.
Designation:C1433M −22
Standard Specification for
Precast Reinforced Concrete Monolithic Box Sections for
Culverts, Storm Drains, and Sewers (Metric)
This standard is issued under the fixed designation C1433M; the number immediately following the designation indicates the year of
original adoption or, in the case of revision, the year of last revision.Anumber in parentheses indicates the year of last reapproval.A
superscript epsilon (´) indicates an editorial change since the last revision or reapproval.
1. Scope* Specimens in the Field
C33/C33MSpecification for Concrete Aggregates
1.1 This specification covers single-cell precast reinforced
C39/C39MTest Method for Compressive Strength of Cylin-
concrete box sections cast monolithically and intended to be
drical Concrete Specimens
used for the construction of culverts and for the conveyance of
C150/C150MSpecification for Portland Cement
storm water industrial wastes and sewage.
C260/C260MSpecification for Air-Entraining Admixtures
1.2 This specification is the SI companion to Specification
for Concrete
C1433.
C309Specification for Liquid Membrane-Forming Com-
pounds for Curing Concrete
NOTE 1—This specification is primarily a manufacturing and purchas-
ing specification. However, standard designs are included and the criteria C494/C494MSpecification for Chemical Admixtures for
used to develop these designs are given in Appendix X1. The successful
Concrete
performance of this product depends upon the proper selection of the box
C497MTest Methods for Concrete Pipe, Concrete Box
section, bedding, backfill, and care that the installation conforms to the
Sections, Manhole Sections, or Tile (Metric)
construction specifications. The purchaser of the precast reinforced
C595/C595MSpecification for Blended Hydraulic Cements
concrete box sections specified herein is cautioned that he must properly
correlate the loading conditions and the field requirements with the box
C618Specification for Coal Fly Ash and Raw or Calcined
section specified and provide for inspection at the construction site.
Natural Pozzolan for Use in Concrete
1.3 This international standard was developed in accor-
C822Terminology Relating to Concrete Pipe and Related
dance with internationally recognized principles on standard-
Products
ization established in the Decision on Principles for the
C989/C989MSpecification for Slag Cement for Use in
Development of International Standards, Guides and Recom-
Concrete and Mortars
mendations issued by the World Trade Organization Technical
C990Specification for Joints for Concrete Pipe, Manholes,
Barriers to Trade (TBT) Committee.
and Precast Box Sections Using Preformed Flexible Joint
Sealants
2. Referenced Documents
C1017/C1017MSpecification for Chemical Admixtures for
Use in Producing Flowing Concrete (Withdrawn 2022)
2.1 ASTM Standards:
C1116/C1116MSpecification for Fiber-Reinforced Concrete
A615/A615MSpecificationforDeformedandPlainCarbon-
C1602/C1602MSpecification for Mixing Water Used in the
Steel Bars for Concrete Reinforcement
Production of Hydraulic Cement Concrete
A1064/A1064MSpecification for Carbon-Steel Wire and
C1619Specification for Elastomeric Seals for Joining Con-
Welded Wire Reinforcement, Plain and Deformed, for
crete Structures
Concrete
C1675Practice for Installation of Precast Reinforced Con-
A706/A706MSpecification for Deformed and Plain Low-
creteMonolithicBoxSectionsforCulverts,StormDrains,
Alloy Steel Bars for Concrete Reinforcement
and Sewers
C31/C31MPractice for Making and Curing Concrete Test
C1677Specification for Joints for Concrete Box, Using
Rubber Gaskets
This specification is under the jurisdiction of ASTM Committee C13 on
2.2 AASHTO Standards:
Concrete Pipe and is the direct responsibility of Subcommittee C13.07 on
Standard Specifications for Highway Bridges
Acceptance Specifications and Precast Concrete Box Sections.
Current edition approved Sept. 1, 2022. Published October 2022. Originally
approved in 1999. Last previous edition approved in 2020 as C1433M–20. DOI:
10.1520/C1433M-22.
2 3
For referenced ASTM standards, visit the ASTM website, www.astm.org, or The last approved version of this historical standard is referenced on
contact ASTM Customer Service at service@astm.org. For Annual Book of ASTM www.astm.org.
Standards volume information, refer to the standard’s Document Summary page on Available from American Association of State Highway and Transportation
the ASTM website. Officials (AASHTO), 444 N. Capitol St., NW, Suite 249, Washington, DC 20001.
*A Summary of Changes section appears at the end of this standard
Copyright © ASTM International, 100 Barr Harbor Drive, PO Box C700, West Conshohocken, PA 19428-2959. United States
C1433M−22
3. Terminology 6.2.4.8 Acombination of portland-pozzolan cement and fly
ash.
3.1 Definitions—Fordefinitionsoftermsrelatingtoconcrete
pipe, see Terminology C822. 6.3 Aggregates—Aggregates shall conform to Specification
C33/C33M,exceptthattherequirementsforgradationshallnot
4. Types
apply.
4.1 Precast reinforced concrete box sections manufactured
6.4 Admixtures—The following admixtures and blends are
in accordance with this specification shall be one of two types
allowable:
identified in Tables 1 and 2, and shall be designated by type,
6.4.1 Air-entraining admixture conforming to Specification
span, rise, and design earth cover.
C260/C260M;
6.4.2 Chemical admixture conforming to Specification
5. Basis of Acceptance
C494/C494M;
5.1 Acceptability of the box sections produced in accor-
6.4.3 Chemical admixture for use in producing flowing
dance with Section 7 shall be determined by the results of the
concrete conforming to Specification C1017/C1017M; and
concretecompressivestrengthtestsdescribedinSection 11,by
6.4.4 Chemical admixture or blend approved by the owner.
the material requirements described in Section 6, and by
6.5 Steel Reinforcement—Reinforcement shall consist of
inspection of the finished box sections.
welded wire reinforcement conforming to Specification
5.2 Box sections shall be considered ready for acceptance
A1064/A1064M. Circumferential reinforcement areas in
when they conform to the requirements of this specification.
Tables 1 and 2 are based solely on the use of welded wire
reinforcement, refer to 12.6 if alternate steel designs utilizing
6. Material
steel bars, Grade 420, in conjunction with or in lieu of welded
6.1 Reinforced Concrete—The reinforced concrete shall
wire reinforcement are to be submitted for the owner’s
consist of cementitious materials, mineral aggregates, admix-
approval. Longitudinal distribution reinforcement shall be
tures if used, and water in which steel has been embedded in
allowed to consist of welded wire reinforcement or deformed
such a manner that the steel and concrete act together.
billet-steel bars conforming to either Specification A615/
A615M,Grade420,orSpecificationA706/A706M,Grade420.
6.2 Cementitious Materials:
6.2.1 Cement—Cement shall conform to the requirements
6.6 Fibers—Syntheticfibersandnonsyntheticfibersshallbe
for portland cement of Specification C150/C150M or shall be
allowed to be used, at the manufacturer’s option, in concrete
portlandblast-furnaceslagcement,portland-limestonecement,
pipeasanonstructuralmanufacturingmaterial.Syntheticfibers
or portland-pozzolan cement conforming to the requirements
(TypeIIandTypeIII)andnonsyntheticfiber(Type1)designed
of Specification C595/C595M, except that the pozzolan con-
andmanufacturedspecificallyforuseinconcreteandconform-
stituent in the Type IP portland pozzolan cement shall be fly
ing to the requirements of Specification C1116/C1116M shall
ash.
be accepted.
6.2.2 Fly Ash—Flyashshallconformtotherequirementsof
6.7 Water—Water used in the production of concrete shall
Specification C618, Class F or Class C.
be potable or non-potable water that meets the requirements of
6.2.3 Slag Cement—Slag cement shall conform to the re-
Specification C1602/C1602M.
quirementsofGrade100or120ofSpecificationC989/C989M.
6.2.4 Allowable Combinations of Cementitious Materials—
7. Design
Thecombinationofcementitiousmaterialsusedintheconcrete
7.1 Design Tables—The box section dimensions, compres-
shall be one of the following:
sivestrengthoftheconcrete,andreinforcementdetailsshallbe
6.2.4.1 Portland cement only,
as prescribed in Table 1 or Table 2 and Figs. 1-14, subject to
6.2.4.2 Portland blast-furnace slag cement only,
the provisions of Section 12. Table 1 sections are designed for
6.2.4.3 Portland-pozzolan cement only,
combined earth dead load and AASHTO HS20 live load
6.2.4.4 Portland-limestone cement only,
conditions. Table 2 sections are designed for combined earth
6.2.4.5 A combination of portland cement or portland-
deadloadandinterstateliveloadconditionswhentheinterstate
limestone cement and fly ash,
live loading exceeds the HS20 live loading. Criteria used to
6.2.4.6 A combination of portland cement or portland-
develop Tables 1 and 2 are given in Appendix X1.
limestone cement, and slag cement,
NOTE 2—The tabular designs in this specification were prepared
6.2.4.7 A combination of portland cement or portland-
according to AASHTO Standard Specifications for Highway Bridges,
limestone, slag cement, and fly ash, or 1997 Edition.
C1433M−22
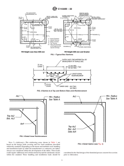
FIG. 1Typical Box Sections
FIG. 2Section A-A Top and Bottom Slab Joint Reinforcement
FIG. 3Detail Inner Reinforcement
NOTE 3—(Advisory)—The reinforcing areas shown in Table 1 are
FIG. 4Detail Option (see Fig. 3)
based on the design earth covering and live load conditions described
withinthisstandard.Dependingonthemeansandmethodsused,handling
and installation loads by either the manufacturer or contractor can induce
stresses not considered within the development of the tables. These loads
could require additional steel reinforcement beyond the minimums shown consideredinthefinaldesignofthefurnishedprecastconcreteboxsection
within the standard. These handling and installation loads should be prior to fabrication.
C1433M−22
FIG. 5Detailed Reinforcement Arrangement
FIG. 7Alternate Detail
FIG. 8Alternate Detail
FIG. 6Detail Option
those shown in Tables 1 and 2. When spans are required that
TABLE A Minimum Dimensions of Bends
exceed those prescribed in Table 1 or Table 2, the design shall
Bar Size and Minimum Minimum be based on the criteria given in Appendix X1. In addition, the
Use Radius Diameter
span shall be designed to have adequate stiffness to limit
Welded Wire 2.0db 4.0db
deflection as given in Section 8.9 of AASHTO Standard
Reinforcement—
Less than W/D 6 Specification for Highway Bridges (latest edition).
Welded Wire 4.0db 8.0db
NOTE4—Constructionprocedures,suchasheavyequipmentmovement
Reinforcement—
or stockpiling of material over or adjacent to a box structure, can induce
W/D 6 and Larger Wire
higher loads than those used for the structure’s final design. These
10M Through 15M— 3.0db 6.0db
construction and surcharge loads are approved as long as the final steel
General
areas in the box are larger than those the box will experience in the final
10M Through 15M— 2.0db 4.0db
installation condition. The design engineer should take into consideration
Stirrups and Ties
20M Through 25M— 3.0db 6.0db the potential for higher loads induced by construction procedures in
General determining the final design of the box structure.
7.2 Modified and Special Designs for Monolithic 7.3 Placement of Reinforcement—The cover of concrete
Structures—The manufacturer shall request approval by the overthecircumferentialreinforcementshallbe25mm,subject
purchaser of modified designs which differ from the designs in to the provisions of Section 12. The inside circumferential
Section 7, or special designs for sizes and loads other than reinforcement shall extend into the tongue portion of the joint
C1433M−22
FIG. 11Alternate Detail
FIG. 9Alternate Detail
FIG. 12Alternate Detail
both A (or A ) and A , with the largest area requirement
s7 s8 s1
governing, bending the reinforcement at the corners and
waiving the extension requirements of Fig. 3 and Fig. 5 (see
FIG. 10Alternate Detail
Fig. 4). When a single cage of multiple circumferential steel
areasisusedforA (orA )andA reinforcement,theslabor
s2 s3 s4
and the outside circumferential reinforcement shall extend into wall requiring the larger steel area shall have this additional
the groove portion of the joint. The clear distance of the end circumferentialsteelextendingforthefulllengthoftheslabor
circumferential wires shall be not less than 13 mm nor more wall. If the joint configuration requires or at the option of the
than 50 mm from the ends of the box section. Reinforcement manufacturer,Figs.9-14provideapermissiblemiteredINNER
shall be assembled utilizing any combination of single or cage detail. When selecting this option, the minimum clear
multiple layers of welded-wire reinforcement. Multiple layers cover for the welded wire fabric over the face of the haunches
shall not be separated by more than the thickness of one shall be 25mm. It is permissible to just shape, remove and
longitudinal wire plus 6 mm. The multiple layers shall be replace the section of cage that interferes with the shape of the
fastened together to form a single cage.All other specification jointormiterthewirebarsinthejointsifnecessary,toconform
requirements such as laps, welds, and tolerances of placement to the shape of the joint formers provided proper laps and
in the wall of the box section shall apply to this method of radius requirements are adhered to. In no case shall the
fabricating a reinforcement cage. A common reinforcement maximum cover of the reinforcing across the face of the
unit may be utilized for bothA (orA ) andA , and also for haunches be more than 75mm.The welded-wire reinforcement
s2 s3 s4
C1433M−22
FIG. 15Critical Zones of High Stress Where Welding is Re-
stricted
FIG. 13Alternate Detail
exposure of the ends of longitudinals, stirrups, and spacers
used to position the reinforcement shall not be a cause for
rejection.
7.4 Laps, Welds, and Spacing—Splices in the circumferen-
tial reinforcement shall be made by lapping. The overlap
measured between the outermost longitudinal wires of each
reinforcement sheet shall not be less than the spacing of the
longitudinalwiresplus50mmbutnotlessthan250mm.IfA
s1
is extended to the middle of either slab and connected, welded
splices are not prohibited in the connection. When used, A
s7
and A shall be lapped with A as shown in Fig. 5 or Fig. 6
s8 s1
(see also Figs. 7-14). If welds are made to circumferential
reinforcement, they shall be made only to selected circumfer-
ential wires that are not less than 450 mm apart along the
longitudinal axis of the box section. Also, when spacers are
welded to circumferential wires, they shall be welded only to
theseselectedcircumferentialwires.Thereshallbenowelding
to other circumferential wires, except it is not prohibited for
A to be lapped and welded at any location or connected by
s4
weldingatthecornerstoA andA .IfA orA areprovided
s2 s3 s2 s3
FIG. 14Alternate Detail
asseparatesheetsandcrossAs4intheregionofthehaunch,to
facilitate cage construction the circumferential wires of each
cage must be in contact as shown in Fig. 3, Fig. 5, Figs. 9-12.
When A is bent at one or both ends, clear distance shall be
s4
shall be composed of circumferential and longitudinal wires
maintained at the tip of the haunch as shown in Fig. 9 or Fig.
meeting the spacing requirements of 7.4 and shall contain
10. No welds shall be made toA orA circumferential wires
s2 s3
sufficient longitudinal wires extending through the box section
in the middle third of the span (see Fig. 15 for welding
to maintain the shape and position of reinforcement. Longitu-
restrictions).When distribution reinforcement is to be fastened
dinaldistributionreinforcementmaybewelded-wirereinforce-
to a cage by welding, it shall be welded only to longitudinal
ment or deformed billet-steel bars and shall meet the spacing
wires and only near the ends of the box section. If welds are
requirements of 7.4. If the longitudinal wires will be in a bend
madetoGrade420reinforcingbars,weldablebarsconforming
and if the welded wire reinforcement cannot be bent with the
to Specification A706/A706M shall be used. The spacing
longitudinalwirestotheoutsideofthebend,bendswithinside
center to center of the circumferential wires shall not be less
diameters less than 8.0db shall not be located less than 4.0db
than 50 mm nor more than 100 mm. The spacing center to
from the nearest welded intersection. When bending welded-
centerofthelongitudinalwiresshallnotbemorethan200mm.
wire reinforcement, longitudinal wires do not need to follow
7.5 Extension of A /A Reinforcing at the Haunch—A
the maximum spacing requirements of 7.4 within the bend
s2 s3 s2
and A reinforcing shall meet the following requirements in
radius. A maximum space of 400mm is permitted at the bend s3
the region of the haunch:
location to prevent localized fractures at weld intersections.
The ends of the longitudinal distribution reinforcement shall 7.5.1 Starting point for extension length for A /A to be
s2 s3
not be more than 50mm from the ends of the box section. The defined as the tip of the haunch.
C1433M−22
7.5.2 The distance from the starting point to the last millimeters per linear meter of box section length shall be the
crosswire of a mesh sheet excluding ends of wires beyond the same as the areas specified for A in Tables 1 and 2.
s4
lastcrosswire,shallbeaminimumofonecrosswirespaceplus
10. Manufacture
50mm.
7.5.3 Wire length beyond the last crosswire must be suffi-
10.1 Mixture—The aggregates shall be sized, graded,
cient for the A and A layer to at a minimum cross the A
s2 s3 s4 proportioned,andmixedwithsuchproportionsofcementitious
layer if provided as separate sheets.
materials and water as will produce a thoroughly-mixed
7.5.4 When A or A sheets are provided in combination
s2 s3 concrete of such quality that the pipe will conform to the test
withA as a nested sheet, the sheet may be bent in one of the
s4
anddesignrequirementsofthisspecification.Allconcreteshall
following configurations or as approved by the owner:
have a water-cementitious materials ratio not exceeding 0.53
7.5.4.1 Single 90 degree bend meeting the minimum bend
by weight. Cementitious materials shall be as specified in 6.2
diameter requirements of Table A with appropriate overlap
and shall be added to the mix in a proportion not less than 280
provided with A sheets in the wall.
s4
kg/m unless mix designs with a lower cementitious materials
7.5.4.2 Double 45 degree bend meeting minimum bend
content demonstrate that the quality and performance of the
diameterrequirementsofTableAtoallowthereinforcementto
pipe meet the requirements of this specification.
follow the angle haunch with appropriate clear cover. For this
10.2 Curing—The box sections shall be cured for a suffi-
option, nested wires providing A steel area shall extend
s2
cient length of time so that the concrete will develop the
beyond the midpoint of the haunch.
specified compressive strength in 28 days or less. Any one of
7.5.4.3 Single or multiple radius bend meeting minimum
the following methods of curing or combinations thereof shall
benddiameterrequirementsofTableAandbenttofollowjoint
be allowed to be used:
and or haunch dimensions with appropriate clear cover.
10.2.1 Steam Curing—The box sections shall be allowed to
7.5.4.4 It is not prohibited to trim mesh cages within the
be low pressure, steam-cured by a system that will maintain a
limits of a joint when the cage does not follow the joint.
moist atmosphere.
Adequate replacement steel must be provided within the
10.2.2 Water Curing—The box sections shall be allowed to
trimmed area to maintain appropriate reinforcing area and
bewater-curedbyanymethodthatwillkeepthesectionsmoist.
appropriate clear cover.
10.2.3 Membrane Curing—A sealing membrane conform-
ing to the requirements of Specification C309 may be applied
8. Installation
and shall be left intact until the required concrete compressive
8.1 The successful performance of this product depends
strength is attained. The concrete temperature at the time of
upon proper installation as the soil/structure interaction is
applicationshallbewithin6°Coftheatmospherictemperature.
considered in the design. The effects of this interaction are
All surfaces shall be kept moist prior to the application of the
highlighted in Note 1 and Note 4. The precast reinforced
compounds and shall be damp when the compound is applied.
concrete box section/soil system shall be constructed to con-
10.3 Forms—The forms used in manufacture shall be suf-
form to Practice C1675 for the installation conditions assumed
ficiently rigid and accurate to maintain the box section dimen-
for design and in accordance with the dimensions and require-
sions within the permissible variations given in Section 12.All
ments specified or shown on the plans. The tabular steel
casting surfaces shall be of smooth nonporous material.
designs in this Standard assume compacted sidefill. See Ap-
pendixX1foradditionaldetailsondesignassumptionsusedto
10.4 Handling—Handling devices or holes shall be permit-
develop the design tables.
ted in each box section for the purpose of handling and laying.
9. Joints
11. Physical Requirements
9.1 The precast reinforced concrete box sections shall be
11.1 Type of Test Specimen—Compression tests for deter-
produced with tongue and groove ends. The ends shall be of
mining concrete compressive strength shall be allowed to be
suchdesignandtheendsoftheboxsectionssoformedthatthe
made on either standard rodded concrete cylinders or concrete
sections can be laid together to make a continuous line of box
cylinders compacted and cured in like manner as the box
sections compatible with the permissible variations given in
sections, or on cores drilled from the box section.
Section 12.
11.2 Compression Testing of Cylinders:
9.2 JointsmayconformtotherequirementsofSpecification
11.2.1 Cylinders shall be obtained and tested for compres-
C990, Specification C1677, or other established joint type as
sive strength in accordance with the provisions of Practice
approved by the owner including, but not limited to, mortar,
C31/C31M and Test Method C39/C39M, except that the
sealant, or fabric-wrapped joints. For joints conforming to
cylinders may be prepared by methods comparable to those
Specification C1677, the gasket shall be in accordance with
used to consolidate and cure the concrete in the actual box
Specification C1619, Class C requirements or for oil-resistant
section manufactured. Cylindrical specimens of sizes other
properties, the gasket shall meet Class D requirements.
than 150 by 300 mm may be used provided all other require-
9.3 Outer cage circumferential reinforcement as shown in ments of Practice C31/C31M are met. If the concrete is of a
Figs. 1 and 2 shall be placed in the top and bottom slabs at the consistency too stiff for compaction by rodding or internal
grooveportionofthejointwhenA isnotcontinuousoverthe vibration, the alternate method described in Section II of Test
s1
span. The minimum area of such reinforcement in square Methods C497M may be used. Cylinders shall be exposed to
C1433M−22
the same curing conditions as the manufactured box sections section will meet all of the test requirements of this specifica-
and shall remain with the sections until tested. tion. Box sections so sealed shall be considered as satisfactory
for use.
11.2.2 Prepare not less than three test cylinders from each
concrete mix used within a group (one day’s production) of
11.5 Test Equipment—Every manufacturer furnishing box
box sections.
sections under this specification shall furnish all facilities and
11.2.3 Acceptability on the Basis of Cylinder Test Results:
personnel necessary to carry out the tests required.
11.2.3.1 When the average compressive strength of two
cylinders tested for a group is equal to or greater than the
12. Permissible Variations
required concrete strength, and no cylinder tested has a
12.1 Internal Dimensions—The internal dimensions mea-
compressive strength less than 90% of the required concrete
sured between parallel faces of the span or rise at any point
strength, the compressive strength of concrete in the group of
perpendiculartothefaceofthemeasuredsectionshallnotvary
box sections shall be accepted.
by more than 1% or 51 mm from the design dimensions,
11.2.3.2 If one of the cylinders tested has a compressive
whichever is less, for dimensions greater than 1200 mm and
strength less than 90% but more than 80% of the required
shall not vary by more than 13 mm for dimensions less than or
concrete strength, a third cylinder from the group shall be
equal to 1200 mm. Measurements shall be taken at the
tested. If the third cylinder compressive strength is equal to or
midpoint of the span or rise and 300 mm from each end of the
greater than the required concrete strength, and the average
section.Thehaunchdimensionsshallnotvarymorethan6mm
compressive strength of all three cylinders tested is equal to or
from the design dimensions.
greater than the required concrete strength, then the compres-
12.2 Slab and Wall Thickness—The slab and wall thickness
sive strength of concrete in the group of box sections shall be
accepted. shall not be less than that shown in the design by more than
5% or 5 mm, whichever is greater.Athickness more than that
11.2.3.3 Box sections that fail to meet the strength require-
required in the design shall not be a cause for rejection.
ments under 11.2 shall not be retested under 11.3 without the
approval of the purchaser.
12.3 Length of Opposite Surfaces—Variations in laying
11.2.3.4 When the compressive strength of the cylinders is
lengthsoftwooppositesurfacesoftheboxsectionshallnotbe
unavailable, the acceptability of the lot shall be determined in
more than 10 mm/m of internal span, with a maximum of 16
accordance with the provisions of 11.3.
mm for all sizes through 2100 mm internal span, and a
maximum of 19 mm for internal spans greater than 2100 mm,
11.3 Compression Testing of Cores:
exceptwherebeveledendsforlayingofcurvesarespecifiedby
11.3.1 Cores shall be obtained and tested for compressive
the purchaser.
strength in accordance with the provisions of Test Methods
12.4 Length of Section—Theunderruninlengthofasection
C497M.
shall not be more than 10 mm/m of length with a maximum of
11.3.2 Three cores shall be cut from a section selected at
13 mm in any box section.
random from each group of 15 box sections or fraction thereof
of a single size from each continuous production run.
12.5 Position of Reinforcement—Themaximumvariationin
11.3.3 Acceptability by Core Tests:
the position of the reinforcement for 125 mm or less slab and
11.3.3.1 The compressive strength of the concrete in each wall thickness shall be 610 mm, and for greater than 125 mm
group of box sections, defined as the average of three cores slabandwallthicknessshallbe 613mm.Innocase,however,
taken at random from the subject group, is equal to or greater shall the cover over the reinforcement be less than 16 mm, as
than 85% of the required strength of the concrete with no one measured to the internal surface or the external surface except
core less than 75% of the required strength. the cover over the reinforcement for the external surface of the
top slab for boxes with under 0.6 m of cover shall not be less
11.3.3.2 If the compressive strength of the three cores does
than40mm.Theprecedingminimumcoverlimitationdoesnot
not meet the requirements of 11.3.3.1, the sections from which
apply at the mating surfaces of the joint.
the cores were taken shall be rejected. Two box sections from
theremainderofthegroupshallbeselectedatrandomandone 12.5.1 Joint Reinforcement for Rubber Gasket Joints—Inno
core shall be taken from each. If both cores have a strength case, however, shall the cover over the reinforcement be less
equal to or greater than 85% of the required strength of the than 6 mm as measured to the end of the spigot or 13 mm as
concrete, the remainder of the group is acceptable. If the measured to any other surface.
compressive strength of either of the two cores tested is less
12.6 Area of Reinforcement—The areas of steel reinforce-
than 85% of the required strength of the concrete, the
ment shall be the design steel areas as shown in Tables 1 and
remainder of the group of box section shall be rejected or, at
2. Steel areas greater than those required shall not be cause for
the option of the manufacturer, each box section of the entire
rejection. The permissible variation in diameter of any wire in
group shall be cored and accepted individually, and any of
finished reinforcement shall conform to the tolerances pre-
these box sections that have cores with less than 85% of the
scribedforthewirebeforefabricationbySpecificationA1064/
required strength of the concrete shall be rejected.
A1064M as applicable. If steel bars (Grade 420) are used in
11.4 Plugging Core Holes—Thecoreholesshallbeplugged lieu of welded wire reinforcement, the steel areas presented in
and sealed by the manufacturer in a manner such that the box Tables 1 and 2 shall be increased to account for the difference
C1433M−22
in steel yield strength, steel spacing, concrete cover, and crack Individualboxsectionsshallbeallowedtoberejectedbecause
control between the welded wire reinforcement and steel bars. of any of the following:
15.1.1 Fractures or cracks passing through the wall, except
12.7 Haunch Dimensions—The vertical and horizontal di-
for a single end crack that does not exceed the depth of the
mensions shall be equal to the side wall thickness. If haunches
with other dimensions are used, a special reinforcement design joint,
for the actual dimensions shall be completed. In lieu of
15.1.2 Defects that indicate mixing and molding not in
performing a special design, for the specific case where the
compliance with 10.1, or honeycombed or open texture that
actual haunch dimensions are larger than the standard dimen-
would adversely affect the function of the box sections, and
sions and vertical and horizontal haunch dimensions are equal,
15.1.3 Damaged ends, where such damage would prevent
theA steelareashallbeincreased1%forevery5%increase
s1
making a satisfactory joint.
inthehaunchdimensionoverthatspecifiedinTable1orTable
2 and A and A shall be reduced by an equal percentage.
s2 s3
16. Marking
13. Repairs
16.1 The following information shall be legibly marked on
13.1 Box sections shall be repaired, if necessary, because of
each box section by indentation, waterproof paint, or other
imperfections in manufacture or handling damage and will be
approved means:
acceptable if, in the opinion of the purchaser, the repaired box
16.1.1 Box section span, rise, table number, maximum and
section conforms to the requirements of this specification.
minimum design earth cover, and specification designation,
14. Inspection
16.1.2 Date of manufacture, and
16.1.3 Name or trademark of the manufacturer.
14.1 The quality of materials, the process of manufacture,
and the finished box sections shall be subject to inspection by
16.2 Each section shall be clearly marked by indentation on
the purchaser. The method of marking as to acceptance or
either the inner or outer surface during the process of manu-
rejection of the box sections shall be agreed upon, prior to
facture so that the location of the top will be evident immedi-
inspection, between the owner and the manufacturer.
ately after the forms are stripped. In addition, the word “top”
15. Rejection shall be lettered with waterproof paint on the inside top
surface.
15.1 Boxsectionsshallbesubjecttorejectiononaccountof
failure to conform to any of the specification requirements.
TABLE 1 Design Requirements for Precast Concrete Box Sections Under Earth Dead and HS20 Live Load Conditions
NOTE 1—Design earth covers and reinforcement areas are based on the weight of a column of earth over the width of the box section as defined in
Appendix X1.
NOTE 2—Concrete design strength 35 MPa.
NOTE 3—The design earth cover indicated is the height of fill above the top of the box section. Design requirements are based on the material and soil
properties, loading data, and typical section as included in Appendix X1. For alternative or special designs, see 7.2.
NOTE 4—Design steel area in millimetres per linear metre of box section at those locations which are indicated on the typical section included in Fig.
1.
NOTE 5—The top section designation, for example, 900 by 600 by 100 mm indicates (interior horizontal span in millimetres) by (interior vertical rise
in millimetres) by (wall and slab thickness in millimetres).
NOTE 6—In accordance with the acceptance criteria in 7.2, the manufacturer may interpolate the steel area requirements for fill heights between noted
increments or may submit independent designs.
900 by 600 by 100 mm
Span Rise Top Bottom Side Haunch Design Earth Cover Circumferential Reinforcement Areas, mm /m
mm mm mm mm mm mm m
A A A A A A A “M,” mm
s1 s2 s3 s4 s5 s7 s8
900 600 175 150 100 100 0-0.6 360 810 450 220 410 360 300
900 600 100 100 100 100 0.6-0.9 280 450 450 220 790
900 600 100 100 100 100 0.9-1.5 220 220 220 220 790
900 600 100 100 100 100 3 220 220 220 220 790
900 600 100 100 100 100 4.6 220 300 300 220 790
900 600 100 100 100 100 6.1 240 390 410 220 790
900 600 100 100 100 100 7.6 300 490 490 220 790
900 600 100 100 100 100 9.1 360 580 580 220 790
900 600 100 100 100 100 10.7 430 660 660 220 790
900 by 900 by 100 mm
Span Rise Top Bottom Side Haunch Design Earth Cover Circumferential Reinforcement Areas, mm /m
mm mm mm mm mm mm m A A A A A A A “M,” mm
s1 s2 s3 s4 s5 s7 s8
900 900 175 150 100 100 0-0.6 360 850 490 220 430 360 300
900 900 100 100 100 100 0.6-0.9 220 530 530 220 790
900 900 100 100 100 100 0.9-1.5 220 220 240 220 790
900 900 100 100 100 100 3 220 240 240 220 790
900 900 100 100 100 100 4.6 220 320 340 220 790
C1433M−22
900 900 100 100 100 100 6.1 220 430 430 220 790
900 900 100 100 100 100 7.6 220 510 530 220 790
900 900 100 100 100 100 9.1 260 620 620 220 790
900 900 100 100 100 100 10.7 300 700 720 220 790
1200 by 600 by 125 mm
Span Rise Top Bottom Side Haunch Design Earth Cover Circumferential Reinforcement Areas, mm /m
mm mm mm mm mm mm m A A A A A A A “M,” mm
s1 s2 s3 s4 s5 s7 s8
1200 600 190 150 125 125 0-0.6 390 850 430 260 430 390 300
1200 600 125 125 125 125 0.6-0.9 450 490 430 260 970
1200 600 125 125 125 125 0.9-1.5 260 260 260 260 970
1200 600 125 125 125 125 3 260 260 280 260 970
1200 600 125 125 125 125 4.6 300 360 390 260 970
1200 600 125 125 125 125 6.1 410 490 490 260 970
1200 600 125 125 125 125 7.6 490 600 600 260 970
1200 600 125 125 125 125 9.1 600 700 700 260 970
1200 600 125 125 125 125 10.7 700 810 830 260 970
1200 by 900 by 125 mm
Span Rise Top Bottom Side Haunch Design Earth Cover Circumferential Reinforcement Areas, mm /m
mm mm mm mm mm mm m A A A A A A A “M,” mm
s1 s2 s3 s4 s5 s7 s8
1200 900 190 150 125 125 0-0.6 390 960 490 260 470 390 300
1200 900 125 125 125 125 0.6-0.9 340 600 530 260 970
1200 900 125 125 125 125 0.9-1.5 260 260 280 260 970
1200 900 125 125 125 125 3 260 300 320 260 970
1200 900 125 125 125 125 4.6 260 430 430 260 970
1200 900 125 125 125 125 6.1 300 550 550 260 970
1200 900 125 125 125 125 7.6 360 680 680 260 970
1200 900 125 125 125 125 9.1 450 810 810 260 970
1200 900 125 125 125 125 10.7 530 940 940 260 970
1200 by 1200 by 125 mm
Span Rise Top Bottom Side Haunch Design Earth Cover Circumferential Reinforcement Areas, mm /m
mm mm mm mm mm mm m A A A A A A A “M,” mm
s1 s2 s3 s4 s5 s7 s8
1200 1200 190 150 125 125 0-0.6 390 1000 530 260 490 390 300
1200 1200 125 125 125 125 0.6-0.9 280 660 600 260 970
1200 1200 125 125 125 125 0.9-1.5 260 300 320 260 970
1200 1200 125 125 125 125 3 260 320 340 260 970
1200 1200 125 125 125 125 4.6 260 450 470 260 970
1200 1200 125 125 125 125 6.1 260 580 600 260 970
1200 1200 125 125 125 125 7.6 300 700 720 260 970
1200 1200 125 125 125 125 9.1 360 830 850 260 970
1200 1200 125 125 125 125 10.7 430 960 980 260 970
1500 by 900 by 150 mm
Span Rise Top Bottom Side Haunch Design Earth Cover Circumferential Reinforcement Areas, mm /m
mm mm mm mm mm mm m A A A A A A A “M,” mm
s1 s2 s3 s4 s5 s7 s8
1500 900 200 175 150 150 0-0.6 410 940 470 300 450 410 360
1500 900 150 150 150 150 0.6-0.9 450 620 470 300 1150
1500 900 150 150 150 150 0.9-1.5 300 300 300 300 920
1500 900 150 150 150 150 3 300 360 360 300 920
1500 900 150 150 150 150 4.6 360 510 510 300 890
1500 900 150 150 150 150 6.1 450 660 660 300 890
1500 900 150 150 150 150 7.6 550 810 810 300 890
1500 900 150 150 150 150 9.1 660 960 960 300 890
1500 900 150 150 150 150 10.7 790 1100 1130 300 890
1500 by 1200 by 150 mm
Span Rise Top Bottom Side Haunch Design Earth Cover Circumferential Reinforcement Areas, mm /m
mm mm mm mm mm mm m A A A A A A A “M,” mm
s1 s2 s3 s4 s5 s7 s8
1500 1200 200 175 150 150 0-0.6 410 1020 510 300 470 410 360
1500 1200 150 150 150 150 0.6-0.9 390 700 530 300 1150
1500 1200 150 150 150 150 0.9-1.5 300 340 340 300 1150
1500 1200 150 150 150 150 3 300 410 410 300 920
1500 1200 150 150 150 150 4.6 300 550 580 300 890
1500 1200 150 150 150 150 6.1 390 700 720 300 890
1500 1200 150 150 150 150 7.6 450 870 890 300 890
1500 1200 150 150 150 150 9.1 550 2120 2120 300 890
1500 1200 150 150 150 150 10.7 640 1190 1210 300 890
1500 by 1500 by 150 mm
Span Rise Top Bottom Side Haunch Design Earth Cover Circumferential Reinforcement Areas, mm /m
mm mm mm mm mm mm m A A A A A A A “M,” mm
s1 s2 s3 s4 s5 s7 s8
1500 1500 200 175 150 150 0-0.6 410 1060 550 300 510 410 360
1500 1500 150 150 150 150 0.6-0.9 340 750 600 300 1150
1500 1500 150 150 150 150 0.9-1.5 300 360 390 300 1150
1500 1500 150 150 150 150 3 300 430 450 300 1150
1500 1500 150 150 150 150 4.6 300 580 600 300 920
1500 1500 150 150 150 150 6.1 320 750 770 300 890
1500 1500 150 150 150 150 7.6 410 890 940 300 890
1500 1500 150 150 150 150 9.1 470 1060 1080 300 890
1500 1500 150 150 150 150 10.7 560 1230 1250 300 890
1800 by 900 by 175 mm
C1433M−22
Span Rise Top Bottom Side Haunch Design Earth Cover Circumferential Reinforcement Areas, mm /m
mm mm mm mm mm mm m A A A A A A A “M,” mm
s1 s2 s3 s4 s5 s7 s8
1800 900 200 175 175 175 0-0.6 490 960 430 360 410 410 360
1800 900 175 175 175 175 0.6-0.9 510 640 430 360 1100
1800 900 175 175 175 175 0.9-1.5 360 360 360 360 1020
1800 900 175 175 175 175 3 360 430 430 360 1000
1800 900 175 175 175 175 4.6 490 580 600 360 970
1800 900 175 175 175 175 6.1 640 750 770 360 970
1800 900 175 175 175 175 7.6 770 940 940 360 970
1800 900 175 175 175 175 9.1 920 1100 1100 360 970
1800 900 175 175 175 175 10.7 1060 1270 1270 360 970
1800 by 1200 by 175 mm
Span Rise Top Bottom Side Haunch Design Earth Cover Circumferential Reinforcement Areas, mm /m
mm mm mm mm mm mm m A A A A A A A “M,” mm
s1 s2 s3 s4 s5 s7 s8
1800 1200 200 175 175 175 0-0.6 410 1040 490 360 450 410 360
1800 1200 175 175 175 175 0.6-0.9 450 700 490 360 1100
1800 1200 175 175 175 175 0.9-1.5 360 360 360 360 1020
1800 1200 175 175 175 175 3 360 470 490 360 1000
1800 1200 175 175 175 175 4.6 430 640 660 360 970
1800 1200 175 175 175 175 6.1 530 830 850 360 970
1800 1200 175 175 175 175 7.6 640 1020 1040 360 970
1800 1200 175 175 175 175 9.1 770 1210 1230 360 970
1800 1200 175 175 175 175 10.7 890 1400 1420 360 970
1800 by 1500 by 175 mm
Span Rise Top Bottom Side Haunch Design Earth Cover Circumferential Reinforcement Areas, mm /m
mm mm mm mm mm mm m A A A A A A A “M,” mm
s1 s2 s3 s4 s5 s7 s8
1800 1500 200 175 175 175 0-0.6 410 1110 530 360 470 410 360
1800 1500 175 175 175 175 0.6-0.9 410 770 550 360 1330
1800 1500 175 175 175 175 0.9-1.5 360 410 410 360 1100
1800 1500 175 175 175 175 3 360 490 510 360 1000
1800 1500 175 175 175 175 4.6 360 680 700 360 970
1800 1500 175 175 175 175 6.1 470 870 910 360 970
1800 1500 175 175 175 175 7.6 550 1080 1110 360 970
1800 1500 175 175 175 175 9.1 660 1270 1300 360 970
1800 1500 175 175 175 175 10.7 770 1460 1510 360 970
1800 by 1800 by 175 mm
Span Rise Top Bottom Side Haunch Design Earth Cover Circumferential Reinforcement Areas, mm /m
mm mm mm mm mm mm m A A A A A A A “M,” mm
s1 s2 s3 s4 s5 s7 s8
1800 1800 200 175 175 175 0-0.6 410 1140 580 360 490 410 360
1800 1800 175 175 175 175 0.6-0.9 360 810 600 360 1330
1800 1800 175 175 175 175 0.9-1.5 360 430 430 360 1330
1800 1800 175 175 175 175 3 360 510 550 360 1100
1800 1800 175 175 175 175 4.6 360 700 750 360 1000
1800 1800 175 175 175 175 6.1 410 910 940 360 970
1800 1800 175 175 175 175 7.6 490 1110 1150 360 970
1800 1800 175 175 175 175 9.1 580 1300 1340 360 970
1800 1800 175 175 175 175 10.7 680 1510 1550 360 970
2100 by 1200 by 200 mm
Span Rise Top Bottom Side Haunch Design Earth Cover Circumferential Reinforcement Areas, mm /m
mm mm mm mm mm mm m A A A A A A A “M,” mm
s1 s2 s3 s4 s5 s7 s8
2100 1200 200 200 200 200 0-0.6 550 1040 450 410 410 410 410
2100 1200 200 200 200 200 0.6-0.9 510 700 470 410 1200
2100 1200 200 200 200 200 0.9-1.5 410 410 410 410 1100
2100 1200 200 200 200 200 3 410 530 530 410 1100
2100 1200 200 200 200 200 4.6 550 720 740 410 1050
2100 1200 200 200 200 200 6.1 700 940 960 410 1050
2100 1200 200 200 200 200 7.6 850 1150 1170 410 1050
2100 1200 200 200 200 200 9.1 1000 1360 1380 410 1050
2100 1200 200 200 200 200 10.7 1170 1590 1590 410 1050
2100 by 1500 by 200 mm
Span Rise Top Bottom Side Haunch Design Earth Cover Circumferential Reinforcement Areas, mm /m
mm mm mm mm mm mm m
A A A A A A A “M,” mm
s1 s2 s3 s4 s5 s7 s8
2100 1500 200 200 200 200 0-0.6 490 1110 510 410 450 410 410
2100 1500 200 200 200 200 0.6-0.9 470 770 530 410 1500
2100 1500 200 200 200 200 0.9-1.5 410 430 430 410 1100
2100 1500 200 200 200 200 3 410 580 600 410 1100
2100 1500 200 200 200 200 4.6 490 790 810 410 1050
2100 1500 200 200 200 200 6.1 620 1020 1040 410 1050
2100 1500 200 200 200 200 7.6 740 1230 1250 410 1050
2100 1500 200 200 200 200 9.1 870 1460 1490 410 1050
2100 1500 200 200 200 200 10.7 1000 1700 1720 410 1050
2100 by 1800 by 200 mm
Span Rise Top Bottom Side Haunch Design Earth Cover Circumferential Reinforcement Areas, mm /m
mm mm mm mm mm mm m A A A A A A A “M,” mm
s1 s2 s3 s4 s5 s7 s8
2100 1800 200 200 200 200 0-0.6 450 1150 550 410 470 410 410
2100 1800 200 200 200 200 0.6-0.9 430 830 580 410 1500
2100 1800 200 200 200 200 0.9-1.5 410 470 470 410 1200
C1433M−22
2100 1800 200 200 200 200 3 410 600 640 410 1100
2100 1800 200 200 200 200 4.6 430 830 850 410 1050
2100 1800 200 200 200 200 6.1 550 1060 1080 410 1050
2100 1800 200 200 200 200 7.6 660 1300 1320 410 1050
2100 1800 200 200 200 200 9.1 770 1530 1550 410 1050
2100 1800 200 200 200 200 10.7 890 1760 1800 410 1050
2100 by 2100 by 200 mm
Span Rise Top Bottom Side Haunch Design Earth Cover Circumferential Reinforcement Areas, mm /m
mm mm mm mm mm mm m A A A A A A A “M,” mm
s1 s2 s3 s4 s5 s7 s8
2100 2100 200 200 200 200 0-0.6 470 1190 580 410 470 410 410
2100 2100 200 200 200 200 0.6-0.9 470 870 620 410 1500
2100 2100 200 200 200 200 0.9-1.5 470 490 490 410 1500
2100 2100 200 200 200 200 3 470 620 660 410 1200
2100 2100 200 200 200 200 4.6 470 850 890 410 1100
2100 2100 200 200 200 200 6.1 510 1080 1130 410 1050
2100 2100 200 200 200 200 7.6 600 1320 1360 410 1050
2100 2100 200 200 200 200 9.1 700 1550 1590 410 1050
2100 2100 200 200 200 200 10.7 810 1780 1850 410 1050
2400 by 1200 by 200 mm
Span Rise Top Bottom Side Haunch Design Earth Cover Circumferential Reinforcement Areas, mm /m
mm mm mm mm mm mm m A A A A A A A “M,” mm
s1 s2 s3 s4 s5 s7 s8
2400 1200 200 200 200 200 0-0.6 660 1130 490 410 430 410 410
2400 1200 200 200 200 200 0.6-0.9 640 830 530 410 1270
2400 1200 200 200 200 200 0.9-1.5 430 470 470 410 1150
2400 1200 200 200 200 200 3 580 660 680 410 1150
2400 1200 200 200 200 200 4.6 790 910 940 410 1050
2400 1200 200 200 200 200 6.1 1000 1210 1210 410 1050
2400 1200 200 200 200 200 7.6 1230 1440 1460 410 1050
2400 by 1500 by 200 mm
Span Rise Top Bottom Side Haunch Design Earth Cover Circumferential Reinforcement Areas, mm /m
mm mm mm mm mm mm m A A A A A A A “M,” mm
s1 s2 s3 s4 s5 s7 s8
2400 1500 20
...
This document is not an ASTM standard and is intended only to provide the user of an ASTM standard an indication of what changes have been made to the previous version. Because
it may not be technically possible to adequately depict all changes accurately, ASTM recommends that users consult prior editions as appropriate. In all cases only the current version
of the standard as published by ASTM is to be considered the official document.
Designation: C1433M − 20 C1433M − 22
Standard Specification for
Precast Reinforced Concrete Monolithic Box Sections for
Culverts, Storm Drains, and Sewers (Metric)
This standard is issued under the fixed designation C1433M; the number immediately following the designation indicates the year of
original adoption or, in the case of revision, the year of last revision. A number in parentheses indicates the year of last reapproval. A
superscript epsilon (´) indicates an editorial change since the last revision or reapproval.
1. Scope*
1.1 This specification covers single-cell precast reinforced concrete box sections cast monolithically and intended to be used for
the construction of culverts and for the conveyance of storm water industrial wastes and sewage.
1.2 This specification is the SI companion to Specification C1433.
NOTE 1—This specification is primarily a manufacturing and purchasing specification. However, standard designs are included and the criteria used to
develop these designs are given in Appendix X1. The successful performance of this product depends upon the proper selection of the box section,
bedding, backfill, and care that the installation conforms to the construction specifications. The purchaser of the precast reinforced concrete box sections
specified herein is cautioned that he must properly correlate the loading conditions and the field requirements with the box section specified and provide
for inspection at the construction site.
1.3 This international standard was developed in accordance with internationally recognized principles on standardization
established in the Decision on Principles for the Development of International Standards, Guides and Recommendations issued
by the World Trade Organization Technical Barriers to Trade (TBT) Committee.
2. Referenced Documents
2.1 ASTM Standards:
A615/A615M Specification for Deformed and Plain Carbon-Steel Bars for Concrete Reinforcement
A1064/A1064M Specification for Carbon-Steel Wire and Welded Wire Reinforcement, Plain and Deformed, for Concrete
A706/A706M Specification for Deformed and Plain Low-Alloy Steel Bars for Concrete Reinforcement
C31/C31M Practice for Making and Curing Concrete Test Specimens in the Field
C33/C33M Specification for Concrete Aggregates
C39/C39M Test Method for Compressive Strength of Cylindrical Concrete Specimens
C150/C150M Specification for Portland Cement
C260/C260M Specification for Air-Entraining Admixtures for Concrete
C309 Specification for Liquid Membrane-Forming Compounds for Curing Concrete
C494/C494M Specification for Chemical Admixtures for Concrete
C497M Test Methods for Concrete Pipe, Concrete Box Sections, Manhole Sections, or Tile (Metric)
C595/C595M Specification for Blended Hydraulic Cements
C618 Specification for Coal Fly Ash and Raw or Calcined Natural Pozzolan for Use in Concrete
This specification is under the jurisdiction of ASTM Committee C13 on Concrete Pipe and is the direct responsibility of Subcommittee C13.07 on Acceptance
Specifications and Precast Concrete Box Sections.
Current edition approved Sept. 15, 2020Sept. 1, 2022. Published November 2020October 2022. Originally approved in 1999. Last previous edition approved in 20192020
as C1433M – 19.C1433M – 20. DOI: 10.1520/C1433M-20.10.1520/C1433M-22.
For referenced ASTM standards, visit the ASTM website, www.astm.org, or contact ASTM Customer Service at service@astm.org. For Annual Book of ASTM Standards
volume information, refer to the standard’s Document Summary page on the ASTM website.
*A Summary of Changes section appears at the end of this standard
Copyright © ASTM International, 100 Barr Harbor Drive, PO Box C700, West Conshohocken, PA 19428-2959. United States
C1433M − 22
C822 Terminology Relating to Concrete Pipe and Related Products
C989/C989M Specification for Slag Cement for Use in Concrete and Mortars
C990 Specification for Joints for Concrete Pipe, Manholes, and Precast Box Sections Using Preformed Flexible Joint Sealants
C1017/C1017M Specification for Chemical Admixtures for Use in Producing Flowing Concrete (Withdrawn 2022)
C1116/C1116M Specification for Fiber-Reinforced Concrete
C1602/C1602M Specification for Mixing Water Used in the Production of Hydraulic Cement Concrete
C1619 Specification for Elastomeric Seals for Joining Concrete Structures
C1675 Practice for Installation of Precast Reinforced Concrete Monolithic Box Sections for Culverts, Storm Drains, and Sewers
C1677 Specification for Joints for Concrete Box, Using Rubber Gaskets
2.2 AASHTO Standards:
Standard Specifications for Highway Bridges
3. Terminology
3.1 Definitions—For definitions of terms relating to concrete pipe, see Terminology C822.
4. Types
4.1 Precast reinforced concrete box sections manufactured in accordance with this specification shall be one of two types identified
in Tables 1 and 2, and shall be designated by type, span, rise, and design earth cover.
5. Basis of Acceptance
5.1 Acceptability of the box sections produced in accordance with Section 7 shall be determined by the results of the concrete
compressive strength tests described in Section 11, by the material requirements described in Section 6, and by inspection of the
finished box sections.
5.2 Box sections shall be considered ready for acceptance when they conform to the requirements of this specification.
6. Material
6.1 Reinforced Concrete—The reinforced concrete shall consist of cementitious materials, mineral aggregates, admixtures if used,
and water in which steel has been embedded in such a manner that the steel and concrete act together.
6.2 Cementitious Materials:
6.2.1 Cement—Cement shall conform to the requirements for portland cement of Specification C150/C150M or shall be portland
blast-furnace slag cement, portland-limestone cement, or portland-pozzolan cement conforming to the requirements of
Specification C595/C595M, except that the pozzolan constituent in the Type IP portland pozzolan cement shall be fly ash.
6.2.2 Fly Ash—Fly ash shall conform to the requirements of Specification C618, Class F or Class C.
6.2.3 Slag Cement—Slag cement shall conform to the requirements of Grade 100 or 120 of Specification C989/C989M.
6.2.4 Allowable Combinations of Cementitious Materials—The combination of cementitious materials used in the concrete shall
be one of the following:
6.2.4.1 Portland cement only,
6.2.4.2 Portland blast-furnace slag cement only,
6.2.4.3 Portland-pozzolan cement only,
6.2.4.4 Portland-limestone cement only,
The last approved version of this historical standard is referenced on www.astm.org.
Available from American Association of State Highway and Transportation Officials (AASHTO), 444 N. Capitol St., NW, Suite 249, Washington, DC 20001.
C1433M − 22
6.2.4.5 A combination of portland cement or portland-limestone cement and fly ash,
6.2.4.6 A combination of portland cement or portland-limestone cement, and slag cement,
6.2.4.7 A combination of portland cement or portland-limestone, slag cement, and fly ash, or
6.2.4.8 A combination of portland-pozzolan cement and fly ash.
6.3 Aggregates—Aggregates shall conform to Specification C33/C33M, except that the requirements for gradation shall not apply.
6.4 Admixtures—The following admixtures and blends are allowable:
6.4.1 Air-entraining admixture conforming to Specification C260/C260M;
6.4.2 Chemical admixture conforming to Specification C494/C494M;
6.4.3 Chemical admixture for use in producing flowing concrete conforming to Specification C1017/C1017M; and
6.4.4 Chemical admixture or blend approved by the owner.
6.5 Steel Reinforcement—Reinforcement shall consist of welded wire reinforcement conforming to Specification A1064/A1064M.
Circumferential reinforcement areas in Tables 1 and 2 are based solely on the use of welded wire reinforcement, refer to 12.6 if
alternate steel designs utilizing steel bars, Grade 420, in conjunction with or in lieu of welded wire reinforcement are to be
submitted for the owner’s approval. Longitudinal distribution reinforcement shall be allowed to consist of welded wire
reinforcement or deformed billet-steel bars conforming to either Specification A615/A615M, Grade 420, or Specification
A706/A706M, Grade 420.
6.6 Fibers—Synthetic fibers and nonsynthetic fibers shall be allowed to be used, at the manufacturer’s option, in concrete pipe as
a nonstructural manufacturing material. Synthetic fibers (Type II and Type III) and nonsynthetic fiber (Type 1) designed and
manufactured specifically for use in concrete and conforming to the requirements of Specification C1116/C1116M shall be
accepted.
6.7 Water—Water used in the production of concrete shall be potable or non-potable water that meets the requirements of
Specification C1602/C1602M.
7. Design
7.1 Design Tables—The box section dimensions, compressive strength of the concrete, and reinforcement details shall be as
prescribed in Table 1 or Table 2 and Figs. 1-414, subject to the provisions of Section 12. Table 1 sections are designed for combined
earth dead load and AASHTO HS20 live load conditions. Table 2 sections are designed for combined earth dead load and interstate
live load conditions when the interstate live loading exceeds the HS20 live loading. Criteria used to develop Tables 1 and 2 are
given in Appendix X1.
NOTE 2—The tabular designs in this specification were prepared according to AASHTO Standard Specifications for Highway Bridges, 1997 Edition.
C1433M − 22
FIG. 1 Typical Box Sections
FIG. 2 Section A-A Top and Bottom Slab Joint Reinforcement
FIG. 3 Detail Inner Reinforcement
NOTE 3—(Advisory)—The reinforcing areas shown in Table 1 are based on the design earth covering and live load conditions described within this
standard. Depending on the means and methods used, handling and installation loads by either the manufacturer or contractor can induce stresses not
considered within the development of the tables. These loads could require additional steel reinforcement beyond the minimums shown within the
standard. These handling and installation loads should be considered in the final design of the furnished precast concrete box section prior to fabrication.
C1433M − 22
FIG. 4 Detail Option (see Fig. 3)
FIG. 5 Detailed Reinforcement Arrangement
TABLE A Minimum Dimensions of Bends
Bar Size and Minimum Minimum
Use Radius Diameter
Welded Wire 2.0db 4.0db
Reinforcement—
Less than W/D 6
Welded Wire 4.0db 8.0db
Reinforcement—
W/D 6 and Larger Wire
10M Through 15M— 3.0db 6.0db
General
10M Through 15M— 2.0db 4.0db
Stirrups and Ties
20M Through 25M— 3.0db 6.0db
General
7.2 Modified and Special Designs for Monolithic Structures—The manufacturer shall request approval by the purchaser of
modified designs which differ from the designs in Section 7.17, or special designs for sizes and loads other than those shown in
Tables 1 and 2. When spans are required that exceed those prescribed in Table 1 or Table 2, the design shall be based on the criteria
C1433M − 22
FIG. 6 Detail Option
FIG. 7 Alternate Detail
given in Appendix X1. In addition, the span shall be designed to have adequate stiffness to limit deflection as given in Section 8.9
of AASHTO Standard Specification for Highway Bridges (latest edition).
NOTE 4—Construction procedures, such as heavy equipment movement or stockpiling of material over or adjacent to a box structure, can induce higher
loads than those used for the structure’s final design. These construction and surcharge loads are approved as long as the final steel areas in the box are
larger than those the box will experience in the final installation condition. The design engineer should take into consideration the potential for higher
loads induced by construction procedures in determining the final design of the box structure.
7.3 Placement of Reinforcement—The cover of concrete over the circumferential reinforcement shall be 25 mm, subject to the
provisions of Section 12. The inside circumferential reinforcement shall extend into the tongue portion of the joint and the outside
circumferential reinforcement shall extend into the groove portion of the joint. The clear distance of the end circumferential wires
shall be not less than 13 mm nor more than 50 mm from the ends of the box section. Reinforcement shall be assembled utilizing
any combination of single or multiple layers of welded-wire reinforcement. Multiple layers shall not be separated by more than
the thickness of one longitudinal wire plus 6 mm. The multiple layers shall be fastened together to form a single cage. All other
specification requirements such as laps, welds, and tolerances of placement in the wall of the box section shall apply to this method
of fabricating a reinforcement cage. A common reinforcement unit may be utilized for both A (or A ) and A , and also for both
s2 s3 s4
C1433M − 22
FIG. 8 Alternate Detail
FIG. 9 Alternate Detail
A (or A ) and A , with the largest area requirement governing, bending the reinforcement at the corners and waiving the
s7 s8 s1
extension requirements of Fig. 3 (seeand Fig. 5 (see Fig. 4). When a single cage of multiple circumferential steel areas is used for
A (or A ) and A reinforcement, the slab or wall requiring the larger steel area shall have this additional circumferential steel
s2 s3 s4
extending for the full length of the slab or wall. If the joint configuration requires or at the option of the manufacturer, Figs. 9-14
provide a permissible mitered INNER cage detail. When selecting this option, the minimum clear cover for the welded wire fabric
over the face of the haunches shall be 25mm. It is permissible to just shape, remove and replace the section of cage that interferes
with the shape of the joint or miter the wire bars in the joints if necessary, to conform to the shape of the joint formers provided
proper laps and radius requirements are adhered to. In no case shall the maximum cover of the reinforcing across the face of the
haunches be more than 75mm. The welded-wire reinforcement shall be composed of circumferential and longitudinal wires
meeting the spacing requirements of 7.4 and shall contain sufficient longitudinal wires extending through the box section to
maintain the shape and position of reinforcement. Longitudinal distribution reinforcement may be welded-wire reinforcement or
deformed billet-steel bars and shall meet the spacing requirements of 7.4. If the longitudinal wires will be in a bend and if the
welded wire reinforcement cannot be bent with the longitudinal wires to the outside of the bend, bends with inside diameters less
C1433M − 22
FIG. 10 Alternate Detail
FIG. 11 Alternate Detail
than 8.0 db shall not be located less than 4.0 db from the nearest welded intersection. When bending welded-wire reinforcement,
longitudinal wires do not need to follow the maximum spacing requirements of 7.4 within the bend radius. A maximum space of
400mm is permitted at the bend location to prevent localized fractures at weld intersections. The ends of the longitudinal
distribution reinforcement shall not be more than 2 in. 50mm from the ends of the box section. The exposure of the ends of
longitudinals, stirrups, and spacers used to position the reinforcement shall not be a cause for rejection.
7.4 Laps, Welds, and Spacing—Splices in the circumferential reinforcement shall be made by lapping. The overlap measured
between the outermost longitudinal wires of each reinforcement sheet shall not be less than the spacing of the longitudinal wires
plus 50 mm but not less than 250 mm. If A is extended to the middle of either slab and connected, welded splices are not
s1
prohibited in the connection. When used, A and A shall be lapped with A as shown in Figs. 5 and 6Fig. 5 or Fig. 6 (see also
s7 s8 s1
Fig. 7Figs. 7-14 and Fig. 8). If welds are made to circumferential reinforcement, they shall be made only to selected circumferential
wires that are not less than 450 mm apart along the longitudinal axis of the box section. Also, when spacers are welded to
circumferential wires, they shall be welded only to these selected circumferential wires. There shall be no welding to other
circumferential wires, except it is not prohibited for A to be lapped and welded at any location or connected by welding at the
s4
corners to A and A . If A orA are provided as separate sheets and cross As4 in the region of the haunch, to facilitate cage
s2 s3 s2 s3
construction the circumferential wires of each cage must be in contact as shown in Fig. 3, Fig. 5, Figs. 9-12. When A is bent at
s4
one or both ends, clear distance shall be maintained at the tip of the haunch as shown in Fig. 9 or Fig. 10. No welds shall be made
C1433M − 22
FIG. 12 Alternate Detail
FIG. 13 Alternate Detail
to A or A circumferential wires in the middle third of the span (see Fig. 915 for welding restrictions). When distribution
s2 s3
reinforcement is to be fastened to a cage by welding, it shall be welded only to longitudinal wires and only near the ends of the
box section. If welds are made to Grade 420 reinforcing bars, weldable bars conforming to Specification A706/A706M shall be
used. The spacing center to center of the circumferential wires shall not be less than 50 mm nor more than 100 mm. The spacing
center to center of the longitudinal wires shall not be more than 200 mm.
7.5 Extension of A / A Reinforcing at the Haunch—A and A reinforcing shall meet the following requirements in the region
s2 s3 s2 s3
of the haunch:
7.5.1 Starting point for extension length for A / A to be defined as the tip of the haunch.
s2 s3
7.5.2 The distance from the starting point to the last crosswire of a mesh sheet excluding ends of wires beyond the last crosswire,
shall be a minimum of one crosswire space plus 50mm.
7.5.3 Wire length beyond the last crosswire must be sufficient for the A and A layer to at a minimum cross the A layer if
s2 s3 s4
provided as separate sheets.
7.5.4 When A or A sheets are provided in combination with A as a nested sheet, the sheet may be bent in one of the following
s2 s3 s4
configurations or as approved by the owner:
C1433M − 22
FIG. 14 Alternate Detail
FIG. 915 Critical Zones of High Stress Where Welding is Restricted
7.5.4.1 Single 90 degree bend meeting the minimum bend diameter requirements of Table A with appropriate overlap provided
with A sheets in the wall.
s4
7.5.4.2 Double 45 degree bend meeting minimum bend diameter requirements of Table A to allow the reinforcement to follow the
angle haunch with appropriate clear cover. For this option, nested wires providing A steel area shall extend beyond the midpoint
s2
of the haunch.
7.5.4.3 Single or multiple radius bend meeting minimum bend diameter requirements of Table A and bent to follow joint and or
haunch dimensions with appropriate clear cover.
7.5.4.4 It is not prohibited to trim mesh cages within the limits of a joint when the cage does not follow the joint. Adequate
replacement steel must be provided within the trimmed area to maintain appropriate reinforcing area and appropriate clear cover.
8. Installation
8.1 The successful performance of this product depends upon proper installation as the soil/structure interaction is considered in
the design. The effects of this interaction are highlighted in Note 1 and Note 34. The precast reinforced concrete box section/soil
system shall be constructed to conform to Practice C1675 for the installation conditions assumed for design and in accordance with
the dimensions and requirements specified or shown on the plans. The tabular steel designs in this Standard assume compacted
sidefill. See Appendix X1 for additional details on design assumptions used to develop the design tables.
C1433M − 22
9. Joints
9.1 The precast reinforced concrete box sections shall be produced with tongue and groove ends. The ends shall be of such design
and the ends of the box sections so formed that the sections can be laid together to make a continuous line of box sections
compatible with the permissible variations given in Section 12.
9.2 Joints may conform to the requirements of Specification C990, Specification C1677, or other established joint type as approved
by the owner including, but not limited to, mortar, sealant, or fabric-wrapped joints. For joints conforming to Specification C1677,
the gasket shall be in accordance with Specification C1619, Class C requirements or for oil-resistant properties, the gasket shall
meet Class D requirements.
9.3 Outer cage circumferential reinforcement as shown in Figs. 1 and 2 shall be placed in the top and bottom slabs at the groove
portion of the joint when A is not continuous over the span. The minimum area of such reinforcement in square millimeters per
s1
linear meter of box section length shall be the same as the areas specified for A in Tables 1 and 2.
s4
10. Manufacture
10.1 Mixture—The aggregates shall be sized, graded, proportioned, and mixed with such proportions of cementitious materials and
water as will produce a thoroughly-mixed concrete of such quality that the pipe will conform to the test and design requirements
of this specification. All concrete shall have a water-cementitious materials ratio not exceeding 0.53 by weight. Cementitious
materials shall be as specified in 6.2 and shall be added to the mix in a proportion not less than 280 kg/m unless mix designs with
a lower cementitious materials content demonstrate that the quality and performance of the pipe meet the requirements of this
specification.
10.2 Curing—The box sections shall be cured for a sufficient length of time so that the concrete will develop the specified
compressive strength in 28 days or less. Any one of the following methods of curing or combinations thereof shall be allowed to
be used:
10.2.1 Steam Curing—The box sections shall be allowed to be low pressure, steam-cured by a system that will maintain a moist
atmosphere.
10.2.2 Water Curing—The box sections shall be allowed to be water-cured by any method that will keep the sections moist.
10.2.3 Membrane Curing—A sealing membrane conforming to the requirements of Specification C309 may be applied and shall
be left intact until the required concrete compressive strength is attained. The concrete temperature at the time of application shall
be within 6°C of the atmospheric temperature. All surfaces shall be kept moist prior to the application of the compounds and shall
be damp when the compound is applied.
10.3 Forms—The forms used in manufacture shall be sufficiently rigid and accurate to maintain the box section dimensions within
the permissible variations given in Section 12. All casting surfaces shall be of smooth nonporous material.
10.4 Handling—Handling devices or holes shall be permitted in each box section for the purpose of handling and laying.
11. Physical Requirements
11.1 Type of Test Specimen—Compression tests for determining concrete compressive strength shall be allowed to be made on
either standard rodded concrete cylinders or concrete cylinders compacted and cured in like manner as the box sections, or on cores
drilled from the box section.
11.2 Compression Testing of Cylinders:
11.2.1 Cylinders shall be obtained and tested for compressive strength in accordance with the provisions of Practice C31/C31M
and Test Method C39/C39M, except that the cylinders may be prepared by methods comparable to those used to consolidate and
cure the concrete in the actual box section manufactured. Cylindrical specimens of sizes other than 150 by 300 mm may be used
provided all other requirements of Practice C31/C31M are met. If the concrete is of a consistency too stiff for compaction by
C1433M − 22
rodding or internal vibration, the alternate method described in Section II of Test Methods C497M may be used. Cylinders shall
be exposed to the same curing conditions as the manufactured box sections and shall remain with the sections until tested.
11.2.2 Prepare not less than three test cylinders from each concrete mix used within a group (one day’s production) of box
sections.
11.2.3 Acceptability on the Basis of Cylinder Test Results:
11.2.3.1 When the average compressive strength of two cylinders tested for a group is equal to or greater than the required concrete
strength, and no cylinder tested has a compressive strength less than 90 % of the required concrete strength, the compressive
strength of concrete in the group of box sections shall be accepted.
11.2.3.2 If one of the cylinders tested has a compressive strength less than 90 % but more than 80 % of the required concrete
strength, a third cylinder from the group shall be tested. If the third cylinder compressive strength is equal to or greater than the
required concrete strength, and the average compressive strength of all three cylinders tested is equal to or greater than the required
concrete strength, then the compressive strength of concrete in the group of box sections shall be accepted.
11.2.3.3 Box sections that fail to meet the strength requirements under 11.2 shall not be retested under 11.3 without the approval
of the purchaser.
11.2.3.4 When the compressive strength of the cylinders is unavailable, the acceptability of the lot shall be determined in
accordance with the provisions of 11.3.
11.3 Compression Testing of Cores:
11.3.1 Cores shall be obtained and tested for compressive strength in accordance with the provisions of Test Methods C497M.
11.3.2 Three cores shall be cut from a section selected at random from each group of 15 box sections or fraction thereof of a single
size from each continuous production run.
11.3.3 Acceptability by Core Tests:
11.3.3.1 The compressive strength of the concrete in each group of box sections is acceptable when concrete compressive strength,
sections, defined as the average of three cores taken at random from the subject group, is equal to or greater than 85 % of the
required strength of the concrete with no one core less than 75 % of the required strength.
11.3.3.2 If the compressive strength of the three cores does not meet the requirements of 11.3.3.1, the sections from which the
cores were taken shall be rejected. Two box sections from the remainder of the group shall be selected at random and one core
shall be taken from each. If both cores have a strength equal to or greater than 85 % of the required strength of the concrete, the
remainder of the group is acceptable. If the compressive strength of either of the two cores tested is less than 85 % of the required
strength of the concrete, the remainder of the group of box section shall be rejected or, at the option of the manufacturer, each box
section of the entire group shall be cored and accepted individually, and any of these box sections that have cores with less than
85 % of the required strength of the concrete shall be rejected.
11.4 Plugging Core Holes—The core holes shall be plugged and sealed by the manufacturer in a manner such that the box section
will meet all of the test requirements of this specification. Box sections so sealed shall be considered as satisfactory for use.
11.5 Test Equipment—Every manufacturer furnishing box sections under this specification shall furnish all facilities and personnel
necessary to carry out the tests required.
12. Permissible Variations
12.1 Internal Dimensions—The internal dimensions measured between parallel faces of the span or rise at any point perpendicular
to the face of the measured section shall not vary by more than 1 % or 51 mm from the design dimensions, whichever is less, for
dimensions greater than 1200 mm and shall not vary by more than 13 mm for dimensions less than or equal to 1200 mm.
Measurements shall be taken at the midpoint of the span or rise and 300 mm from each end of the section. The haunch dimensions
shall not vary more than 6 mm from the design dimensions.
C1433M − 22
12.2 Slab and Wall Thickness—The slab and wall thickness shall not be less than that shown in the design by more than 5 % or
5 mm, whichever is greater. A thickness more than that required in the design shall not be a cause for rejection.
12.3 Length of Opposite Surfaces—Variations in laying lengths of two opposite surfaces of the box section shall not be more than
10 mm/m of internal span, with a maximum of 16 mm for all sizes through 2100 mm internal span, and a maximum of 19 mm
for internal spans greater than 2100 mm, except where beveled ends for laying of curves are specified by the purchaser.
12.4 Length of Section—The underrun in length of a section shall not be more than 10 mm/m of length with a maximum of 13
mm in any box section.
12.5 Position of Reinforcement—The maximum variation in the position of the reinforcement for 125 mm or less slab and wall
thickness shall be 610 mm, and for greater than 125 mm slab and wall thickness shall be 613 mm. In no case, however, shall
the cover over the reinforcement be less than 16 mm, as measured to the internal surface or the external surface except the cover
over the reinforcement for the external surface of the top slab for boxes with under 0.6 m of cover shall not be less than 40 mm.
The preceding minimum cover limitation does not apply at the mating surfaces of the joint.
12.5.1 Joint Reinforcement for Rubber Gasket Joints—In no case, however, shall the cover over the reinforcement be less than 6
mm as measured to the end of the spigot or 13 mm as measured to any other surface.
12.6 Area of Reinforcement—The areas of steel reinforcement shall be the design steel areas as shown in Tables 1 and 2. Steel
areas greater than those required shall not be cause for rejection. The permissible variation in diameter of any wire in finished
reinforcement shall conform to the tolerances prescribed for the wire before fabrication by Specification A1064/A1064M as
applicable. If steel bars (Grade 420) are used in lieu of welded wire reinforcement, the steel areas presented in Tables 1 and 2 shall
be increased to account for the difference in steel yield strength, steel spacing, concrete cover, and crack control between the
welded wire reinforcement and steel bars.
12.7 Haunch Dimensions—The vertical and horizontal dimensions shall be equal to the side wall thickness. If haunches with other
dimensions are used, a special reinforcement design for the actual dimensions shall be completed. In lieu of performing a special
design, for the specific case where the actual haunch dimensions are larger than the standard dimensions and vertical and horizontal
haunch dimensions are equal, the A steel area shall be increased 1 % for every 5 % increase in the haunch dimension over that
s1
specified in Table 1 or Table 2 and A and A shall be reduced by an equal percentage.
s2 s3
13. Repairs
13.1 Box sections shall be repaired, if necessary, because of imperfections in manufacture or handling damage and will be
acceptable if, in the opinion of the purchaser, the repaired box section conforms to the requirements of this specification.
14. Inspection
14.1 The quality of materials, the process of manufacture, and the finished box sections shall be subject to inspection by the
purchaser. The method of marking as to acceptance or rejection of the box sections shall be agreed upon, prior to inspection,
between the owner and the manufacturer.
15. Rejection
15.1 Box sections shall be subject to rejection on account of failure to conform to any of the specification requirements. Individual
box sections shall be allowed to be rejected because of any of the following:
15.1.1 Fractures or cracks passing through the wall, except for a single end crack that does not exceed the depth of the joint,
15.1.2 Defects that indicate mixing and molding not in compliance with 10.1, or honeycombed or open texture that would
adversely affect the function of the box sections, and
15.1.3 Damaged ends, where such damage would prevent making a satisfactory joint.
C1433M − 22
16. Marking
16.1 The following information shall be legibly marked on each box section by indentation, waterproof paint, or other approved
means:
16.1.1 Box section span, rise, table number, maximum and minimum design earth cover, and specification designation,
16.1.2 Date of manufacture, and
16.1.3 Name or trademark of the manufacturer.
16.2 Each section shall be clearly marked by indentation on either the inner or outer surface during the process of manufacture
so that the location of the top will be evident immediately after the forms are stripped. In addition, the word “top” shall be lettered
with waterproof paint on the inside top surface.
TABLE 1 Design Requirements for Precast Concrete Box Sections Under Earth Dead and HS20 Live Load Conditions
NOTE 1—Design earth covers and reinforcement areas are based on the weight of a column of earth over the width of the box section as defined in
Appendix X1.
NOTE 2—Concrete design strength 35 MPa.
NOTE 3—The design earth cover indicated is the height of fill above the top of the box section. Design requirements are based on the material and soil
properties, loading data, and typical section as included in Appendix X1. For alternative or special designs, see 7.2.
NOTE 4—Design steel area in millimetres per linear metre of box section at those locations which are indicated on the typical section included in Fig.
1.
NOTE 5—The top section designation, for example, 900 by 600 by 100 mm indicates (interior horizontal span in millimetres) by (interior vertical rise
in millimetres) by (wall and slab thickness in millimetres).
NOTE 6—In accordance with the acceptance criteria in 7.2, the manufacturer may interpolate the steel area requirements for fill heights between noted
increments or may submit independent designs.
900 by 600 by 100 mm
Span Rise Top Bottom Side Haunch Design Earth Cover Circumferential Reinforcement Areas, mm /m
mm mm mm mm mm mm m A A A A A A A “M,” mm
s1 s2 s3 s4 s5 s7 s8
900 600 175 150 100 100 0-0.6 360 810 450 220 410 360 300
900 600 100 100 100 100 0.6-0.9 280 450 450 220 790
900 600 100 100 100 100 0.9-1.5 220 220 220 220 790
900 600 100 100 100 100 3 220 220 220 220 790
900 600 100 100 100 100 4.6 220 300 300 220 790
900 600 100 100 100 100 6.1 240 390 410 220 790
900 600 100 100 100 100 7.6 300 490 490 220 790
900 600 100 100 100 100 9.1 360 580 580 220 790
900 600 100 100 100 100 10.7 430 660 660 220 790
900 by 900 by 100 mm
Span Rise Top Bottom Side Haunch Design Earth Cover Circumferential Reinforcement Areas, mm /m
mm mm mm mm mm mm m A A A A A A A “M,” mm
s1 s2 s3 s4 s5 s7 s8
900 900 175 150 100 100 0-0.6 360 850 490 220 430 360 300
900 900 100 100 100 100 0.6-0.9 220 530 530 220 790
900 900 100 100 100 100 0.9-1.5 220 220 240 220 790
900 900 100 100 100 100 3 220 240 240 220 790
900 900 100 100 100 100 4.6 220 320 340 220 790
900 900 100 100 100 100 6.1 220 430 430 220 790
900 900 100 100 100 100 7.6 220 510 530 220 790
900 900 100 100 100 100 9.1 260 620 620 220 790
900 900 100 100 100 100 10.7 300 700 720 220 790
1200 by 600 by 125 mm
Span Rise Top Bottom Side Haunch Design Earth Cover Circumferential Reinforcement Areas, mm /m
mm mm mm mm mm mm m A A A A A A A “M,” mm
s1 s2 s3 s4 s5 s7 s8
1200 600 190 150 125 125 0-0.6 390 850 430 260 430 390 300
1200 600 125 125 125 125 0.6-0.9 450 490 430 260 970
1200 600 125 125 125 125 0.9-1.5 260 260 260 260 970
1200 600 125 125 125 125 3 260 260 280 260 970
1200 600 125 125 125 125 4.6 300 360 390 260 970
1200 600 125 125 125 125 6.1 410 490 490 260 970
1200 600 125 125 125 125 7.6 490 600 600 260 970
1200 600 125 125 125 125 9.1 600 700 700 260 970
1200 600 125 125 125 125 10.7 700 810 830 260 970
C1433M − 22
1200 by 900 by 125 mm
Span Rise Top Bottom Side Haunch Design Earth Cover Circumferential Reinforcement Areas, mm /m
mm mm mm mm mm mm m A A A A A A A “M,” mm
s1 s2 s3 s4 s5 s7 s8
1200 900 190 150 125 125 0-0.6 390 960 490 260 470 390 300
1200 900 125 125 125 125 0.6-0.9 340 600 530 260 970
1200 900 125 125 125 125 0.9-1.5 260 260 280 260 970
1200 900 125 125 125 125 3 260 300 320 260 970
1200 900 125 125 125 125 4.6 260 430 430 260 970
1200 900 125 125 125 125 6.1 300 550 550 260 970
1200 900 125 125 125 125 7.6 360 680 680 260 970
1200 900 125 125 125 125 9.1 450 810 810 260 970
1200 900 125 125 125 125 10.7 530 940 940 260 970
1200 by 1200 by 125 mm
Span Rise Top Bottom Side Haunch Design Earth Cover Circumferential Reinforcement Areas, mm /m
mm mm mm mm mm mm m A A A A A A A “M,” mm
s1 s2 s3 s4 s5 s7 s8
1200 1200 190 150 125 125 0-0.6 390 1000 530 260 490 390 300
1200 1200 125 125 125 125 0.6-0.9 280 660 600 260 970
1200 1200 125 125 125 125 0.9-1.5 260 300 320 260 970
1200 1200 125 125 125 125 3 260 320 340 260 970
1200 1200 125 125 125 125 4.6 260 450 470 260 970
1200 1200 125 125 125 125 6.1 260 580 600 260 970
1200 1200 125 125 125 125 7.6 300 700 720 260 970
1200 1200 125 125 125 125 9.1 360 830 850 260 970
1200 1200 125 125 125 125 10.7 430 960 980 260 970
1500 by 900 by 150 mm
Circumferential Reinforcement Areas, mm /m
Span Rise Top Bottom Side Haunch Design Earth Cover
mm mm mm mm mm mm m A A A A A A A “M,” mm
s1 s2 s3 s4 s5 s7 s8
1500 900 200 175 150 150 0-0.6 410 940 470 300 450 410 360
1500 900 150 150 150 150 0.6-0.9 450 620 470 300 1150
1500 900 150 150 150 150 0.9-1.5 300 300 300 300 920
1500 900 150 150 150 150 3 300 360 360 300 920
1500 900 150 150 150 150 4.6 360 510 510 300 890
1500 900 150 150 150 150 6.1 450 660 660 300 890
1500 900 150 150 150 150 7.6 550 810 810 300 890
1500 900 150 150 150 150 9.1 660 960 960 300 890
1500 900 150 150 150 150 10.7 790 1100 1130 300 890
1500 by 1200 by 150 mm
Span Rise Top Bottom Side Haunch Design Earth Cover Circumferential Reinforcement Areas, mm /m
mm mm mm mm mm mm m A A A A A A A “M,” mm
s1 s2 s3 s4 s5 s7 s8
1500 1200 200 175 150 150 0-0.6 410 1020 510 300 470 410 360
1500 1200 150 150 150 150 0.6-0.9 390 700 530 300 1150
1500 1200 150 150 150 150 0.9-1.5 300 340 340 300 1150
1500 1200 150 150 150 150 3 300 410 410 300 920
1500 1200 150 150 150 150 4.6 300 550 580 300 890
1500 1200 150 150 150 150 6.1 390 700 720 300 890
1500 1200 150 150 150 150 7.6 450 870 890 300 890
1500 1200 150 150 150 150 9.1 550 2120 2120 300 890
1500 1200 150 150 150 150 10.7 640 1190 1210 300 890
1500 by 1500 by 150 mm
Span Rise Top Bottom Side Haunch Design Earth Cover Circumferential Reinforcement Areas, mm /m
mm mm mm mm mm mm m A A A A A A A “M,” mm
s1 s2 s3 s4 s5 s7 s8
1500 1500 200 175 150 150 0-0.6 410 1060 550 300 510 410 360
1500 1500 150 150 150 150 0.6-0.9 340 750 600 300 1150
1500 1500 150 150 150 150 0.9-1.5 300 360 390 300 1150
1500 1500 150 150 150 150 3 300 430 450 300 1150
1500 1500 150 150 150 150 4.6 300 580 600 300 920
1500 1500 150 150 150 150 6.1 320 750 770 300 890
1500 1500 150 150 150 150 7.6 410 890 940 300 890
1500 1500 150 150 150 150 9.1 470 1060 1080 300 890
1500 1500 150 150 150 150 10.7 560 1230 1250 300 890
1800 by 900 by 175 mm
Span Rise Top Bottom Side Haunch Design Earth Cover Circumferential Reinforcement Areas, mm /m
mm mm mm mm mm mm m A A A A A A A “M,” mm
s1 s2 s3 s4 s5 s7 s8
1800 900 200 175 175 175 0-0.6 490 960 430 360 410 410 360
1800 900 175 175 175 175 0.6-0.9 510 640 430 360 1100
1800 900 175 175 175 175 0.9-1.5 360 360 360 360 1020
1800 900 175 175 175 175 3 360 430 430 360 1000
1800 900 175 175 175 175 4.6 490 580 600 360 970
1800 900 175 175 175 175 6.1 640 750 770 360 970
1800 900 175 175 175 175 7.6 770 940 940 360 970
1800 900 175 175 175 175 9.1 920 1100 1100 360 970
1800 900 175 175 175 175 10.7 1060 1270 1270 360 970
1800 by 1200 by 175 mm
Span Rise Top Bottom Side Haunch Design Earth Cover Circumferential Reinforcement Areas, mm /m
mm mm mm mm mm mm m A A A A A A A “M,” mm
s1 s2 s3 s4 s5 s7 s8
1800 1200 200 175 175 175 0-0.6 410 1040 490 360 450 410 360
1800 1200 175 175 175 175 0.6-0.9 450 700 490 360 1100
C1433M − 22
1800 1200 175 175 175 175 0.9-1.5 360 360 360 360 1020
1800 1200 175 175 175 175 3 360 470 490 360 1000
1800 1200 175 175 175 175 4.6 430 640 660 360 970
1800 1200 175 175 175 175 6.1 530 830 850 360 970
1800 1200 175 175 175 175 7.6 640 1020 1040 360 970
1800 1200 175 175 175 175 9.1 770 1210 1230 360 970
1800 1200 175 175 175 175 10.7 890 1400 1420 360 970
1800 by 1500 by 175 mm
Span Rise Top Bottom Side Haunch Design Earth Cover Circumferential Reinforcement Areas, mm /m
mm mm mm mm mm mm m
A A A A A A A “M,” mm
s1 s2 s3 s4 s5 s7 s8
1800 1500 200 175 175 175 0-0.6 410 1110 530 360 470 410 360
1800 1500 175 175 175 175 0.6-0.9 410 770 550 360 1330
1800 1500 175 175 175 175 0.9-1.5 360 410 410 360 1100
1800 1500 175 175 175 175 3 360 490 510 360 1000
1800 1500 175 175 175 175 4.6 360 680 700 360 970
1800 1500 175 175 175 175 6.1 470 870 910 360 970
1800 1500 175 175 175 175 7.6 550 1080 1110 360 970
1800 1500 175 175 175 175 9.1 660 1270 1300 360 970
1800 1500 175 175 175 175 10.7 770 1460 1510 360 970
1800 by 1800 by 175 mm
Span Rise Top Bottom Side Haunch Design Earth Cover Circumferential Reinforcement Areas, mm /m
mm mm mm mm mm mm m A A A A A A A “M,” mm
s1 s2 s3 s4 s5 s7 s8
1800 1800 200 175 175 175 0-0.6 410 1140 580 360 490 410 360
1800 1800 175 175 175 175 0.6-0.9 360 810 600 360 1330
1800 1800 175 175 175 175 0.9-1.5 360 430 430 360 1330
1800 1800 175 175 175 175 3 360 510 550 360 1100
1800 1800 175 175 175 175 4.6 360 700 750 360 1000
1800 1800 175 175 175 175 6.1 410 910 940 360 970
1800 1800 175 175 175 175 7.6 490 1110 1150 360 970
1800 1800 175 175 175 175 9.1 580 1300 1340 360 970
1800 1800 175 175 175 175 10.7 680 1510 1550 360 970
2100 by 1200 by 200 mm
Span Rise Top Bottom Side Haunch Design Earth Cover Circumferential Reinforcement Areas, mm /m
mm mm mm mm mm mm m A A A A A A A “M,” mm
s1 s2 s3 s4 s5 s7 s8
2100 1200 200 200 200 200 0-0.6 550 1040 450 410 410 410 410
2100 1200 200 200 200 200 0.6-0.9 510 700 470 410 1200
2100 1200 200 200 200 200 0.9-1.5 410 410 410 410 1100
2100 1200 200 200 200 200 3 410 530 530 410 1100
2100 1200 200 200 200 200 4.6 550 720 740 410 1050
2100 1200 200 200 200 200 6.1 700 940 960 410 1050
2100 1200 200 200 200 200 7.6 850 1150 1170 410 1050
2100 1200 200 200 200 200 9.1 1000 1360 1380 410 1050
2100 1200 200 200 200 200 10.7 1170 1590 1590 410 1050
2100 by 1500 by 200 mm
Span Rise Top Bottom Side Haunch Design Earth Cover Circumferential Reinforcement Areas, mm /m
mm mm mm mm mm mm m A A A A A A A “M,” mm
s1 s2 s3 s4 s5 s7 s8
2100 1500 200 200 200 200 0-0.6 490 1110 510 410 450 410 410
2100 1500 200 200 200 200 0.6-0.9 470 770 530 410 1500
2100 1500 200 200 200 200 0.9-1.5 410 430 430 410 1100
2100 1500 200 200 200 200 3 410 580 600 410 1100
2100 1500 200 200 200 200 4.6 490 790 810 410 1050
2100 1500 200 200 200 200 6.1 620 1020 1040 410 1050
2100 1500 200 200 200 200 7.6 740 1230 1250 410 1050
2100 1500 200 200 200 200 9.1 870 1460 1490 410 1050
2100 1500 200 200 200 200 10.7 1000 1700 1720 410 1050
2100 by 1800 by 200 mm
Span Rise Top Bottom Side Haunch Design Earth Cover Circumferential Reinforcement Areas, mm /m
mm mm mm mm mm mm m A A A A A A A “M,” mm
s1 s2 s3 s4 s5 s7 s8
2100 1800 200 200 200 200 0-0.6 450 1150 550 410 470 410 410
2100 1800 200 200 200 200 0.6-0.9 430 830 580 410 1500
2100 1800 200 200 200 200 0.9-1.5 410 470 470 410 1200
2100 1800 200 200 200 200 3 410 600 640 410 1100
2100 1800 200 200 200 200 4.6 430 830 850 410 1050
2100 1800 200 200 200 200 6.1 550 1060 1080 410 1050
2100 1800 200 200 200 200 7.6 660 1300 1320 410 1050
2100 1800 200 200 200 200 9.1 770 1530 1550 410 1050
2100 1800 200 200 200 200 10.7 890 1760 1800 410 1050
2100 by 2100 by 200 mm
Span Rise Top Bottom Side Haunch Design Earth Cover Circumferential Reinforcement Areas, mm /m
mm mm mm mm mm mm m A A A A A A A “M,” mm
s1 s2 s3 s4 s5 s7 s8
2100 2100 200 200 200 200 0-0.6 470 1190 580 410 470 410 410
2100 2100 200 200 200 200 0.6-0.9 470 870 620 410 1500
2100 2100 200 200 200
...








Questions, Comments and Discussion
Ask us and Technical Secretary will try to provide an answer. You can facilitate discussion about the standard in here.
Loading comments...