ASTM A327/A327M-22
(Test Method)Standard Test Methods for Impact Testing of Cast Irons
Standard Test Methods for Impact Testing of Cast Irons
ABSTRACT
These test methods cover the details of impact testing apparatus, test specimens, and procedures for cast iron, including gray iron, white iron, malleable iron, ductile iron, and austempered ductile iron, but not including chilled rolls or rolls with white iron skins. The Charpy-type impact test shall be employed for testing gray and white irons. The single-blow Charpy impact test for gray and white irons shall be carried out in a pendulum-type impact machine. The test specimens shall have a plain cylindrical form, machined or ground to a smooth finish and shall conform to the specified values of diameter, length, and span. The standard notch Charpy bar impact test specimen shall be employed. Characterization of the fracture toughness of any cast iron should be based upon testing three specimens.
SCOPE
1.1 These test methods for impact testing cover the details of apparatus, test specimens, and procedures for cast iron, including gray iron, white iron, malleable iron, ductile iron, and austempered ductile iron, but not including chilled rolls or rolls with white iron skins.
1.2 Units—The values stated in either SI units or inch-pound units are to be regarded separately as standard. The values stated in each system may not be exact equivalents; therefore, each system shall be used independently of the other. Combining values from the two systems may result in nonconformance with the standard.
1.3 This standard does not purport to address all of the safety concerns, if any, associated with its use. It is the responsibility of the user of this standard to establish appropriate safety, health, and environmental practices and determine the applicability of regulatory limitations prior to use.
1.4 This international standard was developed in accordance with internationally recognized principles on standardization established in the Decision on Principles for the Development of International Standards, Guides and Recommendations issued by the World Trade Organization Technical Barriers to Trade (TBT) Committee.
General Information
- Status
- Published
- Publication Date
- 31-Dec-2021
- Technical Committee
- A04 - Iron Castings
- Drafting Committee
- A04.21 - Testing
Relations
- Effective Date
- 01-Apr-2024
- Effective Date
- 01-Apr-2016
- Effective Date
- 01-Jan-2016
- Effective Date
- 15-Nov-2012
- Effective Date
- 01-Jul-2012
- Effective Date
- 01-Jun-2012
- Effective Date
- 15-May-2012
- Effective Date
- 01-Jun-2007
- Effective Date
- 01-Mar-2007
- Effective Date
- 01-Apr-2006
- Effective Date
- 01-Apr-2005
- Effective Date
- 01-Dec-2004
- Effective Date
- 10-Nov-2002
- Effective Date
- 10-May-2002
- Effective Date
- 10-May-2002
Overview
ASTM A327/A327M-22: Standard Test Methods for Impact Testing of Cast Irons defines procedures and requirements for impact testing of various cast iron types, including gray iron, white iron, malleable iron, ductile iron, and austempered ductile iron. The standard details apparatus specifications, specimen preparation, and testing methodologies to assess the fracture toughness and impact resistance of cast iron components. This does not cover chilled rolls or rolls with white iron skins.
ASTM A327/A327M-22 is critical for manufacturers, foundries, and quality assurance professionals seeking to evaluate the mechanical properties of cast iron materials. By providing standardized impact testing methods, the document ensures repeatable results and supports the consistent production of durable cast iron products.
Key Topics
Applicable Materials:
The standard applies to:- Gray iron
- White iron
- Malleable iron
- Ductile iron
- Austempered ductile iron
Testing Methods:
- Charpy-type impact test for gray and white irons
- Standard notched or unnotched Charpy impact test for malleable and ductile irons
- Room temperature and alternative temperature testing according to material requirements
Test Apparatus:
- Pendulum-type impact machine, minimum 150 J (110 ft·lbf) capacity, as specified in ASTM E23
- Modifications for more sensitive measurements or lower capacity machines for low energy values
Specimen Preparation:
- Specifications for cylindrical and Charpy bar impact specimens
- Detailed requirements for dimensions, surface finish, and notch accuracy
- Preparation after final heat treatment for some irons (e.g., austempered ductile iron)
Reporting:
- Results reported in joules (J) or foot-pounds force (ft·lbf) with reference to the specimen type and temperature
- Calculation adjustments for ductile iron pipes based on wall thickness
- Recording of test temperature details when not at room temperature
Applications
ASTM A327/A327M-22 is widely used across industries reliant on cast iron, including automotive, construction, piping, and heavy machinery manufacturing. Key applications include:
- Quality assurance in foundries, ensuring cast iron components meet specified impact resistance criteria
- Material comparison by suppliers and purchasers to verify conformance with mechanical property requirements
- Product development and research to analyze the effects of different alloying elements, heat treatments, and manufacturing methods on impact performance
- Pipe and tube testing, with specific specimen preparation for ductile iron pipes and tubes
- Safety evaluations to determine fracture behavior under dynamic loads, reducing risk of brittle failure in service
Consistent impact testing helps optimize product lifespan, reliability, and safety in demanding applications where sudden impact or shock loads can occur.
Related Standards
ASTM E23: Standard Test Methods for Notched Bar Impact Testing of Metallic Materials
Provides foundational procedures for conducting Charpy impact tests, referenced throughout ASTM A327/A327M.ISO 148-1: Metallic materials - Charpy pendulum impact test
International standard for Charpy impact testing, often used for cross-referencing with ASTM methods.Other related ASTM standards:
- ASTM A48: Specification for Gray Iron Castings
- ASTM A536: Specification for Ductile Iron Castings
- ASTM A220/A220M: Specification for Pearlitic Malleable Iron
Compliance with ASTM A327/A327M-22 ensures compatibility with international norms and enhances the credibility of cast iron testing results in global markets.
Buy Documents
ASTM A327/A327M-22 - Standard Test Methods for Impact Testing of Cast Irons
REDLINE ASTM A327/A327M-22 - Standard Test Methods for Impact Testing of Cast Irons
Get Certified
Connect with accredited certification bodies for this standard

Element Materials Technology
Materials testing and product certification.
Inštitut za kovinske materiale in tehnologije
Institute of Metals and Technology. Materials testing, metallurgical analysis, NDT.
Sponsored listings
Frequently Asked Questions
ASTM A327/A327M-22 is a standard published by ASTM International. Its full title is "Standard Test Methods for Impact Testing of Cast Irons". This standard covers: ABSTRACT These test methods cover the details of impact testing apparatus, test specimens, and procedures for cast iron, including gray iron, white iron, malleable iron, ductile iron, and austempered ductile iron, but not including chilled rolls or rolls with white iron skins. The Charpy-type impact test shall be employed for testing gray and white irons. The single-blow Charpy impact test for gray and white irons shall be carried out in a pendulum-type impact machine. The test specimens shall have a plain cylindrical form, machined or ground to a smooth finish and shall conform to the specified values of diameter, length, and span. The standard notch Charpy bar impact test specimen shall be employed. Characterization of the fracture toughness of any cast iron should be based upon testing three specimens. SCOPE 1.1 These test methods for impact testing cover the details of apparatus, test specimens, and procedures for cast iron, including gray iron, white iron, malleable iron, ductile iron, and austempered ductile iron, but not including chilled rolls or rolls with white iron skins. 1.2 Units—The values stated in either SI units or inch-pound units are to be regarded separately as standard. The values stated in each system may not be exact equivalents; therefore, each system shall be used independently of the other. Combining values from the two systems may result in nonconformance with the standard. 1.3 This standard does not purport to address all of the safety concerns, if any, associated with its use. It is the responsibility of the user of this standard to establish appropriate safety, health, and environmental practices and determine the applicability of regulatory limitations prior to use. 1.4 This international standard was developed in accordance with internationally recognized principles on standardization established in the Decision on Principles for the Development of International Standards, Guides and Recommendations issued by the World Trade Organization Technical Barriers to Trade (TBT) Committee.
ABSTRACT These test methods cover the details of impact testing apparatus, test specimens, and procedures for cast iron, including gray iron, white iron, malleable iron, ductile iron, and austempered ductile iron, but not including chilled rolls or rolls with white iron skins. The Charpy-type impact test shall be employed for testing gray and white irons. The single-blow Charpy impact test for gray and white irons shall be carried out in a pendulum-type impact machine. The test specimens shall have a plain cylindrical form, machined or ground to a smooth finish and shall conform to the specified values of diameter, length, and span. The standard notch Charpy bar impact test specimen shall be employed. Characterization of the fracture toughness of any cast iron should be based upon testing three specimens. SCOPE 1.1 These test methods for impact testing cover the details of apparatus, test specimens, and procedures for cast iron, including gray iron, white iron, malleable iron, ductile iron, and austempered ductile iron, but not including chilled rolls or rolls with white iron skins. 1.2 Units—The values stated in either SI units or inch-pound units are to be regarded separately as standard. The values stated in each system may not be exact equivalents; therefore, each system shall be used independently of the other. Combining values from the two systems may result in nonconformance with the standard. 1.3 This standard does not purport to address all of the safety concerns, if any, associated with its use. It is the responsibility of the user of this standard to establish appropriate safety, health, and environmental practices and determine the applicability of regulatory limitations prior to use. 1.4 This international standard was developed in accordance with internationally recognized principles on standardization established in the Decision on Principles for the Development of International Standards, Guides and Recommendations issued by the World Trade Organization Technical Barriers to Trade (TBT) Committee.
ASTM A327/A327M-22 is classified under the following ICS (International Classification for Standards) categories: 77.140.80 - Iron and steel castings. The ICS classification helps identify the subject area and facilitates finding related standards.
ASTM A327/A327M-22 has the following relationships with other standards: It is inter standard links to ASTM E23-24, ASTM E23-16a, ASTM E23-16, ASTM E23-12c, ASTM E23-12b, ASTM E23-12a, ASTM E23-12, ASTM E23-07a, ASTM E23-07, ASTM E23-06, ASTM E23-05, ASTM E23-04, ASTM E23-02a, ASTM E23-01a, ASTM E23-01. Understanding these relationships helps ensure you are using the most current and applicable version of the standard.
ASTM A327/A327M-22 is available in PDF format for immediate download after purchase. The document can be added to your cart and obtained through the secure checkout process. Digital delivery ensures instant access to the complete standard document.
Standards Content (Sample)
This international standard was developed in accordance with internationally recognized principles on standardization established in the Decision on Principles for the
Development of International Standards, Guides and Recommendations issued by the World Trade Organization Technical Barriers to Trade (TBT) Committee.
Designation: A327/A327M − 22
Standard Test Methods for
Impact Testing of Cast Irons
This standard is issued under the fixed designationA327/A327M; the number immediately following the designation indicates the year
of original adoption or, in the case of revision, the year of last revision.Anumber in parentheses indicates the year of last reapproval.
A superscript epsilon (´) indicates an editorial change since the last revision or reapproval.
1. Scope TEST METHOD A – ROUND BAR CHARPY-TYPE
IMPACT TEST FOR GRAY AND WHITE IRONS
1.1 These test methods for impact testing cover the details
3. Scope
of apparatus, test specimens, and procedures for cast iron,
including gray iron, white iron, malleable iron, ductile iron,
3.1 The Charpy-type impact test shall be employed for
and austempered ductile iron, but not including chilled rolls or
testing gray and white irons.
rolls with white iron skins.
4. Apparatus
1.2 Units—The values stated in either SI units or inch-
4.1 The single-blow Charpy impact test for gray and white
pound units are to be regarded separately as standard. The
irons shall be carried out in a pendulum-type impact machine
values stated in each system may not be exact equivalents;
with a capacity of at least 150 J [110 ft · lbf] as used for the
therefore,eachsystemshallbeusedindependentlyoftheother.
simple beam test for steel described in Test Methods E23.
Combining values from the two systems may result in noncon-
5. Test Specimens
formance with the standard.
5.1 The test specimens shall have a plain cylindrical form,
1.3 This standard does not purport to address all of the
machined or ground to a smooth finish, and shall conform to
safety concerns, if any, associated with its use. It is the
the following dimensions:
responsibility of the user of this standard to establish appro-
Type A Type M
priate safety, health, and environmental practices and deter-
Diameter 28.572 ± 0.050 mm 20.00±0.03mm
mine the applicability of regulatory limitations prior to use.
[1.125 ± 0.002 in.] [0.787 ± 0.001 in.]
Length 200 ± 13 mm 120±2mm
1.4 This international standard was developed in accor-
[8.0 ± 0.5 in.] [4.73 ± 0.08 in.]
dance with internationally recognized principles on standard-
Span 152.0 ± 0.7 mm 100.0 ± 0.5 mm
[6.00 ± 0.03 in.] [3.937 ± 0.020 in.]
ization established in the Decision on Principles for the
Development of International Standards, Guides and Recom-
6. Procedure
mendations issued by the World Trade Organization Technical
6.1 Testthebarsonthespansindicatedinthetabulardataof
Barriers to Trade (TBT) Committee.
5.1. In all other respects, the test shall conform to the
appropriate requirements of Test Methods E23.
2. Referenced Documents
6.2 Make the test at room temperature.
2.1 ASTM Standards:
6.3 Characterization of the fracture toughness of any cast
A327M Test Methods for Impact Testing of Cast Irons
3 iron should be based upon testing at least three specimens.
(Metric) (Withdrawn 2011)
E23 Test Methods for Notched Bar Impact Testing of Me- NOTE 1—Care should be taken to examine broken specimens for
indication of anvil interference, which will give erroneous results.
tallic Materials
7. Report
7.1 The results shall be reported as ____J [ft · lbf] cast iron
ThesetestmethodsareunderthejurisdictionofASTMCommitteeA04onIron
Charpy impact with ____ mm [in.] diameter bar.
Castings and are the direct responsibility of Subcommittee A04.21 on Testing.
Current edition approved Jan. 1, 2022. Published January 2022. Originally
TEST METHODB–STANDARD CHARPY-TYPE
approved in 1950. Last previous edition approved in 2017 as A327/A327M – 11
IMPACT TEST FOR MALLEABLE AND DUCTILE
(2017). DOI: 10.1520/A0327_A0327M-22.
For referenced ASTM standards, visit the ASTM website, www.astm.org, or
IRONS
contact ASTM Customer Service at service@astm.org. For Annual Book of ASTM
Standards volume information, refer to the standard’s Document Summary page on 8. Scope
the ASTM website.
8.1 EitherthestandardnotchedorunnotchedCharpyimpact
The last approved version of this historical standard is referenced on
www.astm.org. test shall be employed in testing of malleable or ductile irons.
Copyright © ASTM International, 100 Barr Harbor Drive, PO Box C700, West Conshohocken, PA 19428-2959. United States
A327/A327M − 22
Selection of the type bar is dependent upon the specific 10.2 Standard machines may be modified by using a more
material to be evaluated as defined in Section 9. sensitive scale, or pendulum machines of a lower capacity may
be used where values of less than 34 J [25 ft · lbf] will be
8.2 Both types of Charpy bars have been designated to
obtained.
characterize the fracture toughness of irons. The unnotched
Charpy bar, when tested, will produce substantially higher
11. Test Specimens
energy values than the notched bar type. The unnotched bar is
therefore specified for testing irons that have low fracture
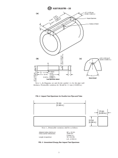
11.1 Except for pipe, the test specimen shall have the shape
toughness characteristics.
anddimensionsasshowninFig.1fornotchedCharpybarsand
Fig. 3 for unnotched Charpy bars. Bars must have a smooth
9. Charpy Test Bar Type
machined or ground surface finish. The notched area of
9.1 Unless specified otherwise, the notched bar type speci-
notched-type bars shall be free of any burrs or machining
mens in Fig. 1 or Fig. 2 (for pipe-type products) shall be
marks that could adversely influence test values.
employed. Exceptions are defined in 9.2 and 9.3.
11.2 In the case of malleable or ductile irons that are to be
9.2 The unnotched Charpy type specimen
...
This document is not an ASTM standard and is intended only to provide the user of an ASTM standard an indication of what changes have been made to the previous version. Because
it may not be technically possible to adequately depict all changes accurately, ASTM recommends that users consult prior editions as appropriate. In all cases only the current version
of the standard as published by ASTM is to be considered the official document.
Designation: A327/A327M − 11 (Reapproved 2017) A327/A327M − 22
Standard Test Methods for
Impact Testing of Cast Irons
This standard is issued under the fixed designation A327/A327M; the number immediately following the designation indicates the year
of original adoption or, in the case of revision, the year of last revision. A number in parentheses indicates the year of last reapproval.
A superscript epsilon (´) indicates an editorial change since the last revision or reapproval.
1. Scope
1.1 These test methods for impact testing cover the details of apparatus, test specimens, and procedures for cast iron, including
gray iron, white iron, malleable iron, ductile iron, and austempered ductile iron, but not including chilled rolls or rolls with white
iron skins.
1.2 Units—The values stated in either SI units or inch-pound units are to be regarded separately as standard. The values stated in
each system may not be exact equivalents; therefore, each system shall be used independently of the other. Combining values from
the two systems may result in nonconformance with the standard.
1.3 This standard does not purport to address all of the safety concerns, if any, associated with its use. It is the responsibility
of the user of this standard to establish appropriate safety, health, and environmental practices and determine the applicability of
regulatory limitations prior to use.
1.4 This international standard was developed in accordance with internationally recognized principles on standardization
established in the Decision on Principles for the Development of International Standards, Guides and Recommendations issued
by the World Trade Organization Technical Barriers to Trade (TBT) Committee.
2. Referenced Documents
2.1 ASTM Standards:
A327M Test Methods for Impact Testing of Cast Irons (Metric) (Withdrawn 2011)
E23 Test Methods for Notched Bar Impact Testing of Metallic Materials
TEST METHOD A – ROUND BAR CHARPY-TYPE IMPACT TEST FOR GRAY AND WHITE IRONS
3. Scope
3.1 The Charpy-type impact test shall be employed for testing gray and white irons.
4. Apparatus
4.1 The single-blow Charpy impact test for gray and white irons shall be carried out in a pendulum-type impact machine with a
capacity of at least 150 J [110 ft · lbf] as used for the simple beam test for steel described in Test Methods E23.
These test methods are under the jurisdiction of ASTM Committee A04 on Iron Castings and are the direct responsibility of Subcommittee A04.21 on Testing.
Current edition approved Oct. 1, 2017Jan. 1, 2022. Published October 2017January 2022. Originally approved in 1950. Last previous edition approved in 20112017 as
A327/A327M – 11.A327/A327M – 11 (2017). DOI: 10.1520/A0327_A0327M-11R17.10.1520/A0327_A0327M-22.
For referenced ASTM standards, visit the ASTM website, www.astm.org, or contact ASTM Customer Service at service@astm.org. For Annual Book of ASTM Standards
volume information, refer to the standard’s Document Summary page on the ASTM website.
The last approved version of this historical standard is referenced on www.astm.org.
Copyright © ASTM International, 100 Barr Harbor Drive, PO Box C700, West Conshohocken, PA 19428-2959. United States
A327/A327M − 22
5. Test Specimens
5.1 The test specimens shall have a plain cylindrical form, machined or ground to a smooth finish, and shall conform to the
following dimensions:
Type A Type M
Diameter 28.572 ± 0.050 mm 20.00 ± 0.03 mm
[1.125 ± 0.002 in.] [0.787 ± 0.001 in.]
Length 200 ± 13 mm 120 ± 2 mm
[8.0 ± 0.5 in.] [4.73 ± 0.08 in.]
Span 152.0 ± 0.7 mm 100.0 ± 0.5 mm
[6.00 ± 0.03 in.] [3.937 ± 0.020 in.]
6. Procedure
6.1 Test the bars on the spans indicated in the tabular data of 5.1. In all other respects, the test shall conform to the appropriate
requirements of Test Methods E23.
6.2 Make the test at room temperature.
6.3 Characterization of the fracture toughness of any cast iron should be based upon testing at least three specimens.
NOTE 1—Care should be taken to examine broken specimens for indication of anvil interference, which will give erroneous results.
7. Report
7.1 The results shall be reported as ____J [ft · lbf] cast iron Charpy impact with ____ mm [in.] diameter bar.
TEST METHOD B – STANDARD CHARPY-TYPE IMPACT TEST FOR MALLEABLE AND DUCTILE IRONS
8. Scope
8.1 Either the standard notched or unnotched Charpy impact test shall be employed in testing of malleable or ductile irons.
Selection of the type bar is dependent upon the specific material to be evaluated as defined in Section 9.
8.2 Both types of Charpy bars have been designated to characterize the fracture toughness of irons. The unnotched Charpy bar,
when tested, will produce substantially higher energy values than the notchnotched bar type. The unnotched bar is therefore
specified for testing irons that have low fracture toughness characteristics.
9. Charpy Test Bar Type
9.1 Unless specified otherwise, the notched bar type specimens in Fig. 1 or Fig. 2 (for pipe-type products) shall be employed.
Exceptions are defined in 9.2 and 9.3.
9.2 The unnotched Charpy type specimen in Fig. 3 shall be employed for testing of all grades of austempered ductile iron. These
irons are tested after the austempering heat treatment.
9.3 The unnotched Charpy test specimen may be specified for other types of irons or irons that have been heat treated in various
ways other than austempering, by specific agreement between producer and purchaser.
10. Apparatus
10.1 The single-blow Charpy test for ductile and malleable iron shall be carried out in a pendulum-type impact machine with a
capacity of at least 150 J [110 ft ·
...








Questions, Comments and Discussion
Ask us and Technical Secretary will try to provide an answer. You can facilitate discussion about the standard in here.
Loading comments...