ISO 2734:1983
(Main)Vitreous and porcelain enamels — Apparatus for testing with alkaline liquids
Vitreous and porcelain enamels — Apparatus for testing with alkaline liquids
Émaux vitrifiés — Appareil pour essai avec des liquides alcalins
General Information
- Status
- Withdrawn
- Publication Date
- 31-Jul-1983
- Withdrawal Date
- 31-Jul-1983
- Technical Committee
- ISO/TC 107 - Metallic and other inorganic coatings
- Drafting Committee
- ISO/TC 107/WG 2 - Vitreous and porcelain enamel coatings
- Current Stage
- 9599 - Withdrawal of International Standard
- Start Date
- 26-Jun-1997
- Completion Date
- 12-Feb-2026
Relations
- Effective Date
- 15-Apr-2008
ISO 2734:1983 - Vitreous and porcelain enamels -- Apparatus for testing with alkaline liquids
ISO 2734:1983 - Émaux vitrifiés -- Appareil pour essai avec des liquides alcalins
Get Certified
Connect with accredited certification bodies for this standard
National Aerospace and Defense Contractors Accreditation Program (NADCAP)
Global cooperative program for special process quality in aerospace.
CARES (UK Certification Authority for Reinforcing Steels)
UK certification for reinforcing steels and construction.
DVS-ZERT GmbH
German welding certification society.
Sponsored listings
Frequently Asked Questions
ISO 2734:1983 is a standard published by the International Organization for Standardization (ISO). Its full title is "Vitreous and porcelain enamels — Apparatus for testing with alkaline liquids". This standard covers: Vitreous and porcelain enamels — Apparatus for testing with alkaline liquids
Vitreous and porcelain enamels — Apparatus for testing with alkaline liquids
ISO 2734:1983 is classified under the following ICS (International Classification for Standards) categories: 25.220.50 - Enamels. The ICS classification helps identify the subject area and facilitates finding related standards.
ISO 2734:1983 has the following relationships with other standards: It is inter standard links to ISO 2734:1997. Understanding these relationships helps ensure you are using the most current and applicable version of the standard.
ISO 2734:1983 is available in PDF format for immediate download after purchase. The document can be added to your cart and obtained through the secure checkout process. Digital delivery ensures instant access to the complete standard document.
Standards Content (Sample)
International Standard 2734
INTERNATIONAL ORGANIZATION FOR STANDARDIZATION*ME~YHAPOllHAR OPTAHIISAUMR il0 CTAHAAPTH3AUHH.ORGANlSATlON INTERNATIONALE DE NORMALISATION
Vitreous and porcelain enamels - Apparatus for testing
with alkaline liquids
Emaux vitrifiés - Appareils pour essai avec des liquides alcalins
Second edition - 1983-08-15
UDC 666.293 : 620.193 : 542.2 Ref. No. ISO2734-1983 (E)
Descriptors : non-metallic coatings, vitreous enamels, tests, chemical tests, chemical resistance, alkalies, sodium hydroxides, test equipment.
Price based on 4 pages
Foreword
IS0 (the International Organization for Standardization) is a worldwide federation of
national standards bodies (IS0 member bodies). The work of developing International
Standards is carried out through IS0 technical committees. Every member body
interested in a subject for which a technical committee has been authorized has the
right to be represented on that committee. International organizations, governmental
and non-governmental, in liaison with ISO, also take part in the work.
Draft International Standards adopted by the technical committees are circulated to
the member bodies for approval before their acceptance as International Standards by
the IS0 Council.
International Standard IS0 2734 was developed by Technical Committee ISO/TC 107,
Metallic and other non-organic coatings.
This second edition was submitted directly to the IS0 Council, in accordance with
clause 6.11.2 of part 1 of the Directives for the technical work of ISO. It cancels and
replaces the first edition (i.e. IS0 273-1973], which had been approved by the member
bodies of the following countries:
Australia
Italy Sweden
Egypt, Arab Rep. of Japan Switzerland
France
Netherlands Thailand
Germany, F.R. New Zealand Turkey
Hungary
Poland United Kingdom
India Portugal USSR
e
Ireland Romania
Israel South Africa, Rep. of
No member body had expressed disapproval of the document.
O International Organization for Standardization, 1983 0
Printed in Switzerland
IS0 2734-1983 (E)
INTERNATIONAL STANDARD
Apparatus for testing
Vitreous and porcelain enamels
with alkaline liquids
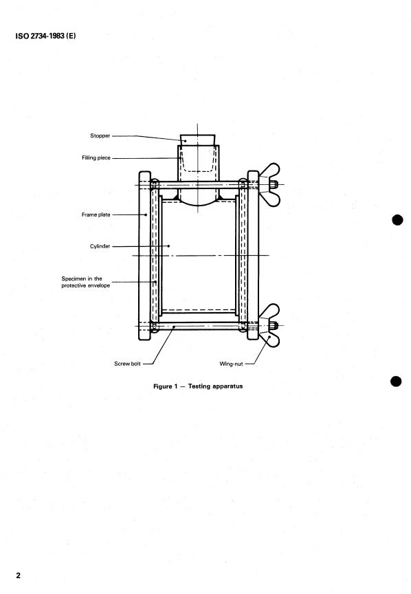
1 Scope and field of application NOTE - For the test method for the determination of resistance to hot
sodium hydroxide, see IS0 2745.
This International Standard specifies the apparatus to be used
for testing the resista
...
Norme internationale 2734
INTE RNATIONAL ORGANIZATION FOR STANDARDIZATIONOME~YHAPO~HAR OPrAHH3AUWR Il0 CTAHAAPlM3AUMMWRGANlSATlON INTERNATIONALE DE NORMALISATION
Émaux vitrifiés - Appareil pour essai avec des liquides
a
alcalins
Vitreous and porcelain enamels - Apparatus for testing with alkaline liquids
Deuxième édition - 1983-08-15
Réf. no : IS0 2734-1983 (FI
- CDU 666.293:620.1@:542.2
Descripteurs : revêtement non métallique, émail vitrifié, essai, essai chimique, résistance chimique, alcali, hydroxyde de sodium, matériel
3 d'essai.
R
Prix basé sur 4 pages
~
Avant-propos
L‘ISO (Organisation internationale de normalisation) est une fédération mondiale
d’organismes nationaux de normalisation (comités membres de I‘ISO). L‘élaboration
des Normes internationales est confiée aux comités techniques de 1’1S0. Chaque
comité membre intéressé par une étude a le droit de faire partie du comité technique
correspondant. Les organisations internationales, gouvernementales et non gouverne-
mentales, en liaison avec I’ISO, participent également aux travaux.
Les projets de Normes internationales adoptés par les comités techniques sont soumis
aux comités membres pour approbation, avant leur acceptation comme Normes inter-
nationales par le Conseil de I’ISO.
La Norme internationale IS0 2734 a été élaborée par le comité technique ISO/TC 107,
Revêtements métalliques et autres revêtements non organiques.
Cette deuxième édition fut soumise directement au Conseil de I’ISO, conformément au
IWO.
paragraphe 6.11.2 de la partie 1 des Directives pour les travaux techniques de
Elle annule et remplace la première édition (IS0 273-1973], qui avait été approuvée par
les comités membres des pays suivants:
Afrique du Sud, Rép. d’ Israël Royaume-Uni
Allemagne, R.F. Italie Suède
Australie Japon Suisse
Égypte, Rép. arabe d’ Nouvelle-Zélande Thailande
France Pays- Bas Turquie
Hongrie
Pologne URSS
Inde Portugal
Irlande Roumanie
Aucun comité membre ne l’avait désapprouvée.
e
Organisation internationale de normalisation, 1983
O
Imprimé en Suisse
~~
IS0 2734-1983 (FI
NORME INTERNATIONALE
Émaux vitrifiés - Appareil pour essai avec des liquides
a Ica I i ns
e
1 Objet et domaine d'application NOTE - La méthode d'essai pour la détermination de la résistance à la
soude caustique chaude fait l'objet de l'lS0 2745.
La présente Norme internationale spécifie l'appareil à utiliser
pour l'
...








Questions, Comments and Discussion
Ask us and Technical Secretary will try to provide an answer. You can facilitate discussion about the standard in here.
Loading comments...