ISO 9939:1994
(Main)Aerospace - Pressure re-oiling connection (new type)
Aerospace - Pressure re-oiling connection (new type)
Specifies the basic dimensions of a pressure re-oiling connection for use with all oils for aircraft engines, and the clearance envelope to be provided.
Aéronautique et espace — Raccord pour alimentation en huile sous pression (nouveau modèle)
General Information
- Status
- Published
- Publication Date
- 26-Jan-1994
- Technical Committee
- ISO/TC 20/SC 10 - Aerospace fluid systems and components
- Drafting Committee
- ISO/TC 20/SC 10/WG 6 - Couplings for rigid pipe
- Current Stage
- 9020 - International Standard under periodical review
- Start Date
- 15-Oct-2025
- Completion Date
- 15-Oct-2025
Overview
ISO 9939:1994 is an international standard developed by the International Organization for Standardization (ISO) that specifies the basic dimensions and clearance requirements for a new type of pressure re-oiling connection used in aerospace applications. This standard applies to all types of oils used in aircraft engines and ensures compatibility and safety in lubrication system connections.
Prepared by ISO Technical Committee ISO/TC 20, Subcommittee SC 10, focused on aerospace fluid systems and components, ISO 9939:1994 replaces previous designs and provides updated technical guidelines to support innovation and reliability in aircraft engine maintenance.
Key Topics
Pressure Re-Oiling Connection Dimensions
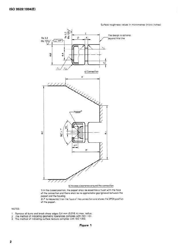
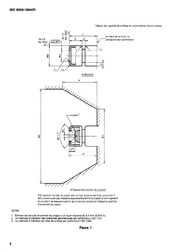
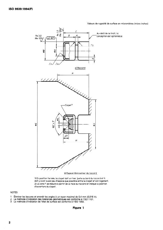
ISO 9939:1994 defines precise basic dimensions for pressure re-oiling connections, which are critical for ensuring tight, leak-proof engagement with aircraft engine lubrication systems.Clearance Envelope Requirements
The standard specifies the minimum access clearance around the connection. This clearance envelope is essential for maintenance access, operational safety, and proper tool engagement when servicing aircraft engines.Compatibility With All Aircraft Engine Oils
The connection design accommodates the full range of oils used in aircraft engine lubrication, ensuring versatility across different engine types and maintenance conditions.Surface Finish and Quality Control
ISO 9939 references related standards like ISO 1302 (surface texture) and ISO 1101 (geometrical tolerancing), providing guidance on surface roughness and dimensional tolerances for manufacturing accuracy.Design Characteristics
Features include a poppet mechanism that remains flush in the closed position with no appreciable gaps, guaranteeing leak prevention and integrity under pressure.
Applications
Aircraft Engine Lubrication Systems
The standardized pressure re-oiling connection is a critical component in aircraft engine lubrication systems, facilitating safe and effective oil refilling during routine maintenance or in-flight servicing.Aerospace Maintenance Operations
Maintenance crews utilize this connection type for quick and secure oil replenishment, minimizing downtime and ensuring continuous engine performance and safety.Aerospace Manufacturing and Assembly
Aerospace component manufacturers incorporate ISO 9939-compliant connections to meet industry standards, ensuring interchangeability and consistent quality across various engine models.Quality Assurance and Inspection
The dimensional and surface finish requirements support rigorous quality control processes for aerospace components, reducing failure risks related to improper fit or surface defects.
Related Standards
ISO 1101:1983 – Technical drawings and geometrical tolerancing, which establishes methods for indicating form, orientation, location, and run-out tolerances on drawings. ISO 9939 aligns with this standard for dimensional precision.
ISO 1302:1992 – Method of indicating surface texture, providing guidelines for acceptable surface roughness values, which are referenced in ISO 9939 for the pressure connection's smooth finish and durability.
Summary
ISO 9939:1994 plays a crucial role in defining industry-accepted specifications for pressure re-oiling connections in aerospace applications. By standardizing dimensions and clearance envelopes, it enables compatibility across aircraft engine maintenance procedures, enhances operational safety, and supports manufacturing quality. Aerospace engineers, maintenance personnel, and component manufacturers benefit from this standard by ensuring that lubrication connections meet consistent performance and reliability benchmarks.
ISO 9939:1994 - Aerospace -- Pressure re-oiling connection (new type)
ISO 9939:1994 - Aéronautique et espace -- Raccord pour alimentation en huile sous pression (nouveau modele)
ISO 9939:1994 - Aéronautique et espace -- Raccord pour alimentation en huile sous pression (nouveau modele)
Frequently Asked Questions
ISO 9939:1994 is a standard published by the International Organization for Standardization (ISO). Its full title is "Aerospace - Pressure re-oiling connection (new type)". This standard covers: Specifies the basic dimensions of a pressure re-oiling connection for use with all oils for aircraft engines, and the clearance envelope to be provided.
Specifies the basic dimensions of a pressure re-oiling connection for use with all oils for aircraft engines, and the clearance envelope to be provided.
ISO 9939:1994 is classified under the following ICS (International Classification for Standards) categories: 49.080 - Aerospace fluid systems and components; 49.100 - Ground service and maintenance equipment. The ICS classification helps identify the subject area and facilitates finding related standards.
You can purchase ISO 9939:1994 directly from iTeh Standards. The document is available in PDF format and is delivered instantly after payment. Add the standard to your cart and complete the secure checkout process. iTeh Standards is an authorized distributor of ISO standards.
Standards Content (Sample)
INTERNATIONAL IS0
STANDARD 9939
First edition
1994-01-I 5
- Pressure re-oiling connection
Aerospace
(new type)
- Raccord pour alimentation en huile sous
Abronautique et espace
pression (nouveau mod&le)
Reference number
IS0 9939: 1994(E)
IS0 9939:1994(E)
Foreword
IS0 (the International Organization for Standardization) is a worldwide
federation of national standards bodies (IS0 member bodies). The work
of preparing International Standards is normally carried out through IS0
technical committees. Each member body interested in a subject for
which a technical committee has been established has the right to be
represented on that committee. International organizations, governmental
and non-governmental, in liaison with ISO, also take part in the work. IS0
collaborates closely with the International Electrotechnical Commission
(IEC) on all matters of electrotechnical standardization.
Draft International Standards adopted by the technical committees are
circulated to the member bodies for voting. Publication as an International
Standard requires approval by at least 75 % of the member bodies casting
a vote.
International Standard IS0 9939 was prepared by Technical Committee
lSO/TC 20, Aircraft and space vehicles, Subcommittee SC 10, Aerospace
fluid sys terns and components.
This first edition replaces IS0 451 for new designs.
Annex A of this International Standard is for information only.
(i4 IS0 1994
All rights reserved. No part of this publication may be reproduced or utilized in any form or
by any means, electronic or mechanical, including photocopying and microfilm, without per-
mission in writing from the publisher.
International Organization for Standardization
Case Postale 56 l CH-1211 Geneve 20 l Switzerland
Printed in Switzerland
INTERNATIONAL STANDARD IS0 9939: 1994(E)
Aerospace - Pressure re-oiling connection (new type)
1 Scope
This International Standard specifies the basic dimensions of a pressure re-oiling connection for use with all oils
for aircraft engines, and th
...
NORME
Iso
INTERNATIONALE
Première édition
1994-01-I 5
Aéronautique et espace - Raccord pour
alimentation en huile sous pression
(nouveau modèle)
Aerospace - Pressure re-oiling connection (new type)
Numéro de référence
ISO 9939: 1994(F)
Avant-propos
L’ISO (Organisation internationale de normalisation) est une fedération
mondiale d’organismes nationaux de normalisation (comités membres de
I’ISO). L’élaboration des Normes internationales est en général confiée aux
comites techniques de I’ISO. Chaque comite membre intéresse par une
etude a le droit de faire partie du comite technique cree a cet effet. Les
organisations internationales, gouvernementales et non gouvernemen-
tales, en liaison avec I’ISO participent également aux travaux. L’ISO colla-
bore étroitement avec la Commission électrotechnique internationale (CEI)
en ce qui concerne la normalisation électrotechnique.
Les projets de Normes internationales adoptes par les comités techniques
sont soumis aux comites membres pour vote. Leur publication comme
Normes internationales requiert l’approbation de 75 % au moins des co-
mites membres votants.
La Norme internationale ISO 9939 a éte elaboree par le comite technique
lSO/TC 20, Aéronautique et espace, sous-comité SC 10, Systèmes
aérospatiaux de fluides et Mments constitutifs.
Cette Premiere édition de I’ISO 9939 remplace I’ISO 451 pour les nou-
velles etudes.
L’annexe A de la présente Norme internationale est donnée uniquement
à titre d’information.
0 ISO 1994
Droits de reproduction reservés. Aucune partie de cette publication ne peut etre reproduite
ni utilisee sous quelque forme que ce soit et par aucun procédé, électronique ou mécanique,
y compris la photocopie et les microfilms, sans l’accord Acrit de l’editeur.
Organisation internationale de normalisation
Case Postale 56 l CH-l 211 Geneve 20 l Suisse
Imprime en Suisse
ii
NORME INTERNATIONALE ISO 9939: 1994(F)
Aéronautique et espace - Raccord pour alimentation
en huile sous pression (nouveau modèle)
1 Domaine d’application
La présente Norme internationale prescrit les dimensions de base d’un raccord pour alimentation des moteurs
d’aéronefs en huile sous pression, quel que soit le type d’huile. Elle prescrit également l’espace à
...
NORME
Iso
INTERNATIONALE
Première édition
1994-01-I 5
Aéronautique et espace - Raccord pour
alimentation en huile sous pression
(nouveau modèle)
Aerospace - Pressure re-oiling connection (new type)
Numéro de référence
ISO 9939: 1994(F)
Avant-propos
L’ISO (Organisation internationale de normalisation) est une fedération
mondiale d’organismes nationaux de normalisation (comités membres de
I’ISO). L’élaboration des Normes internationales est en général confiée aux
comites techniques de I’ISO. Chaque comite membre intéresse par une
etude a le droit de faire partie du comite technique cree a cet effet. Les
organisations internationales, gouvernementales et non gouvernemen-
tales, en liaison avec I’ISO participent également aux travaux. L’ISO colla-
bore étroitement avec la Commission électrotechnique internationale (CEI)
en ce qui concerne la normalisation électrotechnique.
Les projets de Normes internationales adoptes par les comités techniques
sont soumis aux comites membres pour vote. Leur publication comme
Normes internationales requiert l’approbation de 75 % au moins des co-
mites membres votants.
La Norme internationale ISO 9939 a éte elaboree par le comite technique
lSO/TC 20, Aéronautique et espace, sous-comité SC 10, Systèmes
aérospatiaux de fluides et Mments constitutifs.
Cette Premiere édition de I’ISO 9939 remplace I’ISO 451 pour les nou-
velles etudes.
L’annexe A de la présente Norme internationale est donnée uniquement
à titre d’information.
0 ISO 1994
Droits de reproduction reservés. Aucune partie de cette publication ne peut etre reproduite
ni utilisee sous quelque forme que ce soit et par aucun procédé, électronique ou mécanique,
y compris la photocopie et les microfilms, sans l’accord Acrit de l’editeur.
Organisation internationale de normalisation
Case Postale 56 l CH-l 211 Geneve 20 l Suisse
Imprime en Suisse
ii
NORME INTERNATIONALE ISO 9939: 1994(F)
Aéronautique et espace - Raccord pour alimentation
en huile sous pression (nouveau modèle)
1 Domaine d’application
La présente Norme internationale prescrit les dimensions de base d’un raccord pour alimentation des moteurs
d’aéronefs en huile sous pression, quel que soit le type d’huile. Elle prescrit également l’espace à
...


















Questions, Comments and Discussion
Ask us and Technical Secretary will try to provide an answer. You can facilitate discussion about the standard in here.
Loading comments...