ASTM D558/D558M-19
(Test Method)Standard Test Methods for Moisture-Density (Unit Weight) Relations of Soil-Cement Mixtures
Standard Test Methods for Moisture-Density (Unit Weight) Relations of Soil-Cement Mixtures
SIGNIFICANCE AND USE
5.1 These tests determine the optimum water content and maximum density (unit weight) to be used for molding soil-cement specimens in accordance with Test Methods D559/D559M and D560/D560M.
Note 1: Since these tests are used in conjunction with Test Methods D559/D559M and D560/D560M and the criteria referenced therein, the test differs in several aspects from Test Method D698. There are three main differences between this standard and Test Method D698. Firstly, this standard allows a maximum particle size of 3/4-in. [19.0 mm] for a 4-in. [101.6-mm] mold while Test Method D698 allows a maximum particle size of 3/8-in. [9.5-mm] for the same size mold. Secondly, this standard permits the material leftover after the water content specimen has been obtained to be mixed with the rest of the sample and reused for the next determination. Test Method D698 does not permit the material to be reused. Thirdly, this standard allows the material that is retained on the 3/4-in. [19.0-mm] and passing the 3-in. [75-mm] to be discarded (scalping technique) and replaced with an equal mass of material that passes the 3/4-in. [19.0-mm] sieve and is retained on the No.4 [4.75-mm] sieve. Test Method D698 does not permit the scalp and replacement technique.
Note 2: The quality of the result produced by this standard is dependent on the competence of the personnel performing it, and the suitability of the equipment and facilities used. Agencies that meet the criteria of Practice D3740 are generally considered capable of competent and objective testing/sampling/inspection/etc. Users of this standard are cautioned that compliance with Practice D3740 does not in itself assure reliable results. Reliable results depend on many factors; Practice D3740 provides a means of evaluating some of those factors.
SCOPE
1.1 These test methods cover the determination of the relationship between the water content and the density of soil-cement mixtures when compacted before cement hydration as prescribed.
1.2 A 0.0333-ft3 [944-cm3] mold and a 5.50-lbf [24.5-N or mass of 2.5-kg] rammer dropped from a height of 12.0 in. [30.5 cm] are used and two methods, depending on soil gradation, are covered, as follows:
Sections
Test Method A, using soil material passing a No. 4 [4.75-mm] sieve. This method shall be used when 100 % of the soil sample passes the No. 4 [4.75-mm] sieve
8
Test Method B, using soil material passing a 3/4-in. [19.0-mm] sieve. This method shall be used when part of the soil sample is retained on the No. 4 [4.75-mm] sieve. This test method may be used only on materials with 30 % or less retained on the 3/4-in. [19.0-mm] sieve
9
1.3 Units—The values stated in inch-pound units or SI units are to be regarded separately as standard. The values stated in each system may not be exact equivalents; therefore, each system shall be used independently of the other. Combining values from the two systems may result in nonconformance with the standard.
1.3.1 The gravitational system of inch-pound units is used when dealing with inch-pound units. In this system, the pound (lbf) represents a unit of force (weight), while the unit for mass is slugs. The slug unit is not given, unless dynamic (F=ma) calculations are involved.
1.3.2 It is common practice in the engineering/construction profession to concurrently use pounds to represent both a unit of mass (lbm) and of force (lbf). This implicitly combines two separate systems of units; that is, the absolute system and the gravitational system. It is scientifically undesirable to combine the use of two separate sets of inch-pound units within a single standard. This standard includes the gravitational system of inch-pound units and does not use/present the slug unit for mass. However, the use of balances or scales recording pounds of mass (lbm) or recording density in lbm/ft3 shall not be regarded as nonconformance with this standard.
1....
General Information
- Status
- Published
- Publication Date
- 30-Nov-2019
- Technical Committee
- D18 - Soil and Rock
- Drafting Committee
- D18.15 - Stabilization With Admixtures
Relations
- Effective Date
- 01-Dec-2019
- Effective Date
- 01-Feb-2024
- Effective Date
- 01-Nov-2023
- Effective Date
- 01-Nov-2023
- Effective Date
- 01-Oct-2019
- Effective Date
- 01-Apr-2019
- Effective Date
- 01-Mar-2019
- Effective Date
- 01-Jul-2018
- Effective Date
- 01-Apr-2017
- Refers
ASTM D560/D560M-16 - Standard Test Methods for Freezing and Thawing Compacted Soil-Cement Mixtures - Effective Date
- 01-Nov-2016
- Effective Date
- 15-Mar-2016
- Refers
ASTM D559/D559M-15 - Standard Test Methods for Wetting and Drying Compacted Soil-Cement Mixtures - Effective Date
- 15-Nov-2015
- Refers
ASTM D560/D560M-15 - Standard Test Methods for Freezing and Thawing Compacted Soil-Cement Mixtures - Effective Date
- 15-Nov-2015
- Effective Date
- 01-Jul-2015
- Effective Date
- 01-Jul-2015
Overview
ASTM D558/D558M-19 – Standard Test Methods for Moisture-Density (Unit Weight) Relations of Soil-Cement Mixtures is a widely accepted standard developed by ASTM International. This standard describes laboratory procedures for determining the relationship between water content and density (unit weight) of compacted soil-cement mixtures before cement hydration. These methods are crucial for optimizing the performance and durability of soil-cement used in construction, infrastructure, and soil stabilization projects.
By identifying the optimum water content and maximum dry density, practitioners can ensure consistency in compaction for soil-cement mixtures, meeting quality control objectives and improving the stability and long-term behavior of pavements, subgrades, and embankments.
Key Topics
- Moisture-Density Relationship: Establishes how varying water content influences the compacted density of soil-cement mixtures, so essential for achieving ideal compaction and performance.
- Test Methods A and B:
- Method A is for soils passing a No. 4 (4.75-mm) sieve.
- Method B is for soils containing particles retained on the No. 4 sieve but passing a 3/4-in. (19-mm) sieve.
- Applicable Apparatus: Standardizes use of molds, rammers, balances, ovens, and sieves, ensuring reliable and repeatable laboratory results.
- Compaction Curve: Data from multiple water contents are plotted to produce a compaction curve, from which optimum water content and maximum dry unit weight are determined.
- Unit Systems: Provides procedures in both inch-pound and SI units, though values from each unit system must not be combined to avoid nonconformance.
- Significance and Use: Results guide procedures for molding soil-cement specimens in related durability tests, supporting quality assurance in compliance with ASTM D559/D559M and D560/D560M.
Applications
ASTM D558/D558M-19 is widely applied throughout geotechnical engineering, road construction, and soil stabilization processes. Key applications include:
- Pavement Subgrades: Determining compaction specifications for soil-cement bases in roadway construction, ensuring longevity and reducing maintenance needs.
- Soil Stabilization: Providing baseline compaction data in projects requiring chemical modification of soils to enhance load-bearing capacity.
- Earthworks Quality Control: Guiding field and laboratory technicians in establishing consistent compaction standards for embankments and structural fills.
- Material Research: Supporting laboratory evaluation of new or modified soil-cement blends, evaluating performance under various moisture conditions.
- Durability Testing: Establishing preparation standards for subsequent durability assessments such as wetting-drying (ASTM D559/D559M) and freezing-thawing (ASTM D560/D560M).
Related Standards
For comprehensive quality and consistency in soil-cement testing, ASTM D558/D558M-19 is utilized alongside several key ASTM standards:
- ASTM D559/D559M: Test Methods for Wetting and Drying Compacted Soil-Cement Mixtures.
- ASTM D560/D560M: Test Methods for Freezing and Thawing Compacted Soil-Cement Mixtures.
- ASTM D698: Test Methods for Laboratory Compaction Characteristics of Soil Using Standard Effort.
- ASTM D653: Terminology Relating to Soil, Rock, and Contained Fluids.
- ASTM D2216: Test Methods for Laboratory Determination of Water (Moisture) Content of Soil and Rock.
- ASTM D3740: Practice for Minimum Requirements for Agencies Engaged in Testing and/or Inspection of Soil and Rock.
Practical Value
Adopting ASTM D558/D558M-19 promotes consistency, reliability, and accuracy in the preparation and analysis of soil-cement mixtures. This standard supports infrastructure resilience and sustainable construction by providing a scientific basis for optimal compaction and moisture control in soil-cement applications. Using ASTM-aligned test methods enhances compliance with project specifications and reduces the risk of suboptimal soil-cement performance, yielding long-term benefits in roadways and foundational earthworks.
Keywords: ASTM D558, soil-cement, moisture-density, compaction, optimum water content, maximum dry unit weight, soil stabilization, geotechnical laboratory testing, standard test methods.
Buy Documents
ASTM D558/D558M-19 - Standard Test Methods for Moisture-Density (Unit Weight) Relations of Soil-Cement Mixtures
REDLINE ASTM D558/D558M-19 - Standard Test Methods for Moisture-Density (Unit Weight) Relations of Soil-Cement Mixtures
Get Certified
Connect with accredited certification bodies for this standard
Zavod za gradbeništvo Slovenije (ZAG) - Inšpekcija
ZAG inspection body for construction products, structures, and materials.
Sponsored listings
Frequently Asked Questions
ASTM D558/D558M-19 is a standard published by ASTM International. Its full title is "Standard Test Methods for Moisture-Density (Unit Weight) Relations of Soil-Cement Mixtures". This standard covers: SIGNIFICANCE AND USE 5.1 These tests determine the optimum water content and maximum density (unit weight) to be used for molding soil-cement specimens in accordance with Test Methods D559/D559M and D560/D560M. Note 1: Since these tests are used in conjunction with Test Methods D559/D559M and D560/D560M and the criteria referenced therein, the test differs in several aspects from Test Method D698. There are three main differences between this standard and Test Method D698. Firstly, this standard allows a maximum particle size of 3/4-in. [19.0 mm] for a 4-in. [101.6-mm] mold while Test Method D698 allows a maximum particle size of 3/8-in. [9.5-mm] for the same size mold. Secondly, this standard permits the material leftover after the water content specimen has been obtained to be mixed with the rest of the sample and reused for the next determination. Test Method D698 does not permit the material to be reused. Thirdly, this standard allows the material that is retained on the 3/4-in. [19.0-mm] and passing the 3-in. [75-mm] to be discarded (scalping technique) and replaced with an equal mass of material that passes the 3/4-in. [19.0-mm] sieve and is retained on the No.4 [4.75-mm] sieve. Test Method D698 does not permit the scalp and replacement technique. Note 2: The quality of the result produced by this standard is dependent on the competence of the personnel performing it, and the suitability of the equipment and facilities used. Agencies that meet the criteria of Practice D3740 are generally considered capable of competent and objective testing/sampling/inspection/etc. Users of this standard are cautioned that compliance with Practice D3740 does not in itself assure reliable results. Reliable results depend on many factors; Practice D3740 provides a means of evaluating some of those factors. SCOPE 1.1 These test methods cover the determination of the relationship between the water content and the density of soil-cement mixtures when compacted before cement hydration as prescribed. 1.2 A 0.0333-ft3 [944-cm3] mold and a 5.50-lbf [24.5-N or mass of 2.5-kg] rammer dropped from a height of 12.0 in. [30.5 cm] are used and two methods, depending on soil gradation, are covered, as follows: Sections Test Method A, using soil material passing a No. 4 [4.75-mm] sieve. This method shall be used when 100 % of the soil sample passes the No. 4 [4.75-mm] sieve 8 Test Method B, using soil material passing a 3/4-in. [19.0-mm] sieve. This method shall be used when part of the soil sample is retained on the No. 4 [4.75-mm] sieve. This test method may be used only on materials with 30 % or less retained on the 3/4-in. [19.0-mm] sieve 9 1.3 Units—The values stated in inch-pound units or SI units are to be regarded separately as standard. The values stated in each system may not be exact equivalents; therefore, each system shall be used independently of the other. Combining values from the two systems may result in nonconformance with the standard. 1.3.1 The gravitational system of inch-pound units is used when dealing with inch-pound units. In this system, the pound (lbf) represents a unit of force (weight), while the unit for mass is slugs. The slug unit is not given, unless dynamic (F=ma) calculations are involved. 1.3.2 It is common practice in the engineering/construction profession to concurrently use pounds to represent both a unit of mass (lbm) and of force (lbf). This implicitly combines two separate systems of units; that is, the absolute system and the gravitational system. It is scientifically undesirable to combine the use of two separate sets of inch-pound units within a single standard. This standard includes the gravitational system of inch-pound units and does not use/present the slug unit for mass. However, the use of balances or scales recording pounds of mass (lbm) or recording density in lbm/ft3 shall not be regarded as nonconformance with this standard. 1....
SIGNIFICANCE AND USE 5.1 These tests determine the optimum water content and maximum density (unit weight) to be used for molding soil-cement specimens in accordance with Test Methods D559/D559M and D560/D560M. Note 1: Since these tests are used in conjunction with Test Methods D559/D559M and D560/D560M and the criteria referenced therein, the test differs in several aspects from Test Method D698. There are three main differences between this standard and Test Method D698. Firstly, this standard allows a maximum particle size of 3/4-in. [19.0 mm] for a 4-in. [101.6-mm] mold while Test Method D698 allows a maximum particle size of 3/8-in. [9.5-mm] for the same size mold. Secondly, this standard permits the material leftover after the water content specimen has been obtained to be mixed with the rest of the sample and reused for the next determination. Test Method D698 does not permit the material to be reused. Thirdly, this standard allows the material that is retained on the 3/4-in. [19.0-mm] and passing the 3-in. [75-mm] to be discarded (scalping technique) and replaced with an equal mass of material that passes the 3/4-in. [19.0-mm] sieve and is retained on the No.4 [4.75-mm] sieve. Test Method D698 does not permit the scalp and replacement technique. Note 2: The quality of the result produced by this standard is dependent on the competence of the personnel performing it, and the suitability of the equipment and facilities used. Agencies that meet the criteria of Practice D3740 are generally considered capable of competent and objective testing/sampling/inspection/etc. Users of this standard are cautioned that compliance with Practice D3740 does not in itself assure reliable results. Reliable results depend on many factors; Practice D3740 provides a means of evaluating some of those factors. SCOPE 1.1 These test methods cover the determination of the relationship between the water content and the density of soil-cement mixtures when compacted before cement hydration as prescribed. 1.2 A 0.0333-ft3 [944-cm3] mold and a 5.50-lbf [24.5-N or mass of 2.5-kg] rammer dropped from a height of 12.0 in. [30.5 cm] are used and two methods, depending on soil gradation, are covered, as follows: Sections Test Method A, using soil material passing a No. 4 [4.75-mm] sieve. This method shall be used when 100 % of the soil sample passes the No. 4 [4.75-mm] sieve 8 Test Method B, using soil material passing a 3/4-in. [19.0-mm] sieve. This method shall be used when part of the soil sample is retained on the No. 4 [4.75-mm] sieve. This test method may be used only on materials with 30 % or less retained on the 3/4-in. [19.0-mm] sieve 9 1.3 Units—The values stated in inch-pound units or SI units are to be regarded separately as standard. The values stated in each system may not be exact equivalents; therefore, each system shall be used independently of the other. Combining values from the two systems may result in nonconformance with the standard. 1.3.1 The gravitational system of inch-pound units is used when dealing with inch-pound units. In this system, the pound (lbf) represents a unit of force (weight), while the unit for mass is slugs. The slug unit is not given, unless dynamic (F=ma) calculations are involved. 1.3.2 It is common practice in the engineering/construction profession to concurrently use pounds to represent both a unit of mass (lbm) and of force (lbf). This implicitly combines two separate systems of units; that is, the absolute system and the gravitational system. It is scientifically undesirable to combine the use of two separate sets of inch-pound units within a single standard. This standard includes the gravitational system of inch-pound units and does not use/present the slug unit for mass. However, the use of balances or scales recording pounds of mass (lbm) or recording density in lbm/ft3 shall not be regarded as nonconformance with this standard. 1....
ASTM D558/D558M-19 is classified under the following ICS (International Classification for Standards) categories: 93.020 - Earthworks. Excavations. Foundation construction. Underground works. The ICS classification helps identify the subject area and facilitates finding related standards.
ASTM D558/D558M-19 has the following relationships with other standards: It is inter standard links to ASTM D558-11, ASTM D4753-24, ASTM D3740-23, ASTM D559/D559M-15(2023), ASTM D3740-19, ASTM C150/C150M-19, ASTM D2216-19, ASTM D2168-10(2018), ASTM C595/C595M-17, ASTM D560/D560M-16, ASTM C150/C150M-16, ASTM D559/D559M-15, ASTM D560/D560M-15, ASTM C150/C150M-15, ASTM C595/C595M-15. Understanding these relationships helps ensure you are using the most current and applicable version of the standard.
ASTM D558/D558M-19 is available in PDF format for immediate download after purchase. The document can be added to your cart and obtained through the secure checkout process. Digital delivery ensures instant access to the complete standard document.
Standards Content (Sample)
This international standard was developed in accordance with internationally recognized principles on standardization established in the Decision on Principles for the
Development of International Standards, Guides and Recommendations issued by the World Trade Organization Technical Barriers to Trade (TBT) Committee.
Designation: D558/D558M − 19
Standard Test Methods for
Moisture-Density (Unit Weight) Relations of Soil-Cement
Mixtures
This standard is issued under the fixed designation D558/D558M; the number immediately following the designation indicates the year
of original adoption or, in the case of revision, the year of last revision. A number in parentheses indicates the year of last reapproval.
A superscript epsilon (´) indicates an editorial change since the last revision or reapproval.
This standard has been approved for use by agencies of the U.S. Department of Defense.
1. Scope* mass. However, the use of balances or scales recording pounds
of mass (lbm) or recording density in lbm/ft shall not be
1.1 These test methods cover the determination of the
regarded as nonconformance with this standard.
relationship between the water content and the density of
soil-cement mixtures when compacted before cement hydra- 1.4 All observed and calculated values shall conform to the
tion as prescribed. guidelines for significant digits and rounding established in
3 3 Practice D6026.
1.2 A 0.0333-ft [944-cm ] mold and a 5.50-lbf [24.5-N or
1.4.1 Theproceduresusedtospecifyhowdataarecollected/
massof2.5-kg]rammerdroppedfromaheightof12.0in.[30.5
recorded and calculated in this standard are regarded as the
cm] are used and two methods, depending on soil gradation,
industry standard. In addition, they are representative of the
are covered, as follows:
significant digits that should generally be retained. The proce-
Sections
dures used do not consider material variation, purpose for
Test Method A, using soil material passing a No. 4 [4.75-mm] sieve.
This method shall be used when 100 % of the soil sample passes the obtaining the data, special purpose studies, or any consider-
No. 4 [4.75-mm] sieve 8
ations for the user’s objectives; and it is common practice to
Test Method B, using soil material passing a ⁄4-in. [19.0-mm] sieve.
increase or reduce significant digits of reported data to be
This method shall be used when part of the soil sample is retained on
the No. 4 [4.75-mm] sieve. This test method may be used only on 9
commensuratewiththeseconsiderations.Itisbeyondthescope
materials with 30 % or less retained on the ⁄4-in. [19.0-mm] sieve
of this standard to consider significant digits used in analysis
1.3 Units—The values stated in inch-pound units or SI units
methods for the engineering design.
are to be regarded separately as standard. The values stated in
1.5 This standard does not purport to address all of the
each system may not be exact equivalents; therefore, each
safety concerns, if any, associated with its use. It is the
system shall be used independently of the other. Combining
responsibility of the user of this standard to establish appro-
values from the two systems may result in nonconformance
priate safety, health, and environmental practices and deter-
with the standard.
mine the applicability of regulatory limitations prior to use.
1.3.1 The gravitational system of inch-pound units is used
1.6 This international standard was developed in accor-
when dealing with inch-pound units. In this system, the pound
dance with internationally recognized principles on standard-
(lbf) represents a unit of force (weight), while the unit for mass
ization established in the Decision on Principles for the
is slugs. The slug unit is not given, unless dynamic (F=ma)
Development of International Standards, Guides and Recom-
calculations are involved.
mendations issued by the World Trade Organization Technical
1.3.2 It is common practice in the engineering/construction
Barriers to Trade (TBT) Committee.
profession to concurrently use pounds to represent both a unit
of mass (lbm) and of force (lbf). This implicitly combines two
2. Referenced Documents
separate systems of units; that is, the absolute system and the
2.1 ASTM Standards:
gravitational system. It is scientifically undesirable to combine
C150/C150M Specification for Portland Cement
the use of two separate sets of inch-pound units within a single
C595/C595M Specification for Blended Hydraulic Cements
standard. This standard includes the gravitational system of
D559/D559M Test Methods for Wetting and Drying Com-
inch-pound units and does not use/present the slug unit for
pacted Soil-Cement Mixtures
These test methods are under the jurisdiction ofASTM Committee D18 on Soil
and Rock and are the direct responsibility of Subcommittee D18.15 on Stabilization
With Admixtures. For referenced ASTM standards, visit the ASTM website, www.astm.org, or
Current edition approved Dec. 1, 2019. Published January 2020. Originally contact ASTM Customer Service at service@astm.org. For Annual Book of ASTM
approved in 1938. Last previous edition approved in 2011 as D558–11. DOI: Standards volume information, refer to the standard’s Document Summary page on
10.1520/D0558_D0558M-19. the ASTM website.
*A Summary of Changes section appears at the end of this standard
Copyright © ASTM International, 100 Barr Harbor Drive, PO Box C700, West Conshohocken, PA 19428-2959. United States
D558/D558M − 19
⁄4-in. [19.0-mm] sieve and is retained on the No.4 [4.75-mm] sieve. Test
D560/D560M Test Methods for Freezing and Thawing
Method D698 does not permit the scalp and replacement technique.
Compacted Soil-Cement Mixtures
NOTE 2—The quality of the result produced by this standard is
D653 Terminology Relating to Soil, Rock, and Contained
dependent on the competence of the personnel performing it, and the
Fluids
suitability of the equipment and facilities used. Agencies that meet the
D698 Test Methods for Laboratory Compaction Character-
criteria of Practice D3740 are generally considered capable of competent
and objective testing/sampling/inspection/etc. Users of this standard are
istics of Soil Using Standard Effort (12,400 ft-lbf/ft (600
cautioned that compliance with Practice D3740 does not in itself assure
kN-m/m ))
reliable results. Reliable results depend on many factors; Practice D3740
D2168 Practices for Calibration of Laboratory Mechanical-
provides a means of evaluating some of those factors.
Rammer Soil Compactors
6. Apparatus
D2216 Test Methods for Laboratory Determination of Water
(Moisture) Content of Soil and Rock by Mass
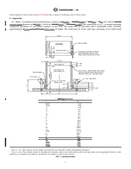
6.1 Mold—A cylindrical metal mold having a volume of
3 3
D3740 Practice for Minimum Requirements for Agencies
0.0333 6 0.0005 ft [944 6 14 cm ) with an average inside
Engaged in Testing and/or Inspection of Soil and Rock as
diameter of 4.000 6 0.016 in. [101.6 6 0.4 mm] and
Used in Engineering Design and Construction
conforming to Fig. 1 to permit preparing compacted specimens
D4753 Guide for Evaluating, Selecting, and Specifying Bal-
of soil-cement mixtures of this size. The mold shall be
ances and Standard Masses for Use in Soil, Rock, and
provided with a detachable collar assembly approximately
Construction Materials Testing
2.5-in. [63.5 mm] in height. The mold may be of the split type
D6026 Practice for Using Significant Digits in Geotechnical
consisting of two half-round sections or section of pipe with
Data
one side split perpendicular to the pipe circumference and that
E11 Specification for Woven Wire Test Sieve Cloth and Test
can be securely locked in place to form a closed cylinder
Sieves
having the dimensions described above. The mold and collar
assembly shall be so constructed that it can be fastened firmly
3. Terminology
to a detachable base (Fig. 1).
3.1 For definitions of common technical terms used in this
6.2 Rammer—A rammer, either manually operated as de-
standard, refer to Terminology D653.
scribed further in 6.2.1 or mechanically operated as described
in 6.2.2. The rammer shall fall freely through a distance of
4. Summary of Test Method
12.00 6 0.05 in. [304.8 6 1 mm] from the surface of the
4.1 A soil-cement mixture at a selected molding water
specimen. The weight of the rammer shall be 5.50 6 0.02 lbf
content is placed in three layers into a mold of given
[24.5 6 0.09 N, or mass of 2.495 6 0.009 kg], except that the
dimensions, with each layer compacted by 25 blows of a
weight of the mechanical rammers may be adjusted as de-
5.50-lbf [24.5-N] rammer dropped from a distance of 12 in.
scribed in Practices D2168 (See Note 3). The striking face of
[304.8 mm] subjecting the soil-cement mixture to a total
the rammer shall be planar and circular, except as noted in
3 3
compactive effort of about 12,400 ft-lbf/ft [600 kN-m/m ].
6.2.2, with a diameter when new of 2.000 6 0.005 in. [50.80
The resulting dry unit weight is determined. The procedure is
6 0.13 mm]. The rammer shall be replaced if the striking face
repeated for a sufficient number of molding water contents to
becomeswornorbelliedtotheextentthatthediameterexceeds
establish a relationship between the dry unit weight and the
2.000 6 0.01 in. [50.80 6 0.25 mm].
molding water content of the soil-cement. This data, when
NOTE 3—It is a common and acceptable practice to determine the
plotted, represents a curvilinear relationship known as a
weight of the rammer using either a kilogram or pound balance and
compaction curve. The values of optimum water content and
assume 1 lbf is equivalent to 0.4536 kg, 1 lbf is equivalent to 1 lbm, or 1
standard maximum dry unit weight are determined from the
N is equivalent to 0.2248 lbf or 0.1020 kg.
compaction curve.
6.2.1 ManualRammer—The rammer shall be equipped with
a guide sleeve that has sufficient clearance that the free fall of
5. Significance and Use
the rammer shaft and head is not restricted. The guide sleeve
5.1 These tests determine the optimum water content and
shall have at least four vent holes at each end (eight holes total)
maximum density (unit weight) to be used for molding
3 1
located with centers ⁄4 6 ⁄16 in. [19.0 6 2 mm] from each end
soil-cement specimens in accordance withTest Methods D559/
and spaced 90 degrees apart. The minimum diameter of the
D559M and D560/D560M.
vent holes shall be ⁄8 in. [9.5 mm]. Additional holes or slots
may be incorporated in the guide sleeve.
NOTE 1—Since these tests are used in conjunction with Test Methods
D559/D559M and D560/D560M and the criteria referenced therein, the
6.2.2 Mechanical Rammer-Circular Face—The rammer
test differs in several aspects from Test Method D698. There are three
shall operate mechanically in such a manner as to provide
maindifferencesbetweenthisstandardandTestMethodD698.Firstly,this
uniform and complete coverage of the specimen surface.There
standard allows a maximum particle size of ⁄4-in. [19.0 mm] for a 4-in.
shall be 0.10 6 0.03 in. [2.5 6 0.8 mm] clearance between the
[101.6-mm] mold while Test Method D698 allows a maximum particle
size of ⁄8-in. [9.5-mm] for the same size mold. Secondly, this standard rammer and the inside surface of the mold at its smallest
permits the material leftover after the water content specimen has been
diameter. The mechanical rammer shall meet the
obtained to be mixed with the rest of the sample and reused for the next
standardization/calibration requirements of Practices D2168.
determination. Test Method D698 does not permit the material to be
The mechanical rammer shall be equipped with a positive
reused. Thirdly, this standard allows the material that is retained on the
mechanical means to support the rammer when not in opera-
⁄4-in. [19.0-mm] and passing the 3-in. [75-mm] to be discarded (scalping
technique) and replaced with an equal mass of material that passes the tion.
D558/D558M − 19
SI Equivalents
in. mm
0.016 0.41
0.026 0.66
⁄32 0.80
⁄16 1.6
⁄8 3.2
⁄4 6.4
⁄32 8.7
⁄8 9.5
⁄2 12.7
⁄8 15.9
2 50.8
2 ⁄2 63.5
4 101.6
4 ⁄4 108.0
4 ⁄2 114.3
4.584 116.43
6 152.4
6 ⁄2 165.1
8 203.2
NOTE 1—(a)—The tolerance on the height is governed by the allowable volume and diameter tolerances.
NOTE 2—(b)—The methods shown for attaching the extension collar to the mold and the mold to the base plate are recommended. However, other
methods are acceptable, providing the attachments are equally as rigid as those shown.
FIG. 1 Cylindrical Mold
6.2.3 Mechanical Rammer-Sector Face (See Note 4)— rammer shall operate in such a manner that the vertex of the
When used with the 6 in. [152.4 mm] mold, a sector face sector is positioned at the center of the specimen.
rammer may be used in place of the circular face rammer. The
NOTE 4—The sector face rammer shall not be used to compact test
use of a sector face rammer should be noted in the test report.
specimens in accordance with Test Methods D559/D559M and D560/
The specimen contact face shall have the shape of a sector of
D560M, unless previous tests on like soils show strength and resistance to
acircleofradiusequalto2.90 60.02in.[73.7 60.5mm].The wetting-and-drying and freezing-and-thawing of specimens compacted
D558/D558M − 19
with this rammer are similar to that of specimens compacted with the
8.1.1 Prepare the sample for testing by breaking up the soil
circular face rammer.
aggregations to pass the No. 4 [4.75-mm] sieve in such a
6.3 Sample Extruder—A jack, lever frame, or other device manner as to avoid reducing the natural size of the individual
adapted for the purpose of extruding compacted specimens
particles.When necessary, first dry the sample until it is friable
from the mold. Not required when a split-type mold is used. under a trowel. Drying may be accomplished by air drying or
by the use of drying apparatus such that the temperature of the
6.4 Balances—Abalanceorscaleconformingtotherequire-
sample does not exceed 140 °F [60 °C].
ments of Class GP5 with a readability of 1g in Specification
D4753, except that a Class GP2 balance of 0.1g readability is 8.1.2 Select a representative sample, having a mass of
approximately 6.0 lbm [2.7 kg] or more, of the soil prepared as
required for water content determination.
described in 8.1.1.
6.5 Drying Oven—Thermostatically controlled, preferably
of the forced-draft type, meeting the requirements of Test
8.2 Procedure:
Methods D2216 and capable of maintaining a uniform tem-
8.2.1 Add to the soil the required amount of cement
perature of 230 69°F[110 6 5 °C] throughout the drying
conforming to Specification C150/C150M or Specification
chamber.
C595/C595M. Mix the cement and soil thoroughly to a
6.6 Straightedge—A stiff steel straightedge of any conve-
uniform color.
nient length but not less than 10-in. [254-mm].The total length
8.2.2 When needed, add sufficient potable water to dampen
of the straightedge shall be machined straight to a tolerance of
the mixture to approximately four to six percentage points
60.005-in. [6 0.1-mm]. The scraping edge shall be beveled if
below the estimated optimum water content and mix
...
This document is not an ASTM standard and is intended only to provide the user of an ASTM standard an indication of what changes have been made to the previous version. Because
it may not be technically possible to adequately depict all changes accurately, ASTM recommends that users consult prior editions as appropriate. In all cases only the current version
of the standard as published by ASTM is to be considered the official document.
Designation: D558 − 11 D558/D558M − 19
Standard Test Methods for
Moisture-Density (Unit Weight) Relations of Soil-Cement
Mixtures
This standard is issued under the fixed designation D558;D558/D558M; the number immediately following the designation indicates the
year of original adoption or, in the case of revision, the year of last revision. A number in parentheses indicates the year of last
reapproval. A superscript epsilon (´) indicates an editorial change since the last revision or reapproval.
This standard has been approved for use by agencies of the U.S. Department of Defense.
1. Scope*
1.1 These test methods cover the determination of the relationship between the water content and the density of soil-cement
mixtures when compacted before cement hydration as prescribed.
3 3
1.2 A ⁄30-ft0.0333-ft (944-cm[944-cm )] mold and a 5.50-lbf (24.5-N[24.5-N or mass of 2.49-kg)2.5-kg] rammer dropped
from a height of 12.0 in. (30.5 cm)[30.5 cm] are used and two methods, depending on soil gradation, are covered, as follows:
Sections
Test Method A, using soil material passing a No. 4 (4.75-mm) sieve.
This method shall be used when 100 % of the soil sample passes the
No. 4 (4.75-mm) sieve 7
Test Method A, using soil material passing a No. 4 [4.75-mm] sieve.
This method shall be used when 100 % of the soil sample passes the
No. 4 [4.75-mm] sieve 8
Test Method B, using soil material passing a ⁄4-in. (19.0-mm) sieve.
This method shall be used when part of the soil sample is retained on
the No. 4 (4.75-mm) sieve. This test method may be used only on 8
materials with 30 % or less retained on the ⁄4-in. (19.0-mm) sieve
Test Method B, using soil material passing a ⁄4-in. [19.0-mm] sieve.
This method shall be used when part of the soil sample is retained on
the No. 4 [4.75-mm] sieve. This test method may be used only on 9
materials with 30 % or less retained on the ⁄4-in. [19.0-mm] sieve
1.3 All observed and calculated values shall conform to the guidelines for significant digits and rounding established in Practice
D6026.
1.3 Units—The values stated in inch-pound units or SI units are to be regarded as standard, except as noted below. The values
given in parentheses are mathematical conversions to SI units that are provided for information only and are not considered
separately as standard. The values stated in each system may not be exact equivalents; therefore, each system shall be used
independently of the other. Combining values from the two systems may result in nonconformance with the standard.
1.3.1 The gravitational system of inch-pound units is used when dealing with inch-pound units. In this system, the pound (lbf)
represents a unit of force (weight), while the unit for mass is slugs. The slug unit is not given, unless dynamic (F=ma) calculations
are involved.
1.4.2 The slug unit of mass is almost never used in commercial practice (density, scales, balances, etc.). Therefore, the standard
unit for mass in this standard is either kilogram (kg) or gram (g) or both. Also, the equivalent inch-pound unit (slug) is not given.
1.3.2 It is common practice in the engineering/construction profession to concurrently use pounds to represent both a unit of
mass (lbm) and of force (lbf). This implicitly combines two separate systems of units; that is, the absolute system and the
gravitational system. It is scientifically undesirable to combine the use of two separate sets of inch-pound units within a single
standard. As stated in This 1.4.2, this standard includes the gravitational system of inch-pound units and does not use/present the
slug unit for mass. However, the use of balances or scales recording pounds of mass (lbm) or recording density in lbm/ft shall
not be regarded as nonconformance with this standard.
1.4 All observed and calculated values shall conform to the guidelines for significant digits and rounding established in Practice
D6026.
These test methods are under the jurisdiction of ASTM Committee D18 on Soil and Rock and are the direct responsibility of Subcommittee D18.15 on Stabilization With
Admixtures.
Current edition approved Jan. 1, 2011Dec. 1, 2019. Published February 2011January 2020. Originally approved in 1938. Last previous edition approved in 20032011 as
D558–03.–11. DOI: 10.1520/D0558-11.10.1520/D0558_D0558M-19.
*A Summary of Changes section appears at the end of this standard
Copyright © ASTM International, 100 Barr Harbor Drive, PO Box C700, West Conshohocken, PA 19428-2959. United States
D558/D558M − 19
1.4.1 The procedures used to specify how data are collected/recorded and calculated in this standard are regarded as the industry
standard. In addition, they are representative of the significant digits that should generally be retained. The procedures used do not
consider material variation, purpose for obtaining the data, special purpose studies, or any considerations for the user’s objectives;
and it is common practice to increase or reduce significant digits of reported data to be commensurate with these considerations.
It is beyond the scope of this standard to consider significant digits used in analysis methods for the engineering design.
1.5 This standard does not purport to address all of the safety concerns, if any, associated with its use. It is the responsibility
of the user of this standard to establish appropriate safety safety, health, and healthenvironmental practices and determine the
applicability of regulatory limitations prior to use.
1.6 This international standard was developed in accordance with internationally recognized principles on standardization
established in the Decision on Principles for the Development of International Standards, Guides and Recommendations issued
by the World Trade Organization Technical Barriers to Trade (TBT) Committee.
2. Referenced Documents
2.1 ASTM Standards:
C150C150/C150M Specification for Portland Cement
C595C595/C595M Specification for Blended Hydraulic Cements
D559D559/D559M Test Methods for Wetting and Drying Compacted Soil-Cement Mixtures
D560D560/D560M Test Methods for Freezing and Thawing Compacted Soil-Cement Mixtures
D653 Terminology Relating to Soil, Rock, and Contained Fluids
3 3
D698 Test Methods for Laboratory Compaction Characteristics of Soil Using Standard Effort (12,400 ft-lbf/ft (600 kN-m/m ))
D2168 Practices for Calibration of Laboratory Mechanical-Rammer Soil Compactors
D2216 Test Methods for Laboratory Determination of Water (Moisture) Content of Soil and Rock by Mass
D3740 Practice for Minimum Requirements for Agencies Engaged in Testing and/or Inspection of Soil and Rock as Used in
Engineering Design and Construction
D4753 Guide for Evaluating, Selecting, and Specifying Balances and Standard Masses for Use in Soil, Rock, and Construction
Materials Testing
D6026 Practice for Using Significant Digits in Geotechnical Data
E11 Specification for Woven Wire Test Sieve Cloth and Test Sieves
E145 Specification for Gravity-Convection and Forced-Ventilation Ovens
3. Terminology
3.1 For common definitions of common technical terms used in this standard, refer to Terminology D653.
4. Summary of Test Method
4.1 A soil-cement mixture at a selected molding water content is placed in three layers into a mold of given dimensions, with
each layer compacted by 25 blows of a 5.50-lbf [24.5-N] rammer dropped from a distance of 12 in. [304.8 mm] subjecting the
3 3
soil-cement mixture to a total compactive effort of about 12,400 ft-lbf/ft [600 kN-m/m ]. The resulting dry unit weight is
determined. The procedure is repeated for a sufficient number of molding water contents to establish a relationship between the
dry unit weight and the molding water content of the soil-cement. This data, when plotted, represents a curvilinear relationship
known as a compaction curve. The values of optimum water content and standard maximum dry unit weight are determined from
the compaction curve.
5. Significance and Use
5.1 These tests determine the optimum water content and maximum density (unit weight) to be used for molding soil-cement
specimens in accordance with Test Methods D559D559/D559M and D560D560/D560M.
NOTE 1—Since these tests are used in conjunction with Test Methods D559D559/D559M and D560D560/D560M and the criteria referenced therein,
the test differs in several aspects from Test Method D698. There are three main differences between this standard and Test Method D698. Firstly, this
standard allows a maximum particle size of ⁄4-in. (19.0 mm)[19.0 mm] for a 4-in. (101.6-mm)[101.6-mm] mold while Test Method D698 allows a
maximum particle size of ⁄8-in. (9.5-mm)[9.5-mm] for the same size mold. Secondly, this standard permits the material leftover after the water content
specimen has been obtained to be mixed with the rest of the sample and reused for the next determination. Test Method D698 does not permit the material
to be reused. Thirdly, this standard allows the material that is retained on the ⁄4-in. (19.0-mm)[19.0-mm] and passing the 3-in. (75-mm)[75-mm] to be
discarded (scalping technique) and replaced with an equal mass of material that passes the ⁄4-in. (19.0-mm)[19.0-mm] sieve and is retained on the No.4
(4.75-mm)[4.75-mm] sieve. Test Method D698 does not permit the scalp and replacement technique.
NOTE 2—The quality of the result produced by this standard is dependent on the competence of the personnel performing it, and the suitability of the
equipment and facilities used. Agencies that meet the criteria of Practice D3740 are generally considered capable of competent and objective
testing/sampling/inspection/etc. Users of this standard are cautioned that compliance with Practice D3740 does not in itself assure reliable results. Reliable
For referenced ASTM standards, visit the ASTM website, www.astm.org, or contact ASTM Customer Service at service@astm.org. For Annual Book of ASTM Standards
volume information, refer to the standard’s Document Summary page on the ASTM website.
D558/D558M − 19
results depend on many factors; Practice D3740 provides a means of evaluating some of those factors.
6. Apparatus
3 3
6.1 Mold—A cylindrical metal mold having a volume of ⁄300.0333 6 0.000400.0005 ft (944[944 6 1114 cm ) with an internal
average inside diameter of 4.04.000 6 0.016 in. (101.60[101.6 6 0.41 mm)0.4 mm] and conforming to Fig. 1 to permit preparing
compacted specimens of soil-cement mixtures of this size. The mold shall be provided with a detachable collar assembly
approximately 22.5-in. ⁄2-in. (63.5 mm) [63.5 mm] in height. The mold may be of the split type consisting of two half-round
Metric SI Equivalents
in. mm
0.016 0.41
0.026 0.66
⁄32 0.80
⁄16 1.6
⁄8 3.2
⁄4 6.4
⁄32 8.7
⁄8 9.5
⁄2 12.7
⁄8 15.9
2 50.8
2 ⁄2 63.5
4 101.6
4 ⁄4 108.0
4 ⁄2 114.3
4.584 116.43
6 152.4
6 ⁄2 165.1
8 203.2
ft cm
⁄30 944
0.004 11
⁄13.333 2124
0.0009 25
NOTE 1—(a)—The tolerance on the height is governed by the allowable volume and diameter tolerances.
NOTE 2—(b)—The methods shown for attaching the extension collar to the mold and the mold to the base plate are recommended. However, other
methods are acceptable, providing the attachments are equally as rigid as those shown.
FIG. 1 Cylindrical Mold
D558/D558M − 19
sections or section of pipe with one side split perpendicular to the pipe circumference and that can be securely locked in place to
form a closed cylinder having the dimensions described above. The mold and collar assembly shall be so constructed that it can
be fastened firmly to a detachable base (Fig. 1).
6.2 Rammer—A rammer, either manually operated as described further in 5.2.16.2.1 or mechanically operated as described in
5.2.26.2.2. The rammer shall fall freely through a distance of 12.00 6 0.05 in. (304.8[304.8 6 1 mm)mm] from the surface of the
specimen. The weight of the rammer shall be 5.50 6 0.02 lbf (24.47[24.5 6 0.09 N, or mass of 2.495 6 0.023 kg),0.009 kg],
except that the weight of the mechanical rammers may be adjusted as described in Practices D2168 (See Note 3). The striking face
of the rammer shall be planar and circular, except as noted in 5.2.26.2.2, with a diameter when new of 2.000 6 0.005 in.
(50.80[50.80 6 0.13 mm).mm]. The rammer shall be replaced if the striking face becomes worn or bellied to the extent that the
diameter exceeds 2.000 6 0.01 in. (50.80[50.80 6 0.25 mm).mm].
NOTE 3—It is a common and acceptable practice to determine the weight of the rammer using either a kilogram or pound balance and assume 1 lbf
is equivalent to 0.4536 kg, 1 lbf is equivalent to 1 lbm, or 1 N is equivalent to 0.2248 lbf or 0.1020 kg.
6.2.1 Manual Rammer—The rammer shall be equipped with a guide sleeve that has sufficient clearance that the free fall of the
rammer shaft and head is not restricted. The guide sleeve shall have at least four vent holes at each end (eight holes total) located
3 1
with centers ⁄4 6 ⁄16 in. (19.0[19.0 6 2 mm)mm] from each end and spaced 90 degrees apart. The minimum diameter of the vent
holes shall be ⁄8 in. (9.5 mm).[9.5 mm]. Additional holes or slots may be incorporated in the guide sleeve.
6.2.2 Mechanical Rammer-Circular Face—The rammer shall operate mechanically in such a manner as to provide uniform and
complete coverage of the specimen surface. There shall be 0.10 6 0.03 in. (2.5[2.5 6 0.8mm) 0.8 mm] clearance between the
rammer and the inside surface of the mold at its smallest diameter. The mechanical rammer shall meet the standardization/
calibration requirements of Practices D2168. The mechanical rammer shall be equipped with a positive mechanical means to
support the rammer when not in operation.
6.2.3 Mechanical Rammer-Sector Face (See Note 4)—When used with the 6 in. (152.4 mm)[152.4 mm] mold, a sector face
rammer may be used in place of the circular face rammer. The use of a sector face rammer should be noted in the test report. The
specimen contact face shall have the shape of a sector of a circle of radius equal to 2.90 6 0.02 in. (73.7[73.7 6 0.5 mm).mm].
The rammer shall operate in such a manner that the vertex of the sector is positioned at the center of the specimen.
NOTE 4—The sector face rammer shall not be used to compact test specimens in accordance with Test Methods D559D559/D559M and
D560D560/D560M, unless previous tests on like soils show strength and resistance to wetting-and-drying and freezing-and-thawing of specimens
compacted with this rammer are similar to that of specimens compacted with the circular face rammer.
6.3 Sample Extruder—A jack, lever frame, or other device adapted for the purpose of extruding compacted specimens from the
mold. Not required when a split-type mold is used.
6.4 Balances—A balance or scale conforming to the requirements of Class GP5 with a readability of 1g in Specification D4753,
except that a Class GP2 balance of 0.1g readability is required for water content determination.
6.5 Drying Oven—Thermostatically controlled, preferably of the forced-draft type, meeting the requirements of Specification
Test Methods E145D2216 and capable of maintaining a uniform temperature of 230 6 9 °F (110[110 6 5 °C)°C] throughout the
drying chamber.
6.6 Straightedge—A stiff steel straightedge of any convenient length but not less than 10-in. (254-mm).[254-mm]. The total
length of the straightedge shall be machined straight to a tolerance of 6 0.005-in. (6 0.1-mm). 60.005-in. [6 0.1-mm]. The
scraping edge shall be beveled if it is thicker than ⁄8-in. (3-mm).[3-mm].
6.7 Sieves—3-in. (75-mm),[75-mm], ⁄4-in. (19.0-mm),[19.0-mm], and No. 4 (4.75-mm)[4.75-mm] sieves conforming to the
requirements of Specification E11.
6.8 Mixing Tools—Miscellaneous tools such as mixing pan, spoon, trowel, and spatula, or a suitable mechanical device for
thoroughly mixing the sample of soil with cement and with increments of water.
6.9 Container—A flat, round pan for moisture absorption by soil-cement mixtures, about 12 in. (305 mm)[305 mm] in diameter
and 2 in. (50 mm)[50 mm] deep.
6.10 Water Content Cans—Suitable containers made of material resistant to corrosion and change in mass upon repeated
heating, cooling, exposure to materials of varying pH, and cleaning. Unless a desiccator is used, containers with close fitting lids
shall be used for testing specimens having a mass of about 200 g; while for specimens having a mass greater than about 200g, 200
g, containers without lids may be used. One container is needed for each water content determination.
6.11 Butcher Knife—A butcher knife approximately 10
...








Questions, Comments and Discussion
Ask us and Technical Secretary will try to provide an answer. You can facilitate discussion about the standard in here.
Loading comments...