ASTM C1574-04(2018)
(Guide)Standard Guide for Determining Blown Density of Pneumatically Applied Loose-Fill Mineral Fiber Thermal Insulation
Standard Guide for Determining Blown Density of Pneumatically Applied Loose-Fill Mineral Fiber Thermal Insulation
SIGNIFICANCE AND USE
4.1 Blown density is used to develop loose-fill coverage charts. Data for blown density vs thickness is used in the development of a variable blown density presentation for loose-fill insulation.
4.2 Thermal resistance (and conductivity) of loose-fill mineral fiber insulation depends on density and thickness. The resulting blown density data is useful in developing an expression for apparent thermal conductivity as a function of density. This will in turn aid the manufacturer in developing coverage information for packages of loose-fill insulation.
4.3 The blown density obtained in this method is for the thickness of the test only. The relationship of blown density with thickness can be determined by repeating the procedures outlined here using different thicknesses.
4.4 These procedures are not the same as the test method described in Test Method C1374. Depending on the test conditions utilized, the blown density may, or may not, represent the installed density values obtained by using Test Method C1374.
4.5 This guide can be used to develop appropriate blowing machine settings to achieve a target blown density at a predetermined thickness.
SCOPE
1.1 This guide describes two alternate procedures for determining blown density at a predetermined thickness or a range of thicknesses expected in field applications of mineral fiber loose-fill insulation.
1.2 This guide involves blowing a sample of loose-fill insulation into a test frame of known volume, measuring the weight of the insulation captured and calculating the blown density.
1.3 This guide is intended for pneumatically-applied loose-fill mineral fiber insulation designed for use in horizontal open attic spaces.
1.4 This guide is intended for product design and product auditing by manufacturers of loose-fill insulation. This guide is adaptable as a plant quality control procedure.
1.5 This guide does not predict the aged density of the mineral fiber loose-fill insulation.
1.6 The values stated in inch-pound units are to be regarded as standard. The values given in parentheses are mathematical conversions to SI units that are provided for information only and are not considered standard.
1.7 This standard does not purport to address all of the safety concerns, if any, associated with its use. It is the responsibility of the user of this standard to establish appropriate safety, health, and environmental practices and determine the applicability of regulatory limitations prior to use.
1.8 This international standard was developed in accordance with internationally recognized principles on standardization established in the Decision on Principles for the Development of International Standards, Guides and Recommendations issued by the World Trade Organization Technical Barriers to Trade (TBT) Committee.
General Information
- Status
- Published
- Publication Date
- 31-Aug-2018
- Technical Committee
- C16 - Thermal Insulation
- Drafting Committee
- C16.32 - Mechanical Properties
Relations
- Effective Date
- 01-Sep-2018
- Effective Date
- 15-Apr-2024
- Effective Date
- 15-Apr-2018
- Effective Date
- 01-Jun-2017
- Effective Date
- 15-Oct-2015
- Effective Date
- 01-Jun-2015
- Effective Date
- 15-Apr-2014
- Effective Date
- 01-Apr-2013
- Effective Date
- 01-Jan-2010
- Effective Date
- 01-Nov-2009
- Effective Date
- 15-Dec-2008
- Effective Date
- 01-Sep-2008
- Effective Date
- 01-Jun-2008
- Effective Date
- 01-Nov-2005
- Effective Date
- 01-Jun-2005
Overview
ASTM C1574-04(2018) - Standard Guide for Determining Blown Density of Pneumatically Applied Loose-Fill Mineral Fiber Thermal Insulation provides comprehensive guidance on laboratory procedures for determining the blown density of mineral fiber insulation applied pneumatically, primarily in horizontal open attic spaces. The guide details two alternate procedures to ensure accurate density calculation, supporting manufacturers with product design, quality control, and the development of product coverage charts. By measuring blown density at controlled thicknesses, this standard helps manufacturers deliver reliable insulation performance data, which is essential to thermal efficiency and regulatory compliance in building insulation products.
Key Topics
Blown Density Determination:
The guide describes standardized methods to assess the density of loose-fill mineral fiber insulation after pneumatic application into a test chamber. Density directly impacts the insulation’s thermal resistance and apparent conductivity.Test Procedures:
Two methodologies are outlined:- Procedure A: Using a movable test box of known volume, insulation is blown in, weighed, and density calculated.
- Procedure B: Using a fixed test frame to simulate attic joist construction; blown insulation is weighed after filling marked volumes.
Laboratory Controls:
The guide emphasizes environmental control, precise measurement, and correct preparation to ensure reliable, repeatable results, including guidance on apparatus such as blowing machines, hose configurations, and test chambers.Use in Product Development and Quality Assurance:
Data generated according to this guide can inform product coverage charts, aid in the development of blowing machine settings, and serve as a basis for internal audits and quality control procedures.
Applications
Manufacturing of Insulation Products:
- Supports the design and packaging of loose-fill mineral fiber insulation by establishing accurate blown density values for various intended thicknesses.
- Facilitates the creation of loose-fill coverage charts and labeling, ensuring consumers and installers have clear guidance on achieving specified R-values based on density and thickness.
Quality Control in Production:
- Provides a repeatable in-plant procedure for manufacturers to verify product consistency and compliance with specifications.
- Useful for routine product audits and for adjusting blowing machine settings to specific thickness and density targets.
Field Simulation:
- Procedures simulate real-world installation scenarios in laboratory conditions, allowing manufacturers and testing agencies to generate reliable reference data for product documentation and regulatory submissions.
Performance Assessment:
- Blown density data helps characterize the relationship between product density and its thermal resistance (R-value), a key factor in energy efficiency in building envelopes.
Related Standards
ASTM C168: Terminology Relating to Thermal Insulation
Provides definitions vital to understanding insulation standards and related terminology.ASTM C1374: Test Method for Determination of Installed Thickness of Pneumatically Applied Loose-Fill Building Insulation
Describes field methods for determining installed insulation thickness, differing from the laboratory-oriented scope of ASTM C1574.International Standards Principles:
ASTM C1574 aligns with globally recognized principles established by the World Trade Organization’s Technical Barriers to Trade (TBT) Committee, enhancing its acceptance and use in international markets.
Keywords: ASTM C1574, blown density, mineral fiber insulation, loose-fill insulation, thermal insulation standards, attic insulation, quality control, insulation coverage chart, pneumatic application, insulation manufacturing.
Buy Documents
ASTM C1574-04(2018) - Standard Guide for Determining Blown Density of Pneumatically Applied Loose-Fill Mineral Fiber Thermal Insulation
Get Certified
Connect with accredited certification bodies for this standard

ICC Evaluation Service
Building products evaluation and certification.

QAI Laboratories
Building and construction product testing and certification.

Aboma Certification B.V.
Specialized in construction, metal, and transport sectors.
Sponsored listings
Frequently Asked Questions
ASTM C1574-04(2018) is a guide published by ASTM International. Its full title is "Standard Guide for Determining Blown Density of Pneumatically Applied Loose-Fill Mineral Fiber Thermal Insulation". This standard covers: SIGNIFICANCE AND USE 4.1 Blown density is used to develop loose-fill coverage charts. Data for blown density vs thickness is used in the development of a variable blown density presentation for loose-fill insulation. 4.2 Thermal resistance (and conductivity) of loose-fill mineral fiber insulation depends on density and thickness. The resulting blown density data is useful in developing an expression for apparent thermal conductivity as a function of density. This will in turn aid the manufacturer in developing coverage information for packages of loose-fill insulation. 4.3 The blown density obtained in this method is for the thickness of the test only. The relationship of blown density with thickness can be determined by repeating the procedures outlined here using different thicknesses. 4.4 These procedures are not the same as the test method described in Test Method C1374. Depending on the test conditions utilized, the blown density may, or may not, represent the installed density values obtained by using Test Method C1374. 4.5 This guide can be used to develop appropriate blowing machine settings to achieve a target blown density at a predetermined thickness. SCOPE 1.1 This guide describes two alternate procedures for determining blown density at a predetermined thickness or a range of thicknesses expected in field applications of mineral fiber loose-fill insulation. 1.2 This guide involves blowing a sample of loose-fill insulation into a test frame of known volume, measuring the weight of the insulation captured and calculating the blown density. 1.3 This guide is intended for pneumatically-applied loose-fill mineral fiber insulation designed for use in horizontal open attic spaces. 1.4 This guide is intended for product design and product auditing by manufacturers of loose-fill insulation. This guide is adaptable as a plant quality control procedure. 1.5 This guide does not predict the aged density of the mineral fiber loose-fill insulation. 1.6 The values stated in inch-pound units are to be regarded as standard. The values given in parentheses are mathematical conversions to SI units that are provided for information only and are not considered standard. 1.7 This standard does not purport to address all of the safety concerns, if any, associated with its use. It is the responsibility of the user of this standard to establish appropriate safety, health, and environmental practices and determine the applicability of regulatory limitations prior to use. 1.8 This international standard was developed in accordance with internationally recognized principles on standardization established in the Decision on Principles for the Development of International Standards, Guides and Recommendations issued by the World Trade Organization Technical Barriers to Trade (TBT) Committee.
SIGNIFICANCE AND USE 4.1 Blown density is used to develop loose-fill coverage charts. Data for blown density vs thickness is used in the development of a variable blown density presentation for loose-fill insulation. 4.2 Thermal resistance (and conductivity) of loose-fill mineral fiber insulation depends on density and thickness. The resulting blown density data is useful in developing an expression for apparent thermal conductivity as a function of density. This will in turn aid the manufacturer in developing coverage information for packages of loose-fill insulation. 4.3 The blown density obtained in this method is for the thickness of the test only. The relationship of blown density with thickness can be determined by repeating the procedures outlined here using different thicknesses. 4.4 These procedures are not the same as the test method described in Test Method C1374. Depending on the test conditions utilized, the blown density may, or may not, represent the installed density values obtained by using Test Method C1374. 4.5 This guide can be used to develop appropriate blowing machine settings to achieve a target blown density at a predetermined thickness. SCOPE 1.1 This guide describes two alternate procedures for determining blown density at a predetermined thickness or a range of thicknesses expected in field applications of mineral fiber loose-fill insulation. 1.2 This guide involves blowing a sample of loose-fill insulation into a test frame of known volume, measuring the weight of the insulation captured and calculating the blown density. 1.3 This guide is intended for pneumatically-applied loose-fill mineral fiber insulation designed for use in horizontal open attic spaces. 1.4 This guide is intended for product design and product auditing by manufacturers of loose-fill insulation. This guide is adaptable as a plant quality control procedure. 1.5 This guide does not predict the aged density of the mineral fiber loose-fill insulation. 1.6 The values stated in inch-pound units are to be regarded as standard. The values given in parentheses are mathematical conversions to SI units that are provided for information only and are not considered standard. 1.7 This standard does not purport to address all of the safety concerns, if any, associated with its use. It is the responsibility of the user of this standard to establish appropriate safety, health, and environmental practices and determine the applicability of regulatory limitations prior to use. 1.8 This international standard was developed in accordance with internationally recognized principles on standardization established in the Decision on Principles for the Development of International Standards, Guides and Recommendations issued by the World Trade Organization Technical Barriers to Trade (TBT) Committee.
ASTM C1574-04(2018) is classified under the following ICS (International Classification for Standards) categories: 91.100.60 - Thermal and sound insulating materials. The ICS classification helps identify the subject area and facilitates finding related standards.
ASTM C1574-04(2018) has the following relationships with other standards: It is inter standard links to ASTM C1574-04(2013), ASTM C168-24, ASTM C168-18, ASTM C168-17, ASTM C168-15a, ASTM C168-15, ASTM C1374-14, ASTM C168-13, ASTM C168-10, ASTM C1374-03(2009), ASTM C168-08b, ASTM C168-08a, ASTM C168-08, ASTM C168-05a, ASTM C168-05. Understanding these relationships helps ensure you are using the most current and applicable version of the standard.
ASTM C1574-04(2018) is available in PDF format for immediate download after purchase. The document can be added to your cart and obtained through the secure checkout process. Digital delivery ensures instant access to the complete standard document.
Standards Content (Sample)
This international standard was developed in accordance with internationally recognized principles on standardization established in the Decision on Principles for the
Development of International Standards, Guides and Recommendations issued by the World Trade Organization Technical Barriers to Trade (TBT) Committee.
Designation: C1574 − 04 (Reapproved 2018)
Standard Guide for
Determining Blown Density of Pneumatically Applied Loose-
Fill Mineral Fiber Thermal Insulation
This standard is issued under the fixed designation C1574; the number immediately following the designation indicates the year of
original adoption or, in the case of revision, the year of last revision.Anumber in parentheses indicates the year of last reapproval.A
superscript epsilon (´) indicates an editorial change since the last revision or reapproval.
1. Scope 2. Referenced Documents
2.1 ASTM Standards:
1.1 This guide describes two alternate procedures for deter-
C168Terminology Relating to Thermal Insulation
mining blown density at a predetermined thickness or a range
C1374Test Method for Determination of Installed Thick-
of thicknesses expected in field applications of mineral fiber
ness of Pneumatically Applied Loose-Fill Building Insu-
loose-fill insulation.
lation
1.2 This guide involves blowing a sample of loose-fill
insulation into a test frame of known volume, measuring the 3. Terminology
weight of the insulation captured and calculating the blown
3.1 Definitions—Terminology C168 is applicable to the
density.
terms used in this standard.
3.2 Definitions of Terms Specific to This Standard:
1.3 This guide is intended for pneumatically-applied loose-
3.2.1 Variable blown density—change in density exhibited
fill mineral fiber insulation designed for use in horizontal open
by loose-fill insulation as a function of thickness.
attic spaces.
3.2.1.1 Discussion—Someloose-fillinsulationmaterialsex-
1.4 This guide is intended for product design and product
hibit an increase in blown density when thickness increases.
auditingbymanufacturersofloose-fillinsulation.Thisguideis
Also,theoriginalthicknessmayormaynotdecreasewithtime
adaptable as a plant quality control procedure.
resulting in the same or somewhat higher densities. This
thickness versus density relationship should be considered
1.5 This guide does not predict the aged density of the
when developing coverage information for the bag label.
mineral fiber loose-fill insulation.
4. Significance and Use
1.6 Thevaluesstatedininch-poundunitsaretoberegarded
as standard. The values given in parentheses are mathematical
4.1 Blown density is used to develop loose-fill coverage
conversions to SI units that are provided for information only
charts. Data for blown density vs thickness is used in the
and are not considered standard.
development of a variable blown density presentation for
loose-fill insulation.
1.7 This standard does not purport to address all of the
safety concerns, if any, associated with its use. It is the
4.2 Thermal resistance (and conductivity) of loose-fill min-
responsibility of the user of this standard to establish appro-
eral fiber insulation depends on density and thickness. The
priate safety, health, and environmental practices and deter-
resulting blown density data is useful in developing an expres-
mine the applicability of regulatory limitations prior to use.
sion for apparent thermal conductivity as a function of density.
1.8 This international standard was developed in accor- This will in turn aid the manufacturer in developing coverage
dance with internationally recognized principles on standard- information for packages of loose-fill insulation.
ization established in the Decision on Principles for the
4.3 The blown density obtained in this method is for the
Development of International Standards, Guides and Recom-
thickness of the test only. The relationship of blown density
mendations issued by the World Trade Organization Technical
with thickness can be determined by repeating the procedures
Barriers to Trade (TBT) Committee.
outlined here using different thicknesses.
4.4 These procedures are not the same as the test method
described in Test Method C1374. Depending on the test
This guide is under the jurisdiction of ASTM Committee C16 on Thermal
Insulation and is the direct responsibility of Subcommittee C16.32 on Mechanical
Properties. For referenced ASTM standards, visit the ASTM website, www.astm.org, or
Current edition approved Sept. 1, 2018. Published November 2018. Originally contact ASTM Customer Service at service@astm.org. For Annual Book of ASTM
approved in 2004. Last previous edition approved in 2013 as C1574–04 (2013). Standards volume information, refer to the standard’s Document Summary page on
DOI: 10.1520/C1574-04R18. the ASTM website.
Copyright © ASTM International, 100 Barr Harbor Drive, PO Box C700, West Conshohocken, PA 19428-2959. United States
C1574 − 04 (2018)
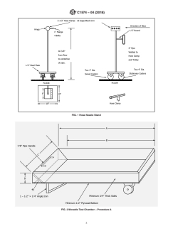
conditions utilized, the blown density may, or may not, and forwards to fill the test chamber. A typical hose nozzle
represent the installed density values obtained by using Test stand is shown in Fig. 1. Use of the hose stand is optional.
Method C1374.
6.6 Moveable Test Chamber (ProcedureA)—awoodenopen
4.5 This guide can be used to develop appropriate blowing
container to collect the insulation. The chamber shall have a
3 3
machine settings to achieve a target blown density at a
minimum capacity of 20 ft (0.57 m ) and have the minimum
predetermined thickness. inside dimensions of 11 in. high by 28 in. wide by 80 in. long
(279 mm by 711 mm by 2032 mm). Note that these minimum
5. Summary of Guide dimensions by themselves do not produce the required volume
but simply represent the minimum B, C, and D dimensions in
5.1 Astandardized test chamber of fixed volume is used to
Fig. 2. The front of the test chamber is typically angled at 45
collect the pneumatically-applied insulation.
degrees to insure proper filling as the operator moves back
5.2 Therearetwotypesoftestchambersthatareincommon
during the filling operation.Atypical test chamber is shown in
use:
Fig. 2.
5.2.1 Procedure A uses a moveable test box having a
3 6.7 Fixed Test Chamber (Procedure B)—joists are built up
minimum volume of 20 cubic feet (0.56 m ) . The blown
on a plywood floor to simulate an open attic structure.
materialisweighedwhilestillinthetestboxandthedensityis
Typically2in.by10in.(50mmby254mm)joists,16in.(406
calculated.
mm) on center, are used to create three sections that are 19 ft
5.2.2 Procedure B uses a fixed frame assembly in a test
long (5.8 m). The joists are marked along their length at 6 in.
room or blowing shack to simulate an attic application. The
(152 mm) intervals so that the total insulation volume can be
blown material is removed from the test frame and weighed
determined after the blowing is completed. A typical test
separately to calculate the density.
chamber is shown in Fig. 3.
5.3 After the insulation is blown into the chamber, the
6.8 Compressed air supply, hose, and nozzle.
weight of the insulation is determined.
6.9 Straight edged screed.
5.4 From the volume of the sample and its weight, the
blown density is determined.
7. Procedure
6. Apparatus
7.1 Procedure A–Moveable Test Chamber:
7.1.1 Withinthesamplepreparationarea,positiontheempty
6.1 Blowing Machine—a commercial pneumatic blowing
andcleantestchamberonthescaleandsothatthetestchamber
machine, designed for handling mineral fiber loose-fill insula-
is approximately centered side to side and from front to back.
tion materials, shall be used for blowing the insulation into the
7.1.2 Tare the scale/load cells.
testchamber.Thismachineshallhavethroughputandhandling
7.1.3 Affix the appropriate blowing hose to the blowing
characteristics representative of that used in field applications.
machine and, if used, secure the exit hose end in the hose
6.2 Blowing Hose—the machine shall utilize three (3) 50 ft
nozzle stand.
(15 m) sections to make up 150 ft (46 m) of a minimum of 3
7.1.4 Set the blowing machine with the desired gear, gate
in.(76mm)diameterflexiblecorrugatedblowinghose.Atleast
opening,
...




Questions, Comments and Discussion
Ask us and Technical Secretary will try to provide an answer. You can facilitate discussion about the standard in here.
Loading comments...