ASTM C1433-20e1
(Specification)Standard Specification for Precast Reinforced Concrete Monolithic Box Sections for Culverts, Storm Drains, and Sewers
Standard Specification for Precast Reinforced Concrete Monolithic Box Sections for Culverts, Storm Drains, and Sewers
ABSTRACT
This specification deals with the standards for single-cell precast reinforced concrete box sections cast monolithically and proposed for use in the construction of culverts and for the conveyance of storm water industrial sewage. The reinforced concrete shall be composed of cementitious materials, mineral aggregates and water, in which steel has been embedded. The aggregates shall be sized, graded, and mixed to the proportion that will produce a homogeneous mixture. The box sections shall also undergo steam curing, water curing, and membrane curing.
SCOPE
1.1 This specification covers single-cell precast reinforced concrete box sections cast monolithically and intended to be used for the construction of culverts and for the conveyance of storm water industrial wastes and sewage.
1.2 This specification is the companion to SI Specification C1433M; therefore, no SI equivalents are shown in this specification.
Note 1: This specification is primarily a manufacturing and purchasing specification. However, standard designs are included and the criteria used to develop these designs are given in Appendix X1. The successful performance of this product depends upon the proper selection of the box section, bedding, backfill, and care that the installation conforms to the construction specifications. The purchaser of the precast reinforced concrete box sections specified herein is cautioned that proper correlation of the loading conditions and the field requirements with the box section specified, and provision for inspection at the construction site, are required.
1.3 This international standard was developed in accordance with internationally recognized principles on standardization established in the Decision on Principles for the Development of International Standards, Guides and Recommendations issued by the World Trade Organization Technical Barriers to Trade (TBT) Committee.
General Information
- Status
- Published
- Publication Date
- 14-Nov-2020
- Technical Committee
- C13 - Concrete Pipe
- Drafting Committee
- C13.07 - Acceptance Specifications and Precast Concrete Box Sections
Relations
- Effective Date
- 15-Apr-2024
- Refers
ASTM C31/C31M-24a - Standard Practice for Making and Curing Concrete Test Specimens in the Field - Effective Date
- 01-Apr-2024
- Effective Date
- 01-Feb-2024
- Refers
ASTM C1677-11a(2024) - Standard Specification for Joints for Concrete Box, Using Rubber Gaskets - Effective Date
- 01-Jan-2024
- Refers
ASTM C31/C31M-24 - Standard Practice for Making and Curing Concrete Test Specimens in the Field - Effective Date
- 01-Jan-2024
- Refers
ASTM C39/C39M-23 - Standard Test Method for Compressive Strength of Cylindrical Concrete Specimens - Effective Date
- 01-Dec-2023
- Effective Date
- 01-Oct-2023
- Effective Date
- 01-Oct-2019
- Effective Date
- 01-Sep-2019
- Refers
ASTM C309-19 - Standard Specification for Liquid Membrane-Forming Compounds for Curing Concrete - Effective Date
- 15-Jun-2019
- Effective Date
- 01-Apr-2019
- Effective Date
- 01-Jan-2019
- Effective Date
- 01-Nov-2018
- Effective Date
- 01-Jun-2018
- Effective Date
- 01-May-2018
Overview
ASTM C1433-20e1: Standard Specification for Precast Reinforced Concrete Monolithic Box Sections for Culverts, Storm Drains, and Sewers establishes requirements for single-cell precast reinforced concrete box sections cast as monolithic units. This standard is essential for projects involving the construction of culverts, stormwater management systems, sewers, and conveyance of industrial wastewater. Developed by ASTM International, this specification promotes the manufacturing, purchasing, and installation of quality precast concrete box culverts and storm drain sections in compliance with internationally recognized standardization principles.
Key Topics
- Material Requirements:
- Reinforced concrete composed of cementitious materials (e.g., Portland cement, slag cement, fly ash), mineral aggregates, admixtures, and water, with embedded steel reinforcement.
- Aggregates must be properly sized and mixed for a homogeneous concrete mixture.
- Standards for permitted admixtures and fiber reinforcement are specified.
- Design and Manufacturing:
- Covers both standard and modified/special box designs, including critical dimensions, joint details, steel reinforcement placement, and construction tolerances.
- Box sections must be manufactured as single-cell monolithic units and undergo accepted curing processes: steam curing, water curing, or membrane curing.
- Quality and Acceptance:
- Performance based on compliance with compressive strength tests, dimensional checks, reinforcement placement, and inspection of finished units at the construction site.
- Comprehensive requirements for testing (cylinder and core), acceptance criteria, permissible repairs, and rejection of nonconforming sections.
- Installation and Applications:
- Emphasizes correct installation procedures and soil-structure interactions essential for structural performance.
- Recommends compliance with accepted installation practices to ensure compatibility with the intended design loads and field conditions.
Applications
Precast reinforced concrete box sections manufactured under ASTM C1433-20e1 are widely used in public and private infrastructure projects, including:
- Highway and Rail Culverts:
Durable precast box culverts that efficiently convey water beneath roadways, embankments, and rail lines. - Storm Drains and Sewers:
Reliable for the management of stormwater and industrial wastewater, ensuring robust performance under varying earth covers and live load conditions. - Underground Passages:
Applicable in situations requiring pedestrian or animal crossings under roadways, offering high strength and longevity. - Industrial Conveyance:
Suitable for transporting industrial effluents where structural integrity and watertightness are critical.
Using box sections that comply with ASTM C1433 provides benefits such as high structural load capacity, consistent quality, ease of installation, and reduced construction times. The specification ensures that critical factors-such as material properties, joint integrity, reinforcement, and proper curing-are met to maximize lifespan and performance in demanding infrastructure environments.
Related Standards
Projects utilizing ASTM C1433-20e1 should reference additional ASTM standards for complementary requirements, including:
- ASTM C1433M: SI companion specification.
- ASTM C31/C31M: Making and curing concrete test specimens in the field.
- ASTM C33/C33M: Aggregates for concrete.
- ASTM C39/C39M: Compressive strength of concrete.
- ASTM C150/C150M, C595/C595M: Portland and blended hydraulic cements.
- ASTM C494/C494M: Chemical admixtures for concrete.
- ASTM C990, C1677: Joints for concrete structures.
- ASTM A615/A615M, A706/A706M, A1064/A1064M: Steel bars and wire reinforcement for concrete.
- ASTM C1602/C1602M: Mixing water for hydraulic cement concrete.
- ASTM C497: Test methods for concrete pipes and box sections.
Other relevant references include AASHTO Standard Specifications for Highway Bridges for load and design criteria. Implementing ASTM C1433-20e1 with these referenced standards ensures comprehensive quality control, safety, and compliance within concrete culvert and stormwater system projects.
Buy Documents
ASTM C1433-20e1 - Standard Specification for Precast Reinforced Concrete Monolithic Box Sections for Culverts, Storm Drains, and Sewers
Get Certified
Connect with accredited certification bodies for this standard
Institut za varilstvo d.o.o. (Welding Institute)
Slovenia's leading welding institute since 1952. ISO 3834, EN 1090, pressure equipment certification, NDT personnel, welder qualification. Only IIW Au
Sponsored listings
Frequently Asked Questions
ASTM C1433-20e1 is a technical specification published by ASTM International. Its full title is "Standard Specification for Precast Reinforced Concrete Monolithic Box Sections for Culverts, Storm Drains, and Sewers". This standard covers: ABSTRACT This specification deals with the standards for single-cell precast reinforced concrete box sections cast monolithically and proposed for use in the construction of culverts and for the conveyance of storm water industrial sewage. The reinforced concrete shall be composed of cementitious materials, mineral aggregates and water, in which steel has been embedded. The aggregates shall be sized, graded, and mixed to the proportion that will produce a homogeneous mixture. The box sections shall also undergo steam curing, water curing, and membrane curing. SCOPE 1.1 This specification covers single-cell precast reinforced concrete box sections cast monolithically and intended to be used for the construction of culverts and for the conveyance of storm water industrial wastes and sewage. 1.2 This specification is the companion to SI Specification C1433M; therefore, no SI equivalents are shown in this specification. Note 1: This specification is primarily a manufacturing and purchasing specification. However, standard designs are included and the criteria used to develop these designs are given in Appendix X1. The successful performance of this product depends upon the proper selection of the box section, bedding, backfill, and care that the installation conforms to the construction specifications. The purchaser of the precast reinforced concrete box sections specified herein is cautioned that proper correlation of the loading conditions and the field requirements with the box section specified, and provision for inspection at the construction site, are required. 1.3 This international standard was developed in accordance with internationally recognized principles on standardization established in the Decision on Principles for the Development of International Standards, Guides and Recommendations issued by the World Trade Organization Technical Barriers to Trade (TBT) Committee.
ABSTRACT This specification deals with the standards for single-cell precast reinforced concrete box sections cast monolithically and proposed for use in the construction of culverts and for the conveyance of storm water industrial sewage. The reinforced concrete shall be composed of cementitious materials, mineral aggregates and water, in which steel has been embedded. The aggregates shall be sized, graded, and mixed to the proportion that will produce a homogeneous mixture. The box sections shall also undergo steam curing, water curing, and membrane curing. SCOPE 1.1 This specification covers single-cell precast reinforced concrete box sections cast monolithically and intended to be used for the construction of culverts and for the conveyance of storm water industrial wastes and sewage. 1.2 This specification is the companion to SI Specification C1433M; therefore, no SI equivalents are shown in this specification. Note 1: This specification is primarily a manufacturing and purchasing specification. However, standard designs are included and the criteria used to develop these designs are given in Appendix X1. The successful performance of this product depends upon the proper selection of the box section, bedding, backfill, and care that the installation conforms to the construction specifications. The purchaser of the precast reinforced concrete box sections specified herein is cautioned that proper correlation of the loading conditions and the field requirements with the box section specified, and provision for inspection at the construction site, are required. 1.3 This international standard was developed in accordance with internationally recognized principles on standardization established in the Decision on Principles for the Development of International Standards, Guides and Recommendations issued by the World Trade Organization Technical Barriers to Trade (TBT) Committee.
ASTM C1433-20e1 is classified under the following ICS (International Classification for Standards) categories: 23.040.50 - Pipes and fittings of other materials. The ICS classification helps identify the subject area and facilitates finding related standards.
ASTM C1433-20e1 has the following relationships with other standards: It is inter standard links to ASTM A1064/A1064M-24, ASTM C31/C31M-24a, ASTM C989/C989M-24, ASTM C1677-11a(2024), ASTM C31/C31M-24, ASTM C39/C39M-23, ASTM C1619-23, ASTM C497-19a, ASTM C990-09(2019), ASTM C309-19, ASTM C150/C150M-19, ASTM C497-19, ASTM A1064/A1064M-18, ASTM C497-18b, ASTM C497-18a. Understanding these relationships helps ensure you are using the most current and applicable version of the standard.
ASTM C1433-20e1 is available in PDF format for immediate download after purchase. The document can be added to your cart and obtained through the secure checkout process. Digital delivery ensures instant access to the complete standard document.
Standards Content (Sample)
This international standard was developed in accordance with internationally recognized principles on standardization established in the Decision on Principles for the
Development of International Standards, Guides and Recommendations issued by the World Trade Organization Technical Barriers to Trade (TBT) Committee.
´1
Designation:C1433 −20
Standard Specification for
Precast Reinforced Concrete Monolithic Box Sections for
Culverts, Storm Drains, and Sewers
This standard is issued under the fixed designation C1433; the number immediately following the designation indicates the year of
original adoption or, in the case of revision, the year of last revision.Anumber in parentheses indicates the year of last reapproval.A
superscript epsilon (´) indicates an editorial change since the last revision or reapproval.
ε NOTE—Editorially corrected references in 7.3 in July 2022.
1. Scope* A706/A706MSpecification for Deformed and Plain Low-
Alloy Steel Bars for Concrete Reinforcement
1.1 This specification covers single-cell precast reinforced
C31/C31MPractice for Making and Curing Concrete Test
concrete box sections cast monolithically and intended to be
Specimens in the Field
used for the construction of culverts and for the conveyance of
C33/C33MSpecification for Concrete Aggregates
storm water industrial wastes and sewage.
C39/C39MTest Method for Compressive Strength of Cylin-
1.2 This specification is the companion to SI Specification
drical Concrete Specimens
C1433M; therefore, no SI equivalents are shown in this
C150/C150MSpecification for Portland Cement
specification.
C260/C260MSpecification for Air-Entraining Admixtures
for Concrete
NOTE 1—This specification is primarily a manufacturing and purchas-
ing specification. However, standard designs are included and the criteria
C309Specification for Liquid Membrane-Forming Com-
used to develop these designs are given in Appendix X1. The successful
pounds for Curing Concrete
performance of this product depends upon the proper selection of the box
C494/C494MSpecification for Chemical Admixtures for
section, bedding, backfill, and care that the installation conforms to the
Concrete
construction specifications. The purchaser of the precast reinforced
C497 Test Methods for Concrete Pipe, Concrete Box
concrete box sections specified herein is cautioned that proper correlation
of the loading conditions and the field requirements with the box section
Sections, Manhole Sections, or Tile
specified, and provision for inspection at the construction site, are
C595/C595MSpecification for Blended Hydraulic Cements
required.
C618Specification for Coal Fly Ash and Raw or Calcined
1.3 This international standard was developed in accor-
Natural Pozzolan for Use in Concrete
dance with internationally recognized principles on standard-
C822Terminology Relating to Concrete Pipe and Related
ization established in the Decision on Principles for the
Products
Development of International Standards, Guides and Recom-
C990Specification for Joints for Concrete Pipe, Manholes,
mendations issued by the World Trade Organization Technical
and Precast Box Sections Using Preformed Flexible Joint
Barriers to Trade (TBT) Committee.
Sealants
C989/C989MSpecification for Slag Cement for Use in
2. Referenced Documents
Concrete and Mortars
2.1 ASTM Standards:
C1017/C1017MSpecification for Chemical Admixtures for
A615/A615MSpecificationforDeformedandPlainCarbon-
Use in Producing Flowing Concrete (Withdrawn 2022)
Steel Bars for Concrete Reinforcement
C1116/C1116MSpecification for Fiber-Reinforced Concrete
A1064/A1064MSpecification for Carbon-Steel Wire and
C1602/C1602MSpecification for Mixing Water Used in the
Welded Wire Reinforcement, Plain and Deformed, for
Production of Hydraulic Cement Concrete
Concrete
C1619Specification for Elastomeric Seals for Joining Con-
crete Structures
C1675Practice for Installation of Precast Reinforced Con-
This specification is under the jurisdiction of ASTM Committee C13 on
Concrete Pipeand is the direct responsibility of Subcommittee C13.07 on Accep-
creteMonolithicBoxSectionsforCulverts,StormDrains,
tance Specifications and Precast Concrete Box Sections.
and Sewers
Current edition approved Nov. 15, 2020. Published November 2020. Originally
C1677Specification for Joints for Concrete Box, Using
approved in 1999. Last previous edition approved in 2019 as C1433–19. DOI:
10.1520/C1433-20E01. Rubber Gaskets
For referenced ASTM standards, visit the ASTM website, www.astm.org, or
contact ASTM Customer Service at service@astm.org. For Annual Book of ASTM
Standards volume information, refer to the standard’s Document Summary page on The last approved version of this historical standard is referenced on
the ASTM website. www.astm.org.
*A Summary of Changes section appears at the end of this standard
Copyright © ASTM International, 100 Barr Harbor Drive, PO Box C700, West Conshohocken, PA 19428-2959. United States
´1
C1433−20
2.2 AASHTO Standard: 6.3 Aggregates—Aggregates shall conform to Specification
Standard Specifications for Highway Bridges C33/C33M,exceptthattherequirementsforgradationshallnot
apply.
3. Terminology
6.4 Admixtures—The following admixtures and blends are
3.1 Definitions—Fordefinitionsoftermsrelatingtoconcrete
allowable:
pipe, see Terminology C822.
6.4.1 Air-entraining admixture conforming to Specification
C260/C260M;
4. Types
6.4.2 Chemical admixture conforming to Specification
4.1 Precast reinforced concrete box sections manufactured
C494/C494M;
in accordance with this specification shall be one of two types
6.4.3 Chemical admixture for use in producing flowing
identified in Table 1 and Table 2, and shall be designated by
concrete conforming to Specification C1017/C1017M; and
type, span, rise, and design earth cover.
6.4.4 Chemical admixture or blend approved by the owner.
5. Basis of Acceptance
6.5 Steel Reinforcement—Reinforcement shall consist of
5.1 Acceptability of the box sections produced in accor- welded wire reinforcement conforming to Specification
dance with Section 7 shall be determined by the results of the A1064/A1064M. Circumferential reinforcement areas in
concretecompressivestrengthtestsdescribedinSection 11,by Tables 1 and 2 are based solely on the use of welded wire
the material requirements described in Section 6, and by reinforcement, refer to 12.6 if alternate steel designs utilizing
inspection of the finished box sections. steel bars, Grade 60, in conjunction with or in lieu of welded
wire reinforcement are to be submitted for the owner’s
5.2 Box sections shall be considered ready for acceptance
approval. Longitudinal distribution reinforcement shall be
when they conform to the requirements of this specification.
allowed to consist of welded wire reinforcement or deformed
billet-steel bars conforming to either Specification A615/
6. Material
A615M, Grade 60, or Specification A706/A706M, Grade 60.
6.1 Reinforced Concrete—The reinforced concrete shall
consist of cementitious materials, mineral aggregates, admix- 6.6 Fibers—Syntheticfibersandnonsyntheticfibersshallbe
tures if used, and water in which steel has been embedded in allowed to be used, at the manufacturer’s option, in concrete
such a manner that the steel and concrete act together. pipeasanonstructuralmanufacturingmaterial.Syntheticfibers
(TypeIIandTypeIII)andnonsyntheticfiber(Type1)designed
6.2 Cementitious Materials:
andmanufacturedspecificallyforuseinconcreteandconform-
6.2.1 Cement—Cement shall conform to the requirements
ing to the requirements of Specification C1116/C1116M shall
for portland cement of Specification C150/C150M or shall be
be accepted.
portlandblast-furnaceslagcement,portland-limestonecement,
or portland-pozzolan cement conforming to the requirements
6.7 Water—Water used in the production of concrete shall
of Specification C595/C595M, except that the pozzolan con-
be potable or non-potable water that meets the requirements of
stituent in the Type IP portland-pozzolan cement shall be fly
Specification C1602/C1602M.
ash.
6.2.2 Fly Ash—Flyashshallconformtotherequirementsof
7. Design
Specification C618, Class F or Class C.
7.1 Design Tables—The box section dimensions, compres-
6.2.3 Slag Cement—Slag cement shall conform to the re-
sivestrengthoftheconcrete,andreinforcementdetailsshallbe
quirementsofGrade100or120ofSpecificationC989/C989M.
as prescribed in Table 1 or Table 2, Table A, and Figs. 1-14,
6.2.4 Allowable Combinations of Cementitious Materials—
subject to the provisions of Section 12. Table 1 sections are
The combination of cementitious materials used in concrete
designed for combined earth dead load and AASHTO HS20
shall be one of the following:
live load conditions. Table 2 sections are designed for com-
6.2.4.1 Portland cement only,
bined earth dead load and interstate live load conditions when
6.2.4.2 Portland blast-furnace slag cement only,
the interstate live loading exceeds the HS20 live loading.
6.2.4.3 Portland pozzolan cement only,
Criteria used to develop Tables 1 and 2 are given in Appendix
6.2.4.4 Portland-limestone cement only,
X1.
6.2.4.5 A combination of portland cement or portland-
limestone cement and fly ash,
NOTE 2—The tabular designs in this specification were prepared
6.2.4.6 A combination of portland cement or portland-
according to AASHTO Standard Specifications for Highway Bridges,
1997 Edition.
limestone cement and slag cement,
NOTE 3—(Advisory)—The reinforcing areas shown in Table 1 are
6.2.4.7 A combination of portland cement or portland-
based on the design earth covering and live load conditions described
limestone cement, slag cement, and fly ash, or
withinthisstandard.Dependingonthemeansandmethodsused,handling
6.2.4.8 Acombination of portland-pozzolan cement and fly
and installation loads by either the manufacturer or contractor can induce
ash.
stresses not considered within the development of the tables. These loads
could require additional steel reinforcement beyond the minimums shown
within the standard. These handling and installation loads should be
Available from American Association of State Highway and Transportation consideredinthefinaldesignofthefurnishedprecastconcreteboxsection
Officials (AASHTO), 444 N. Capitol St., NW, Suite 249, Washington, DC 20001. prior to fabrication.
´1
C1433−20
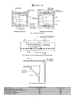
FIG. 1Typical Box Sections
FIG. 2Section A-A Top and Bottom Slab Joint Reinforcement
FIG. 3Detail Inner Reinforcement
Table A—Minimum Dimensions of Bends
Bar Size and Use Minimum Radius Minimum Diameter
Welded Wire Reinforcement—Less than W/D 6 2.0d 4.0d
b b
Welded Wire Reinforcement—W/D 6 and Larger Wire 4.0d 8.0d
b b
No. 3 Through No. 5—General 3.0d 6.0d
b b
No. 3 Through No. 5—Stirrups and Ties 2.0d 4.0d
b b
No. 6 Through No. 8—General 3.0d 6.0d
b b
´1
C1433−20
FIG. 6Detail Option
FIG. 4Detail Option (see Fig. 3)
FIG. 5Detailed Reinforcement Arrangement
FIG. 7Alternate Detail
7.2 Modified and Special Designs for Monolithic
Structures—The manufacturer shall request approval by the
7.3 Placement of Reinforcement—The cover of concrete
purchaser of modified designs that differ from the designs in
overthecircumferentialreinforcementshallbe1in.,subjectto
Section 7; or special designs for sizes and loads other than
the provisions of Section 12. The inside circumferential rein-
those shown in Tables 1 and 2. When spans are required that
forcement shall extend into the tongue portion of the joint and
exceed those prescribed in Table 1 or Table 2, the design shall
the outside circumferential reinforcement shall extend into the
be based on the criteria given in Appendix X1. In addition, the
groove portion of the joint. The clear distance of the end
span shall be designed to have adequate stiffness to limit
circumferentialwiresshallbenotlessthan ⁄2in.normorethan
deflection as given in Section 8.9 of AASHTO Standard
2in. from the ends of the box section. Reinforcement shall be
Specification for Highway Bridges (latest edition).
assembled utilizing any combination of single or multiple
NOTE4—Constructionprocedures,suchasheavyequipmentmovement
or stockpiling of material over or adjacent to a box structure, can induce layers of welded-wire reinforcement. Multiple layers shall not
higher loads than those used for the structure’s final design. These
be separated by more than the thickness of one longitudinal
construction and surcharge loads are approved as long as the final steel
wire plus ⁄4in. The multiple layers shall be fastened together
areas in the box are larger than those the box will experience in the final
toformasinglecage.Allotherspecificationrequirementssuch
installation condition. The design engineer should take into consideration
as laps, welds, and tolerances of placement in the wall of the
the potential for higher loads induced by construction procedures in
determining the final design of the box structure. box section shall apply to this method of fabricating a
´1
C1433−20
FIG. 10Alternate Detail
FIG. 8Alternate Detail
FIG. 11Alternate Detail
When selecting this option, the minimum clear cover for the
welded wire fabric over the face of the haunches shall be 1in.
It is permissible to just shape, remove and replace the section
of cage that interferes with the shape of the joint or miter the
wire bars in the joints if necessary, to conform to the shape of
FIG. 9Alternate Detail
the joint formers provided proper laps and radius requirements
are adhered to. In no case shall the maximum cover of the
reinforcement cage. A common reinforcement unit may be reinforcing across the face of the haunches be more than 3in.
utilized for bothA or (orA ) andA , and also for bothA The welded-wire reinforcement shall be composed of circum-
s2 s3 s4 s7
(or A ) and A , with the largest area requirement governing, ferential and longitudinal wires meeting the spacing require-
s8 s1
bending the reinforcement at the corners and waiving the ments of 7.4 and shall contain sufficient longitudinal wires
extension requirements of Fig. 3 and Fig. 5 (see Fig. 4). When extending through the box section to maintain the shape and
a single cage of multiple circumferential steel areas is used for position of reinforcement. Longitudinal distribution reinforce-
A (or A ) and A reinforcement, the slab or wall requiring ment may be welded-wire reinforcement or deformed billet-
s2 s3 s4
the larger steel area shall have this additional circumferential steelbarsandshallmeetthespacingrequirementsof7.4.Ifthe
steelextendingforthefulllengthoftheslaborwall.Ifthejoint longitudinal wires will be in a bend and if the welded wire
configuration requires or at the option of the manufacturer, reinforcementcannotbebentwiththelongitudinalwirestothe
Figs. 11-14 provide a permissible mitered INNER cage detail. outside of the bend, bends with inside diameters less than
´1
C1433−20
FIG. 12Alternate Detail
FIG. 14Alternate Detail
ential wires that are not less than 18in. apart along the
longitudinal axis of the box section. Also, when spacers are
welded to circumferential wires, they shall be welded only to
theseselectedcircumferentialwires.Thereshallbenowelding
to other circumferential wires, except it is not prohibited for
A to be lapped and welded at any location or connected by
s4
weldingatthecornerstoA andA .IfA orA areprovided
s2 s3 s2 s3
as separate sheets and crossA in the region of the haunch, to
s4
facilitate cage construction the circumferential wires of each
cage must be in contact as shown in Fig. 3, Fig. 5, Fig. 9, Fig.
10, Fig. 11, and Fig. 12. WhenA is bent at one or both ends,
s4
clear distance shall be maintained at the tip of the haunch as
FIG. 13Alternate Detail shown in Fig. 9 or Fig. 10. No welds shall be made to A or
s2
A circumferential wires in the middle third of the span. (See
s3
Fig. 15 for welding restrictions.) When distribution reinforce-
ment is to be fastened to a cage by welding, it shall be welded
8.0d shall not be located less than 4.0d from the nearest
b b
only to longitudinal wires and only near the ends of the box
welded intersection. When bending welded-wire
section. If welds are made to Grade 60 reinforcing bars,
reinforcement, longitudinal wires do not need to follow the
weldable bars conforming to Specification A706/A706M shall
maximum spacing requirements of 7.4 within the bend radius.
be used. The spacing center to center of the circumferential
Amaximumspaceof16in.ispermittedatthebendlocationto
wires shall not be less than 2in. nor more than 4in. The
prevent localized fractures at weld intersections. The ends of
spacing center to center of the longitudinal wires shall not be
the longitudinal distribution reinforcement shall not be more
more than 8in.
than2in.fromtheendsoftheboxsection.Theexposureofthe
ends of longitudinals, stirrups, and spacers used to position the
7.5 Extension of A Reinforcing at the Haunch—A and
s2/3 s2
reinforcement shall not be a cause for rejection.
A reinforcing shall meet the following requirements in the
s3
7.4 Laps, Welds, and Spacing—Splices in the circumferen- region of the haunch:
tial reinforcement shall be made by lapping. The overlap (1)Starting point for extension length for A /A to be
s2 s3
measured between the outermost longitudinal wires of each defined as the tip of the haunch.
reinforcement sheet shall not be less than the spacing of the (2)The distance from the starting point to the last cross-
longitudinal wires plus 2in. but not less than 10in. If A is wire of a mesh sheet excluding ends of wires beyond the last
s1
extended to the middle of either slab and connected, welded crosswire, shall be a minimum of one crosswire space plus
splices are not prohibited in the connection. When used, A 2in.
s7
and A shall be lapped with A as shown in Fig. 5 or Fig. 6 (3)Wirelengthbeyondthelastcrosswiremustbesufficient
s8 s1
(see also Figs. 7-14). If welds are made to circumferential for the A and A layer to at a minimum cross the A layer
s2 s3 s4
reinforcement, they shall be made only to selected circumfer- if provided as separate sheets.
´1
C1433−20
FIG. 15Critical Zones of High Stress Where Welding is Restricted
(4)When A or A sheets are provided in combination sealant, or fabric-wrapped joints. For joints conforming to
s2 s3
withA as a nested sheet, the sheet may be bent in one of the Specification C1677, the gasket shall be in accordance with
s4
following configurations or as approved by the owner: Specification C1619 Class C requirements or for oil-resistant
(a)Single 90 degree bend meeting the minimum bend
properties, the gasket shall meet Class D requirements.
diameter requirements of Table A with appropriate overlap
9.3 Outer cage circumferential reinforcement as shown in
provided with A sheets in the wall.
s4
Figs. 1 and 2 shall be placed in the top and bottom slabs at the
(b)Double 45 degree bend meeting minimum bend di-
grooveportionofthejointwhenA isnotcontinuousoverthe
s1
ameter requirements of Table A to allow the reinforcement to
span. The minimum area of such reinforcement in square
follow the angle haunch with appropriate clear cover. For this
inchesperlinearfootofboxsectionlengthshallbethesameas
option, nested wires providing A steel area shall extend
s2
the areas specified for A in Tables 1 and 2.
s4
beyond the midpoint of the haunch.
(c)Single or multiple radius bend meeting minimum
10. Manufacture
benddiameterrequirementsofTableAandbenttofollowjoint
and or haunch dimensions with appropriate clear cover.
10.1 Mixture—The aggregates shall be sized, graded,
(d)It is not prohibited to trim mesh cages within the
proportioned,andmixedwithsuchproportionsofcementitious
limits of a joint when the cage does not follow the joint.
materials and water as will produce a thoroughly-mixed
Adequate replacement steel must be provided within the
concrete of such quality that the pipe will conform to the test
trimmed area to maintain appropriate reinforcing area and
anddesignrequirementsofthisspecification.Allconcreteshall
appropriate clear cover.
have a water-cementitious materials ratio not exceeding 0.53
by weight. Cementitious materials shall be as specified in 6.2
8. Installation
and shall be added to the mix in a proportion not less than
8.1 The successful performance of this product depends
470lb⁄yd unless mix designs with a lower cementitious
upon proper installation as the soil/structure interaction is
materialscontentdemonstratethatthequalityandperformance
considered in the design. The effects of this interaction are
of the pipe meet the requirements of this specification.
highlighted in Note 1 and Note 4. The precast reinforced
10.2 Curing—The box sections shall be cured for a suffi-
concrete box section/soil system shall be constructed to con-
cient length of time so that the concrete will develop the
form to Practice C1675 for the installation conditions assumed
specified compressive strength in 28days or less. Any one of
for design and in accordance with the dimensions and require-
the following methods of curing or combinations thereof shall
ments specified or shown on the plans. The tabular steel
be allowed to be used:
designs in this standard assume compacted sidefill. See Ap-
pendixX1foradditionaldetailsondesignassumptionsusedto 10.2.1 Steam Curing—The box sections shall be allowed to
develop the design tables. be low pressure, steam-cured by a system that will maintain a
moist atmosphere.
9. Joints
10.2.2 Water Curing—The box sections shall be allowed to
9.1 The precast reinforced concrete box sections shall be
bewater-curedbyanymethodthatwillkeepthesectionsmoist.
produced with tongue and groove ends. The ends shall be of
10.2.3 Membrane Curing—A sealing membrane conform-
suchdesignandtheendsoftheboxsectionssoformedthatthe
ing to the requirements of Specification C309 shall be allowed
sections can be laid together to make a continuous line of box
to be applied and shall be left intact until the required concrete
sections compatible with the permissible variations given in
compressive strength is attained. The concrete temperature at
Section 12.
the time of application shall be within 10°F of the atmospheric
9.2 JointsmayconformtotherequirementsofSpecification temperature. All surfaces shall be kept moist prior to the
C990, Specification C1677, or other established joint type as application of the compounds and shall be damp when the
approved by the owner including, but not limited to, mortar, compound is applied.
´1
C1433−20
10.3 Forms—The forms used in manufacture shall be suf- 11.3.2 Three cores shall be cut from a section selected at
ficiently rigid and accurate to maintain the box section dimen- randomfromeachgroupof15boxsectionsorfractionthereof,
sions within the permissible variations given in Section 12.All of a single size from each continuous production run.
casting surfaces shall be of smooth nonporous material.
11.3.3 Acceptability by Core Tests:
11.3.3.1 The compressive strength of the concrete in each
10.4 Handling—Handling devices or holes shall be permit-
group of box sections defined as the average of three cores
ted in each box section for the purpose of handling and laying.
taken at random from the subject group, is equal to or greater
than 85% of the required strength of the concrete with no one
11. Physical Requirements
core less than 75% of the required strength.
11.1 Type of Test Specimen—Compression tests for deter-
11.3.3.2 If the compressive strength of the three cores does
mining concrete compressive strength shall be allowed to be
not meet the requirements of 11.3.3.1, the sections from which
made on either standard rodded concrete cylinders or concrete
the cores were taken shall be rejected. Two box sections from
cylinders compacted and cured in like manner as the box
theremainderofthegroupshallbeselectedatrandom,andone
sections, or on cores drilled from the box section.
core shall be taken from each. If both cores have a strength
equal to or great than 85% of the required strength of the
11.2 Compression Testing of Cylinders:
concrete, the remainder of the group is acceptable. If the
11.2.1 Cylinders shall be obtained and tested for compres-
compressive strength of either of the two cores tested is less
sive strength in accordance with the provisions of Practice
than 85% of the required strength of the concrete, the
C31/C31M and Test Method C39/C39M, except that the
remainder of the group of box sections shall be rejected or, at
cylinders may be prepared by methods comparable to those
the option of the manufacturer, each box section of the entire
used to consolidate and cure the concrete in the actual box
group shall be cored and accepted individually, and any of
section manufactured. Cylindrical specimens of sizes other
these box sections that have cores with less than 85% of the
than6by12in.maybeusedprovidedallotherrequirementsof
required strength of the concrete shall be rejected.
Practice C31/C31M are met. If the concrete is of a consistency
too stiff for compaction by rodding or internal vibration, the
11.4 Plugging Core Holes—Thecoreholesshallbeplugged
alternate method described in Section II ofTest Methods C497
and sealed by the manufacturer in a manner such that the box
may be used. Cylinders shall be exposed to the same curing
section will meet all of the test requirements of this specifica-
conditions as the manufactured box sections and shall remain
tion. Box sections so sealed shall be considered as satisfactory
with the sections until tested.
for use.
11.2.2 Prepare not less than three test cylinders from each
11.5 Test Equipment—Every manufacturer furnishing box
concrete mix used within a group (one day’s production) of
sections under this specification shall furnish all facilities and
box sections.
personnel necessary to carry out the tests required.
11.2.3 Acceptability on the Basis of Cylinder Test Results:
11.2.3.1 When the average compressive strength of two
12. Permissible Variations
cylinders tested for a group is equal to or greater than the
12.1 Internal Dimensions—The internal dimensions mea-
required concrete strength, and no cylinder tested has a
sured between parallel faces of the span or rise at any point
compressive strength less than 90% of the required concrete
perpendiculartothefaceofthemeasuredsectionshallnotvary
strength, the compressive strength of concrete in the group of
by more than 1% or 2in. from the design dimensions,
box sections shall be accepted.
whichever is less, for dimension greater that 4ft and shall not
11.2.3.2 If one of the cylinders tested has a compressive
vary by more than ⁄2in. for dimensions less than or equal to
strength less than 90% but more than 80% of the required
4ft. Measurements shall be taken at the midpoint of the span
concrete strength, a third cylinder from the group shall be
or rise and 12in. from each end of the section. The haunch
tested. If the third cylinder compressive strength is equal to or
dimensions shall not vary more than ⁄4in. from the design
greater than the required concrete strength, and the average
dimensions.
compressive strength of all three cylinders tested is equal to or
12.2 Slab and Wall Thickness—The slab and wall thickness
greater than the required concrete strength, then the compres-
sive strength of concrete in the group of box sections shall be shall not be less than that shown in the design by more than
5%or ⁄16in., whichever is greater.Athickness more than that
accepted.
required in the design shall not be a cause for rejection.
11.2.3.3 Box sections that fail to meet the strength require-
ments under 11.2 shall not be retested under 11.3 without the
12.3 Length of Opposite Surfaces—Variations in laying
approval of the purchaser.
lengthsoftwooppositesurfacesoftheboxsectionshallnotbe
11.2.3.4 When the compressive strength of the cylinders is 1 5
more than ⁄8in.⁄ft of internal span, with a maximum of ⁄8in.
unavailable, the acceptability of the lot shall be determined in
forallsizesthrough7ftinternalspan,andamaximumof ⁄4in.
accordance with the provisions of 11.3.
for internal spans greater than 7ft, except where beveled ends
for laying of curves are specified by the purchaser.
11.3 Compression Testing of Cores:
11.3.1 Cores shall be obtained and tested for compressive 12.4 Length of Section—Theunderruninlengthofasection
strength in accordance with the provisions of Test Methods shall not be more than ⁄8in.⁄ft of length with a maximum of
C497. ⁄2in. in any box section.
´1
C1433−20
12.5 Position of Reinforcement—Themaximumvariationin acceptable if, in the opinion of the purchaser, the repaired box
the position of the reinforcement or 5-in. or less slab and wall section conforms to the requirements of this specification.
thickness shall be 6 ⁄8in., and for greater than 5-in. slab and
wall thickness shall be 6 ⁄2in. In no case, however, shall the 14. Inspection
coveroverthereinforcementbelessthan ⁄8in.,asmeasuredto
14.1 The quality of materials, the process of manufacture,
the internal surface or the external surface except the cover
and the finished box sections shall be subject to inspection by
over the reinforcement for the external surface of the top slab
the purchaser. The method of marking as to acceptance or
for boxes with under 2ft of cover shall not be less than 1 ⁄8in.
rejection of the box sections shall be agreed upon, prior to
The preceding minimum cover limitation does not apply at the
inspection, between the owner and the manufacturer.
mating surfaces of the joint.
12.5.1 Joint Reinforcement for Rubber Gasket Joints—Inno
15. Rejection
case, however, shall the cover over the reinforcement be less
1 1
15.1 Boxsectionsshallbesubjecttorejectiononaccountof
than ⁄4in. as measured to the end of the spigot or ⁄2in. as
failure to conform to any of the specification requirements.
measured to any other surface.
Individual box sections shall be allowed to be rejected because
12.6 Area of Reinforcement—The areas of steel reinforce-
of any of the following:
ment shall be the design steel areas as shown in Tables 1 and
15.1.1 Fractures or cracks passing through the wall, except
2. Steel areas greater than those required shall not be cause for
for a single end crack that does not exceed the depth of the
rejection. The permissible variation in diameter of any wire in
joint,
finished reinforcement shall conform to the tolerances pre-
15.1.2 Defects that indicate mixing and molding not in
scribedforthewirebeforefabricationbySpecificationA1064/
compliance with 10.1, or honeycombed or open texture that
A1064Masapplicable.Ifsteelbars(Grade60)areusedinlieu
would adversely affect the function of the box sections, and
of welded wire reinforcement, the steel areas presented in
15.1.3 Damaged ends, where such damage would prevent
Tables 1 and 2 shall be increased to account for the difference
making a satisfactory joint.
in steel yield strength, steel spacing, concrete cover, and crack
control between the welded wire reinforcement and steel bars.
16. Marking
12.7 Haunch Dimensions—The vertical and horizontal di-
16.1 The following information shall be legibly marked on
mensions shall be equal to the side wall thickness. If haunches
each box section by indentation, waterproof paint, or other
with other dimensions are used, a special reinforcement design
approved means:
for the actual dimensions shall be completed. In lieu of
16.1.1 Box section span, rise, table number, maximum and
performing a special design, for the specific case where the
minimum design earth cover, and specification designation.
actual haunch dimensions are larger than the standard dimen-
16.1.2 Date of manufacture, and
sions and vertical and horizontal haunch dimensions are equal,
16.1.3 Name or trademark of the manufacturer.
theA steelareashallbeincreased1%forevery5%increase
s1
inthehaunchdimensionoverthatspecifiedinTable1orTable 16.2 Each section shall be clearly marked by indentation on
2 and A and A shall be reduced by an equal percentage.
either the inner or outer surface during the process of manu-
s2 s3
facture so that the location of the top will be evident immedi-
13. Repairs
ately after the forms are stripped. In addition, the word “top”
13.1 Box sections shall be repaired, if necessary, because of shall be lettered with waterproof paint on the inside top
imperfections in manufacture or handling damage and will be surface.
TABLE 1 Design Requirements for Precast Concrete Box Sections Under Earth Dead and HS20 Live Load Conditions
NOTE 1—Design earth covers and reinforcement areas are based on the weight of a column of earth over the width of the box section as defined in
Appendix X1.
NOTE 2—Concrete design strength 5000 psi.
NOTE 3—The design earth cover indicated is the height of fill above the top of the box section. Design requirements are based on the material and soil
properties, loading data, and typical section as included in Appendix X1. For alternative or special designs, see 7.2.
NOTE 4—Design steel area in square inches per linear foot of box section at those locations which are indicated on the typical section included in Fig.
1.
NOTE 5—The top section designation, for example, 3ft by 2ft by 4in. indicates (interior horizontal span in feet) by (interior vertical rise in feet) by
(wall and slab thickness in inches).
NOTE 6—In accordance with the acceptance criteria in 7.2, the manufacturer may interpolate the steel area requirements for fill heights between noted
increments or may submit independent designs.
3ftby2ftby4in.
Design Earth
Circumferential Reinforcement Areas, in. /ft
Span Rise Top Bottom Side Haunch
Cover
ft ft in. in. in. in.
A A A A A A A “M,” in.
s1 s2 s3 s4 s5 s7 s8
ft
3 2 7644 0<2 0.17 0.38 0.21 0.10 0.19 0.17 0.14
3 2 4444 2<3 0.13 0.21 0.21 0.10 31
´1
C1433−20
3 2 4444 3-5 0.10 0.10 0.10 0.10 31
3 2 4444 10 0.10 0.10 0.10 0.10 31
3 2 4444 15 0.10 0.14 0.14 0.10 31
3 2 4444 20 0.11 0.18 0.19 0.10 31
3 2 4444 25 0.14 0.23 0.23 0.10 31
3 2 4444 30 0.17 0.27 0.27 0.10 31
3 2 4444 35 0.20 0.31 0.31 0.10 31
3ftby3ftby4in.
Design Earth
Circumferential Reinforcement Areas, in. /ft
Span Rise Top Bottom Side Haunch
Cover
ft ft in. in. in. in.
A A A A A A A “M,” in.
s1 s2 s3 s4 s5 s7 s8
ft
3 3 7644 0<2 0.17 0.40 0.23 0.10 0.20 0.17 0.14
3 3 4444 2<3 0.10 0.25 0.25 0.10 31
3 3 4444 3-5 0.10 0.10 0.11 0.10 31
3 3 4444 10 0.10 0.11 0.11 0.10 31
3 3 4444 15 0.10 0.15 0.16 0.10 31
3 3 4444 20 0.10 0.20 0.20 0.10 31
3 3 4444 25 0.10 0.24 0.25 0.10 31
3 3 4444 30 0.12 0.29 0.29 0.10 31
3 3 4444 35 0.14 0.33 0.34 0.10 31
4ftby2ftby5in.
Design Earth
Circumferential Reinforcement Areas, in. /ft
Span Rise Top Bottom Side Haunch
Cover
ft ft in. in. in. in.
A A A A A A A “M,” in.
s1 s2 s3 s4 s5 s7 s8
ft
4 2 7.5 6 5 5 0<2 0.18 0.40 0.20 0.12 0.20 0.18 0.14
4 2 5555 2<3 0.21 0.23 0.20 0.12 38
4 2 5555 3-5 0.12 0.12 0.12 0.12 38
4 2 5555 10 0.12 0.12 0.13 0.12 38
4 2 5555 15 0.14 0.17 0.18 0.12 38
4 2 5555 20 0.19 0.23 0.23 0.12 38
4 2 5555 25 0.23 0.28 0.28 0.12 38
4 2 5555 30 0.28 0.33 0.33 0.12 38
4 2 5555 35 0.33 0.38 0.39 0.12 38
4ftby3ftby5in.
Design Earth
Circumferential Reinforcement Areas, in. /ft
Span Rise Top Bottom Side Haunch
Cover
ft ft in. in. in. in.
A A A A A A A “M,” in.
s1 s2 s3 s4 s5 s7 s8
ft
4 3 7.5 6 5 5 0<2 0.18 0.45 0.23 0.12 0.22 0.18 0.14
4 3 5555 2<3 0.16 0.28 0.25 0.12 38
4 3 5555 3-5 0.12 0.12 0.13 0.12 38
4 3 5555 10 0.12 0.14 0.15 0.12 38
4 3 5555 15 0.12 0.20 0.20 0.12 38
4 3 5555 20 0.14 0.26 0.26 0.12 38
4 3 5555 25 0.17 0.32 0.32 0.12 38
4 3 5555 30 0.21 0.38 0.38 0.12 38
4 3 5555 35 0.25 0.44 0.44 0.12 38
4ftby4ftby5in.
Design Earth
Circumferential Reinforcement Areas, in. /ft
Span Rise Top Bottom Side Haunch
Cover
ft ft in. in. in. in.
A A A A A A A “M,” in.
s1 s2 s3 s4 s5 s7 s8
ft
4 4 7.5 6 5 5 0<2 0.18 0.47 0.25 0.12 0.23 0.18 0.14
4 4 5555 2<3 0.13 0.31 0.28 0.12 38
4 4 5555 3-5 0.12 0.14 0.15 0.12 38
4 4 5555 10 0.12 0.15 0.16 0.12 38
4 4 5555 15 0.12 0.21 0.22 0.12 38
4 4 5555 20 0.12 0.27 0.28 0.12 38
4 4 5555 25 0.14 0.33 0.34 0.12 38
4 4 5555 30 0.17 0.39 0.40 0.12 38
4 4 5555 35 0.20 0.45 0.46 0.12 38
5ftby3ftby6in.
Design Earth
Circumferential Reinforcement Areas, in. /ft
Span Rise Top Bottom Side Haunch
Cover
ft ft in. in. in. in.
A A A A A A A “M,” in.
s1 s2 s3 s4 s5 s7 s8
ft
5 3 8766 0<2 0.19 0.44 0.22 0.14 0.21 0.19 0.17
5 3 6666 2<3 0.21 0.29 0.22 0.14 45
5 3 6666 3-5 0.14 0.14 0.14 0.14 36
5 3 6666 10 0.14 0.17 0.17 0.14 36
5 3 6666 15 0.17 0.24 0.24 0.14 35
5 3 6666 20 0.21 0.31 0.31 0.14 35
5 3 6666 25 0.26 0.38 0.38 0.14 35
5 3 6666 30 0.31 0.45 0.45 0.14 35
5 3 6666 35 0.37 0.52 0.53 0.14 35
5ftby4ftby6in.
´1
C1433−20
Design Earth 2
Circumferential Reinforcement Areas, in. /ft
Span Rise Top Bottom Side Haunch
Cover
ft ft in. in. in. in.
A A A A A A A “M,” in.
ft s1 s2 s3 s4 s5 s7 s8
5 4 8766 0<2 0.19 0.48 0.24 0.14 0.22 0.19 0.17
5 4 6666 2<3 0.18 0.33 0.25 0.14 45
5 4 6666 3-5 0.14 0.16 0.16 0.14 45
5 4 6666 10 0.14 0.19 0.19 0.14 36
5 4 6666 15 0.14 0.26 0.27 0.14 35
5 4 6666 20 0.18 0.33 0.34 0.14 35
5 4 6666 25 0.21 0.41 0.42 0.14 35
5 4 6666 30 0.26 0.49 0.49 0.14 35
5 4 6666 35 0.30 0.56 0.57 0.14 35
5ftby5ftby6in.
Design Earth 2
Circumferential Reinforcement Areas, in. /ft
Span Rise Top Bottom Side Haunch
Cover
ft ft in. in. in. in.
A A A A A A A “M,” in.
ft s1 s2 s3 s4 s5 s7 s8
5 5 8766 0<2 0.19 0.50 0.26 0.14 0.24 0.19 0.17
5 5 6666 2<3 0.16 0.35 0.28 0.14 45
5 5 6666 3-5 0.14 0.17 0.18 0.14 45
5 5 6666 10 0.14 0.20 0.21 0.14 45
5 5 6666 15 0.14 0.27 0.28 0.14 36
5 5 6666 20 0.15 0.35 0.36 0.14 35
5 5 6666 25 0.19 0.42 0.44 0.14 35
5 5 6666 30 0.22 0.50 0.51 0.14 35
5 5 6666 35 0.26 0.58 0.59 0.14 35
6ftby3ftby7in.
Design Earth
Circumferential Reinforcement Areas, in. /ft
Span Rise Top Bottom Side Haunch
Cover
ft ft in. in. in. in.
A A A A A A A “M,” in.
s1 s2 s3 s4 s5 s7 s8
ft
6 3 8777 0<2 0.23 0.45 0.20 0.17 0.19 0.19 0.17
6 3 7777 2<3 0.24 0.30 0.20 0.17 43
6 3 7777 3-5 0.17 0.17 0.17 0.17 40
6 3 7777 10 0.17 0.20 0.20 0.17 39
6 3 7777 15 0.23 0.27 0.28 0.17 38
6 3 7777 20 0.30 0.35 0.36 0.17 38
6 3 7777 25 0.36 0.44 0.44 0.17 38
6 3 7777 30 0.43 0.52 0.52 0.17 38
6 3 7777 35 0.50 0.60 0.60 0.17 38
6ftby4ftby7in.
Design Earth
Circumferential Reinforcement Areas, in. /ft
Span Rise Top Bottom Side Haunch
Cover
ft ft in. in. in. in.
A A A A A A A “M,” in.
s1 s2 s3 s4 s5 s7 s8
ft
6 4 8777 0<2 0.19 0.49 0.23 0.17 0.21 0.19 0.17
6 4 7777 2<3 0.21 0.33 0.23 0.17 43
6 4 7777 3-5 0.17 0.17 0.17 0.17 40
6 4 7777 10 0.17 0.22 0.23 0.17 39
6 4 7777 15 0.20 0.30 0.31 0.17 38
6 4 7777 20 0.25 0.39 0.40 0.17 38
6 4 7777 25 0.30 0.48 0.49 0.17 38
6 4 7777 30 0.36 0.57 0.58 0.17 38
6 4 7777 35 0.42 0.66 0.67 0.17 38
6ftby5ftby7in.
Design Earth
Circumferential Reinforcement Areas, in. /ft
Span Rise Top Bottom Side Haunch
Cover
ft ft in. in. in. in.
A A A A A A A “M,” in.
s1 s2 s3 s4 s5 s7 s8
ft
6 5 8777 0<2 0.19 0.52 0.25 0.17 0.22 0.19 0.17
6 5 7777 2<3 0.19 0.36 0.26 0.17 52
6 5 7777 3-5 0.17 0.19 0.19 0.17 43
6 5 7777 10 0.17 0.23 0.24 0.17 39
6 5 7777 15 0.17 0.32 0.33 0.17 38
6 5 7777 20 0.22 0.41 0.43 0.17 38
6 5 7777 25 0.26 0.51 0.52 0.17 38
6 5 7777 30 0.31 0.60 0.61 0.17 38
6 5 7777 35 0.36 0.69 0.71 0.17 38
6ftby6ftby7in.
Design Earth
Circumferential Reinforcement Areas, in. /ft
Span Rise Top Bottom Side Haunch
Cover
ft ft in. in. in. in.
A A A A A A A “M,” in.
s1 s2 s3 s4 s5 s7 s8
ft
6 6 8777 0<2 0.19 0.54 0.27 0.17 0.23 0.19 0.17
6 6 7777 2<3 0.17 0.38 0.28 0.17 52
6 6 7777 3-5 0.17 0.20 0.20 0.17 52
6 6 7777 10 0.17 0.24 0.26 0.17 43
6 6 7777 15 0.17 0.33 0.35 0.17 39
6 6 7777 20 0.19 0.43 0.44 0.17 38
6 6 7777 25 0.23 0.52 0.54 0.17 38
6 6 7777 30 0.27 0.61 0.63 0.17 38
6 6 7777 35 0.32 0.71 0.73 0.17 38
7ftby4ftby8in.
´1
C1433−20
Design Earth 2
Circumferential Reinforcement Areas, in. /ft
Span Rise Top Bottom Side Haunch
Cover
ft ft in. in. in. in.
A A A A A A A “M,” in.
ft s1 s2 s3 s4 s5 s7 s8
7 4 8888 0<2 0.26 0.49 0.21 0.19 0.19 0.19 0.19
7 4 8888 2<3 0.24 0.33 0.22 0.19 47
7 4 8888 3-5 0.19 0.19 0.19 0.19 43
7 4 8888 10 0.19 0.25 0.25 0.19 43
7 4 8888 15 0.26 0.34 0.35 0.19 41
7 4 8888 20 0.33 0.44 0.45 0.19 41
7 4 8888 25 0.40 0.54 0.55 0.19 41
7 4 8888 30 0.47 0.64 0.65 0.19 41
7 4 8888 35 0.55 0.75 0.75 0.19 41
7ftby5ftby8in.
Design Earth 2
Circumferential Reinforcement Areas, in. /ft
Span Rise Top Bottom Side Haunch
Cover
ft ft in. in. in. in.
A A A A A A A “M,” in.
ft s1 s2 s3 s4 s5 s7 s8
7 5 8888 0<2 0.23 0.52 0.24 0.19 0.21 0.19 0.19
7 5 8888 2<3 0.22 0.36 0.25 0.19 59
7 5 8888 3-5 0.19 0.20 0.20 0.19 43
7 5 8888 10 0.19 0.27 0.28 0.19 43
7 5 8888 15 0.23 0.37 0.38 0.19 41
7 5 8888 20 0.29 0.48 0.49 0.19 41
7 5 8888 25 0.35 0.58 0.59 0.19 41
7 5 8888 30 0.41 0.69 0.70 0.19 41
7 5 8888 35 0.47 0.80 0.81 0.19 41
7ftby6ftby8in.
Design Earth
Circumferential Reinforcement Areas, in. /ft
Span Rise Top Bottom Side Haunch
Cover
ft ft in. in. in. in.
A A A A A A A “M,” in.
s1 s2 s3 s4 s5 s7 s8
ft
7 6 8888 0<2 0.21 0.54 0.26 0.19 0.22 0.19 0.19
7 6 8888 2<3 0.20 0.39 0.27 0.19 59
7 6 8888 3-5 0.19 0.22 0.22 0.19 47
7 6 8888 10 0.19 0.28 0.30 0.19 43
7 6 8888 15 0.20 0.39 0.40 0.19 41
7 6 8888 20 0.26 0.50 0.51 0.19 41
7 6 8888 25 0.31 0.61 0.62 0.19 41
7 6 8888 30 0.36 0.72 0.73 0.19 41
7 6 8888 35 0.42 0.83 0.85 0.19 41
7ftby7ftby8in.
Design Earth
Circumferential Reinforcement Areas, in. /ft
Span Rise Top Bottom Side Haunch
Cover
ft ft in. in. in. in.
A A A A A A A “M,” in.
s1 s2 s3 s4 s5 s7 s8
ft
7 7 8888 0<2 0.19 0.56 0.27 0.19 0.22 0.19 0.19
7 7 8888 2<3 0.19 0.41 0.29 0.19 59
7 7 8888 3-5 0.19 0.23 0.23 0.19 59
7 7 8888 10 0.19 0.29 0.31 0.19 47
7 7 8888 15 0.19 0.40 0.42 0.19 43
7 7 8888 20 0.24 0.51 0.53 0.19 41
7 7 8888 25 0.28 0.62 0.64 0.19 41
7 7 8888 30 0.33 0.73 0.75 0.19 41
7 7 8888 35 0.38 0.84 0.87 0.19 41
8ftby4ftby8in.
Design Earth
Circumferential Reinforcement Areas, in. /ft
Span Rise Top Bottom Side Haunch
Cover
ft ft in. in. in. in.
A A A A A A A “M,” in.
s1 s2 s3 s4 s5 s7 s8
ft
8 4 8888 0<2 0.31 0.53 0.23 0.19 0.20 0.19 0.19
8 4 8888 2<3 0.30 0.39 0.25 0.19 50
8 4 8888 3-5 0.20 0.22 0.22 0.19 45
8 4 8888 10 0.27 0.31 0.32 0.19 45
8 4 8888 15 0.37 0.43 0.44 0.19 41
8 4 8888 20 0.47 0.56 0.57 0.19 41
8 4 8888 25 0.58 0.68 0.69 0.19 41
8ftby5ftby8in.
Design Earth
Circumferential Reinforcement Areas, in. /ft
Span Rise Top Bottom Side Haunch
Cover
ft ft in. in. in. in.
A A A A A A A “M,” in.
s1 s2 s3 s4 s5 s7 s8
ft
8 5 8888 0<2 0.28 0.57 0.25 0.19 0.21 0.19 0.19
8 5 8888 2<3 0.27 0.42 0.28 0.19 50
8 5 8888 3-5 0.19 0.24 0.24 0.19 50
8 5 8888 10 0.24 0.33 0.35 0.19 45
8 5 8888 15 0.33 0.46 0.48 0.19 41
8 5 8888 20 0.42 0.60 0.61 0.19 41
8 5 8888 25 0.51 0.73 0.75 0.19 41
8ftby6ftby8in.
Design Earth
Circumferential Reinforcement Areas, in. /ft
Span Rise Top Bottom Side Haunch
Cover
ft ft in. in. in. in.
A A A A A A A “M,” in.
s1 s2 s3 s4 s5 s7 s8
ft
8 6 8888 0<2 0.26 0.59 0.28 0.19 0.22 0.19 0.19
´1
C1433−20
8 6 8888 2<3 0.25 0.45 0.30 0.19 55
8 6 8888 3-5 0.19 0.26 0.26 0.19 50
8 6 8888 10 0.22 0.35 0.37 0.19 45
8 6 8888 15 0.30 0.49 0.51 0.19 41
8 6 8888 20 0.38 0.63 0.65 0.19 41
8 6 8888 25 0.46 0.77 0.79 0.19 41
8ftby7ftby8in.
Design Earth 2
Circumferential Reinforcement Areas, in. /ft
Span Rise Top Bottom Side Haunch
Cover
ft ft in. in. in. in.
A A A A A A A “M,” in.
ft s1 s2 s3 s4 s5 s7 s8
8 7 8888 0<2 0.24 0.62 0.30 0.19 0.23 0.19 0.19
8 7 8888 2<3 0.23 0.47 0.33 0.19 65
8 7 8888 3-5 0.19 0.27 0.28 0.19 55
8 7 8888 10 0.20 0.37 0.39 0.19 45
8 7 8888 15 0.28 0.51 0.53 0.19 41
8 7 8888 20 0.35 0.65 0.68 0.19 41
8 7 8888 25 0.42 0.80 0.82 0.19 41
8ftby8ftby8in.
Design Earth 2
Circumferential Reinforcement Areas, in. /ft
Span Rise Top Bottom Side Haunch
Cover
ft ft in. in. in. in.
A A A A A A A “M,” in.
ft s1 s2 s3 s4 s5 s7 s8
8 8 8888 0<2 0.22 0.64 0.32 0.19 0.24 0.19 0.19
8 8 8888 2<3 0.22 0.49 0.35 0.19 65
8 8 8888 3-5 0.19 0.29 0.30 0.19 65
8 8 8888 10 0.19 0.38 0.41 0.19 50
8 8 8888 15 0.26 0.52 0.55 0.19 45
8 8 8888 20 0.33 0.66 0.70 0.19 45
8 8 8888 25 0.40 0.81 0.84 0.19 41
9ftby5ftby9in.
Design Earth 2
Circumferential Reinforcement Areas, in. /ft
Span Rise Top Bottom Side Haunch
Cover
ft ft in. in. in. in.
A A A A A A A “M,” in.
ft s1 s2 s3 s4 s5 s7 s8
9 5 9999 0<2 0.29 0.53 0.25 0.22 0.22 0.22 0.22
9 5 9999 2<3 0.29 0.41 0.27 0.22 54
9 5 9999 3-5 0.22 0.25 0.26 0.22 49
9 5 9999 10 0.29 0.36 0.38 0.22 49
9 5 9999 15 0.40 0.51 0.52 0.22 44
9 5 9999 20 0.51 0.65 0.67 0.22 44
9 5 9999 25 0.62 0.80 0.81 0.22 44
9ftby6ftby9in.
Design Earth 2
Circumferen
...




Questions, Comments and Discussion
Ask us and Technical Secretary will try to provide an answer. You can facilitate discussion about the standard in here.
Loading comments...