ISO 2328:1977
(Main)Fork lift trucks — Hook-on type fork arms and fork carriers — Mounting dimensions
Fork lift trucks — Hook-on type fork arms and fork carriers — Mounting dimensions
Chariots élévateurs à fourche — Bras de fourche à tenons et tabliers porte- équipements — Dimensions de montage
General Information
- Status
- Withdrawn
- Publication Date
- 30-Sep-1977
- Withdrawal Date
- 30-Sep-1977
- Technical Committee
- ISO/TC 110 - Industrial trucks
- Drafting Committee
- ISO/TC 110 - Industrial trucks
- Current Stage
- 9599 - Withdrawal of International Standard
- Start Date
- 28-Oct-1993
- Completion Date
- 12-Feb-2026
Relations
- Effective Date
- 15-Apr-2008
ISO 2328:1977 - Fork lift trucks -- Hook-on type fork arms and fork carriers -- Mounting dimensions
ISO 2328:1977 - Chariots élévateurs a fourche -- Bras de fourche a tenons et tabliers porte- équipements -- Dimensions de montage
Frequently Asked Questions
ISO 2328:1977 is a standard published by the International Organization for Standardization (ISO). Its full title is "Fork lift trucks — Hook-on type fork arms and fork carriers — Mounting dimensions". This standard covers: Fork lift trucks — Hook-on type fork arms and fork carriers — Mounting dimensions
Fork lift trucks — Hook-on type fork arms and fork carriers — Mounting dimensions
ISO 2328:1977 is classified under the following ICS (International Classification for Standards) categories: 53.060 - Industrial trucks. The ICS classification helps identify the subject area and facilitates finding related standards.
ISO 2328:1977 has the following relationships with other standards: It is inter standard links to ISO 2328:1993. Understanding these relationships helps ensure you are using the most current and applicable version of the standard.
ISO 2328:1977 is available in PDF format for immediate download after purchase. The document can be added to your cart and obtained through the secure checkout process. Digital delivery ensures instant access to the complete standard document.
Standards Content (Sample)
INTERNATIONAL STANDARD 2328
INTERNATIONAL ORGANIZATION FOR STANOAROIZATION .MEXKLIYHAPOAHAR OPrAHUSAUHJl no CiAHAAPTHSAUHH .ORGANISATION INTERNATIONALE DE NORMALISATION
Fork lift trucks - Hook-on type fork arms and fork carriers -
Mounting dimensions
Chariots élévateurs à fourche - Bras de fourche a tenons et tabliers porte-équipements - Dimensions
de montage
First edition - 1977-10-01
I "--
I
w
-
UDC 621.868.277 Ref. No. IS0 2328-1977 (E)
PI
l-
E
Descriptors : handling equipment, industrial trucks, fork trucks, lift trucks, fork arms, fork carriers, assembling, dimensions
Co
(U
m
(U
s
Price based on 4 pages
FOREWORD
IS0 (the International Organization for Standardization) is a worldwide federation
of national standards institutes (IS0 member bodies). The work of developing
International Standards is carried out through IS0 technical committees. Every
member body interested in a subject for which a technical committee has been set
up has the right to be represented on that committee. International organizations,
governmental and non-governmental, in liaison with ISO, also take part in the work.
Draft International Standards adopted by the technical committees are circulated
to the member bodies for approval before their acceptance as International
Standards by the IS0 Council.
International Standard IS0 2328 was developed by Technical Committee
ISO/TC 110, Industrial trucks, and was circulated to the member bodies in
October 1976.
It has been approved by the member bodies of the following countries :
Australia India Romania
Austria Japan South Africa, Rep. of
Belgium Korea, Rep. of Spain
Mexico Sweden
Bulgaria
Netherlands Switzerland
Czechoslovakia
New Zealand United Kingdom
Fin land
France Philippines
Germany Poland
No member body expressed disapproval of the document.
0 International Organization for Standardization, 1977
Printed in Switzerland
INTERNATIONAL STANDARD IS0 2328-1977 (E)
Fork lift trucks - Hook-on type fork arms and fork carriers -
Mounting dimensions
L
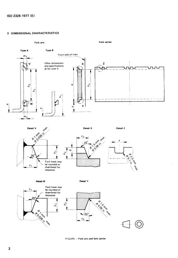
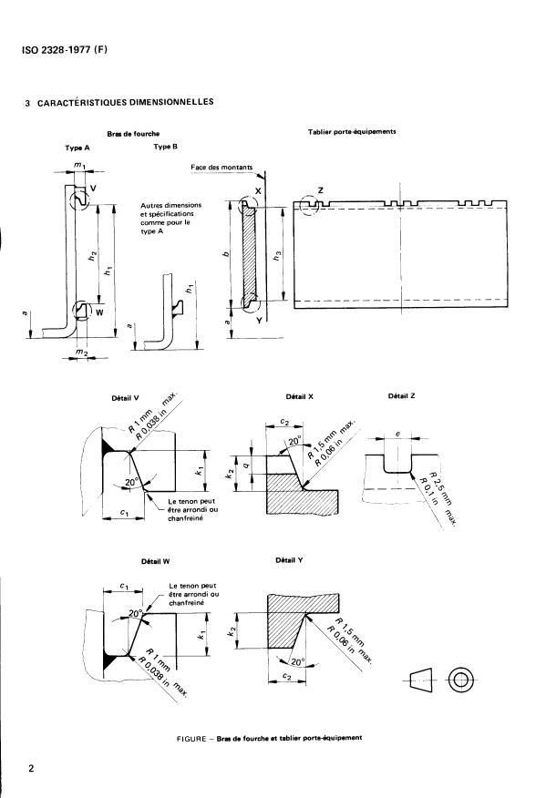
1 SCOPE AND FIELD OF APPLICATION 2 REFERENCES
This International Standard defines those dimensional
...
NORME INTERNATIONALE @ 2328
'*!e
INTERNATIONAL ORGANIZATION FOR STANDAROIZATION .ME]KAYHAPOAHAR OPïAHH3AUHR Il0 CTAHAAPTHJAUHH *ORGANISATION INTERNATIONALE DE NORMALISATION
Chariots élévateurs à fourche - Bras de fourche à tenons et
tabliers porte-équipements - Dimensions de montage
Fork lift trucks - Hook-on type fork arms and fork carriers - Mounting dimensions
Première édition - 1977-10-01
CDU 621.868.277 Réf. no : IS0 2328-1977 (FI
Descripteurs : materiel de manutention, chariot de manutention, chariot a fourche, chariot élévateur, bras de fourche, tablier pour chariot
à fourche, montage, dimension.
Prix base sur 4 pages
AVANT-PROPOS
L’ISO (Organisation internationale de normalisation) est une fédération mondiale
d’organismes nationaux de normalisation (comités membres de I‘ISO). L’élaboration
des Normes internationales est confiée aux comités techniques de I‘ISO. Chaque
comité membre intéressé par une étude a le droit de faire partie du comité technique
correspondant. Les organisations internationales, gouvernementales et non
gouvernementales, en liaison avec I’ISO, participent également aux travaux.
Les projets de Normes internationales adoptés par les comités techniques sont
soumis aux comités membres pour approbation, avant leur acceptation comme
Normes internationales par le Conseil de I’ISO.
La Norme internationale IS0 2328 a été élaborée par le comité technique
ISO/TC 110, Chariots de manutention, et a été soumise aux comités membres en
octobre 1976.
Les comités membres des pays suivants l’ont approuvée :
Afrique du Sud, Rép. d’ Finlande Pologne
France Roumanie
Allemagne
Australie Inde Royaume-Uni
Japon Suède
Autriche
Belgique Mexique Suisse
Bulgarie Nouvelle-Zélande Tchécoslovaquie
Corée, Rép. de Pays-Bas
Espagne Philippines
Aucun comité membre ne l’a désapprouvée.
O Organisation internationale de normalisation, 1977
Imprimé en Suisse
NORM E I NT ER NAT I ON A LE IS0 2328-1977 (F)
Chariots élévateurs à fourche - Bras de fourche à tenons et
tabliers porte-équipements - Dimensions de montage
c_
1 OBJET ET DOMAINE D'APPLICATION z RÉFÉRENCES
La présente Norme internationale définit les caractéris- ISO/R 1214, Chariots élévateurs à fourche travai/lant en
porte-à-faux - Capacité nominale.
tiques dimensionnelles des tabliers porte-équipements et des
bras de fourche à tenons pour chariots élévateurs a fourche
ISO/TR 2329, Chariots élévateurs à fourche - Bras de
permettant l'interchangeabilité des bras de fourche et autres
fourche - Dimensions
...








Questions, Comments and Discussion
Ask us and Technical Secretary will try to provide an answer. You can facilitate discussion about the standard in here.
Loading comments...