ASTM F1331-22
(Practice)Standard Practice for Installation Procedures of Vinyl Deck Coverings on Portable Plates in Electrical and Electronic Spaces
Standard Practice for Installation Procedures of Vinyl Deck Coverings on Portable Plates in Electrical and Electronic Spaces
ABSTRACT
This practice covers the acceptable installation procedures of insulated vinyl deck covering on portable deck plates. This deck covering shall be installed, in way of the electrical and electronic spaces, for marine use. Requirements for the following are specified: (1) operations area, (2) installation using vinyl sheets, (3) adhesive, (4) fiberglass, (5) fastening with Nylon screws, and (6) exposed areas treated with epoxy. Illustrations of the installation of deck coverings are provided.
SCOPE
1.1 This practice covers the acceptable method for installing insulated deck covering on portable deck plates.
1.2 This deck covering shall be installed, in way of the electrical and electronic spaces, for marine use.
1.3 The values stated in SI (metric) units are to be regarded as the standard. The values in parentheses are for information only.
1.4 This standard does not purport to address all of the safety concerns, if any, associated with its use. It is the responsibility of the user of this standard to establish appropriate safety, health, and environmental practices and determine the applicability of regulatory limitations prior to use.
1.5 This international standard was developed in accordance with internationally recognized principles on standardization established in the Decision on Principles for the Development of International Standards, Guides and Recommendations issued by the World Trade Organization Technical Barriers to Trade (TBT) Committee.
General Information
- Status
- Published
- Publication Date
- 30-Jun-2022
- Technical Committee
- F25 - Ships and Marine Technology
- Drafting Committee
- F25.03 - Outfitting and Deck Machinery
Relations
- Effective Date
- 01-Oct-2018
- Effective Date
- 15-May-2013
- Effective Date
- 01-Dec-2011
- Effective Date
- 01-Nov-2006
- Effective Date
- 01-Apr-2005
- Effective Date
- 01-Dec-2004
- Effective Date
- 10-Oct-1999
- Effective Date
- 10-Mar-1999
- Effective Date
- 10-Oct-1998
Overview
ASTM F1331-22 is the internationally recognized standard practice for the installation procedures of vinyl deck coverings on portable deck plates in electrical and electronic spaces, specifically for marine applications. Developed by ASTM International, this standard details the essential steps and requirements to ensure proper installation, durability, and safety of insulated vinyl deck coverings in environments where electrical safety and long-term performance are critical.
Key applications include electrical and electronic spaces aboard ships, where personnel must be protected from electric shock, and maintenance activities require portable, yet secure, deck plates. By adhering to ASTM F1331-22, shipbuilders, marine engineers, and contractors help maintain compliance, enhance safety standards, and support operational efficiency in marine technology settings.
Key Topics
ASTM F1331-22 covers several vital topics and installation criteria for vinyl deck coverings in marine electrical spaces:
- Operations Area: Specifies typical areas for installation, including spaces surrounding power and lighting switchboards, communication panels, fire-control switchboards, and electronic servicing zones.
- Vinyl Sheet Installation: Provides detailed procedures for using vinyl sheets and fiberglass binding strips, including methods for secure edge joining (rabbet joints) and overlaps to ensure a flush, safe surface.
- Adhesive Application: Outlines requirements for bonding vinyl sheets with adhesive, including use of a silicone compound with catalyst for optimal adhesion while preventing overflow of adhesive.
- Fiberglass Use: Describes the integration of fiberglass materials, specifying adherence to standards for plies, nonwoven fibers, and epoxy resin bonding to enhance structural integrity.
- Fastening Techniques: Details the use of nylon screws for securing fiberglass binding strips, with recommended widths and spacing for both joints and deck edges, promoting both stability and ease of maintenance.
- Epoxy Treatment for Exposed Areas: Requires cleaning and surface preparation before applying epoxy resin to vertical lip edges, in accordance with relevant surface treatment standards.
Applications
The ASTM F1331-22 standard is essential for:
- Marine Vessels: Ensuring safe and reliable deck coverings in shipboard electrical rooms, control centers, and electronic spaces.
- Ship Construction and Retrofits: Providing standardized installation methods for both new builds and upgrades of portable deck plates in marine electrical areas.
- Marine Maintenance Operations: Facilitating secure, removable deck plates with insulated coverings for ongoing vessel maintenance, inspections, and equipment servicing.
- Compliance and Safety Assurance: Supporting compliance with international safety practices, particularly in minimization of electric shock risk and operational hazards in electrical environments.
By following these procedures, professionals help maintain high standards for safety, material durability, and the longevity of the marine vessel’s electrical infrastructure.
Related Standards
Several related standards and documents support and complement the procedures outlined in ASTM F1331-22:
- ASTM D1338: Practice for evaluating the working life and bond strength of adhesives, relevant to the adhesive application step.
- ASTM D4389: Specification for finished glass fabrics woven from rovings, applicable for fiberglass materials used in installation.
- ASTM F150: Test method for determining electrical resistance of conductive and static dissipative resilient flooring, ensuring vinyl performance.
- Steel Structural Painting Council (SSPC) SP-11: Surface preparation standard for cleaning and prepping exposed areas before epoxy treatment.
Organizations and individuals involved in marine installation, ship outfitting, and deck machinery should reference these documents alongside ASTM F1331-22 to ensure full compliance and best practices.
Keywords: vinyl deck covering, ASTM F1331-22, marine electrical space, insulated deck covering, portable deck plate, marine safety, installation procedures, ship outfit standards, electrical shock prevention, epoxy treated deck, fiberglass deck installation.
Buy Documents
ASTM F1331-22 - Standard Practice for Installation Procedures of Vinyl Deck Coverings on Portable Plates in Electrical and Electronic Spaces
REDLINE ASTM F1331-22 - Standard Practice for Installation Procedures of Vinyl Deck Coverings on Portable Plates in Electrical and Electronic Spaces
Frequently Asked Questions
ASTM F1331-22 is a standard published by ASTM International. Its full title is "Standard Practice for Installation Procedures of Vinyl Deck Coverings on Portable Plates in Electrical and Electronic Spaces". This standard covers: ABSTRACT This practice covers the acceptable installation procedures of insulated vinyl deck covering on portable deck plates. This deck covering shall be installed, in way of the electrical and electronic spaces, for marine use. Requirements for the following are specified: (1) operations area, (2) installation using vinyl sheets, (3) adhesive, (4) fiberglass, (5) fastening with Nylon screws, and (6) exposed areas treated with epoxy. Illustrations of the installation of deck coverings are provided. SCOPE 1.1 This practice covers the acceptable method for installing insulated deck covering on portable deck plates. 1.2 This deck covering shall be installed, in way of the electrical and electronic spaces, for marine use. 1.3 The values stated in SI (metric) units are to be regarded as the standard. The values in parentheses are for information only. 1.4 This standard does not purport to address all of the safety concerns, if any, associated with its use. It is the responsibility of the user of this standard to establish appropriate safety, health, and environmental practices and determine the applicability of regulatory limitations prior to use. 1.5 This international standard was developed in accordance with internationally recognized principles on standardization established in the Decision on Principles for the Development of International Standards, Guides and Recommendations issued by the World Trade Organization Technical Barriers to Trade (TBT) Committee.
ABSTRACT This practice covers the acceptable installation procedures of insulated vinyl deck covering on portable deck plates. This deck covering shall be installed, in way of the electrical and electronic spaces, for marine use. Requirements for the following are specified: (1) operations area, (2) installation using vinyl sheets, (3) adhesive, (4) fiberglass, (5) fastening with Nylon screws, and (6) exposed areas treated with epoxy. Illustrations of the installation of deck coverings are provided. SCOPE 1.1 This practice covers the acceptable method for installing insulated deck covering on portable deck plates. 1.2 This deck covering shall be installed, in way of the electrical and electronic spaces, for marine use. 1.3 The values stated in SI (metric) units are to be regarded as the standard. The values in parentheses are for information only. 1.4 This standard does not purport to address all of the safety concerns, if any, associated with its use. It is the responsibility of the user of this standard to establish appropriate safety, health, and environmental practices and determine the applicability of regulatory limitations prior to use. 1.5 This international standard was developed in accordance with internationally recognized principles on standardization established in the Decision on Principles for the Development of International Standards, Guides and Recommendations issued by the World Trade Organization Technical Barriers to Trade (TBT) Committee.
ASTM F1331-22 is classified under the following ICS (International Classification for Standards) categories: 97.150 - Floor coverings. The ICS classification helps identify the subject area and facilitates finding related standards.
ASTM F1331-22 has the following relationships with other standards: It is inter standard links to ASTM F150-06(2018), ASTM F150-06(2013), ASTM D1338-99(2011), ASTM F150-06, ASTM D1338-99(2005), ASTM D4389-04, ASTM D1338-99, ASTM D4389-99, ASTM F150-98. Understanding these relationships helps ensure you are using the most current and applicable version of the standard.
ASTM F1331-22 is available in PDF format for immediate download after purchase. The document can be added to your cart and obtained through the secure checkout process. Digital delivery ensures instant access to the complete standard document.
Standards Content (Sample)
This international standard was developed in accordance with internationally recognized principles on standardization established in the Decision on Principles for the
Development of International Standards, Guides and Recommendations issued by the World Trade Organization Technical Barriers to Trade (TBT) Committee.
Designation: F1331 − 22 An American National Standard
Standard Practice for
Installation Procedures of Vinyl Deck Coverings on Portable
Plates in Electrical and Electronic Spaces
This standard is issued under the fixed designation F1331; the number immediately following the designation indicates the year of
original adoption or, in the case of revision, the year of last revision. A number in parentheses indicates the year of last reapproval. A
superscript epsilon (´) indicates an editorial change since the last revision or reapproval.
1. Scope 3. Requirements
1.1 Thispracticecoverstheacceptablemethodforinstalling
3.1 Operations Area—Typical areas for application of the
insulated deck covering on portable deck plates. electric insulating deck covering are:
3.1.1 The operating areas in front and rear of power and
1.2 This deck covering shall be installed, in way of the
lighting switchboards, interior-communication switchboards,
electrical and electronic spaces, for marine use.
test switchboards, fire-control switchboards, and shipboard
1.3 The values stated in SI (metric) units are to be regarded
announcing-systems amplifiers and control panels.
as the standard. The values in parentheses are for information
3.1.2 The area around electronic equipment which may be
only.
contacted by personnel in servicing or tuning energized equip-
1.4 This standard does not purport to address all of the
ment.
safety concerns, if any, associated with its use. It is the
3.1.3 Vinyl sheets should be confined to the minimum deck
responsibility of the user of this standard to establish appro-
areas (generally 0.9 m (3 ft) wide) surrounding the apparatus
priate safety, health, and environmental practices and deter-
necessary to prevent electric shock, and should, unless other-
mine the applicability of regulatory limitations prior to use.
wise specified, be cemented to the deck in lieu of other
1.5 This international standard was developed in accor-
specified deck coverings.
dance with internationally recognized principles on standard-
3.2 Installation Vinyl Sheets:
ization established in the Decision on Principles for the
3.2.1 Installation of deck covering shall be in accordance
Development of International Standards, Guides and Recom-
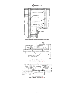
with Figs. 1-7, using vinyl sheet and fiberglass binding strips
mendations issued by the World Trade Organization Technical
(see Fig. 1 and Fig. 5).
Barriers to Trade (TBT) Committee.
3.2.2 Vinyl sheets and fiberglass sheets shall be united at the
edges in a rabbet joint as shown (see Fig. 7), and such that the
2. Referenced Documents
fiberglass overlaps at all joints. All rabbeted surfaces shall be
2.1 ASTM Standards:
smooth and corners sharp and square, such that at installation
D1338 Practice for Working Life of Liquid or Paste Adhe-
the overlapping areas fit firmly and flush. Vinyl shall meet
sives by Consistency and Bond Strength
requirements and tests provided in Test Method F150.
D4389 SpecificationforFinishedGlassFabricsWovenFrom
3.3 Adhesive:
Rovings
3.3.1 Vinyl sheets shall be secured to each portable plate
F150 Test Method for Electrical Resistance of Conductive
with adhesive. Adhesive should not extend beyond edges of
and Static Dissipative Resilient Flooring
vinyl sheet.
2.2 Other Documents:
3 3.3.2 Silicone compound, with 1 % liquid catalyst, should
Steel Structural Painting Council SP-11
be applied between lapping areas in accordance with Practice
D1338.
This practice is under the jurisdiction of ASTM Committee F25 on Ships and
3.4 Fiberglass—Glass fiber base, epoxy resin sheets fur-
Marine Technology and is the direct responsibility of Subcommittee F25.03 on
nished under this specification (Fig. 1 and Fig. 5), shall be a
Outfittin
...
This document is not an ASTM standard and is intended only to provide the user of an ASTM standard an indication of what changes have been made to the previous version. Because
it may not be technically possible to adequately depict all changes accurately, ASTM recommends that users consult prior editions as appropriate. In all cases only the current version
of the standard as published by ASTM is to be considered the official document.
Designation: F1331 − 91 (Reapproved 2017) F1331 − 22 An American National Standard
Standard Practice for
Installation Procedures of Vinyl Deck Coverings on Portable
Plates in Electrical and Electronic Spaces
This standard is issued under the fixed designation F1331; the number immediately following the designation indicates the year of
original adoption or, in the case of revision, the year of last revision. A number in parentheses indicates the year of last reapproval. A
superscript epsilon (´) indicates an editorial change since the last revision or reapproval.
1. Scope
1.1 This practice covers the acceptable method for installing insulated deck covering on portable deck plates.
1.2 This deck covering shall be installed, in way of the electrical and electronic spaces, for marine use.
1.3 The values stated in SI (metric) units are to be regarded as the standard. The values in parentheses are for information only.
1.4 This standard does not purport to address all of the safety concerns, if any, associated with its use. It is the responsibility
of the user of this standard to establish appropriate safety safety, health, and healthenvironmental practices and determine the
applicability of regulatory limitations prior to use.
1.5 This international standard was developed in accordance with internationally recognized principles on standardization
established in the Decision on Principles for the Development of International Standards, Guides and Recommendations issued
by the World Trade Organization Technical Barriers to Trade (TBT) Committee.
2. Referenced Documents
2.1 ASTM Standards:
D1338 Practice for Working Life of Liquid or Paste Adhesives by Consistency and Bond Strength
D2393 Test Method for Viscosity of Epoxy Resins and Related Components (Withdrawn 1992)
D4389 Specification for Finished Glass Fabrics Woven From Rovings
F150 Test Method for Electrical Resistance of Conductive and Static Dissipative Resilient Flooring
2.2 Other Documents:
Steel Structural Painting Council SP-11
3. Requirements
3.1 Operations Area—Typical areas for application of the electric insulating deck covering are:
3.1.1 The operating areas in front and rear of power and lighting switchboards, interior-communication switchboards, test
switchboards, fire-control switchboards, and shipboard announcing-systems amplifiers and control panels.
This practice is under the jurisdiction of ASTM Committee F25 on Ships and Marine Technology and is the direct responsibility of Subcommittee F25.03 on Outfitting
and Deck Machinery.
Current edition approved May 1, 2017July 1, 2022. Published May 2017July 2022. Originally approved in 1991. Last previous edition approved in 20122017 as F1331 – 91
(2012).(2017). DOI: 10.1520/F1331-91R17.10.1520/F1331-22.
For referenced ASTM standards, visit the ASTM website, www.astm.org, or contact ASTM Customer Service at service@astm.org. For Annual Book of ASTM Standards
volume information, refer to the standard’s Document Summary page on the ASTM website.
Available from Society for Protective Coatings (SSPC), 800 Trumbull Dr., Pittsburgh, PA 15205, http://www.sspc.org.
Copyright © ASTM International, 100 Barr Harbor Drive, PO Box C700, West Conshohocken, PA 19428-2959. United States
F1331 − 22
3.1.2 The area around electronic equipment which may be contacted by personnel in servicing or tuning energized equipment.
3.1.3 Vinyl sheets should be confined to the minimum deck areas (generally 0.9 m (3 ft) wide) surrounding the apparatus necessary
to prevent electric shock, and should, unless otherwise specified, be cemented to the deck in lieu of other specified deck coverings.
3.2 Installation Vinyl Sheets:
3.2.1 Installation of deck covering shall be in accordance with Figs. 1-7, using vinyl sheet and fiberglass binding strips (see Fig.
1 and Fig. 5).
3.2.2 Vinyl sheets
...








Questions, Comments and Discussion
Ask us and Technical Secretary will try to provide an answer. You can facilitate discussion about the standard in here.
Loading comments...