ASTM F992-17(2022)
(Specification)Standard Specification for Valve Label Plates
Standard Specification for Valve Label Plates
ABSTRACT
This specification covers the materials, dimensions, inscription, and methods of inscribing for shipboard valve label plates. Label plates shall be classified by type, grade, class, size, and letter size in accordance with material and method of inscribing, method of attachment, thickness of sheet, strip, or plate, dimensions, and letter size to be used. Types and materials: type I - anodized aluminium, engraved; type II - anodized aluminium, metal photo; type III - stainless steel, engraved; type IV - brass, engraved; and type V - plastic, engraved. Grades and methods of attachment: grade A - adhesive on metal bracket (backling plate); grade B - metal strapping or screw; grade C - welding; grade D - secured by handwheel nut; and grade E - connection to valve stem, bonnet, or flange. Inscription on label plates shall include the system identification number, valve identification number, and the function of the valve. The pressure in line, where the line is coming from or going to, or both, may be included along with any other pertinent information.
SCOPE
1.1 This specification covers the materials, dimensions, inscription, and methods of inscribing for shipboard valve label plates.
1.2 Fasteners shall be ordered separately and are not included in this specification.
1.3 The values stated in inch-pound units are to be regarded as standard. No other units of measurement are included in this standard.
1.4 This international standard was developed in accordance with internationally recognized principles on standardization established in the Decision on Principles for the Development of International Standards, Guides and Recommendations issued by the World Trade Organization Technical Barriers to Trade (TBT) Committee.
General Information
- Status
- Published
- Publication Date
- 30-Jun-2022
- Technical Committee
- F25 - Ships and Marine Technology
- Drafting Committee
- F25.11 - Machinery and Piping Systems
Relations
- Effective Date
- 01-Oct-2023
- Effective Date
- 01-Apr-2019
- Effective Date
- 01-Oct-2018
- Effective Date
- 01-Mar-2016
- Effective Date
- 01-Nov-2014
- Effective Date
- 01-Nov-2013
- Effective Date
- 01-Oct-2013
- Effective Date
- 01-Nov-2010
- Effective Date
- 15-Apr-2009
- Effective Date
- 01-Oct-2008
- Effective Date
- 01-Apr-2008
- Effective Date
- 01-Aug-2007
- Effective Date
- 01-May-2007
- Effective Date
- 01-Jul-2006
- Effective Date
- 01-Feb-2006
Overview
ASTM F992-17(2022): Standard Specification for Valve Label Plates defines the requirements for the materials, dimensions, inscriptions, and methods of inscribing label plates used for shipboard valves. This standard assists shipbuilders, marine engineers, and maintenance personnel in ensuring consistent valve identification, enhancing safety and facilitating maintenance across marine vessels.
The specification classifies valve label plates by type, grade, class, size, and letter size according to their material, inscription method, attachment method, thickness, and dimensions. By setting unified standards, ASTM F992-17(2022) supports regulatory compliance, easy identification, and long-term performance in demanding marine environments.
Key Topics
Materials and Types
- Type I: Anodized aluminum, engraved
- Type II: Anodized aluminum, metal photo method
- Type III: Stainless steel, engraved
- Type IV: Brass, engraved
- Type V: Plastic, engraved
Grades & Attachment Methods
- Grade A: Adhesive on metal bracket (backing plate)
- Grade B: Metal strapping or screw
- Grade C: Welding
- Grade D: Secured by handwheel nut
- Grade E: Connection to valve stem, bonnet, or flange
Dimensional Requirements
- Label plates are available in multiple rectangular and circular sizes, with specific letter size requirements to ensure clarity and legibility.
- Thickness varies by class, with minimum values set for durability and performance, especially for external applications.
Inscription Requirements
- Minimum content: system identification number, valve identification number, valve function
- Additional information can include line pressure, source/destination, and other relevant details.
- Default inscription style uses gothic lettering and arabic numerals unless otherwise specified.
Applications
Valve label plates manufactured to ASTM F992-17(2022) are essential on ships and marine vessels for:
- Safety and Compliance: Clear labeling enables quick identification during normal operation and emergencies, supporting occupational safety and regulatory requirements.
- Maintenance and Operations: Well-marked valves streamline troubleshooting, maintenance scheduling, and system checks-minimizing downtime and human error.
- Corrosion Resistance: Use of specified materials like stainless steel, anodized aluminum, and coated plastic ensures resistance to harsh marine conditions.
- Customization: Options for inscription color, letter size, and attachment method adapt label plates to a wide range of shipboard installation scenarios.
- Visibility: Strict requirements for location and placement maximize visibility, even when valves are located behind panels or above ceilings.
Related Standards
- ASTM A240: Specification for Chromium and Chromium-Nickel Stainless Steel Plate, Sheet, and Strip
- ASTM B36/B36M: Specification for Brass Plate, Sheet, Strip, and Rolled Bar
- ASTM B209/B209M: Specification for Aluminum and Aluminum-Alloy Sheet and Plate
- ASTM B580: Specification for Anodic Oxide Coatings on Aluminum
- ASTM D709: Specification for Laminated Thermosetting Materials
- ANSI Y14.38: Abbreviations and Acronyms for Use on Drawings and Related Documents
- American Bureau of Shipping Rules: For steel vessel construction and equipment
Keywords: valve label plate, shipboard valves, marine technology, ASTM F992-17, valve identification, label plate materials, marine safety, valve plate dimensions, engraved label plates, standard valve labeling.
By following ASTM F992-17(2022), organizations ensure reliable, durable, and standardized valve labeling-critical for the safety, efficiency, and compliance of marine operations.
Buy Documents
ASTM F992-17(2022) - Standard Specification for Valve Label Plates
Get Certified
Connect with accredited certification bodies for this standard

DNV
DNV is an independent assurance and risk management provider.

Lloyd's Register
Lloyd's Register is a global professional services organisation specialising in engineering and technology.

ABS Quality Evaluations Inc.
American Bureau of Shipping quality certification.
Sponsored listings
Frequently Asked Questions
ASTM F992-17(2022) is a technical specification published by ASTM International. Its full title is "Standard Specification for Valve Label Plates". This standard covers: ABSTRACT This specification covers the materials, dimensions, inscription, and methods of inscribing for shipboard valve label plates. Label plates shall be classified by type, grade, class, size, and letter size in accordance with material and method of inscribing, method of attachment, thickness of sheet, strip, or plate, dimensions, and letter size to be used. Types and materials: type I - anodized aluminium, engraved; type II - anodized aluminium, metal photo; type III - stainless steel, engraved; type IV - brass, engraved; and type V - plastic, engraved. Grades and methods of attachment: grade A - adhesive on metal bracket (backling plate); grade B - metal strapping or screw; grade C - welding; grade D - secured by handwheel nut; and grade E - connection to valve stem, bonnet, or flange. Inscription on label plates shall include the system identification number, valve identification number, and the function of the valve. The pressure in line, where the line is coming from or going to, or both, may be included along with any other pertinent information. SCOPE 1.1 This specification covers the materials, dimensions, inscription, and methods of inscribing for shipboard valve label plates. 1.2 Fasteners shall be ordered separately and are not included in this specification. 1.3 The values stated in inch-pound units are to be regarded as standard. No other units of measurement are included in this standard. 1.4 This international standard was developed in accordance with internationally recognized principles on standardization established in the Decision on Principles for the Development of International Standards, Guides and Recommendations issued by the World Trade Organization Technical Barriers to Trade (TBT) Committee.
ABSTRACT This specification covers the materials, dimensions, inscription, and methods of inscribing for shipboard valve label plates. Label plates shall be classified by type, grade, class, size, and letter size in accordance with material and method of inscribing, method of attachment, thickness of sheet, strip, or plate, dimensions, and letter size to be used. Types and materials: type I - anodized aluminium, engraved; type II - anodized aluminium, metal photo; type III - stainless steel, engraved; type IV - brass, engraved; and type V - plastic, engraved. Grades and methods of attachment: grade A - adhesive on metal bracket (backling plate); grade B - metal strapping or screw; grade C - welding; grade D - secured by handwheel nut; and grade E - connection to valve stem, bonnet, or flange. Inscription on label plates shall include the system identification number, valve identification number, and the function of the valve. The pressure in line, where the line is coming from or going to, or both, may be included along with any other pertinent information. SCOPE 1.1 This specification covers the materials, dimensions, inscription, and methods of inscribing for shipboard valve label plates. 1.2 Fasteners shall be ordered separately and are not included in this specification. 1.3 The values stated in inch-pound units are to be regarded as standard. No other units of measurement are included in this standard. 1.4 This international standard was developed in accordance with internationally recognized principles on standardization established in the Decision on Principles for the Development of International Standards, Guides and Recommendations issued by the World Trade Organization Technical Barriers to Trade (TBT) Committee.
ASTM F992-17(2022) is classified under the following ICS (International Classification for Standards) categories: 47.020.05 - Materials and components for shipbuilding. The ICS classification helps identify the subject area and facilitates finding related standards.
ASTM F992-17(2022) has the following relationships with other standards: It is inter standard links to ASTM B36/B36M-23, ASTM B580-79(2019), ASTM B36/B36M-18, ASTM D709-16, ASTM B580-79(2014), ASTM D709-13, ASTM B36/B36M-13, ASTM B209-10, ASTM B580-79(2009), ASTM B36/B36M-08a, ASTM B36/B36M-08, ASTM B209-07, ASTM D709-01(2007), ASTM B209-06, ASTM B36/B36M-06. Understanding these relationships helps ensure you are using the most current and applicable version of the standard.
ASTM F992-17(2022) is available in PDF format for immediate download after purchase. The document can be added to your cart and obtained through the secure checkout process. Digital delivery ensures instant access to the complete standard document.
Standards Content (Sample)
This international standard was developed in accordance with internationally recognized principles on standardization established in the Decision on Principles for the
Development of International Standards, Guides and Recommendations issued by the World Trade Organization Technical Barriers to Trade (TBT) Committee.
Designation: F992 −17 (Reapproved 2022) An American National Standard
Standard Specification for
Valve Label Plates
ThisstandardisissuedunderthefixeddesignationF992;thenumberimmediatelyfollowingthedesignationindicatestheyearoforiginal
adoptionor,inthecaseofrevision,theyearoflastrevision.Anumberinparenthesesindicatestheyearoflastreapproval.Asuperscript
epsilon (´) indicates an editorial change since the last revision or reapproval.
1. Scope ANSI Y14.38Abbreviations and Acronyms for Use on
Drawings and Related Documents
1.1 This specification covers the materials, dimensions,
inscription,andmethodsofinscribingforshipboardvalvelabel
3. Classification
plates.
3.1 Label plates shall be classified by type, grade, class,
1.2 Fasteners shall be ordered separately and are not in-
size, and letter size in accordance with material and method of
cluded in this specification.
inscribing, method of attachment, thickness of sheet, strip, or
1.3 The values stated in inch-pound units are to be regarded
plate, dimensions, and letter size to be used.
asstandard.Nootherunitsofmeasurementareincludedinthis
3.2 Types and Materials:
standard.
3.2.1 Type I—Anodized aluminum, engraved.
1.4 This international standard was developed in accor-
3.2.2 Type II—Anodized aluminum, metal photo.
dance with internationally recognized principles on standard-
3.2.3 Type III—Stainless steel, engraved.
ization established in the Decision on Principles for the
3.2.4 Type IV—Brass, engraved.
Development of International Standards, Guides and Recom-
3.2.5 Type V—Plastic, engraved.
mendations issued by the World Trade Organization Technical
3.3 Grades and Methods of Attachment:
Barriers to Trade (TBT) Committee.
3.3.1 Grade A—Adhesive on metal bracket (backing plate)
(Sizes A through J).
2. Referenced Documents
3.3.2 Grade B—Metal strapping or screw (Sizes A through
2.1 ASTM Standards:
J).
A240Specification for Chromium and Chromium-Nickel
3.3.3 Grade C—Welding (Sizes A through J) See also the
Stainless Steel Plate, Sheet, and Strip for PressureVessels
American Bureau of Shipping Standards.
and for General Applications
3.3.4 Grade D—Secured by handwheel nut (Sizes K
B36/B36MSpecification for Brass Plate, Sheet, Strip, And
through R).
Rolled Bar
3.3.5 GradeE—Connectiontovalvestem,bonnet,orflange
B209Specification for Aluminum and Aluminum-Alloy
(Size S).
Sheet and Plate (Metric) B0209_B0209M
3.4 Class and Thickness:
B580Specification for Anodic Oxide Coatings on Alumi-
3.4.1 Class 1— ⁄8 in.
num
3.4.2 Class 2—16 gage.
D709Specification for Laminated Thermosetting Materials
3.4.3 Class 3—20 gage.
2.2 Other Documents:
3.4.4 Class 4—24 gage.
American Bureau of Shipping Rules for Building and
3.5 Size and Dimensions: (length by width) or (outside
Classing Steel Vessels
diameter (OD) by inside diameter (ID).)
3.5.1 Size A—Rectangular 2 by ⁄8 in.
3.5.2 Size B—Rectangular 2 by 1 ⁄2 in.
This specification is under the jurisdiction ofASTM Committee F25 on Ships
and Marine Technology and is the direct responsibility of Subcommittee F25.11 on
3.5.3 Size C—Rectangular 3 by ⁄8 in.
Machinery and Piping Systems.
3.5.4 Size D—Rectangular 3 by 1 ⁄2 in.
CurrenteditionapprovedJuly1,2022.PublishedJuly2022.Originallyapproved
3.5.5 Size E—Rectangular 3 by 2 ⁄4 in.
in1986.Lastpreviouseditionapprovedin2017asF992–17.DOI:10.1520/F0992-
3.5.6 Size F—Rectangular 4 by ⁄8 in.
17R22.
For referenced ASTM standards, visit the ASTM website, www.astm.org, or
3.5.7 Size G—Rectangular 4 by 1 ⁄2 in.
contact ASTM Customer Service at service@astm.org. For Annual Book of ASTM
Standards volume information, refer to the standard’s Document Summary page on
the ASTM website.
3 4
Available from American Bureau of Shipping (ABS), ABS Plaza, 16855 Available fromAmerican National Standards Institute (ANSI), 25 W. 43rd St.,
Northchase Dr., Houston, TX 77060, http://www.eagle.org. 4th Floor, New York, NY 10036, http://www.ansi.org.
Copyright © ASTM International, 100 Barr Harbor Drive, PO Box C700, West Conshohocken, PA 19428-2959. United States
F992 − 17 (2022)
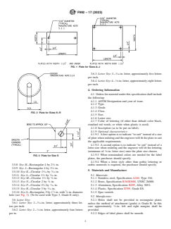
FIG. 1 Plate for Sizes A–J
3.6.3 Letter Size 3— ⁄16-in. letter, approximately five letters
per inch.
3.6.4 Letter Size 4— ⁄8-in. letter, approximately eight letters
per inch.
4. Ordering Information
4.1 Ordersformaterialunderthisspecificationshallinclude
the following:
4.1.1 ASTM Designation and year of issue.
4.1.2 Type.
4.1.3 Grade.
4.1.4 Class.
FIG. 2 Plate for Sizes K–R
4.1.5 Size.
4.1.6 Letter size.
4.1.7 Color of lettering (if other than default color black,
standard red words, or white when plastic is used).
4.1.8 Inscription (as to be put on label).
4.1.9 Optional characteristics:
4.1.9.1 Afirst option is to indicate “to suit” instead of a size
ofplatewhenorderingandtheengraverwillfittheplatetosuit
the applicable requirements.
4.1.9.2 A second option is to indicate “to suit” instead of a
letter size when ordering and the engraver will fit the lettering
(minimum of ⁄8-in. letter size) onto the plate size chosen.
4.1.9.3 When nonstandard colors are needed for the label
FIG. 3 Plate for Size S
plates, the purchaser should specify.
4.1.9.4 When a letter style other than gothic lettering or
3.5.8 Size H—Rectangular 4 by 2 ⁄4 in. arabic numerals is required, the purchaser should specify.
3.5.9 Size J—Rectangular 4 by 3 ⁄4 in.
5. Materials and Manufacture
3 5
3.5.10 Size K—Circular 1 ⁄16 by ⁄16 in.
1 5
3.5.11 Size L—Circular 1 ⁄2 by ⁄16 in. 5.1 Materials:
3 3
3.5.12 Size M—Circular 1 ⁄4 by ⁄8 in. 5.1.1 Stainless steel, Specification A240, Type 316.
3.5
...




Questions, Comments and Discussion
Ask us and Technical Secretary will try to provide an answer. You can facilitate discussion about the standard in here.
Loading comments...