ISO 1701:1974/Add 1:1978
(Main)Test conditions for milling machines with table of variable height, with horizontal or vertical spindle — Testing of the accuracy — Addendum 1: Annex — Universal milling machines with a swivelling table
Test conditions for milling machines with table of variable height, with horizontal or vertical spindle — Testing of the accuracy — Addendum 1: Annex — Universal milling machines with a swivelling table
Conditions d'essais des machines à fraiser à table de hauteur variable, à broche horizontale ou verticale — Contrôle de la précision — Additif 1: Annexe — Machines à fraiser universelles comportant une table orientable
General Information
- Status
- Withdrawn
- Publication Date
- 30-Jun-1978
- Withdrawal Date
- 30-Jun-1978
- Technical Committee
- ISO/TC 39 - Machine tools
- Drafting Committee
- ISO/TC 39 - Machine tools
- Current Stage
- 9599 - Withdrawal of International Standard
- Start Date
- 15-Jul-1997
- Completion Date
- 12-Feb-2026
Relations
- Effective Date
- 06-Jun-2022
- Effective Date
- 15-Apr-2008
Get Certified
Connect with accredited certification bodies for this standard
National Aerospace and Defense Contractors Accreditation Program (NADCAP)
Global cooperative program for special process quality in aerospace.
CARES (UK Certification Authority for Reinforcing Steels)
UK certification for reinforcing steels and construction.
DVS-ZERT GmbH
German welding certification society.
Sponsored listings
Frequently Asked Questions
ISO 1701:1974/Add 1:1978 is a standard published by the International Organization for Standardization (ISO). Its full title is "Test conditions for milling machines with table of variable height, with horizontal or vertical spindle — Testing of the accuracy — Addendum 1: Annex — Universal milling machines with a swivelling table". This standard covers: Test conditions for milling machines with table of variable height, with horizontal or vertical spindle — Testing of the accuracy — Addendum 1: Annex — Universal milling machines with a swivelling table
Test conditions for milling machines with table of variable height, with horizontal or vertical spindle — Testing of the accuracy — Addendum 1: Annex — Universal milling machines with a swivelling table
ISO 1701:1974/Add 1:1978 is classified under the following ICS (International Classification for Standards) categories: 25.080.20 - Boring and milling machines. The ICS classification helps identify the subject area and facilitates finding related standards.
ISO 1701:1974/Add 1:1978 has the following relationships with other standards: It is inter standard links to ISO 1701:1974; is excused to ISO 1701:1974. Understanding these relationships helps ensure you are using the most current and applicable version of the standard.
ISO 1701:1974/Add 1:1978 is available in PDF format for immediate download after purchase. The document can be added to your cart and obtained through the secure checkout process. Digital delivery ensures instant access to the complete standard document.
Standards Content (Sample)
NORME INTERNATIONALE IS0 1701-1974/ADDITIF 1
I
Publié 1978-07-01
INTERNATIONAL ORGANIZATION FOR STANDARDIZATION 4fEXnYHAPOnHAX OPFAHHJAUWX fl0 CTAHLLAPTHJAUHH .ORGANISATION INTERNATIONALE DE NORMALlSATlOl
Conditions d'essais des machines à fraiser à table de hauteur variable, a broche horizontale ou verticale -
Contrôle de la précision
ADDITIF 1 : Annexe - Machines à fraiser universelles comportant une table orientable
L'Additif 1 à la Norme internationale IS0 1701-1974 a été élaboré par le comité technique ISO/TC 39, Machines-outils, et
a été soumis aux comités membres en octobre 1976.
Les comités membres des pays suivants l'ont approuvé :
Afrique du Sud, Rép. d' Corée, Rép. dém. p. de Roumanie
Australie Royaume-Uni
Espagne
Autriche France Suisse
Belgique Hongrie Tchécoslovaquie
Brésil Inde U.R.S.S.
Bulgarie Italie Yougoslavie
Corée, Rép. de Mexique
Les comités membres des pays suivants l'ont désapprouvé pour des raisons techniques :
Allemagne
Japon
Pologne
U.S.A.
' A.l OBJET ET DOMAINE D'APPLICATION
La présente annexe à I'ISO 1701 spécifie les vérifications géométriques complémentaires à prévoir dans le cas des machines
à fraiser universelles à table de hauteur variable, à broche horizontale, d'usage général et de précision normale.
A.2 RÉFÉRENCE
ISO/R 230, Code d'essais des machines-outils.
-
U
m
I-
?
2 CDU 621.914.3-187 Réf. no : IS0 1701-1974/Add. 1-1978 (F)
b,
Descripteun : machine-util, fraiseuse, essai, conditions d'essai, exactitude.
0' O Organisation internationale de normalisation, 1978 0
b
-
Prix base sur 9 pages
Imprimé en Suisse
0-
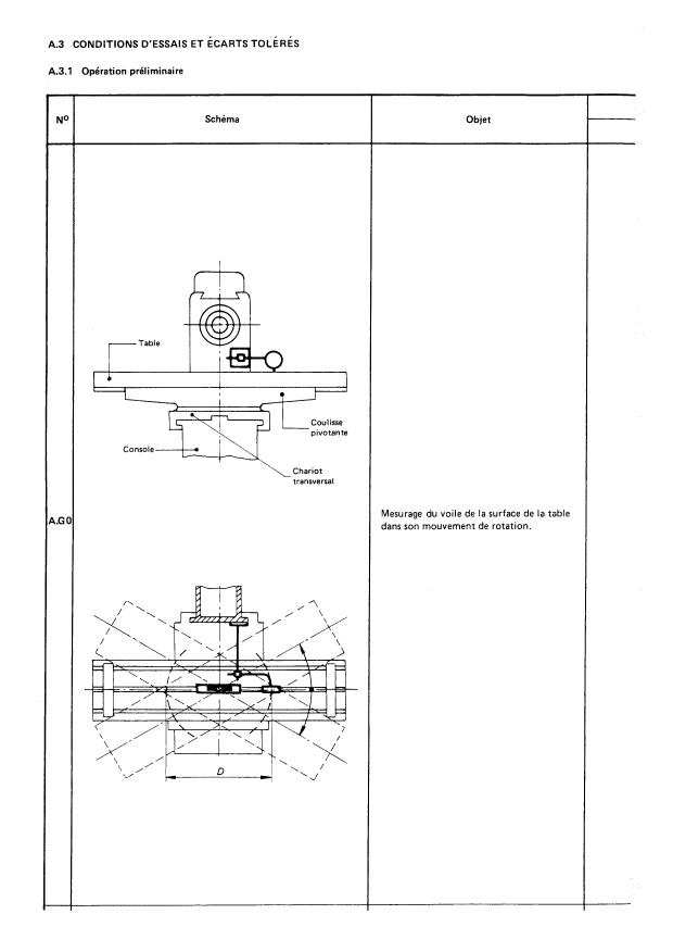
A.3 CONDITIONS D‘ESSAIS ET ÉCARTS TOLÉRÉS
A.3.1 Opération préliminaire
Schema
Objet
I
>
L
Console
transversal
Mesurage du voile de la surface de la table
dans son mouvement de rotation.
IS0 1701-1974/Add.l-1978 (F)
Écart toléré
Observations
Appareils, de mesurage
et références au code d'essais ISO/R 230
rnrn in
Comparateur à cadran
et cales
Paragraphes 5.632 et 5.633
0,03 0,001 2
ou
Cette opération doit être effectuée pour
le déplacement angulaire total possible
niveau de précision
1 O00 40
de la table.
(seulement dans le cas
d'un nivellement parfait
de la machine)
3-4
IS0 1701-1974/Add.l-1978 (F)
Écart toléré
Observations
Appareils de mesurage
et références au code d’essais ISO/R 230
mm in
Console, chariot transversal et coulisse
pivotante bloques au moment des mesu-
rages.
Mode opératoire
1 La table étant orientée approximati-
vement dans un plan vertical parallèle
a l’une des génératrices du cône de
contrôle, placer le comparateur à
Comparateur à cadran cadran au contact de cette généra-
et mandrin conique de trice et régler la hauteur de la table
contrôle comme indi- de manière à amener le comparateur
qué ci-dessous : à cadran dans un plan horizontal
passant par l’axe du mandrin de
contrôle.
0,08 0,0032
Pour 01 = 120’ :
2 Régler exactement l’orientation de la
Ecart réel entre les deux axes = (A - B)
table dans un plan vertical parallèle à
la génératrice du mandrin conique de
Pour 01 = 90’ :
contrôle, en déplaçant la table sur ses
glissières, tout en maintenant le
Ecart réel entre les deux axes =
comparateur à cadran au contact du
cône de contrôle.
3 Noter l’indication du comparateur à
cadran (lecture A).
4 Sans modifier la position du compa-
rateur, faire tourner le mandrin de
contrôle de 180’ par rotation de la
broche et o
...




Questions, Comments and Discussion
Ask us and Technical Secretary will try to provide an answer. You can facilitate discussion about the standard in here.
Loading comments...