ISO 4018:1979
(Main)Hexagon head screws — Product grade C
Hexagon head screws — Product grade C
Vis à tête hexagonale — Classe de produit C
General Information
- Status
- Withdrawn
- Publication Date
- 31-May-1979
- Withdrawal Date
- 31-May-1979
- Technical Committee
- ISO/TC 2 - Fasteners
- Drafting Committee
- ISO/TC 2 - Fasteners
- Current Stage
- 9599 - Withdrawal of International Standard
- Start Date
- 01-May-1988
- Completion Date
- 12-Feb-2026
Relations
- Effective Date
- 15-Apr-2008
Frequently Asked Questions
ISO 4018:1979 is a standard published by the International Organization for Standardization (ISO). Its full title is "Hexagon head screws — Product grade C". This standard covers: Hexagon head screws — Product grade C
Hexagon head screws — Product grade C
ISO 4018:1979 is classified under the following ICS (International Classification for Standards) categories: 21.060.10 - Bolts, screws, studs. The ICS classification helps identify the subject area and facilitates finding related standards.
ISO 4018:1979 has the following relationships with other standards: It is inter standard links to ISO 4018:1988. Understanding these relationships helps ensure you are using the most current and applicable version of the standard.
ISO 4018:1979 is available in PDF format for immediate download after purchase. The document can be added to your cart and obtained through the secure checkout process. Digital delivery ensures instant access to the complete standard document.
Standards Content (Sample)
International Standard @ 4018
INTERNATIONAL ORGANIZATION FOR STANDARDIZATlON*MEm9YHAPOAHAR OPTAHM3AUMfl no CTAHAAPTH3AUMM.ORGANlSATlON INTERNATIONALE DE NORMALISATION
I) Hexagon head screws - Product grade C
Vis à tête hexagonale - Classe de produit C
First edition - 1979-06-15
üj - UDC 621.882.211 Ref. No. IS0 4018-1979 (E)
tn
Descriptors : fasteners, screws, hexagonal head screws, specifications, dimensions, dimensional tolerances, designation.
E
s
Price based on 5 pages
FOREWORD
IS0 (the International Organization for Standardization) is a worldwide federation
of national standards institutes (IS0 member bodies). The work of developing
International Standards is carried out through IS0 technical committees. Every
member body interested in a subject for which a technical committee has been set
up has the right to be represented on that committee. International organizations,
governmental and non-governmental, in liaison with ISO, also take part in the work.
Draft International Standards adopted by the technical committees are circulated
to the member bodies for approval before their acceptance as International
Standards by the IS0 Council.
International Standard IS0 401 8 was developed by Technical Committee
ISO/TC 2, Fasteners, and was circulated to the member bodies in December 1977.
It has been approved by the member bodies of the following countries :
Australia Hungary Poland
Belgium India Romania
South Africa, Rep. of
Canada Israel
Italy Spain
Chile
Korea, Rep. of Sweden
Czechoslovakia
Mexico Switzerland
Denmark
Egypt, Arab Rep. of Netherlands United Kingdom
Finland New Zealand USA
Germany, F.R. Norway Yugoslavia
The member bodies of the following countries expresseddisapproval of the document
on technical grounds :
France
USSR
INTERNATIONAL STANDARD IS0 4018-1979 (E)
Hexagon head screws - Product grade C
a
O INTRODUCTION This type of product is the same as that coverxi by
IS0 4016 with the exception of threading up to the head
This International Standard is part of the complete IS0
and lengths < 100 mm as popular lengths.
product standards series on hexagon drive fasteners. The
If, in special cases, specifications other than those listed
series comprises :
in this International Standard are required, it is
a) Hexagon head bolts (IS0 4014, IS0 401 5 and
recommended that they should be selected from existing
IS0 4016)
International Standards, for example IS0 261, IS0 888,
IS0 898, IS0 965, IS0 4759/1.
b) Hexagon head screws (IS0 401 7 and IS0 4018)
c) Hexagon nuts (ISO4032, ISO4033, ISO4034,
0 2 REFERENCES
IS0 4035 and IS0 4036)
IS0 261, IS0 general purpose metric screw threads -
d) Hexagon flanged bolts I
General plan.
e) Hexagon flanged screws
3 (in preparation) IS0 888, Bolts, screws and studs - Nominal lengths, and
f) Hexagon flanged nuts
thread lengths for general purpose bolts.
g) Structural bolting
IS0 898, Mechanical properties of fasteners.
I
IS0 965, IS0 general purpose metric screw threads -
SCOPE AND FIELD OF APPLICATION
1 Tolerances.
This International Standard gives specifications for hexagon IS0 1461, Metallic coatings - Hot dip galvanized coatings
head screws with metric dimensions and thread diameters on fabricated ferrous products - Requirements.
from 5 up to and including 36 mm, of product grade C.
IS0 475911, Tolerances for fasteners - Part 7 : Bolts,
No finish is required for this product except for the thread. screws and nuts with thread diameters 2 1.6 150 mm and
A small die seam across the bearing surface is permissible. product grades A, B and C.
IS0 4018-1979 (E)
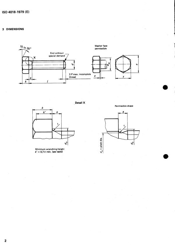
3 DIMENSIONS
Washer face
permisçi ble
Endwithout -
incomplete
HI I I 2~max.
thread
k- I
- LI
Detail X
Permissible shape
Minimum wrenching height
k' = 0,7 k min. (see ta
...
Norme internationale @ 4018
INTERNATIONAL ORGANIZATION FOR STANOARDIZATION*MEWlYHAPOL1HAR OPrAHM3AUMR no CTAHflAPTH3AUMHWRGANlSATlON INTERNATIONALE DE NORMALISATION
Vis à tête hexagonale - Classe de produit C
e
Hexagon head screws - Product grade C
Première édition - 1979-06-15
F
~
I CDU 621.882.211
Réf. no : IS0 4018-1979 (FI
-
m
Descripteurs : élément de fixation, vis, vis a tête hexagonale, spécification, dimension, tolérance de dimension, désignation.
E
$
O
Prix basé sur 5 pages
E?
AVANT-PROPOS
L'ISO (Organisation internationale de normalisation) est une fédération mondiale
d'organismes nationaux de normalisation (comités membres de I'ISO). L'élaboration
des Normes internationales est confiée aux comités techniques de I'ISO. Chaque
comité membre intéressé par une étude a le droit de faire partiedu comité technique
correspondant. Les organisations internationales, gouvernementales et non
gouvernementales, en liaison avec I'ISO, participent également aux travaux.
Les projets de Normes internationales adoptés par les comités techniques sont
soumis aux comités membres pour approbation, avant leur acceptation comme
Normes internationales par le Conseil de l'lS0.
La Norme jnternationale IS04018 a été élaborée par le comité technique
ISO/TC2, Eléments de fixation, et a été soumise aux comités membres en
décembre.1977.
Les comités membres des pays suivants l'ont approuvée :
Afrique du Sud, Rép. d' Espagne Pa y s-Bas
Allemagne, R.F. Finlande Pologne
Australie Hongrie
Roumanie
Belgique Inde Royaume-Uni
Canada Israël Suède
Chili Italie Suisse
Corée, Rép. de Mexique Tchécoslovaquie
Danemark Norvège USA
Egypte, Rép. arabe d' Nouvelle-Zélande Yougoslavie
Les comités membres des pays suivants l'ont désapprouvée pour des raisons
techniques :
France
URSS
O Organisation internationale de normalisation, 1979 O
Imprimé en Suisse
NORME INTERNATIONALE IS0 4018-1979 (F)
Vis à tête hexagonale Classe de produit C
O INTRODUCTION Ce type de produit est identique à celui faisant l‘objet de
I’ISO 4016, sauf en ce qui concerne le filetage sur toute la
La présente Norme internationale fait partie de la série
longueur de la tige et les longueurs courantes inférieures ou
complète des normes de produit IS0 traitant des éléments
égales à 100 mm.
de fixation à entraînement hexagonal. La série comprend :
Si, dans des cas particuliers, des spécifications autres que
a) Boulons à tête hexagonale (IS0 4014, IS0 4015 et
celles figurant dans la présente Norme internationale sont
IS0 4016)
requises, il est recommandé de les prendre dans les Normes
internationales existantes, par exemple IS0 261, IS0 888,
b) Vis à tête hexagonale (IS0 4017 et IS0 4018)
IS0 898, IS0 965, IS0 4759/1.
c) Écrous hexagonaux (IS0 4032, IS0 4033, IS0 4034,
IS0 4035 et IS0 4036)
e
2 RÉFÉRENCES
d) Boulons à tête hexagonale à embase
IS0 261, Filetages métriques IS0 pour usages généraux -
Vue d’ensemble.
e) Vis à tête hexagonale à embase
(En préparation)
IS0 888, Boulons, vis et goujons - Longueurs de tige nomi-
f) Écrous hexagonaux à embase
nales, et longueurs filetées des boulons d’application
g) Boulonnage des structures
générale.
IS0 898, Caractéristiques mécaniques des éléments de
fixation.
1 OBJET ET DOMAINE D‘APPLICATION IS0 965, Filetages métriques IS0 pour usages généraux -
Tolérances.
La présente Norme internationale spécifie les caractéris-
tiques des vis à tête hexagonale de dimensions métriques, de IS0 1461, Revêtements métalliques - Revêtements de
5 à 36 mm inclus de diamètre de filetage, de la classe de galvanisation à chaud sur produits finis en fer - Spéci-
produit C. fication.
Ce produit n’exige aucune finition, sauf en ce qui concerne IS0 475911, Toléranœs pour éléments de fixation -
le filetage. Une légère empreinte de matrice sur la face Partie 1 : Boulons, vis et écrous de diamètre de filetage
d’appui est admise. > 1,6 < 150 mm et de niveaux de finition A, B et C.
IS0 4018-1979 (F)
3 DIMENSIONS
Collerette permise
I/\ Extrémité sans -
exigence particulière
pq,
filet
Hl I I 2~max.
incomplet
-
I
L,
Détail X
Forme permise
d
Hauteur minimale de manœuvre
SI
k' = 0,7 k min. (voir le tableau)
.$ U 1
a" I
IS0 4018-1979 (F)
Dimensions en iill imètres
M5 M6 ME M10 M12 (M14) M16 M20 M24 M30
Filetage d M36 I
P 1) 0,8 1 1,25 1.5 1.75 2
2 2.5 3 3.5 41
r
a2) max. 3,2 4 5 6 7 8 8 10 12 14
C max. 0,5
0.6 O .6 0.
...








Questions, Comments and Discussion
Ask us and Technical Secretary will try to provide an answer. You can facilitate discussion about the standard in here.
Loading comments...